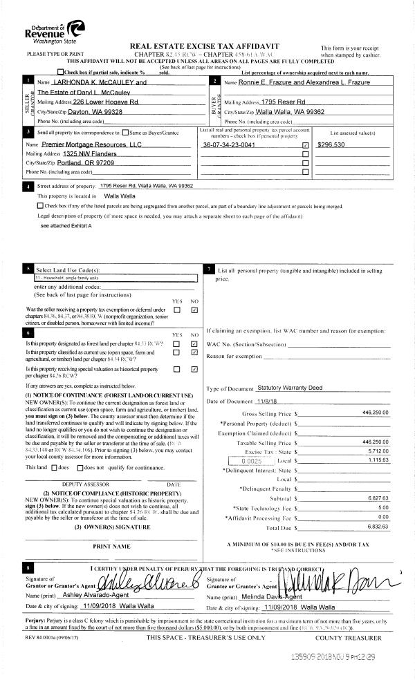
Property
Account |
| Property ID: | 12542 | Abbreviated Legal Description: | 34-7-36 TAX 19L LESS ROAD |
| Parcel Number: | 360734230041 | Agent Code: | |
| Type: | Real | | |
| Tax Area: | 101 - 140-4 | Land Use Code | 11 |
| Open Space: | N | DFL | N |
| Historic Property: | N | Remodel Property: | N |
| Multi-Family Redevelopment: | N | | |
| Township: | 7 | Section: | 34 |
| Range: | 36 |
Location |
| Address: | 1795 RESER RD WA 99362 | Mapsco: | |
| Neighborhood: | G Res Rural/City Inf | Map ID: | |
| Neighborhood CD: | 614012 |
Owner |
| Name: | FRAZURE RONNIE E & ALEXANDREA L | Owner ID: | 64235 |
| Mailing Address: | 1795 RESER RD WALLA WALLA, WA 99362 | % Ownership: | 100.0000000000% |
| | | Exemptions: | |
Taxes and Assessment Details
Property Tax Information as of
02/21/2026
Click on "Statement Details" to expand or collapse a tax statement.
* Please enter a valid date ** Please enter a valid date *
Statement Details |
| | TOTAL: | $0.00 | $0.00 | $0.00 | $0.00 | $0.00 | $0.00 |
|
| | $0.00 | $0.00 | $0.00 | $0.00 | $0.00 | $0.00 |
Values
| (+) Improvement Homesite Value: | + | $0 | |
| (+) Improvement Non-Homesite Value: | + | $482,050 | |
| (+) Land Homesite Value: | + | $0 | |
| (+) Land Non-Homesite Value: | + | $136,840 | |
| (+) Curr Use (HS): | + | $0 | $0 |
| (+) Curr Use (NHS): | + | $0 | $0 |
| | | -------------------------- | |
| (=) Market Value: | = | $618,890 | |
| (–) Productivity Loss: | – | $0 | |
| | | -------------------------- | |
| (=) Subtotal: | = | $618,890 | |
| (+) Senior Appraised Value: | + | $0 | |
| (+) Non-Senior Appraised Value: | + | $618,890 | |
| | | -------------------------- | |
| (=) Total Appraised Value: | = | $618,890 | |
| (–) Senior Exemption Loss: | – | $0 | |
| (–) Exemption Loss: | – | $0 | |
| | | -------------------------- | |
| (=) Taxable Value: | = | $618,890 | |
Taxing Jurisdiction
| Owner: | FRAZURE RONNIE E & ALEXANDREA L | | |
| % Ownership: | 100.0000000000% | | |
| Total Value: | $618,890 | | |
| Tax Area: | 101 - 140-4 |
| CERFD | CURRENT EXPENSE REFUND 010 | 0.0000000000 | $618,890 | $618,890 | $0.00 | | |
| CURREXP | CURRENT EXPENSE 010 | 1.0175366760 | $618,890 | $618,890 | $629.74 | | |
| HUMNSERV | HUMAN SERVICES 119 | 0.0250000000 | $618,890 | $618,890 | $15.47 | | |
| SLDREL | SOLDIERS RELIEF 121 | 0.0155990005 | $618,890 | $618,890 | $9.65 | | |
| EMERGSER | EMS 147 | 0.3792580840 | $618,890 | $618,890 | $234.72 | | |
| EMSRFD | EMS REFUND 147 | 0.0000000000 | $618,890 | $618,890 | $0.00 | | |
| FD4EXP | FD #4 EXPENSE 686 | 0.8836993059 | $618,890 | $618,890 | $546.91 | | |
| RLBRFD | RURAL LIBRARY REFUND 623 | 0.0000000000 | $618,890 | $618,890 | $0.00 | | |
| RURALLIB | RURAL LIBRARY 623 | 0.3710609029 | $618,890 | $618,890 | $229.65 | | |
| PORTRFD | PORT REFUND 640 | 0.0000000000 | $618,890 | $618,890 | $0.00 | | |
| PORTWWGEN | PORT OF WW 640 | 0.2460186015 | $618,890 | $618,890 | $152.26 | | |
| SD140BOND | SD #140 BOND 764 | 0.8342371393 | $618,890 | $618,890 | $516.30 | | |
| SD140GEN | SD #140 GENERAL 760 | 2.0646500647 | $618,890 | $618,890 | $1,277.79 | | |
| ST2 | STATE SCHOOL PART 2 600 | 0.8131451643 | $618,890 | $618,890 | $503.25 | | |
| STATESCHL | STATE SCHOOL 600 | 1.5158548041 | $618,890 | $618,890 | $938.15 | | |
| STREFUND | STATE REFUND LEVY 603 | 0.0000000000 | $618,890 | $618,890 | $0.00 | | |
| COROAD | COUNTY ROAD 115 | 1.6549953990 | $618,890 | $618,890 | $1,024.26 | | |
| CRPRD | COUNTY ROAD REFUND 115 | 0.0000000000 | $618,890 | $618,890 | $0.00 | | |
| | Total Tax Rate: | 9.8210551422 | | | | | |
| | | | | Taxes w/Current Exemptions: | $6,078.15 | | |
| | | | | Taxes w/o Exemptions: | $6,078.15 | | |
Improvement / Building
| Improvement #1: | RESIDENTIAL | State Code: | 11 | 2067.0 sqft | Value: | $482,050 |
| Exterior Wall: | PLYWOOD | Heating/Cooling: | WARM & COOLED AIR | | Number of Bathrooms: | 3.5 | Number of Bedrooms: | 6 | | Plumbing: | 15 | Roof Covering: | COMP SHINGLE |
|
| | Type | Description | Class CD | Sub Class CD | Year Built | Area |
| | MA | Main Area | 1 | 40 | 1960 | 2067.0 |
| | SI1 | SITE IMPROVEMENT | 1 | 40 | 1960 | 5.0 |
| | BASE | BASEMENT | 1 | 40 | 1960 | 2067.0 |
| | BPF | BASEMENT -PARTITIONED FINISH | 1 | 40 | 1960 | 2067.0 |
| | DTG | Detached Garage | 1 | 40 | 1960 | 594.0 |
| | RPS | PORCH W/STEPS,ROOF | 1 | 40 | 1960 | 63.0 |
| | D2F | Double 2 Story Fireplace | 1 | 40 | 1960 | 1.0 |
| | CPCD | CARPORT/DIRT FLOOR | 1 | 40 | 1960 | 201.0 |
Sketch
Property Image
Land
| 1 | RES 1 | Converted: Residential | 0.6800 | 29620.00 | 0.00 | 0.00 | 1.00 | $136,840 | $0 |
Roll Value History
| 2026 | N/A | N/A | N/A | N/A | N/A |
| 2025 | $580,820 | $158,470 | $0 | $739,290 | $739,290 |
| 2024 | $482,050 | $136,840 | $0 | $618,890 | $618,890 |
| 2023 | $482,050 | $136,840 | $0 | $618,890 | $618,890 |
| 2022 | $482,050 | $110,780 | $0 | $592,830 | $592,830 |
| 2021 | $438,230 | $110,780 | $0 | $549,010 | $549,010 |
| 2020 | $313,020 | $110,780 | $0 | $423,800 | $423,800 |
| 2019 | $313,020 | $110,780 | $0 | $423,800 | $423,800 |
| 2018 | $232,730 | $63,800 | $0 | $296,530 | $296,530 |
| 2017 | $221,650 | $63,800 | $0 | $285,450 | $285,450 |
| 2016 | $201,500 | $63,800 | $0 | $265,300 | $265,300 |
| 2015 | $201,500 | $63,800 | $0 | $265,300 | $265,300 |
| 2014 | $161,200 | $63,800 | $0 | $225,000 | $225,000 |
| 2013 | $161,200 | $63,800 | $0 | $225,000 | $225,000 |
| 2012 | $154,500 | $63,800 | $0 | $0 | $0 |
| 2011 | $154,500 | $63,800 | $0 | $0 | $0 |
| 2010 | $154,500 | $63,800 | $0 | $0 | $0 |
| 2009 | $178,700 | $63,800 | $0 | $0 | $0 |
| 2008 | $178,700 | $63,800 | $0 | $0 | $0 |
| 2007 | $135,000 | $41,300 | $0 | $0 | $0 |
Deed and Sales History
| 1 | 11/09/2018 | SWD | STATUTORY WARRANTY DEED | MC CAULEY DARYL L ESTATE OF | FRAZURE RONNIE E & ALEXANDREA L | | | $446,250.00 | 135909 | 2018-09321 |
| 2 | 11/27/2000 | WARRANTY D | WARRANTY DEED | | | | | $159,900.00 | 96222 | 3050-011229 |
Payout Agreement
| No payout information available.. |