Property
Account |
| Property ID: | 12530 | Abbreviated Legal Description: | 34-7-36 TAX 20 LESS ROAD |
| Parcel Number: | 360734220043 | Agent Code: | |
| Type: | Real | | |
| Tax Area: | 101 - 140-4 | Land Use Code | 11 |
| Open Space: | N | DFL | N |
| Historic Property: | N | Remodel Property: | N |
| Multi-Family Redevelopment: | N | | |
| Township: | 7 | Section: | 34 |
| Range: | 36 |
Location |
| Address: | 1914 SCHOOL AVE WA 99362 | Mapsco: | |
| Neighborhood: | G Res | Map ID: | |
| Neighborhood CD: | 614011 |
Owner |
| Name: | SCHULZ MICHAEL CHRISTIAN & DESIREE LYNN | Owner ID: | 69709 |
| Mailing Address: | 1914 SCHOOL AVE WALLA WALLA, WA 99362 | % Ownership: | 100.0000000000% |
| | | Exemptions: | |
Taxes and Assessment Details
Property Tax Information as of
02/21/2026
Click on "Statement Details" to expand or collapse a tax statement.
* Please enter a valid date ** Please enter a valid date *
Statement Details |
| | TOTAL: | $0.00 | $0.00 | $0.00 | $0.00 | $0.00 | $0.00 |
|
| | $0.00 | $0.00 | $0.00 | $0.00 | $0.00 | $0.00 |
Values
| (+) Improvement Homesite Value: | + | $0 | |
| (+) Improvement Non-Homesite Value: | + | $382,660 | |
| (+) Land Homesite Value: | + | $0 | |
| (+) Land Non-Homesite Value: | + | $166,710 | |
| (+) Curr Use (HS): | + | $0 | $0 |
| (+) Curr Use (NHS): | + | $0 | $0 |
| | | -------------------------- | |
| (=) Market Value: | = | $549,370 | |
| (–) Productivity Loss: | – | $0 | |
| | | -------------------------- | |
| (=) Subtotal: | = | $549,370 | |
| (+) Senior Appraised Value: | + | $0 | |
| (+) Non-Senior Appraised Value: | + | $549,370 | |
| | | -------------------------- | |
| (=) Total Appraised Value: | = | $549,370 | |
| (–) Senior Exemption Loss: | – | $0 | |
| (–) Exemption Loss: | – | $0 | |
| | | -------------------------- | |
| (=) Taxable Value: | = | $549,370 | |
Taxing Jurisdiction
| Owner: | SCHULZ MICHAEL CHRISTIAN & DESIREE LYNN | | |
| % Ownership: | 100.0000000000% | | |
| Total Value: | $549,370 | | |
| Tax Area: | 101 - 140-4 |
| CERFD | CURRENT EXPENSE REFUND 010 | 0.0000000000 | $549,370 | $549,370 | $0.00 | | |
| CURREXP | CURRENT EXPENSE 010 | 0.9851088983 | $549,370 | $549,370 | $541.19 | | |
| HUMNSERV | HUMAN SERVICES 119 | 0.0250000000 | $549,370 | $549,370 | $13.73 | | |
| SLDREL | SOLDIERS RELIEF 121 | 0.0155990000 | $549,370 | $549,370 | $8.57 | | |
| EMERGSER | EMS 147 | 0.3676811629 | $549,370 | $549,370 | $201.99 | | |
| EMSRFD | EMS REFUND 147 | 0.0000000000 | $549,370 | $549,370 | $0.00 | | |
| FD4EXP | FD #4 EXPENSE 686 | 1.2367913128 | $549,370 | $549,370 | $679.46 | | |
| RLBRFD | RURAL LIBRARY REFUND 623 | 0.0000000000 | $549,370 | $549,370 | $0.00 | | |
| RURALLIB | RURAL LIBRARY 623 | 0.3601547782 | $549,370 | $549,370 | $197.86 | | |
| PORTRFD | PORT REFUND 640 | 0.0000000000 | $549,370 | $549,370 | $0.00 | | |
| PORTWWGEN | PORT OF WW 640 | 0.2344301070 | $549,370 | $549,370 | $128.79 | | |
| SD140BOND | SD #140 BOND 764 | 0.8032434458 | $549,370 | $549,370 | $441.28 | | |
| SD140CAP | SD #140 CAP 762 | 0.3840034221 | $549,370 | $549,370 | $210.96 | | |
| SD140GEN | SD #140 GENERAL 760 | 2.4999999996 | $549,370 | $549,370 | $1,373.43 | | |
| ST2 | STATE SCHOOL PART 2 600 | 0.8853714103 | $549,370 | $549,370 | $486.40 | | |
| STATESCHL | STATE SCHOOL 600 | 1.6424571473 | $549,370 | $549,370 | $902.32 | | |
| STREFUND | STATE REFUND LEVY 603 | 0.0000000000 | $549,370 | $549,370 | $0.00 | | |
| COROAD | COUNTY ROAD 115 | 1.6137667997 | $549,370 | $549,370 | $886.56 | | |
| CRPRD | COUNTY ROAD REFUND 115 | 0.0000000000 | $549,370 | $549,370 | $0.00 | | |
| | Total Tax Rate: | 11.0536074840 | | | | | |
| | | | | Taxes w/Current Exemptions: | $6,072.54 | | |
| | | | | Taxes w/o Exemptions: | $6,072.54 | | |
Improvement / Building
| Improvement #1: | RESIDENTIAL | State Code: | 11 | 1455.0 sqft | Value: | $382,660 |
| Exterior Wall: | SIDING | Foundation: | SLAB FOUNDATION | | Heating/Cooling: | WARM & COOLED AIR | Number of Bathrooms: | 2 | | Number of Bedrooms: | 2 | Plumbing: | 9 | | Roof Covering: | COMP SHINGLE |   |   |
|
| | Type | Description | Class CD | Sub Class CD | Year Built | Area |
| | MA | Main Area | 1 | 30 | 1950 | 1455.0 |
| | SI1 | SITE IMPROVEMENT | 1 | 30 | 1950 | 3.5 |
| | BASE | BASEMENT | 1 | 30 | 1950 | 1096.0 |
| | BPF | BASEMENT -PARTITIONED FINISH | 1 | 30 | 1950 | 1024.0 |
| | DTG | Detached Garage | 1 | 30 | 1950 | 676.0 |
| | RPS | PORCH W/STEPS,ROOF | 1 | 30 | 1950 | 9.0 |
| | S1F | Single One Story Fireplace | 1 | 30 | 1950 | 1.0 |
| | POL1 | POLE BUILDING-GRAVEL | 1 | 30 | 2012 | 528.0 |
Sketch
Property Image
Land
| 1 | RES 1 | Converted: Residential | 0.9200 | 40075.20 | 0.00 | 0.00 | 1.00 | $166,710 | $0 |
Roll Value History
| 2026 | N/A | N/A | N/A | N/A | N/A |
| 2025 | $382,660 | $166,710 | $0 | $549,370 | $549,370 |
| 2024 | $379,130 | $146,680 | $0 | $525,810 | $525,810 |
| 2023 | $379,130 | $146,680 | $0 | $525,810 | $525,810 |
| 2022 | $379,130 | $117,820 | $0 | $496,950 | $496,950 |
| 2021 | $223,020 | $117,820 | $0 | $340,840 | $340,840 |
| 2020 | $171,550 | $117,820 | $0 | $289,370 | $289,370 |
| 2019 | $171,550 | $117,820 | $0 | $289,370 | $289,370 |
| 2018 | $191,290 | $72,700 | $0 | $263,990 | $263,990 |
| 2017 | $182,180 | $72,700 | $0 | $254,880 | $254,880 |
| 2016 | $145,750 | $72,700 | $0 | $218,450 | $218,450 |
| 2015 | $138,810 | $72,700 | $0 | $211,510 | $211,510 |
| 2014 | $120,700 | $72,700 | $0 | $193,400 | $193,400 |
| 2013 | $120,700 | $72,700 | $0 | $193,400 | $193,400 |
| 2012 | $114,100 | $72,700 | $0 | $0 | $0 |
| 2011 | $114,100 | $72,700 | $0 | $0 | $0 |
| 2010 | $85,500 | $72,700 | $0 | $0 | $0 |
| 2009 | $103,100 | $72,700 | $0 | $0 | $0 |
| 2008 | $103,100 | $72,700 | $0 | $0 | $0 |
| 2007 | $72,100 | $43,900 | $0 | $0 | $0 |
Deed and Sales History
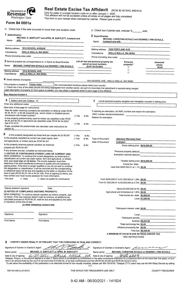
| 1 | 06/30/2021 | SWD | STATUTORY WARRANTY DEED | BARTLETT MICHAEL D & APRIL M | SCHULZ MICHAEL CHRISTIAN & DESIREE LYNN | | 2-PARCELS | $610,000.00 | 141924 | 2021-07913 |
|   | |
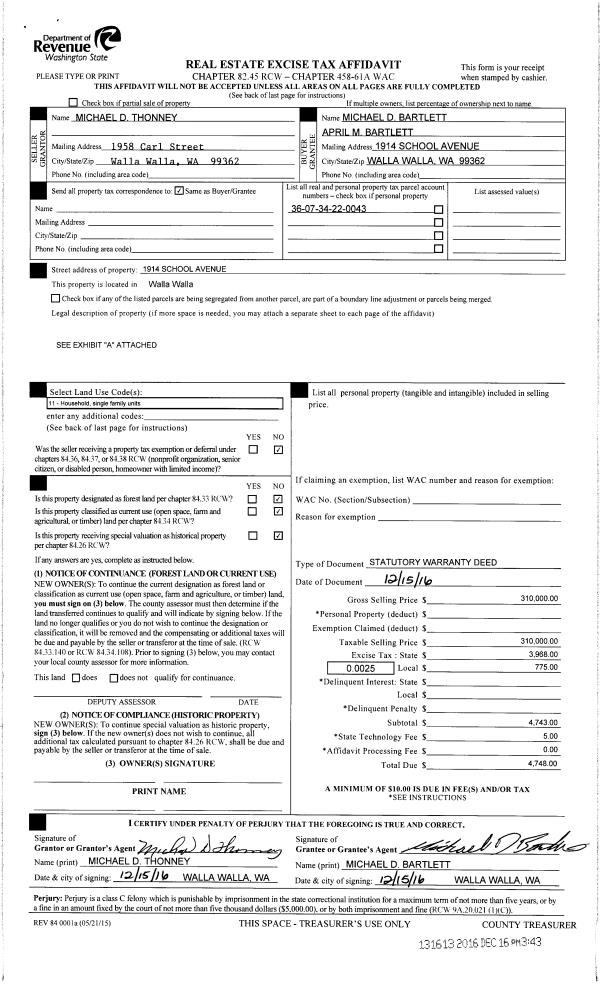
| 2 | 12/16/2016 | SWD | STATUTORY WARRANTY DEED | THONNEY MICHAEL D | BARTLETT MICHAEL D & APRIL M | | | $310,000.00 | 131613 | 2016-10384 |
| 3 | 03/21/1996 | WARRANTY D | WARRANTY DEED | | | | | $81,895.00 | 85804 | 2399-602800 |
Payout Agreement
| No payout information available.. |