Property
Account |
| Property ID: | 12496 | Abbreviated Legal Description: | ABBOTT'S MEADOW LOT 3 BLK 3 |
| Parcel Number: | 360733900303 | Agent Code: | |
| Type: | Real | | |
| Tax Area: | 1 - OL-140-F | Land Use Code | 11 |
| Open Space: | N | DFL | N |
| Historic Property: | N | Remodel Property: | N |
| Multi-Family Redevelopment: | N | | |
| Township: | 7 | Section: | 33 |
| Range: | 36 |
Location |
| Address: | 1247 STUDEBAKER DR WA 99362 | Mapsco: | |
| Neighborhood: | VG Res | Map ID: | |
| Neighborhood CD: | 615011 |
Owner |
| Name: | TUCKER MATTHEW | Owner ID: | 60083 |
| Mailing Address: | NANCY ROLLER 1247 STUDEBAKER DR WALLA WALLA, WA 99362 | % Ownership: | 100.0000000000% |
| | | Exemptions: | |
Taxes and Assessment Details
Values
| (+) Improvement Homesite Value: | + | $0 | |
| (+) Improvement Non-Homesite Value: | + | $580,780 | |
| (+) Land Homesite Value: | + | $0 | |
| (+) Land Non-Homesite Value: | + | $120,000 | |
| (+) Curr Use (HS): | + | $0 | $0 |
| (+) Curr Use (NHS): | + | $0 | $0 |
| | | -------------------------- | |
| (=) Market Value: | = | $700,780 | |
| (–) Productivity Loss: | – | $0 | |
| | | -------------------------- | |
| (=) Subtotal: | = | $700,780 | |
| (+) Senior Appraised Value: | + | $0 | |
| (+) Non-Senior Appraised Value: | + | $700,780 | |
| | | -------------------------- | |
| (=) Total Appraised Value: | = | $700,780 | |
| (–) Senior Exemption Loss: | – | $0 | |
| (–) Exemption Loss: | – | $0 | |
| | | -------------------------- | |
| (=) Taxable Value: | = | $700,780 | |
Taxing Jurisdiction
| Owner: | TUCKER MATTHEW | | |
| % Ownership: | 100.0000000000% | | |
| Total Value: | $700,780 | | |
| Tax Area: | 1 - OL-140-F |
| CERFD | CURRENT EXPENSE REFUND 010 | 0.0000000000 | $700,780 | $700,780 | $0.00 | | |
| CURREXP | CURRENT EXPENSE 010 | 1.0175366760 | $700,780 | $700,780 | $713.07 | | |
| HUMNSERV | HUMAN SERVICES 119 | 0.0250000000 | $700,780 | $700,780 | $17.52 | | |
| SLDREL | SOLDIERS RELIEF 121 | 0.0155990005 | $700,780 | $700,780 | $10.93 | | |
| EMERGSER | EMS 147 | 0.3792580840 | $700,780 | $700,780 | $265.78 | | |
| EMSRFD | EMS REFUND 147 | 0.0000000000 | $700,780 | $700,780 | $0.00 | | |
| PORTRFD | PORT REFUND 640 | 0.0000000000 | $700,780 | $700,780 | $0.00 | | |
| PORTWWGEN | PORT OF WW 640 | 0.2460186015 | $700,780 | $700,780 | $172.40 | | |
| SD140BOND | SD #140 BOND 764 | 0.8342371393 | $700,780 | $700,780 | $584.62 | | |
| SD140GEN | SD #140 GENERAL 760 | 2.0646500647 | $700,780 | $700,780 | $1,446.87 | | |
| ST2 | STATE SCHOOL PART 2 600 | 0.8131451643 | $700,780 | $700,780 | $569.84 | | |
| STATESCHL | STATE SCHOOL 600 | 1.5158548041 | $700,780 | $700,780 | $1,062.28 | | |
| STREFUND | STATE REFUND LEVY 603 | 0.0000000000 | $700,780 | $700,780 | $0.00 | | |
| CWWBOND | C OF WW BOND 643 | 0.2760494372 | $700,780 | $700,780 | $193.45 | | |
| CWWGEN | CITY OF WW 631 | 1.6100204973 | $700,780 | $700,780 | $1,128.27 | | |
| CWWRFD | CITY OF WALLA WALLA REFUND 631 | 0.0000000000 | $700,780 | $700,780 | $0.00 | | |
| | Total Tax Rate: | 8.7973694689 | | | | | |
| | | | | Taxes w/Current Exemptions: | $6,165.03 | | |
| | | | | Taxes w/o Exemptions: | $6,165.03 | | |
Improvement / Building
| Improvement #1: | RESIDENTIAL | State Code: | 11 | 3067.0 sqft | Value: | $580,780 |
| Exterior Wall: | HARDBOARD | Heating/Cooling: | WARM & COOLED AIR | | Number of Bathrooms: | 3.5 | Number of Bedrooms: | 3 | | Plumbing: | 16 | Roof Covering: | COMP SHINGLE |
|
| | Type | Description | Class CD | Sub Class CD | Year Built | Area |
| | MA | Main Area | 4 | 50 | 1996 | 3067.0 |
| | SI1 | SITE IMPROVEMENT | 4 | 45 | 1996 | 5.5 |
| | UPFL | Upper Floor (included in main area) | 4 | 50 | 1996 | 1388.0 |
| | ATG | Attached Garage | 4 | 50 | 1996 | 1201.0 |
| | RPO | OPEN PORCH W/ROOF | 4 | 50 | 1996 | 72.0 |
| | WOD | Wood Deck | 4 | 50 | 1996 | 520.0 |
| | GFP | GAS FIREPLACE | 4 | 50 | 1996 | 1.0 |
| | RPO | OPEN PORCH W/ROOF | 4 | 50 | 2012 | 387.0 |
Sketch
Property Image
Land
| 1 | RES 1 | Converted: Residential | 0.3675 | 16007.00 | 0.00 | 0.00 | 1.00 | $120,000 | $0 |
Roll Value History
| 2026 | N/A | N/A | N/A | N/A | N/A |
| 2025 | $651,090 | $150,000 | $0 | $801,090 | $801,090 |
| 2024 | $609,820 | $120,000 | $0 | $729,820 | $729,820 |
| 2023 | $580,780 | $120,000 | $0 | $700,780 | $700,780 |
| 2022 | $580,780 | $95,000 | $0 | $675,780 | $675,780 |
| 2021 | $430,210 | $95,000 | $0 | $525,210 | $525,210 |
| 2020 | $409,720 | $95,000 | $0 | $504,720 | $504,720 |
| 2019 | $409,720 | $95,000 | $0 | $504,720 | $504,720 |
| 2018 | $428,930 | $50,000 | $0 | $478,930 | $478,930 |
| 2017 | $428,930 | $50,000 | $0 | $478,930 | $478,930 |
| 2016 | $428,930 | $50,000 | $0 | $478,930 | $478,930 |
| 2015 | $428,930 | $50,000 | $0 | $478,930 | $478,930 |
| 2014 | $408,500 | $50,000 | $0 | $458,500 | $458,500 |
| 2013 | $408,500 | $50,000 | $0 | $458,500 | $458,500 |
| 2012 | $398,400 | $50,000 | $0 | $0 | $0 |
| 2011 | $398,400 | $50,000 | $0 | $0 | $0 |
| 2010 | $398,400 | $50,000 | $0 | $0 | $0 |
| 2009 | $424,400 | $50,000 | $0 | $0 | $0 |
| 2008 | $424,400 | $50,000 | $0 | $0 | $0 |
| 2007 | $266,500 | $42,000 | $0 | $0 | $0 |
Deed and Sales History
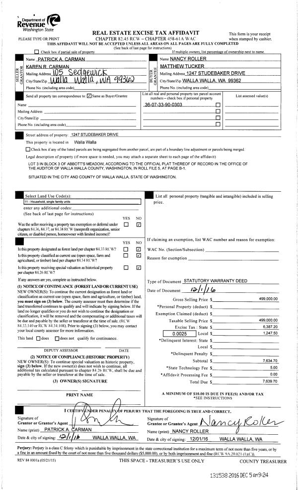
| 1 | 12/05/2016 | SWD | STATUTORY WARRANTY DEED | CARMAN PATRICK & KAREN | TUCKER MATTHEW | | | $499,000.00 | 131538 | 2016-09904 |
| 2 | 06/29/2007 | WARRANTY D | WARRANTY DEED | SCHAEFER, STEVEN J & SANDRA J | CARMAN, PATRICK & KAREN | | | $476,775.00 | 113188 | 2007-07571 |
| 3 | 02/25/2004 | WARRANTY D | WARRANTY DEED | RAMPTON, RALPH R & SHEILA R | SCHAEFER, STEVEN J & SANDRA J | | | $390,000.00 | 104131 | 2004-01979 |
| 4 | 06/02/1995 | WARRANTY D | WARRANTY DEED | | | | | $35,000.00 | 84096 | 2309-505029 |
Payout Agreement
| No payout information available.. |