Property
Account |
| Property ID: | 1249 | Abbreviated Legal Description: | BLALOCK ADDN LTS 4 & 5 BLK 5 LESS W 30' |
| Parcel Number: | 350725510514 | Agent Code: | |
| Type: | Real | | |
| Tax Area: | 1 - OL-140-F | Land Use Code | 11 |
| Open Space: | N | DFL | N |
| Historic Property: | N | Remodel Property: | N |
| Multi-Family Redevelopment: | N | | |
| Township: | 7 | Section: | 25 |
| Range: | 35 |
Location |
| Address: | 113 ARTESIA AVE WA 99362 | Mapsco: | |
| Neighborhood: | A SFR Rural/City Infl | Map ID: | |
| Neighborhood CD: | 313012 |
Owner |
| Name: | HEGEL JUSTIN E & MCKENZIE HUXOLL-HEGEL | Owner ID: | 75159 |
| Mailing Address: | 113 ARTESIA AVE WALLA WALLA, WA 99362 | % Ownership: | 100.0000000000% |
| | | Exemptions: | |
Taxes and Assessment Details
Property Tax Information as of
04/19/2026
Click on "Statement Details" to expand or collapse a tax statement.
* Please enter a valid date ** Please enter a valid date *
Statement Details |
| | TOTAL: | $0.00 | $0.00 | $0.00 | $0.00 | $0.00 | $0.00 |
|
| | $0.00 | $0.00 | $0.00 | $0.00 | $0.00 | $0.00 |
Values
| (+) Improvement Homesite Value: | + | N/A | |
| (+) Improvement Non-Homesite Value: | + | N/A | |
| (+) Land Homesite Value: | + | N/A | |
| (+) Land Non-Homesite Value: | + | N/A | Ag / Timber Use Value |
| (+) Curr Use (HS): | + | N/A | N/A |
| (+) Curr Use (NHS): | + | N/A | N/A |
| | | -------------------------- | |
| (=) Market Value: | = | N/A | |
| (–) Productivity Loss: | – | N/A | |
| | | -------------------------- | |
| (=) Subtotal: | = | N/A | |
| (+) Senior Appraised Value: | + | N/A | |
| (+) Non-Senior Appraised Value: | + | N/A | |
| | | -------------------------- | |
| (=) Total Appraised Value: | = | N/A | |
| (–) Senior Exemption Loss: | – | N/A | |
| (–) Exemption Loss: | – | N/A | |
| | | -------------------------- | |
| (=) Taxable Value: | = | N/A | |
Taxing Jurisdiction
| Owner: | HEGEL JUSTIN E & MCKENZIE HUXOLL-HEGEL | | |
| % Ownership: | 100.0000000000% | | |
| Total Value: | N/A | | |
| Tax Area: | 1 - OL-140-F |
| CERFD | CURRENT EXPENSE REFUND 010 | N/A | N/A | N/A | N/A | | |
| CURREXP | CURRENT EXPENSE 010 | N/A | N/A | N/A | N/A | | |
| HUMNSERV | HUMAN SERVICES 119 | N/A | N/A | N/A | N/A | | |
| SLDREL | SOLDIERS RELIEF 121 | N/A | N/A | N/A | N/A | | |
| EMERGSER | EMS 147 | N/A | N/A | N/A | N/A | | |
| EMSRFD | EMS REFUND 147 | N/A | N/A | N/A | N/A | | |
| PORTRFD | PORT REFUND 640 | N/A | N/A | N/A | N/A | | |
| PORTWWGEN | PORT OF WW 640 | N/A | N/A | N/A | N/A | | |
| SD140BOND | SD #140 BOND 764 | N/A | N/A | N/A | N/A | | |
| SD140GEN | SD #140 GENERAL 760 | N/A | N/A | N/A | N/A | | |
| ST2 | STATE SCHOOL PART 2 600 | N/A | N/A | N/A | N/A | | |
| STATESCHL | STATE SCHOOL 600 | N/A | N/A | N/A | N/A | | |
| STREFUND | STATE REFUND LEVY 603 | N/A | N/A | N/A | N/A | | |
| CWWBOND | C OF WW BOND 643 | N/A | N/A | N/A | N/A | | |
| CWWGEN | CITY OF WW 631 | N/A | N/A | N/A | N/A | | |
| CWWRFD | CITY OF WALLA WALLA REFUND 631 | N/A | N/A | N/A | N/A | | |
| | Total Tax Rate: | N/A | | | | | |
| | | | | Taxes w/Current Exemptions: | N/A | | |
| | | | | Taxes w/o Exemptions: | N/A | | |
Improvement / Building
| Improvement #1: | RESIDENTIAL | State Code: | 11 | 918.0 sqft | Value: | N/A |
| Exterior Wall: | HARDBOARD | Heating/Cooling: | WARM & COOLED AIR | | Number of Bathrooms: | 1 | Number of Bedrooms: | 2 | | Plumbing: | 6 | Roof Covering: | COMP SHINGLE |
|
| | Type | Description | Class CD | Sub Class CD | Year Built | Area |
| | MA | Main Area | 1 | 30 | 1910 | 918.0 |
| | DTG | Detached Garage | 1 | 30 | 0 | 400.0 |
| | SI1 | SITE IMPROVEMENT | 1 | 30 | 0 | 1.0 |
| | BASE | BASEMENT | 1 | 30 | 1910 | 350.0 |
| | DTG | Detached Garage | 1 | 30 | 1910 | 528.0 |
| | SWP | Solid Wall Porch | 1 | 30 | 1910 | 128.0 |
Sketch
Property Image
Land
| 1 | RES 1 | Converted: Residential | 0.1928 | 8400.00 | 0.00 | 0.00 | 1.00 | N/A | N/A |
Roll Value History
| 2026 | N/A | N/A | N/A | N/A | N/A |
| 2025 | $224,210 | $63,590 | $0 | $287,800 | $287,800 |
| 2024 | $172,470 | $63,590 | $0 | $236,060 | $236,060 |
| 2023 | $172,470 | $63,590 | $0 | $236,060 | $236,060 |
| 2022 | $149,970 | $63,590 | $0 | $213,560 | $213,560 |
| 2021 | $170,760 | $23,200 | $0 | $193,960 | $193,960 |
| 2020 | $170,760 | $23,200 | $0 | $193,960 | $193,960 |
| 2019 | $170,760 | $23,200 | $0 | $193,960 | $193,960 |
| 2018 | $121,970 | $23,200 | $0 | $145,170 | $145,170 |
| 2017 | $110,880 | $23,200 | $0 | $134,080 | $134,080 |
| 2016 | $100,800 | $23,200 | $0 | $124,000 | $124,000 |
| 2015 | $80,300 | $23,200 | $0 | $103,500 | $103,500 |
| 2014 | $80,300 | $23,200 | $0 | $103,500 | $103,500 |
| 2013 | $80,300 | $23,200 | $0 | $103,500 | $103,500 |
| 2012 | $80,300 | $23,200 | $0 | $0 | $0 |
| 2011 | $80,300 | $23,200 | $0 | $0 | $0 |
| 2010 | $101,600 | $23,200 | $0 | $0 | $0 |
| 2009 | $108,100 | $23,300 | $0 | $0 | $0 |
| 2008 | $58,800 | $23,300 | $0 | $0 | $0 |
| 2007 | $58,800 | $23,300 | $0 | $0 | $0 |
Deed and Sales History
| 1 | 05/02/2024 | SWD | STATUTORY WARRANTY DEED | FAILING JERRY LEE | HEGEL JUSTIN E & MCKENZIE HUXOLL-HEGEL | | 2-PARCELS | $289,900.00 | 147501 | 2024-02285 |
|   | |
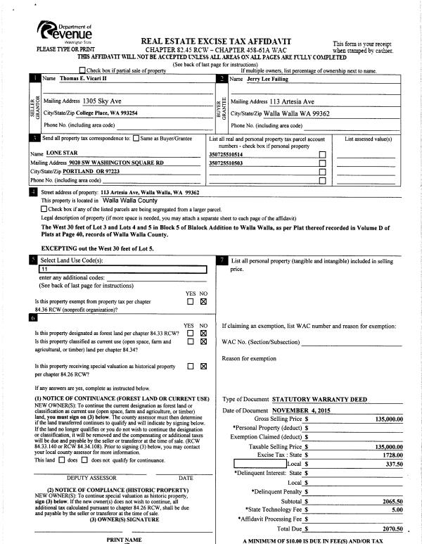
| 2 | 11/06/2015 | SWD | STATUTORY WARRANTY DEED | VICARI THOMAS E II | FAILING JERRY LEE | | 2-PARCELS | $135,000.00 | 129152 | 2015-09701 |
|   | |
| 3 | 08/15/2012 | QCD | QUIT CLAIM DEED | VICARI, SERENA | VICARI, THOMAS E II | | | $0.00 | 122494 | 2012-06995 |
| 4 | 12/05/2006 | WARRANTY D | WARRANTY DEED | LOVE-CARVER CYNTHIA | VICARI THOMAS E II | | | | 111823 | 2006-14521 |
| 5 | 11/22/2002 | WARRANTY D | WARRANTY DEED | CARVER, WILLIAM | LOVE-CARVER, CYNTHIA | | | | 0 | 02-3-00140 |
| 6 | 08/30/1999 | WARRANTY D | WARRANTY DEED | | | | | $82,000.00 | 93502 | 2889-910112 |
|   | |
Payout Agreement
| No payout information available.. |