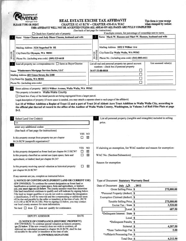
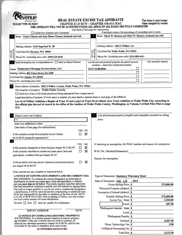
Property
Account |
| Property ID: | 12461 | Abbreviated Legal Description: | REPLAT OF ABBOTT ACRE TRACTS (AKA WILBUR ADDN) LOT 10 |
| Parcel Number: | 360733880010 | Agent Code: | |
| Type: | Real | | |
| Tax Area: | 105 - 140-F-4 | Land Use Code | 11 |
| Open Space: | N | DFL | N |
| Historic Property: | N | Remodel Property: | N |
| Multi-Family Redevelopment: | N | | |
| Township: | 7 | Section: | 33 |
| Range: | 36 |
Location |
| Address: | 1852 S WILBUR AVE WA 99362 | Mapsco: | |
| Neighborhood: | VG Res | Map ID: | |
| Neighborhood CD: | 615011 |
Owner |
| Name: | HANSON MARK W & MARI W | Owner ID: | 51415 |
| Mailing Address: | 1852 S WILBUR AVE WALLA WALLA, WA 99362 | % Ownership: | 100.0000000000% |
| | | Exemptions: | |
Taxes and Assessment Details
Property Tax Information as of
02/21/2026
Click on "Statement Details" to expand or collapse a tax statement.
* Please enter a valid date ** Please enter a valid date *
Statement Details |
| | TOTAL: | $0.00 | $0.00 | $0.00 | $0.00 | $0.00 | $0.00 |
|
| | $0.00 | $0.00 | $0.00 | $0.00 | $0.00 | $0.00 |
Values
| (+) Improvement Homesite Value: | + | $0 | |
| (+) Improvement Non-Homesite Value: | + | $573,080 | |
| (+) Land Homesite Value: | + | $0 | |
| (+) Land Non-Homesite Value: | + | $198,590 | |
| (+) Curr Use (HS): | + | $0 | $0 |
| (+) Curr Use (NHS): | + | $0 | $0 |
| | | -------------------------- | |
| (=) Market Value: | = | $771,670 | |
| (–) Productivity Loss: | – | $0 | |
| | | -------------------------- | |
| (=) Subtotal: | = | $771,670 | |
| (+) Senior Appraised Value: | + | $0 | |
| (+) Non-Senior Appraised Value: | + | $771,670 | |
| | | -------------------------- | |
| (=) Total Appraised Value: | = | $771,670 | |
| (–) Senior Exemption Loss: | – | $0 | |
| (–) Exemption Loss: | – | $0 | |
| | | -------------------------- | |
| (=) Taxable Value: | = | $771,670 | |
Taxing Jurisdiction
| Owner: | HANSON MARK W & MARI W | | |
| % Ownership: | 100.0000000000% | | |
| Total Value: | $771,670 | | |
| Tax Area: | 105 - 140-F-4 |
| CERFD | CURRENT EXPENSE REFUND 010 | 0.0000000000 | $771,670 | $771,670 | $0.00 | | |
| CURREXP | CURRENT EXPENSE 010 | 0.9851088983 | $771,670 | $771,670 | $760.18 | | |
| HUMNSERV | HUMAN SERVICES 119 | 0.0250000000 | $771,670 | $771,670 | $19.29 | | |
| SLDREL | SOLDIERS RELIEF 121 | 0.0155990000 | $771,670 | $771,670 | $12.04 | | |
| EMERGSER | EMS 147 | 0.3676811629 | $771,670 | $771,670 | $283.73 | | |
| EMSRFD | EMS REFUND 147 | 0.0000000000 | $771,670 | $771,670 | $0.00 | | |
| FD4EXP | FD #4 EXPENSE 686 | 1.2367913128 | $771,670 | $771,670 | $954.39 | | |
| RLBRFD | RURAL LIBRARY REFUND 623 | 0.0000000000 | $771,670 | $771,670 | $0.00 | | |
| RURALLIB | RURAL LIBRARY 623 | 0.3601547782 | $771,670 | $771,670 | $277.92 | | |
| PORTRFD | PORT REFUND 640 | 0.0000000000 | $771,670 | $771,670 | $0.00 | | |
| PORTWWGEN | PORT OF WW 640 | 0.2344301070 | $771,670 | $771,670 | $180.90 | | |
| SD140BOND | SD #140 BOND 764 | 0.8032434458 | $771,670 | $771,670 | $619.84 | | |
| SD140CAP | SD #140 CAP 762 | 0.3840034221 | $771,670 | $771,670 | $296.32 | | |
| SD140GEN | SD #140 GENERAL 760 | 2.4999999996 | $771,670 | $771,670 | $1,929.18 | | |
| ST2 | STATE SCHOOL PART 2 600 | 0.8853714103 | $771,670 | $771,670 | $683.21 | | |
| STATESCHL | STATE SCHOOL 600 | 1.6424571473 | $771,670 | $771,670 | $1,267.43 | | |
| STREFUND | STATE REFUND LEVY 603 | 0.0000000000 | $771,670 | $771,670 | $0.00 | | |
| COROAD | COUNTY ROAD 115 | 1.6137667997 | $771,670 | $771,670 | $1,245.30 | | |
| CRPRD | COUNTY ROAD REFUND 115 | 0.0000000000 | $771,670 | $771,670 | $0.00 | | |
| | Total Tax Rate: | 11.0536074840 | | | | | |
| | | | | Taxes w/Current Exemptions: | $8,529.73 | | |
| | | | | Taxes w/o Exemptions: | $8,529.73 | | |
Improvement / Building
| Improvement #1: | RESIDENTIAL | State Code: | 11 | 1680.0 sqft | Value: | $573,080 |
| Exterior Wall: | MASONRY VENEER | Heating/Cooling: | WARM & COOLED AIR | | Number of Bathrooms: | 2 | Number of Bedrooms: | 2 | | Plumbing: | 9 | Roof Covering: | COMP SHINGLE |
|
| | Type | Description | Class CD | Sub Class CD | Year Built | Area |
| | MA | Main Area | 1 | 40 | 1947 | 1680.0 |
| | SI1 | SITE IMPROVEMENT | 1 | 40 | 1947 | 4.0 |
| | BASE | BASEMENT | 1 | 40 | 1947 | 1530.0 |
| | BPF | BASEMENT -PARTITIONED FINISH | 1 | 40 | 1947 | 1530.0 |
| | ATG | Attached Garage | 1 | 40 | 1947 | 400.0 |
| | RPS | PORCH W/STEPS,ROOF | 1 | 40 | 1947 | 28.0 |
| | WOD | Wood Deck | 1 | 40 | 1947 | 378.0 |
| | D2F | Double 2 Story Fireplace | 1 | 40 | 1947 | 1.0 |
| | BARN | BARN-AVE | 1 | 40 | 1947 | 600.0 |
Sketch
Property Image
Land
| 1 | RES 1 | Converted: Residential | 0.9700 | 42253.00 | 0.00 | 0.00 | 1.00 | $198,590 | $0 |
Roll Value History
| 2026 | N/A | N/A | N/A | N/A | N/A |
| 2025 | $573,080 | $198,590 | $0 | $771,670 | $771,670 |
| 2024 | $571,270 | $178,730 | $0 | $750,000 | $750,000 |
| 2023 | $523,680 | $178,730 | $0 | $702,410 | $702,410 |
| 2022 | $480,380 | $149,150 | $0 | $629,530 | $629,530 |
| 2021 | $343,130 | $149,150 | $0 | $492,280 | $492,280 |
| 2020 | $245,090 | $149,150 | $0 | $394,240 | $394,240 |
| 2019 | $245,090 | $149,150 | $0 | $394,240 | $394,240 |
| 2018 | $217,490 | $87,300 | $0 | $304,790 | $304,790 |
| 2017 | $197,720 | $87,300 | $0 | $285,020 | $285,020 |
| 2016 | $197,720 | $87,300 | $0 | $285,020 | $285,020 |
| 2015 | $197,720 | $87,300 | $0 | $285,020 | $285,020 |
| 2014 | $188,300 | $87,300 | $0 | $275,600 | $275,600 |
| 2013 | $188,300 | $87,300 | $0 | $275,600 | $275,600 |
| 2012 | $268,100 | $87,300 | $0 | $0 | $0 |
| 2011 | $239,000 | $116,400 | $0 | $0 | $0 |
| 2010 | $239,000 | $116,400 | $0 | $0 | $0 |
| 2009 | $259,700 | $116,400 | $0 | $0 | $0 |
| 2008 | $259,700 | $116,400 | $0 | $0 | $0 |
| 2007 | $190,900 | $42,700 | $0 | $0 | $0 |
Deed and Sales History
| 1 | 07/16/2012 | WARRANTY D | WARRANTY DEED | CHACON, VICTOR & JUDY D | HANSON, MARK W & MARI W | | | $275,000.00 | 122344 | 2012-06008 |
| 2 | 01/04/1989 | WARRANTY D | WARRANTY DEED | | | | | $24,000.00 | 0 | 8503-107 |
|   | |
Payout Agreement
| No payout information available.. |