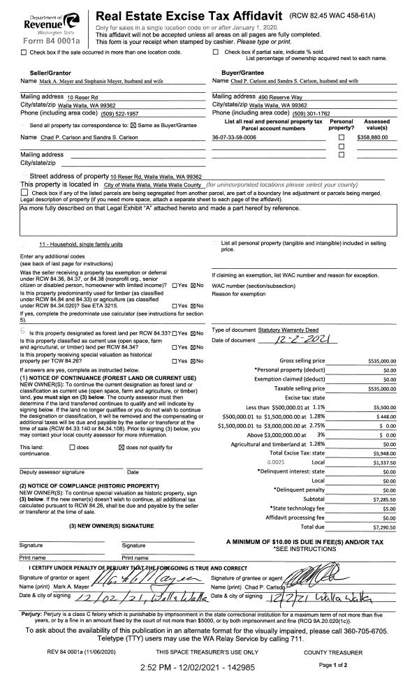
Property
Account |
| Property ID: | 12449 | Abbreviated Legal Description: | PROSPECT POINT SOUTH LOT 6 |
| Parcel Number: | 360733580006 | Agent Code: | |
| Type: | Real | | |
| Tax Area: | 1 - OL-140-F | Land Use Code | 11 |
| Open Space: | N | DFL | N |
| Historic Property: | N | Remodel Property: | N |
| Multi-Family Redevelopment: | N | | |
| Township: | 7 | Section: | 33 |
| Range: | 36 |
Location |
| Address: | 10 RESER RD WA 99362 | Mapsco: | |
| Neighborhood: | G Res Rural/City Inf | Map ID: | |
| Neighborhood CD: | 614012 |
Owner |
| Name: | CARLSON CHAD P & SANDRA S | Owner ID: | 70723 |
| Mailing Address: | 10 RESER RD WALLA WALLA, WA 99362 | % Ownership: | 100.0000000000% |
| | | Exemptions: | |
Taxes and Assessment Details
Property Tax Information as of
02/21/2026
Click on "Statement Details" to expand or collapse a tax statement.
* Please enter a valid date ** Please enter a valid date *
Statement Details |
| | TOTAL: | $0.00 | $0.00 | $0.00 | $0.00 | $0.00 | $0.00 |
|
| | $0.00 | $0.00 | $0.00 | $0.00 | $0.00 | $0.00 |
Values
| (+) Improvement Homesite Value: | + | $0 | |
| (+) Improvement Non-Homesite Value: | + | $491,630 | |
| (+) Land Homesite Value: | + | $0 | |
| (+) Land Non-Homesite Value: | + | $129,670 | |
| (+) Curr Use (HS): | + | $0 | $0 |
| (+) Curr Use (NHS): | + | $0 | $0 |
| | | -------------------------- | |
| (=) Market Value: | = | $621,300 | |
| (–) Productivity Loss: | – | $0 | |
| | | -------------------------- | |
| (=) Subtotal: | = | $621,300 | |
| (+) Senior Appraised Value: | + | $0 | |
| (+) Non-Senior Appraised Value: | + | $621,300 | |
| | | -------------------------- | |
| (=) Total Appraised Value: | = | $621,300 | |
| (–) Senior Exemption Loss: | – | $0 | |
| (–) Exemption Loss: | – | $0 | |
| | | -------------------------- | |
| (=) Taxable Value: | = | $621,300 | |
Taxing Jurisdiction
| Owner: | CARLSON CHAD P & SANDRA S | | |
| % Ownership: | 100.0000000000% | | |
| Total Value: | $621,300 | | |
| Tax Area: | 1 - OL-140-F |
| CERFD | CURRENT EXPENSE REFUND 010 | 0.0000000000 | $621,300 | $621,300 | $0.00 | | |
| CURREXP | CURRENT EXPENSE 010 | 1.0175366760 | $621,300 | $621,300 | $632.20 | | |
| HUMNSERV | HUMAN SERVICES 119 | 0.0250000000 | $621,300 | $621,300 | $15.53 | | |
| SLDREL | SOLDIERS RELIEF 121 | 0.0155990005 | $621,300 | $621,300 | $9.69 | | |
| EMERGSER | EMS 147 | 0.3792580840 | $621,300 | $621,300 | $235.63 | | |
| EMSRFD | EMS REFUND 147 | 0.0000000000 | $621,300 | $621,300 | $0.00 | | |
| PORTRFD | PORT REFUND 640 | 0.0000000000 | $621,300 | $621,300 | $0.00 | | |
| PORTWWGEN | PORT OF WW 640 | 0.2460186015 | $621,300 | $621,300 | $152.85 | | |
| SD140BOND | SD #140 BOND 764 | 0.8342371393 | $621,300 | $621,300 | $518.31 | | |
| SD140GEN | SD #140 GENERAL 760 | 2.0646500647 | $621,300 | $621,300 | $1,282.77 | | |
| ST2 | STATE SCHOOL PART 2 600 | 0.8131451643 | $621,300 | $621,300 | $505.21 | | |
| STATESCHL | STATE SCHOOL 600 | 1.5158548041 | $621,300 | $621,300 | $941.80 | | |
| STREFUND | STATE REFUND LEVY 603 | 0.0000000000 | $621,300 | $621,300 | $0.00 | | |
| CWWBOND | C OF WW BOND 643 | 0.2760494372 | $621,300 | $621,300 | $171.51 | | |
| CWWGEN | CITY OF WW 631 | 1.6100204973 | $621,300 | $621,300 | $1,000.31 | | |
| CWWRFD | CITY OF WALLA WALLA REFUND 631 | 0.0000000000 | $621,300 | $621,300 | $0.00 | | |
| | Total Tax Rate: | 8.7973694689 | | | | | |
| | | | | Taxes w/Current Exemptions: | $5,465.81 | | |
| | | | | Taxes w/o Exemptions: | $5,465.81 | | |
Improvement / Building
| Improvement #1: | RESIDENTIAL | State Code: | 11 | 1823.0 sqft | Value: | $491,630 |
| Exterior Wall: | PLYWOOD | Heating/Cooling: | WARM & COOLED AIR | | Number of Bathrooms: | 3 | Number of Bedrooms: | 4 | | Plumbing: | 15 | Roof Covering: | COMP SHINGLE |
|
| | Type | Description | Class CD | Sub Class CD | Year Built | Area |
| | MA | Main Area | 1 | 35 | 1974 | 1823.0 |
| | SI1 | SITE IMPROVEMENT | 1 | 35 | 1974 | 5.0 |
| | BASE | BASEMENT | 1 | 35 | 1974 | 1535.0 |
| | BPF | BASEMENT -PARTITIONED FINISH | 1 | 35 | 1974 | 1023.0 |
| | ATG | Attached Garage | 1 | 35 | 1974 | 532.0 |
| | RPO | OPEN PORCH W/ROOF | 1 | 35 | 1974 | 90.0 |
| | WOD | Wood Deck | 1 | 35 | 1974 | 199.0 |
| | S1F | Single One Story Fireplace | 1 | 35 | 1974 | 1.0 |
| | WOD | Wood Deck | 1 | 35 | 1974 | 199.0 |
Sketch
Property Image
Land
| 1 | RES 1 | Converted: Residential | 0.5054 | 22015.00 | 0.00 | 0.00 | 1.00 | $129,670 | $0 |
Roll Value History
| 2026 | N/A | N/A | N/A | N/A | N/A |
| 2025 | $454,020 | $152,340 | $0 | $606,360 | $606,360 |
| 2024 | $491,630 | $129,670 | $0 | $621,300 | $621,300 |
| 2023 | $491,630 | $129,670 | $0 | $621,300 | $621,300 |
| 2022 | $517,500 | $78,750 | $0 | $596,250 | $596,250 |
| 2021 | $378,180 | $78,750 | $0 | $456,930 | $456,930 |
| 2020 | $280,130 | $78,750 | $0 | $358,880 | $358,880 |
| 2019 | $280,130 | $78,750 | $0 | $358,880 | $358,880 |
| 2018 | $280,130 | $57,300 | $0 | $337,430 | $337,430 |
| 2017 | $254,660 | $57,300 | $0 | $311,960 | $311,960 |
| 2016 | $254,660 | $57,300 | $0 | $311,960 | $311,960 |
| 2015 | $242,540 | $57,300 | $0 | $299,840 | $299,840 |
| 2014 | $210,900 | $57,300 | $0 | $268,200 | $268,200 |
| 2013 | $210,900 | $57,300 | $0 | $268,200 | $268,200 |
| 2012 | $210,900 | $57,300 | $0 | $0 | $0 |
| 2011 | $210,900 | $57,300 | $0 | $0 | $0 |
| 2010 | $210,900 | $57,300 | $0 | $0 | $0 |
| 2009 | $240,700 | $57,300 | $0 | $0 | $0 |
| 2008 | $240,700 | $57,300 | $0 | $0 | $0 |
| 2007 | $163,600 | $34,800 | $0 | $0 | $0 |
Deed and Sales History
| 1 | 12/02/2021 | SWD | STATUTORY WARRANTY DEED | MAYER MARK A & STEPHANIE | CARLSON CHAD P & SANDRA S | | | $535,000.00 | 142985 | 2021-14243 |
| 2 | 05/20/1992 | WARRANTY D | WARRANTY DEED | | | | | $169,000.00 | 76887 | 1979-204406 |
Payout Agreement
| No payout information available.. |