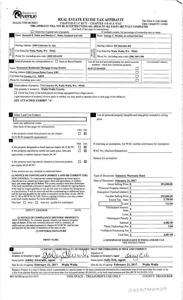
Property
Account |
| Property ID: | 12432 | Abbreviated Legal Description: | MT VIEW REPLAT LESS N 10' LOT 20 BLK 4; TAX 1 LOT 19 BLK 4 |
| Parcel Number: | 360733540420 | Agent Code: | |
| Type: | Real | | |
| Tax Area: | 1 - OL-140-F | Land Use Code | 11 |
| Open Space: | N | DFL | N |
| Historic Property: | N | Remodel Property: | N |
| Multi-Family Redevelopment: | N | | |
| Township: | 7 | Section: | 33 |
| Range: | 36 |
Location |
| Address: | 774 CRESTVIEW PL WA 99362 | Mapsco: | |
| Neighborhood: | G Res | Map ID: | |
| Neighborhood CD: | 614011 |
Owner |
| Name: | STRABEL GEORGE CLIFF | Owner ID: | 43855 |
| Mailing Address: | 525 SHERIDAN RD WALLA WALLA, WA 99362 | % Ownership: | 100.0000000000% |
| | | Exemptions: | |
Taxes and Assessment Details
Property Tax Information as of
02/21/2026
Click on "Statement Details" to expand or collapse a tax statement.
* Please enter a valid date ** Please enter a valid date *
Statement Details |
| | TOTAL: | $0.00 | $0.00 | $0.00 | $0.00 | $0.00 | $0.00 |
|
| | $0.00 | $0.00 | $0.00 | $0.00 | $0.00 | $0.00 |
Values
| (+) Improvement Homesite Value: | + | $0 | |
| (+) Improvement Non-Homesite Value: | + | $574,520 | |
| (+) Land Homesite Value: | + | $0 | |
| (+) Land Non-Homesite Value: | + | $131,720 | |
| (+) Curr Use (HS): | + | $0 | $0 |
| (+) Curr Use (NHS): | + | $0 | $0 |
| | | -------------------------- | |
| (=) Market Value: | = | $706,240 | |
| (–) Productivity Loss: | – | $0 | |
| | | -------------------------- | |
| (=) Subtotal: | = | $706,240 | |
| (+) Senior Appraised Value: | + | $0 | |
| (+) Non-Senior Appraised Value: | + | $706,240 | |
| | | -------------------------- | |
| (=) Total Appraised Value: | = | $706,240 | |
| (–) Senior Exemption Loss: | – | $0 | |
| (–) Exemption Loss: | – | $0 | |
| | | -------------------------- | |
| (=) Taxable Value: | = | $706,240 | |
Taxing Jurisdiction
| Owner: | STRABEL GEORGE CLIFF | | |
| % Ownership: | 100.0000000000% | | |
| Total Value: | $706,240 | | |
| Tax Area: | 1 - OL-140-F |
| CERFD | CURRENT EXPENSE REFUND 010 | 0.0000000000 | $706,240 | $706,240 | $0.00 | | |
| CURREXP | CURRENT EXPENSE 010 | 1.0175366760 | $706,240 | $706,240 | $718.63 | | |
| HUMNSERV | HUMAN SERVICES 119 | 0.0250000000 | $706,240 | $706,240 | $17.66 | | |
| SLDREL | SOLDIERS RELIEF 121 | 0.0155990005 | $706,240 | $706,240 | $11.02 | | |
| EMERGSER | EMS 147 | 0.3792580840 | $706,240 | $706,240 | $267.85 | | |
| EMSRFD | EMS REFUND 147 | 0.0000000000 | $706,240 | $706,240 | $0.00 | | |
| PORTRFD | PORT REFUND 640 | 0.0000000000 | $706,240 | $706,240 | $0.00 | | |
| PORTWWGEN | PORT OF WW 640 | 0.2460186015 | $706,240 | $706,240 | $173.75 | | |
| SD140BOND | SD #140 BOND 764 | 0.8342371393 | $706,240 | $706,240 | $589.17 | | |
| SD140GEN | SD #140 GENERAL 760 | 2.0646500647 | $706,240 | $706,240 | $1,458.14 | | |
| ST2 | STATE SCHOOL PART 2 600 | 0.8131451643 | $706,240 | $706,240 | $574.28 | | |
| STATESCHL | STATE SCHOOL 600 | 1.5158548041 | $706,240 | $706,240 | $1,070.56 | | |
| STREFUND | STATE REFUND LEVY 603 | 0.0000000000 | $706,240 | $706,240 | $0.00 | | |
| CWWBOND | C OF WW BOND 643 | 0.2760494372 | $706,240 | $706,240 | $194.96 | | |
| CWWGEN | CITY OF WW 631 | 1.6100204973 | $706,240 | $706,240 | $1,137.06 | | |
| CWWRFD | CITY OF WALLA WALLA REFUND 631 | 0.0000000000 | $706,240 | $706,240 | $0.00 | | |
| | Total Tax Rate: | 8.7973694689 | | | | | |
| | | | | Taxes w/Current Exemptions: | $6,213.08 | | |
| | | | | Taxes w/o Exemptions: | $6,213.08 | | |
Improvement / Building
| Improvement #1: | RESIDENTIAL | State Code: | 11 | 1932.0 sqft | Value: | $574,520 |
| Exterior Wall: | SIDING | Heating/Cooling: | WARM & COOLED AIR | | Number of Bathrooms: | 2 | Number of Bedrooms: | 3 | | Plumbing: | 10 | Roof Covering: | COMP SHINGLE |
|
| | Type | Description | Class CD | Sub Class CD | Year Built | Area |
| | MA | Main Area | 1 | 40 | 1952 | 1932.0 |
| | SI1 | SITE IMPROVEMENT | 1 | 40 | 1952 | 5.0 |
| | BASE | BASEMENT | 1 | 40 | 1952 | 1278.0 |
| | BPF | BASEMENT -PARTITIONED FINISH | 1 | 40 | 2021 | 1278.0 |
| | D2F | Double 2 Story Fireplace | 1 | 40 | 1952 | 1.0 |
| | RPC | OPEN PORCH W/ROOF , CEILED | 1 | 40 | 1952 | 161.0 |
| | CPC | COVERED CARPORT/PATIO | 1 | 40 | 1952 | 169.0 |
| | ATG | Attached Garage | 1 | 40 | 1952 | 483.0 |
Sketch
Property Image
Land
| 1 | RES 1 | Converted: Residential | 0.5600 | 24392.00 | 0.00 | 0.00 | 1.00 | $131,720 | $0 |
Roll Value History
| 2026 | N/A | N/A | N/A | N/A | N/A |
| 2025 | $552,530 | $154,160 | $0 | $706,690 | $706,690 |
| 2024 | $574,520 | $131,720 | $0 | $706,240 | $706,240 |
| 2023 | $574,520 | $131,720 | $0 | $706,240 | $706,240 |
| 2022 | $574,520 | $107,330 | $0 | $681,850 | $681,850 |
| 2021 | $478,770 | $107,330 | $0 | $586,100 | $586,100 |
| 2020 | $296,170 | $107,330 | $0 | $403,500 | $403,500 |
| 2019 | $296,170 | $107,330 | $0 | $403,500 | $403,500 |
| 2018 | $327,440 | $59,400 | $0 | $386,840 | $386,840 |
| 2017 | $228,900 | $59,400 | $0 | $288,300 | $288,300 |
| 2016 | $228,900 | $59,400 | $0 | $288,300 | $288,300 |
| 2015 | $228,900 | $59,400 | $0 | $288,300 | $288,300 |
| 2014 | $228,900 | $59,400 | $0 | $288,300 | $288,300 |
| 2013 | $228,900 | $59,400 | $0 | $288,300 | $288,300 |
| 2012 | $228,900 | $59,400 | $0 | $0 | $0 |
| 2011 | $228,900 | $59,400 | $0 | $0 | $0 |
| 2010 | $202,700 | $59,400 | $0 | $0 | $0 |
| 2009 | $231,800 | $59,400 | $0 | $0 | $0 |
| 2008 | $231,800 | $59,400 | $0 | $0 | $0 |
| 2007 | $145,200 | $36,900 | $0 | $0 | $0 |
Deed and Sales History
| 1 | 02/24/2017 | SWD | STATUTORY WARRANTY DEED | NOBLE KENNETH E | STRABEL GEORGE CLIFF | | | $293,000.00 | 131943 | 2017-01480 |
| 2 | 09/18/1974 | WARRANTY D | WARRANTY DEED | | | | | $43,000.00 | 0 | 2005-39827 |
Payout Agreement
| No payout information available.. |