Property
Account |
| Property ID: | 12430 | Abbreviated Legal Description: | MT VIEW REPLAT W 75' OF LOT 17 BLK 4 |
| Parcel Number: | 360733540417 | Agent Code: | |
| Type: | Real | | |
| Tax Area: | 1 - OL-140-F | Land Use Code | 11 |
| Open Space: | N | DFL | N |
| Historic Property: | N | Remodel Property: | N |
| Multi-Family Redevelopment: | N | | |
| Township: | 7 | Section: | 33 |
| Range: | 36 |
Location |
| Address: | 750 CRESTVIEW PL WA 99362 | Mapsco: | |
| Neighborhood: | G Res | Map ID: | |
| Neighborhood CD: | 614011 |
Owner |
| Name: | BUTENHOFF JACOB | Owner ID: | 71018 |
| Mailing Address: | 1735 HIGHLAND RD WALLA WALLA, WA 99362 | % Ownership: | 100.0000000000% |
| | | Exemptions: | |
Taxes and Assessment Details
Values
| (+) Improvement Homesite Value: | + | $0 | |
| (+) Improvement Non-Homesite Value: | + | $265,300 | |
| (+) Land Homesite Value: | + | $0 | |
| (+) Land Non-Homesite Value: | + | $90,000 | |
| (+) Curr Use (HS): | + | $0 | $0 |
| (+) Curr Use (NHS): | + | $0 | $0 |
| | | -------------------------- | |
| (=) Market Value: | = | $355,300 | |
| (–) Productivity Loss: | – | $0 | |
| | | -------------------------- | |
| (=) Subtotal: | = | $355,300 | |
| (+) Senior Appraised Value: | + | $0 | |
| (+) Non-Senior Appraised Value: | + | $355,300 | |
| | | -------------------------- | |
| (=) Total Appraised Value: | = | $355,300 | |
| (–) Senior Exemption Loss: | – | $0 | |
| (–) Exemption Loss: | – | $0 | |
| | | -------------------------- | |
| (=) Taxable Value: | = | $355,300 | |
Taxing Jurisdiction
| Owner: | BUTENHOFF JACOB | | |
| % Ownership: | 100.0000000000% | | |
| Total Value: | $355,300 | | |
| Tax Area: | 1 - OL-140-F |
| CERFD | CURRENT EXPENSE REFUND 010 | 0.0000000000 | $355,300 | $355,300 | $0.00 | | |
| CURREXP | CURRENT EXPENSE 010 | 1.0175366760 | $355,300 | $355,300 | $361.53 | | |
| HUMNSERV | HUMAN SERVICES 119 | 0.0250000000 | $355,300 | $355,300 | $8.88 | | |
| SLDREL | SOLDIERS RELIEF 121 | 0.0155990005 | $355,300 | $355,300 | $5.54 | | |
| EMERGSER | EMS 147 | 0.3792580840 | $355,300 | $355,300 | $134.75 | | |
| EMSRFD | EMS REFUND 147 | 0.0000000000 | $355,300 | $355,300 | $0.00 | | |
| PORTRFD | PORT REFUND 640 | 0.0000000000 | $355,300 | $355,300 | $0.00 | | |
| PORTWWGEN | PORT OF WW 640 | 0.2460186015 | $355,300 | $355,300 | $87.41 | | |
| SD140BOND | SD #140 BOND 764 | 0.8342371393 | $355,300 | $355,300 | $296.40 | | |
| SD140GEN | SD #140 GENERAL 760 | 2.0646500647 | $355,300 | $355,300 | $733.57 | | |
| ST2 | STATE SCHOOL PART 2 600 | 0.8131451643 | $355,300 | $355,300 | $288.91 | | |
| STATESCHL | STATE SCHOOL 600 | 1.5158548041 | $355,300 | $355,300 | $538.58 | | |
| STREFUND | STATE REFUND LEVY 603 | 0.0000000000 | $355,300 | $355,300 | $0.00 | | |
| CWWBOND | C OF WW BOND 643 | 0.2760494372 | $355,300 | $355,300 | $98.08 | | |
| CWWGEN | CITY OF WW 631 | 1.6100204973 | $355,300 | $355,300 | $572.04 | | |
| CWWRFD | CITY OF WALLA WALLA REFUND 631 | 0.0000000000 | $355,300 | $355,300 | $0.00 | | |
| | Total Tax Rate: | 8.7973694689 | | | | | |
| | | | | Taxes w/Current Exemptions: | $3,125.69 | | |
| | | | | Taxes w/o Exemptions: | $3,125.69 | | |
Improvement / Building
| Improvement #1: | RESIDENTIAL | State Code: | 11 | 1487.0 sqft | Value: | $265,300 |
| Exterior Wall: | SIDING | Foundation: | SLAB FOUNDATION | | Heating/Cooling: | BASEBOARD HOT WATER | Number of Bathrooms: | 2 | | Number of Bedrooms: | 2 | Plumbing: | 9 | | Roof Covering: | COMP SHINGLE |   |   |
|
| | Type | Description | Class CD | Sub Class CD | Year Built | Area |
| | MA | Main Area | 1 | 35 | 1953 | 1487.0 |
| | SI1 | SITE IMPROVEMENT | 1 | 35 | 1953 | 3.0 |
| | ATG | Attached Garage | 1 | 35 | 1953 | 506.0 |
| | WOD | Wood Deck | 1 | 35 | 1953 | 120.0 |
| | S2F | Single 2S Fireplace | 1 | 35 | 1953 | 1.0 |
| | RPC | OPEN PORCH W/ROOF , CEILED | 1 | 35 | 1953 | 30.0 |
| | WDR | WOOD DECK W/ROOF | 1 | 35 | 1953 | 200.0 |
Sketch
Property Image
Land
| 1 | RES 1 | Converted: Residential | 0.2066 | 9000.00 | 0.00 | 0.00 | 1.00 | $90,000 | $0 |
Roll Value History
| 2026 | N/A | N/A | N/A | N/A | N/A |
| 2025 | $290,310 | $108,000 | $0 | $398,310 | $398,310 |
| 2024 | $265,300 | $90,000 | $0 | $355,300 | $355,300 |
| 2023 | $265,300 | $90,000 | $0 | $355,300 | $355,300 |
| 2022 | $265,300 | $74,250 | $0 | $339,550 | $339,550 |
| 2021 | $252,670 | $74,250 | $0 | $326,920 | $326,920 |
| 2020 | $153,130 | $74,250 | $0 | $227,380 | $227,380 |
| 2019 | $153,130 | $74,250 | $0 | $227,380 | $227,380 |
| 2018 | $152,340 | $46,300 | $0 | $198,640 | $198,640 |
| 2017 | $138,490 | $46,300 | $0 | $184,790 | $184,790 |
| 2016 | $125,900 | $46,300 | $0 | $172,200 | $172,200 |
| 2015 | $125,900 | $46,300 | $0 | $172,200 | $172,200 |
| 2014 | $125,900 | $46,300 | $0 | $172,200 | $172,200 |
| 2013 | $125,900 | $46,300 | $0 | $172,200 | $172,200 |
| 2012 | $125,900 | $46,300 | $0 | $0 | $0 |
| 2011 | $125,900 | $46,300 | $0 | $0 | $0 |
| 2010 | $111,700 | $46,300 | $0 | $0 | $0 |
| 2009 | $129,200 | $46,300 | $0 | $0 | $0 |
| 2008 | $129,200 | $46,300 | $0 | $0 | $0 |
| 2007 | $94,300 | $23,800 | $0 | $0 | $0 |
Deed and Sales History
| 1 | 09/26/2023 | SWD | STATUTORY WARRANTY DEED | BUTENHOFF JACOB | MILLER RICHARD JAMES II & MICHELE KAYE | | | $400,000.00 | 146524 | 2023-05617 |
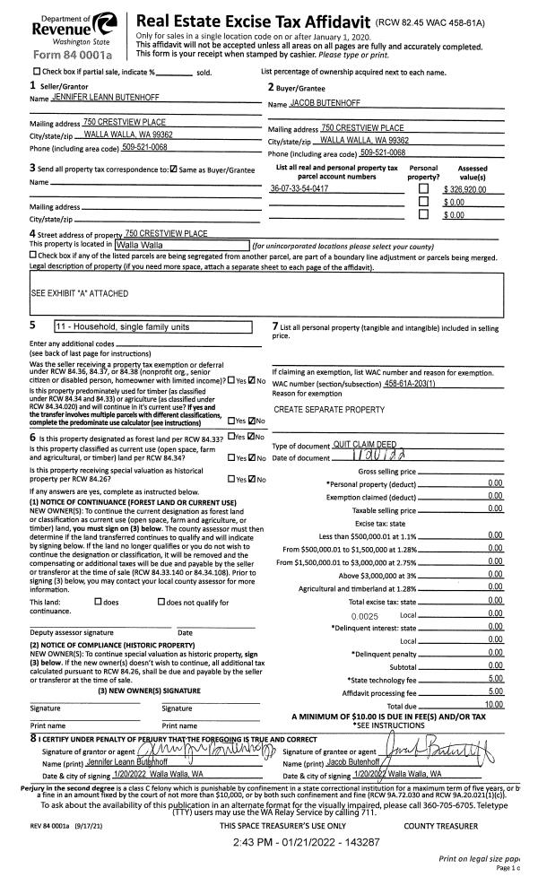
| 2 | 01/21/2022 | QCD | QUIT CLAIM DEED | BUTENHOFF JENNIFER LEANN | BUTENHOFF JACOB | | | | 143287 | 2022-00677 |
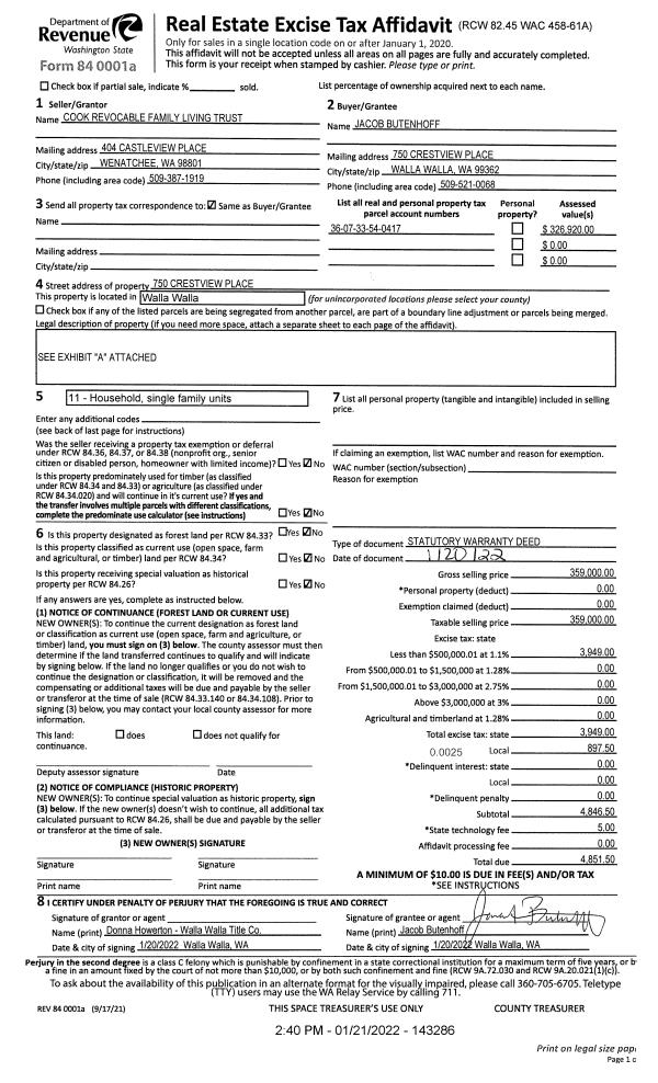
| 3 | 01/21/2022 | SWD | STATUTORY WARRANTY DEED | COOK REVOCABLE FMLY LIVING TST | BUTENHOFF JACOB | | | $359,000.00 | 143286 | 2022-00676 |
| 4 | 09/11/1990 | WARRANTY D | WARRANTY DEED | | | | | $60,000.00 | 0 | 1849-006339 |
Payout Agreement
| No payout information available.. |