Property
Account |
| Property ID: | 12426 | Abbreviated Legal Description: | MT VIEW REPLAT LOT 5 BLK 4 |
| Parcel Number: | 360733540405 | Agent Code: | |
| Type: | Real | | |
| Tax Area: | 1 - OL-140-F | Land Use Code | 11 |
| Open Space: | N | DFL | N |
| Historic Property: | N | Remodel Property: | N |
| Multi-Family Redevelopment: | N | | |
| Township: | 7 | Section: | 33 |
| Range: | 36 |
Location |
| Address: | 1801 HILBROOKE DR WA 99362 | Mapsco: | |
| Neighborhood: | G Res | Map ID: | |
| Neighborhood CD: | 614011 |
Owner |
| Name: | RESTATED ROBERT S BUTT | Owner ID: | 71664 |
| Mailing Address: | BARBARA K WILSON RVCBL TRST 1801 HILBROOKE DR WALLA WALLA, WA 99362 | % Ownership: | 100.0000000000% |
| | | Exemptions: | |
Taxes and Assessment Details
Values
| (+) Improvement Homesite Value: | + | $0 | |
| (+) Improvement Non-Homesite Value: | + | $495,770 | |
| (+) Land Homesite Value: | + | $0 | |
| (+) Land Non-Homesite Value: | + | $124,160 | |
| (+) Curr Use (HS): | + | $0 | $0 |
| (+) Curr Use (NHS): | + | $0 | $0 |
| | | -------------------------- | |
| (=) Market Value: | = | $619,930 | |
| (–) Productivity Loss: | – | $0 | |
| | | -------------------------- | |
| (=) Subtotal: | = | $619,930 | |
| (+) Senior Appraised Value: | + | $0 | |
| (+) Non-Senior Appraised Value: | + | $619,930 | |
| | | -------------------------- | |
| (=) Total Appraised Value: | = | $619,930 | |
| (–) Senior Exemption Loss: | – | $0 | |
| (–) Exemption Loss: | – | $0 | |
| | | -------------------------- | |
| (=) Taxable Value: | = | $619,930 | |
Taxing Jurisdiction
| Owner: | RESTATED ROBERT S BUTT | | |
| % Ownership: | 100.0000000000% | | |
| Total Value: | $619,930 | | |
| Tax Area: | 1 - OL-140-F |
| CERFD | CURRENT EXPENSE REFUND 010 | 0.0000000000 | $619,930 | $619,930 | $0.00 | | |
| CURREXP | CURRENT EXPENSE 010 | 1.0175366760 | $619,930 | $619,930 | $630.80 | | |
| HUMNSERV | HUMAN SERVICES 119 | 0.0250000000 | $619,930 | $619,930 | $15.50 | | |
| SLDREL | SOLDIERS RELIEF 121 | 0.0155990005 | $619,930 | $619,930 | $9.67 | | |
| EMERGSER | EMS 147 | 0.3792580840 | $619,930 | $619,930 | $235.11 | | |
| EMSRFD | EMS REFUND 147 | 0.0000000000 | $619,930 | $619,930 | $0.00 | | |
| PORTRFD | PORT REFUND 640 | 0.0000000000 | $619,930 | $619,930 | $0.00 | | |
| PORTWWGEN | PORT OF WW 640 | 0.2460186015 | $619,930 | $619,930 | $152.51 | | |
| SD140BOND | SD #140 BOND 764 | 0.8342371393 | $619,930 | $619,930 | $517.17 | | |
| SD140GEN | SD #140 GENERAL 760 | 2.0646500647 | $619,930 | $619,930 | $1,279.94 | | |
| ST2 | STATE SCHOOL PART 2 600 | 0.8131451643 | $619,930 | $619,930 | $504.09 | | |
| STATESCHL | STATE SCHOOL 600 | 1.5158548041 | $619,930 | $619,930 | $939.72 | | |
| STREFUND | STATE REFUND LEVY 603 | 0.0000000000 | $619,930 | $619,930 | $0.00 | | |
| CWWBOND | C OF WW BOND 643 | 0.2760494372 | $619,930 | $619,930 | $171.13 | | |
| CWWGEN | CITY OF WW 631 | 1.6100204973 | $619,930 | $619,930 | $998.10 | | |
| CWWRFD | CITY OF WALLA WALLA REFUND 631 | 0.0000000000 | $619,930 | $619,930 | $0.00 | | |
| | Total Tax Rate: | 8.7973694689 | | | | | |
| | | | | Taxes w/Current Exemptions: | $5,453.74 | | |
| | | | | Taxes w/o Exemptions: | $5,453.74 | | |
Improvement / Building
| Improvement #1: | RESIDENTIAL | State Code: | 11 | 1583.0 sqft | Value: | $495,770 |
| Exterior Wall: | SIDING | Heating/Cooling: | WARM & COOLED AIR | | Number of Bathrooms: | 3 | Number of Bedrooms: | 3 | | Plumbing: | 14 | Roof Covering: | COMP SHINGLE |
|
| | Type | Description | Class CD | Sub Class CD | Year Built | Area |
| | MA | Main Area | 1 | 35 | 1951 | 1583.0 |
| | RPC | OPEN PORCH W/ROOF , CEILED | 1 | 35 | 1951 | 20.0 |
| | SI1 | SITE IMPROVEMENT | 1 | 35 | 1951 | 3.5 |
| | BASE | BASEMENT | 1 | 35 | 1951 | 1066.0 |
| | ATG | Attached Garage | 1 | 35 | 1951 | 322.0 |
| | GFP | GAS FIREPLACE | 1 | 35 | 1951 | 1.0 |
| | WDR | WOOD DECK W/ROOF | 1 | 35 | 1951 | 255.0 |
| | WOD | Wood Deck | 1 | 35 | 1951 | 210.0 |
| | BPF | BASEMENT -PARTITIONED FINISH | 1 | 35 | 1951 | 250.0 |
| | POL3 | POLE BUILDING-CON,ELEC,INSU | 1 | 40 | 1951 | 1080.0 |
Sketch
Property Image
Land
| 1 | RES 1 | Converted: Residential | 0.3780 | 16467.00 | 0.00 | 0.00 | 1.00 | $124,160 | $0 |
Roll Value History
| 2026 | N/A | N/A | N/A | N/A | N/A |
| 2025 | $503,080 | $147,710 | $0 | $650,790 | $650,790 |
| 2024 | $495,770 | $124,160 | $0 | $619,930 | $619,930 |
| 2023 | $495,770 | $124,160 | $0 | $619,930 | $619,930 |
| 2022 | $583,260 | $101,930 | $0 | $685,190 | $685,190 |
| 2021 | $299,620 | $101,930 | $0 | $401,550 | $401,550 |
| 2020 | $230,480 | $101,930 | $0 | $332,410 | $332,410 |
| 2019 | $230,480 | $101,930 | $0 | $332,410 | $332,410 |
| 2018 | $189,000 | $52,600 | $0 | $241,600 | $241,600 |
| 2017 | $180,000 | $52,600 | $0 | $232,600 | $232,600 |
| 2016 | $118,200 | $52,600 | $0 | $170,800 | $170,800 |
| 2015 | $118,200 | $52,600 | $0 | $170,800 | $170,800 |
| 2014 | $118,200 | $52,600 | $0 | $170,800 | $170,800 |
| 2013 | $118,200 | $52,600 | $0 | $170,800 | $170,800 |
| 2012 | $118,200 | $52,600 | $0 | $0 | $0 |
| 2011 | $118,200 | $52,600 | $0 | $0 | $0 |
| 2010 | $110,100 | $52,600 | $0 | $0 | $0 |
| 2009 | $128,200 | $52,600 | $0 | $0 | $0 |
| 2008 | $128,200 | $52,600 | $0 | $0 | $0 |
| 2007 | $93,600 | $30,100 | $0 | $0 | $0 |
Deed and Sales History
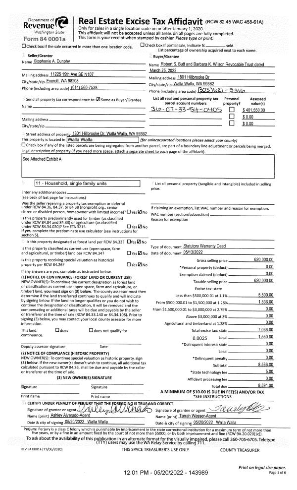
| 1 | 05/20/2022 | SWD | STATUTORY WARRANTY DEED | DUNPHY STEPHANIE A | RESTATED ROBERT S BUTT | | | $620,000.00 | 143989 | 2022-04341 |
| 2 | 05/20/2022 | LOPA | LACK OF PROBATE AFFIDAVIT | DUNPHY JAMES D & STEPHANIE A | DUNPHY STEPHANIE A | | | $0.00 | 143988 | 2022-04340 |
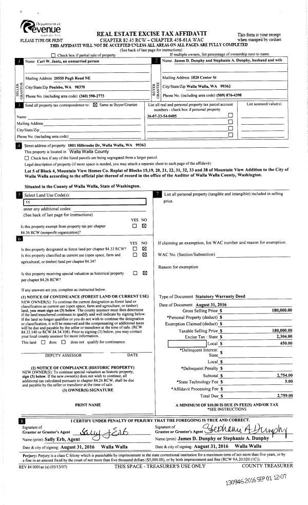
| 3 | 09/01/2016 | SWD | STATUTORY WARRANTY DEED | JANTZ CARL W | DUNPHY JAMES D & STEPHANIE A | | | $180,000.00 | 130946 | 2016-07083 |
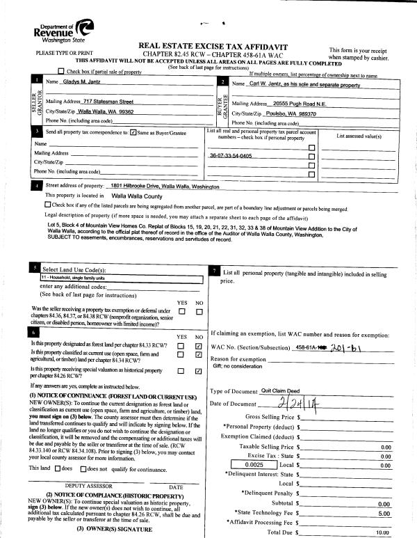
| 4 | 02/17/2016 | DPR | DEED OF PERSONAL REPRESENTATIVE | JANTZ GLADYS M | JANTZ CARL W | | | $0.00 | 129804 | 2016-01851 |
| 5 | 04/18/2014 | QCD | QUIT CLAIM DEED | JANTZ CARL W | JANTZ GLADYS M | | | | 125738 | 2014-02647 |
| 6 | 02/24/2014 | QCD | QUIT CLAIM DEED | JANTZ GLADYS M | JANTZ CARL W | | | | 125470 | 2014-01318 |
| 7 | 01/05/1968 | WARRANTY D | WARRANTY DEED | | | | | $0.00 | 56207 | 2530-341852 |
Payout Agreement
| No payout information available.. |