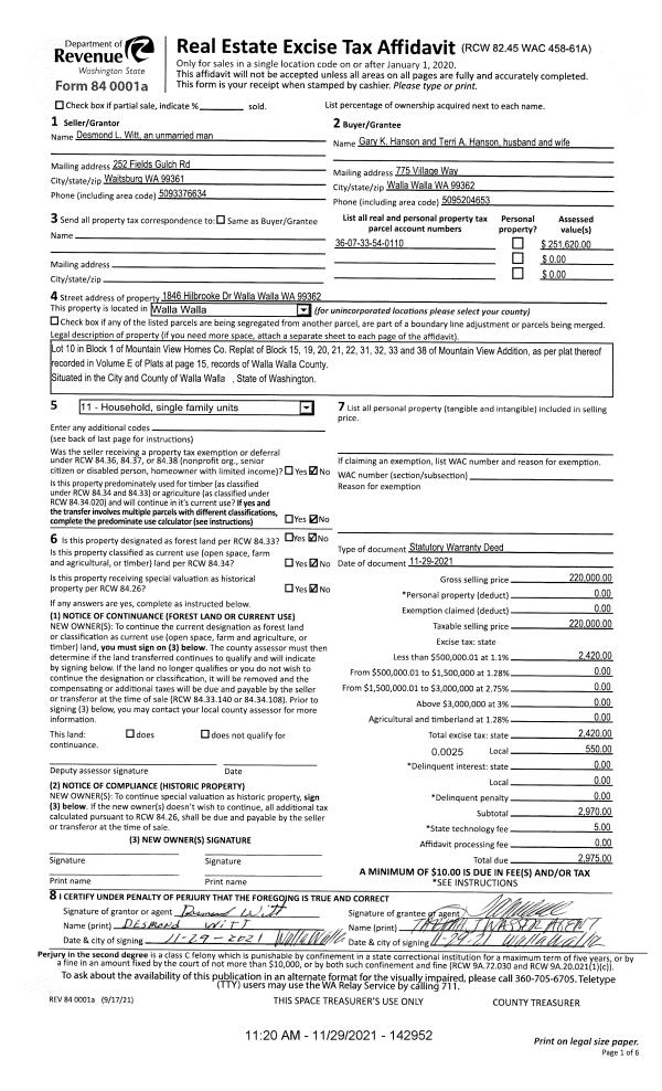
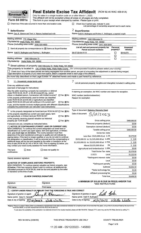
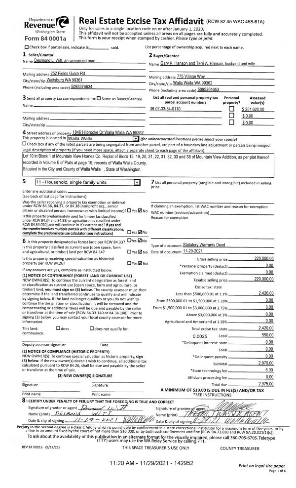
Property
Account |
| Property ID: | 12396 | Abbreviated Legal Description: | MT VIEW REPLAT LOT 10 BLK 1 |
| Parcel Number: | 360733540110 | Agent Code: | |
| Type: | Real | | |
| Tax Area: | 1 - OL-140-F | Land Use Code | 11 |
| Open Space: | N | DFL | N |
| Historic Property: | N | Remodel Property: | N |
| Multi-Family Redevelopment: | N | | |
| Township: | 7 | Section: | 33 |
| Range: | 36 |
Location |
| Address: | 1846 HILBROOKE DR WA 99362 | Mapsco: | |
| Neighborhood: | G Res | Map ID: | |
| Neighborhood CD: | 614011 |
Owner |
| Name: | BULLINGTON KELLI R & RODNEY L | Owner ID: | 73593 |
| Mailing Address: | 1846 HILBROOKE DR WALLA WALLA, WA 99362 | % Ownership: | 100.0000000000% |
| | | Exemptions: | |
Taxes and Assessment Details
Values
| (+) Improvement Homesite Value: | + | $0 | |
| (+) Improvement Non-Homesite Value: | + | $290,240 | |
| (+) Land Homesite Value: | + | $0 | |
| (+) Land Non-Homesite Value: | + | $122,320 | |
| (+) Curr Use (HS): | + | $0 | $0 |
| (+) Curr Use (NHS): | + | $0 | $0 |
| | | -------------------------- | |
| (=) Market Value: | = | $412,560 | |
| (–) Productivity Loss: | – | $0 | |
| | | -------------------------- | |
| (=) Subtotal: | = | $412,560 | |
| (+) Senior Appraised Value: | + | $0 | |
| (+) Non-Senior Appraised Value: | + | $412,560 | |
| | | -------------------------- | |
| (=) Total Appraised Value: | = | $412,560 | |
| (–) Senior Exemption Loss: | – | $0 | |
| (–) Exemption Loss: | – | $0 | |
| | | -------------------------- | |
| (=) Taxable Value: | = | $412,560 | |
Taxing Jurisdiction
| Owner: | BULLINGTON KELLI R & RODNEY L | | |
| % Ownership: | 100.0000000000% | | |
| Total Value: | $412,560 | | |
| Tax Area: | 1 - OL-140-F |
| CERFD | CURRENT EXPENSE REFUND 010 | 0.0000000000 | $412,560 | $412,560 | $0.00 | | |
| CURREXP | CURRENT EXPENSE 010 | 1.0175366760 | $412,560 | $412,560 | $419.79 | | |
| HUMNSERV | HUMAN SERVICES 119 | 0.0250000000 | $412,560 | $412,560 | $10.31 | | |
| SLDREL | SOLDIERS RELIEF 121 | 0.0155990005 | $412,560 | $412,560 | $6.44 | | |
| EMERGSER | EMS 147 | 0.3792580840 | $412,560 | $412,560 | $156.47 | | |
| EMSRFD | EMS REFUND 147 | 0.0000000000 | $412,560 | $412,560 | $0.00 | | |
| PORTRFD | PORT REFUND 640 | 0.0000000000 | $412,560 | $412,560 | $0.00 | | |
| PORTWWGEN | PORT OF WW 640 | 0.2460186015 | $412,560 | $412,560 | $101.50 | | |
| SD140BOND | SD #140 BOND 764 | 0.8342371393 | $412,560 | $412,560 | $344.17 | | |
| SD140GEN | SD #140 GENERAL 760 | 2.0646500647 | $412,560 | $412,560 | $851.79 | | |
| ST2 | STATE SCHOOL PART 2 600 | 0.8131451643 | $412,560 | $412,560 | $335.47 | | |
| STATESCHL | STATE SCHOOL 600 | 1.5158548041 | $412,560 | $412,560 | $625.38 | | |
| STREFUND | STATE REFUND LEVY 603 | 0.0000000000 | $412,560 | $412,560 | $0.00 | | |
| CWWBOND | C OF WW BOND 643 | 0.2760494372 | $412,560 | $412,560 | $113.89 | | |
| CWWGEN | CITY OF WW 631 | 1.6100204973 | $412,560 | $412,560 | $664.23 | | |
| CWWRFD | CITY OF WALLA WALLA REFUND 631 | 0.0000000000 | $412,560 | $412,560 | $0.00 | | |
| | Total Tax Rate: | 8.7973694689 | | | | | |
| | | | | Taxes w/Current Exemptions: | $3,629.44 | | |
| | | | | Taxes w/o Exemptions: | $3,629.44 | | |
Improvement / Building
| Improvement #1: | RESIDENTIAL | State Code: | 11 | 1043.0 sqft | Value: | $290,240 |
| Exterior Wall: | SIDING | Heating/Cooling: | HEAT PUMP | | Number of Bathrooms: | 2 | Number of Bedrooms: | 4 | | Plumbing: | 10 | Roof Covering: | COMP SHINGLE |
|
| | Type | Description | Class CD | Sub Class CD | Year Built | Area |
| | MA | Main Area | 1 | 30 | 1951 | 1043.0 |
| | SI1 | SITE IMPROVEMENT | 1 | 30 | 1951 | 4.5 |
| | BASE | BASEMENT | 1 | 30 | 1951 | 1043.0 |
| | BPF | BASEMENT -PARTITIONED FINISH | 1 | 30 | 1951 | 834.0 |
| | ATG | Attached Garage | 1 | 30 | 1951 | 330.0 |
| | S1F | Single One Story Fireplace | 1 | 30 | 1951 | 1.0 |
| | CPC | COVERED CARPORT/PATIO | 1 | 30 | 1951 | 301.0 |
| | RPC | OPEN PORCH W/ROOF , CEILED | 1 | 30 | 1951 | 30.0 |
Sketch
Property Image
Land
| 1 | RES 1 | Converted: Residential | 0.3327 | 14493.00 | 0.00 | 0.00 | 1.00 | $122,320 | $0 |
Roll Value History
| 2026 | N/A | N/A | N/A | N/A | N/A |
| 2025 | $331,350 | $145,950 | $0 | $477,300 | $477,300 |
| 2024 | $308,860 | $122,320 | $0 | $431,180 | $431,180 |
| 2023 | $290,240 | $122,320 | $0 | $412,560 | $412,560 |
| 2022 | $196,350 | $100,580 | $0 | $296,930 | $296,930 |
| 2021 | $151,040 | $100,580 | $0 | $251,620 | $251,620 |
| 2020 | $131,340 | $100,580 | $0 | $231,920 | $231,920 |
| 2019 | $131,340 | $100,580 | $0 | $231,920 | $231,920 |
| 2018 | $132,250 | $50,900 | $0 | $183,150 | $183,150 |
| 2017 | $132,250 | $50,900 | $0 | $183,150 | $183,150 |
| 2016 | $115,000 | $50,900 | $0 | $165,900 | $165,900 |
| 2015 | $115,000 | $50,900 | $0 | $165,900 | $165,900 |
| 2014 | $115,000 | $50,900 | $0 | $165,900 | $165,900 |
| 2013 | $115,000 | $50,900 | $0 | $165,900 | $165,900 |
| 2012 | $115,000 | $50,900 | $0 | $0 | $0 |
| 2011 | $115,000 | $50,900 | $0 | $0 | $0 |
| 2010 | $107,100 | $50,900 | $0 | $0 | $0 |
| 2009 | $124,700 | $50,900 | $0 | $0 | $0 |
| 2008 | $124,700 | $50,900 | $0 | $0 | $0 |
| 2007 | $75,700 | $28,400 | $0 | $0 | $0 |
Deed and Sales History
| 1 | 05/12/2023 | SWD | STATUTORY WARRANTY DEED | HANSON GARY K & TERRI A | BULLINGTON KELLI R & RODNEY L | | | $489,000.00 | 145800 | 2023-02530 |
| 2 | 11/29/2021 | SWD | STATUTORY WARRANTY DEED | WITT DESMOND L | HANSON GARY K & TERRI A | | | $220,000.00 | 142952 | 2021-14044 |
| 3 | 09/10/2007 | QCD | QUIT CLAIM DEED | WITT, SCOTT LEWIS | WITT, DESMOND L | | | | 113675 | 2007-10658 |
| 4 | 09/28/1990 | WARRANTY D | WARRANTY DEED | | | | | $59,000.00 | 0 | 1859-006819 |
Payout Agreement
| No payout information available.. |