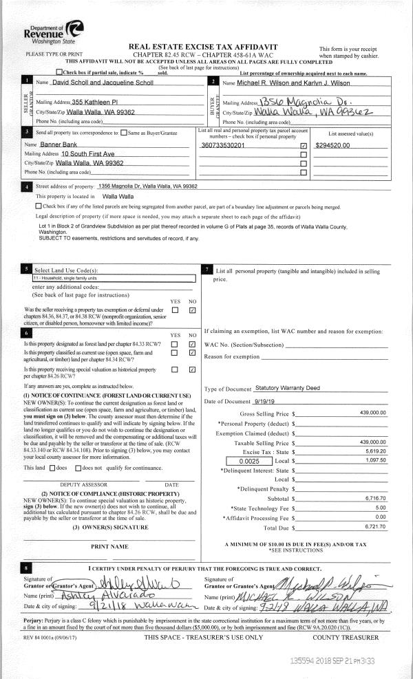
Property
Account |
| Property ID: | 12382 | Abbreviated Legal Description: | GRANDVIEW LOT 1 BLK 2 |
| Parcel Number: | 360733530201 | Agent Code: | |
| Type: | Real | | |
| Tax Area: | 101 - 140-4 | Land Use Code | 11 |
| Open Space: | N | DFL | N |
| Historic Property: | N | Remodel Property: | N |
| Multi-Family Redevelopment: | N | | |
| Township: | 7 | Section: | 33 |
| Range: | 36 |
Location |
| Address: | 1356 MAGNOLIA DR WA 99362 | Mapsco: | |
| Neighborhood: | VG Res Rural/City Inf | Map ID: | |
| Neighborhood CD: | 415012 |
Owner |
| Name: | WILSON MICHAEL R & KARLYN J | Owner ID: | 63977 |
| Mailing Address: | 1356 MAGNOLIA DR WALLA WALLA, WA 99362 | % Ownership: | 100.0000000000% |
| | | Exemptions: | |
Taxes and Assessment Details
Property Tax Information as of
02/21/2026
Click on "Statement Details" to expand or collapse a tax statement.
* Please enter a valid date ** Please enter a valid date *
Statement Details |
| | TOTAL: | $0.00 | $0.00 | $0.00 | $0.00 | $0.00 | $0.00 |
|
| | $0.00 | $0.00 | $0.00 | $0.00 | $0.00 | $0.00 |
Values
| (+) Improvement Homesite Value: | + | $0 | |
| (+) Improvement Non-Homesite Value: | + | $433,470 | |
| (+) Land Homesite Value: | + | $0 | |
| (+) Land Non-Homesite Value: | + | $138,620 | |
| (+) Curr Use (HS): | + | $0 | $0 |
| (+) Curr Use (NHS): | + | $0 | $0 |
| | | -------------------------- | |
| (=) Market Value: | = | $572,090 | |
| (–) Productivity Loss: | – | $0 | |
| | | -------------------------- | |
| (=) Subtotal: | = | $572,090 | |
| (+) Senior Appraised Value: | + | $0 | |
| (+) Non-Senior Appraised Value: | + | $572,090 | |
| | | -------------------------- | |
| (=) Total Appraised Value: | = | $572,090 | |
| (–) Senior Exemption Loss: | – | $0 | |
| (–) Exemption Loss: | – | $0 | |
| | | -------------------------- | |
| (=) Taxable Value: | = | $572,090 | |
Taxing Jurisdiction
| Owner: | WILSON MICHAEL R & KARLYN J | | |
| % Ownership: | 100.0000000000% | | |
| Total Value: | $572,090 | | |
| Tax Area: | 101 - 140-4 |
| CERFD | CURRENT EXPENSE REFUND 010 | 0.0000000000 | $572,090 | $572,090 | $0.00 | | |
| CURREXP | CURRENT EXPENSE 010 | 1.0175366760 | $572,090 | $572,090 | $582.12 | | |
| HUMNSERV | HUMAN SERVICES 119 | 0.0250000000 | $572,090 | $572,090 | $14.30 | | |
| SLDREL | SOLDIERS RELIEF 121 | 0.0155990005 | $572,090 | $572,090 | $8.92 | | |
| EMERGSER | EMS 147 | 0.3792580840 | $572,090 | $572,090 | $216.97 | | |
| EMSRFD | EMS REFUND 147 | 0.0000000000 | $572,090 | $572,090 | $0.00 | | |
| FD4EXP | FD #4 EXPENSE 686 | 0.8836993059 | $572,090 | $572,090 | $505.56 | | |
| RLBRFD | RURAL LIBRARY REFUND 623 | 0.0000000000 | $572,090 | $572,090 | $0.00 | | |
| RURALLIB | RURAL LIBRARY 623 | 0.3710609029 | $572,090 | $572,090 | $212.28 | | |
| PORTRFD | PORT REFUND 640 | 0.0000000000 | $572,090 | $572,090 | $0.00 | | |
| PORTWWGEN | PORT OF WW 640 | 0.2460186015 | $572,090 | $572,090 | $140.74 | | |
| SD140BOND | SD #140 BOND 764 | 0.8342371393 | $572,090 | $572,090 | $477.26 | | |
| SD140GEN | SD #140 GENERAL 760 | 2.0646500647 | $572,090 | $572,090 | $1,181.17 | | |
| ST2 | STATE SCHOOL PART 2 600 | 0.8131451643 | $572,090 | $572,090 | $465.19 | | |
| STATESCHL | STATE SCHOOL 600 | 1.5158548041 | $572,090 | $572,090 | $867.21 | | |
| STREFUND | STATE REFUND LEVY 603 | 0.0000000000 | $572,090 | $572,090 | $0.00 | | |
| COROAD | COUNTY ROAD 115 | 1.6549953990 | $572,090 | $572,090 | $946.81 | | |
| CRPRD | COUNTY ROAD REFUND 115 | 0.0000000000 | $572,090 | $572,090 | $0.00 | | |
| | Total Tax Rate: | 9.8210551422 | | | | | |
| | | | | Taxes w/Current Exemptions: | $5,618.53 | | |
| | | | | Taxes w/o Exemptions: | $5,618.53 | | |
Improvement / Building
| Improvement #1: | RESIDENTIAL | State Code: | 11 | 1652.0 sqft | Value: | $433,470 |
| Exterior Wall: | HARDBOARD | Heating/Cooling: | WARM & COOLED AIR | | Number of Bathrooms: | 3 | Number of Bedrooms: | 3 | | Plumbing: | 13 | Roof Covering: | WOOD SHAKE |
|
| | Type | Description | Class CD | Sub Class CD | Year Built | Area |
| | MA | Main Area | 1 | 30 | 1968 | 1652.0 |
| | SI1 | SITE IMPROVEMENT | 1 | 30 | 1968 | 4.0 |
| | SMP | SWIMMING POOL | 1 | 30 | 0 | 1.0 |
| | BASE | BASEMENT | 1 | 30 | 1968 | 960.0 |
| | BPF | BASEMENT -PARTITIONED FINISH | 1 | 30 | 1968 | 900.0 |
| | ATG | Attached Garage | 1 | 30 | 1968 | 624.0 |
| | S1F | Single One Story Fireplace | 1 | 30 | 1968 | 1.0 |
| | DTG | Detached Garage | 1 | 30 | 1968 | 672.0 |
Sketch
Property Image
Land
| 1 | RES 1 | Converted: Residential | 0.5183 | 22577.00 | 0.00 | 0.00 | 1.00 | $138,620 | $0 |
Roll Value History
| 2026 | N/A | N/A | N/A | N/A | N/A |
| 2025 | $433,470 | $138,620 | $0 | $572,090 | $572,090 |
| 2024 | $433,470 | $138,620 | $0 | $572,090 | $572,090 |
| 2023 | $433,470 | $138,620 | $0 | $572,090 | $572,090 |
| 2022 | $481,640 | $86,020 | $0 | $567,660 | $567,660 |
| 2021 | $344,030 | $86,020 | $0 | $430,050 | $430,050 |
| 2020 | $312,750 | $86,020 | $0 | $398,770 | $398,770 |
| 2019 | $312,750 | $86,020 | $0 | $398,770 | $398,770 |
| 2018 | $208,500 | $86,020 | $0 | $294,520 | $294,520 |
| 2017 | $208,500 | $86,020 | $0 | $294,520 | $294,520 |
| 2016 | $225,120 | $69,400 | $0 | $294,520 | $294,520 |
| 2015 | $187,600 | $69,400 | $0 | $257,000 | $257,000 |
| 2014 | $187,600 | $69,400 | $0 | $257,000 | $257,000 |
| 2013 | $187,600 | $69,400 | $0 | $257,000 | $257,000 |
| 2012 | $187,600 | $69,400 | $0 | $0 | $0 |
| 2011 | $171,500 | $93,800 | $0 | $0 | $0 |
| 2010 | $158,900 | $93,800 | $0 | $0 | $0 |
| 2009 | $187,000 | $93,800 | $0 | $0 | $0 |
| 2008 | $187,000 | $93,800 | $0 | $0 | $0 |
| 2007 | $178,700 | $35,000 | $0 | $0 | $0 |
Deed and Sales History
| 1 | 09/21/2018 | SWD | STATUTORY WARRANTY DEED | SCHOLL DAVID L & JACQUELINE | WILSON MICHAEL R & KARLYN J | | | $439,000.00 | 135594 | 2018-07891 |
| 2 | 05/28/1993 | WARRANTY D | WARRANTY DEED | | | | | $169,900.00 | 79196 | 2079-305306 |
|   | |
Payout Agreement
| No payout information available.. |