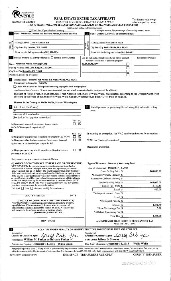
Property
Account |
| Property ID: | 12330 | Abbreviated Legal Description: | ABBOTT ACRE TRACTS E 91' OF LOT 33 |
| Parcel Number: | 360733510077 | Agent Code: | |
| Type: | Real | | |
| Tax Area: | 1 - OL-140-F | Land Use Code | 11 |
| Open Space: | N | DFL | N |
| Historic Property: | N | Remodel Property: | N |
| Multi-Family Redevelopment: | N | | |
| Township: | 7 | Section: | 33 |
| Range: | 36 |
Location |
| Address: | 928 ABBOTT RD WA 99362 | Mapsco: | |
| Neighborhood: | VG Res Rural/City Inf | Map ID: | |
| Neighborhood CD: | 615012 |
Owner |
| Name: | STEVENS JEFFERY D & PEGGY J | Owner ID: | 74177 |
| Mailing Address: | 928 ABBOTT RD WALLA WALLA, WA 99362 | % Ownership: | 100.0000000000% |
| | | Exemptions: | |
Taxes and Assessment Details
Values
| (+) Improvement Homesite Value: | + | $0 | |
| (+) Improvement Non-Homesite Value: | + | $106,870 | |
| (+) Land Homesite Value: | + | $0 | |
| (+) Land Non-Homesite Value: | + | $150,720 | |
| (+) Curr Use (HS): | + | $0 | $0 |
| (+) Curr Use (NHS): | + | $0 | $0 |
| | | -------------------------- | |
| (=) Market Value: | = | $257,590 | |
| (–) Productivity Loss: | – | $0 | |
| | | -------------------------- | |
| (=) Subtotal: | = | $257,590 | |
| (+) Senior Appraised Value: | + | $0 | |
| (+) Non-Senior Appraised Value: | + | $257,590 | |
| | | -------------------------- | |
| (=) Total Appraised Value: | = | $257,590 | |
| (–) Senior Exemption Loss: | – | $0 | |
| (–) Exemption Loss: | – | $0 | |
| | | -------------------------- | |
| (=) Taxable Value: | = | $257,590 | |
Taxing Jurisdiction
| Owner: | STEVENS JEFFERY D & PEGGY J | | |
| % Ownership: | 100.0000000000% | | |
| Total Value: | $257,590 | | |
| Tax Area: | 1 - OL-140-F |
| CERFD | CURRENT EXPENSE REFUND 010 | 0.0000000000 | $257,590 | $257,590 | $0.00 | | |
| CURREXP | CURRENT EXPENSE 010 | 1.0175366760 | $257,590 | $257,590 | $262.11 | | |
| HUMNSERV | HUMAN SERVICES 119 | 0.0250000000 | $257,590 | $257,590 | $6.44 | | |
| SLDREL | SOLDIERS RELIEF 121 | 0.0155990005 | $257,590 | $257,590 | $4.02 | | |
| EMERGSER | EMS 147 | 0.3792580840 | $257,590 | $257,590 | $97.69 | | |
| EMSRFD | EMS REFUND 147 | 0.0000000000 | $257,590 | $257,590 | $0.00 | | |
| PORTRFD | PORT REFUND 640 | 0.0000000000 | $257,590 | $257,590 | $0.00 | | |
| PORTWWGEN | PORT OF WW 640 | 0.2460186015 | $257,590 | $257,590 | $63.37 | | |
| SD140BOND | SD #140 BOND 764 | 0.8342371393 | $257,590 | $257,590 | $214.89 | | |
| SD140GEN | SD #140 GENERAL 760 | 2.0646500647 | $257,590 | $257,590 | $531.83 | | |
| ST2 | STATE SCHOOL PART 2 600 | 0.8131451643 | $257,590 | $257,590 | $209.46 | | |
| STATESCHL | STATE SCHOOL 600 | 1.5158548041 | $257,590 | $257,590 | $390.47 | | |
| STREFUND | STATE REFUND LEVY 603 | 0.0000000000 | $257,590 | $257,590 | $0.00 | | |
| CWWBOND | C OF WW BOND 643 | 0.2760494372 | $257,590 | $257,590 | $71.11 | | |
| CWWGEN | CITY OF WW 631 | 1.6100204973 | $257,590 | $257,590 | $414.73 | | |
| CWWRFD | CITY OF WALLA WALLA REFUND 631 | 0.0000000000 | $257,590 | $257,590 | $0.00 | | |
| | Total Tax Rate: | 8.7973694689 | | | | | |
| | | | | Taxes w/Current Exemptions: | $2,266.12 | | |
| | | | | Taxes w/o Exemptions: | $2,266.12 | | |
Improvement / Building
| Improvement #1: | RESIDENTIAL | State Code: | 11 | 1012.0 sqft | Value: | $106,870 |
| Exterior Wall: | SIDING | Heating/Cooling: | FORCED AIR | | Number of Bathrooms: | 1 | Number of Bedrooms: | 2 | | Plumbing: | 6 | Roof Covering: | COMP SHINGLE |
|
| | Type | Description | Class CD | Sub Class CD | Year Built | Area |
| | MA | Main Area | 1 | 30 | 1915 | 1012.0 |
| | SI1 | SITE IMPROVEMENT | 1 | 30 | 1915 | 2.5 |
| | BASE | BASEMENT | 1 | 30 | 1915 | 828.0 |
| | DTG | Detached Garage | 1 | 30 | 1915 | 400.0 |
| | RPS | PORCH W/STEPS,ROOF | 1 | 30 | 1915 | 176.0 |
| | WOD | Wood Deck | 1 | 30 | 1915 | 28.0 |
Sketch
Property Image
Land
| 1 | RES 1 | Converted: Residential | 1.0200 | 0.00 | 0.00 | 0.00 | 1.00 | $150,720 | $0 |
Roll Value History
| 2026 | N/A | N/A | N/A | N/A | N/A |
| 2025 | $192,710 | $170,790 | $0 | $363,500 | $363,500 |
| 2024 | $106,870 | $150,720 | $0 | $257,590 | $257,590 |
| 2023 | $106,870 | $150,720 | $0 | $257,590 | $257,590 |
| 2022 | $106,870 | $98,940 | $0 | $205,810 | $205,810 |
| 2021 | $89,050 | $98,940 | $0 | $187,990 | $187,990 |
| 2020 | $63,610 | $98,940 | $0 | $162,550 | $162,550 |
| 2019 | $63,610 | $98,940 | $0 | $162,550 | $162,550 |
| 2018 | $82,840 | $90,100 | $0 | $172,940 | $172,940 |
| 2017 | $82,840 | $90,100 | $0 | $172,940 | $172,940 |
| 2016 | $78,890 | $90,100 | $0 | $168,990 | $168,990 |
| 2015 | $78,890 | $90,100 | $0 | $168,990 | $168,990 |
| 2014 | $112,700 | $90,100 | $0 | $202,800 | $202,800 |
| 2013 | $112,700 | $90,100 | $0 | $202,800 | $202,800 |
| 2012 | $118,500 | $90,100 | $0 | $0 | $0 |
| 2011 | $88,500 | $120,100 | $0 | $0 | $0 |
| 2010 | $78,600 | $120,100 | $0 | $0 | $0 |
| 2009 | $100,700 | $120,100 | $0 | $0 | $0 |
| 2008 | $100,700 | $120,100 | $0 | $0 | $0 |
| 2007 | $55,400 | $44,100 | $0 | $0 | $0 |
Deed and Sales History
| 1 | 08/29/2023 | QCD | QUIT CLAIM DEED | STEVENS JEFFERY D | STEVENS JEFFERY D & PEGGY J | | | | 146383 | 2023-05006 |
| 2 | 12/17/2015 | SWD | STATUTORY WARRANTY DEED | PARKER WILLIAM M | STEVENS JEFFERY D | | | $168,000.00 | 129356 | 2015-10773 |
| 3 | 08/01/1965 | WARRANTY D | WARRANTY DEED | | | | | $12,736.00 | 0 | 3150-469673 |
Payout Agreement
| No payout information available.. |