Property
Account |
| Property ID: | 12328 | Abbreviated Legal Description: | ABBOTT ACRE TRACTS TAX 2 |
| Parcel Number: | 360733510070 | Agent Code: | |
| Type: | Real | | |
| Tax Area: | 105 - 140-F-4 | Land Use Code | 11 |
| Open Space: | N | DFL | N |
| Historic Property: | N | Remodel Property: | N |
| Multi-Family Redevelopment: | N | | |
| Township: | 7 | Section: | 33 |
| Range: | 36 |
Location |
| Address: | 1236 FORREST LN WA 99362 | Mapsco: | |
| Neighborhood: | VG Res Rural/City Inf | Map ID: | |
| Neighborhood CD: | 615012 |
Owner |
| Name: | CHRISTOFIDES PHILIP A | Owner ID: | 60288 |
| Mailing Address: | MARGOT C ARELLANO 1012 CATHERINE ST WALLA WALLA, WA 99362 | % Ownership: | 100.0000000000% |
| | | Exemptions: | |
Taxes and Assessment Details
Values
| (+) Improvement Homesite Value: | + | $0 | |
| (+) Improvement Non-Homesite Value: | + | $537,410 | |
| (+) Land Homesite Value: | + | $0 | |
| (+) Land Non-Homesite Value: | + | $175,080 | |
| (+) Curr Use (HS): | + | $0 | $0 |
| (+) Curr Use (NHS): | + | $0 | $0 |
| | | -------------------------- | |
| (=) Market Value: | = | $712,490 | |
| (–) Productivity Loss: | – | $0 | |
| | | -------------------------- | |
| (=) Subtotal: | = | $712,490 | |
| (+) Senior Appraised Value: | + | $0 | |
| (+) Non-Senior Appraised Value: | + | $712,490 | |
| | | -------------------------- | |
| (=) Total Appraised Value: | = | $712,490 | |
| (–) Senior Exemption Loss: | – | $0 | |
| (–) Exemption Loss: | – | $0 | |
| | | -------------------------- | |
| (=) Taxable Value: | = | $712,490 | |
Taxing Jurisdiction
| Owner: | CHRISTOFIDES PHILIP A | | |
| % Ownership: | 100.0000000000% | | |
| Total Value: | $712,490 | | |
| Tax Area: | 105 - 140-F-4 |
| CERFD | CURRENT EXPENSE REFUND 010 | 0.0000000000 | $712,490 | $712,490 | $0.00 | | |
| CURREXP | CURRENT EXPENSE 010 | 1.0175366760 | $712,490 | $712,490 | $724.98 | | |
| HUMNSERV | HUMAN SERVICES 119 | 0.0250000000 | $712,490 | $712,490 | $17.81 | | |
| SLDREL | SOLDIERS RELIEF 121 | 0.0155990005 | $712,490 | $712,490 | $11.11 | | |
| EMERGSER | EMS 147 | 0.3792580840 | $712,490 | $712,490 | $270.22 | | |
| EMSRFD | EMS REFUND 147 | 0.0000000000 | $712,490 | $712,490 | $0.00 | | |
| FD4EXP | FD #4 EXPENSE 686 | 0.8836993059 | $712,490 | $712,490 | $629.63 | | |
| RLBRFD | RURAL LIBRARY REFUND 623 | 0.0000000000 | $712,490 | $712,490 | $0.00 | | |
| RURALLIB | RURAL LIBRARY 623 | 0.3710609029 | $712,490 | $712,490 | $264.38 | | |
| PORTRFD | PORT REFUND 640 | 0.0000000000 | $712,490 | $712,490 | $0.00 | | |
| PORTWWGEN | PORT OF WW 640 | 0.2460186015 | $712,490 | $712,490 | $175.29 | | |
| SD140BOND | SD #140 BOND 764 | 0.8342371393 | $712,490 | $712,490 | $594.39 | | |
| SD140GEN | SD #140 GENERAL 760 | 2.0646500647 | $712,490 | $712,490 | $1,471.04 | | |
| ST2 | STATE SCHOOL PART 2 600 | 0.8131451643 | $712,490 | $712,490 | $579.36 | | |
| STATESCHL | STATE SCHOOL 600 | 1.5158548041 | $712,490 | $712,490 | $1,080.03 | | |
| STREFUND | STATE REFUND LEVY 603 | 0.0000000000 | $712,490 | $712,490 | $0.00 | | |
| COROAD | COUNTY ROAD 115 | 1.6549953990 | $712,490 | $712,490 | $1,179.17 | | |
| CRPRD | COUNTY ROAD REFUND 115 | 0.0000000000 | $712,490 | $712,490 | $0.00 | | |
| | Total Tax Rate: | 9.8210551422 | | | | | |
| | | | | Taxes w/Current Exemptions: | $6,997.41 | | |
| | | | | Taxes w/o Exemptions: | $6,997.41 | | |
Improvement / Building
| Improvement #1: | RESIDENTIAL | State Code: | 11 | 2538.0 sqft | Value: | $537,410 |
| Exterior Wall: | SIDING | Heating/Cooling: | WARM & COOLED AIR | | Number of Bathrooms: | 3 | Number of Bedrooms: | 3 | | Plumbing: | 14 | Roof Covering: | COMP ROLL |
|
| | Type | Description | Class CD | Sub Class CD | Year Built | Area |
| | MA | Main Area | 1 | 35 | 1955 | 2538.0 |
| | SI1 | SITE IMPROVEMENT | 1 | 35 | 1955 | 5.0 |
| | BASE | BASEMENT | 1 | 35 | 1955 | 2538.0 |
| | BPF | BASEMENT -PARTITIONED FINISH | 1 | 35 | 1955 | 1269.0 |
| | DTG | Detached Garage | 1 | 35 | 1955 | 336.0 |
| | RPO | OPEN PORCH W/ROOF | 1 | 35 | 1955 | 36.0 |
| | RPO | OPEN PORCH W/ROOF | 1 | 35 | 1955 | 390.0 |
| | D2F | Double 2 Story Fireplace | 1 | 35 | 1955 | 1.0 |
| | CPC | COVERED CARPORT/PATIO | 1 | 35 | 1955 | 576.0 |
| | CPC | COVERED CARPORT/PATIO | 1 | 35 | 1955 | 348.0 |
Sketch
Property Image
Land
| 1 | RES 1 | Converted: Residential | 0.8700 | 37897.00 | 0.00 | 0.00 | 1.00 | $175,080 | $0 |
Roll Value History
| 2026 | N/A | N/A | N/A | N/A | N/A |
| 2025 | $692,170 | $196,310 | $0 | $888,480 | $888,480 |
| 2024 | $564,280 | $175,080 | $0 | $739,360 | $739,360 |
| 2023 | $537,410 | $175,080 | $0 | $712,490 | $712,490 |
| 2022 | $537,410 | $146,280 | $0 | $683,690 | $683,690 |
| 2021 | $429,930 | $146,280 | $0 | $576,210 | $576,210 |
| 2020 | $296,500 | $146,280 | $0 | $442,780 | $442,780 |
| 2019 | $296,500 | $146,280 | $0 | $442,780 | $442,780 |
| 2018 | $359,600 | $70,800 | $0 | $430,400 | $430,400 |
| 2017 | $342,480 | $70,800 | $0 | $413,280 | $413,280 |
| 2016 | $342,480 | $70,800 | $0 | $413,280 | $413,280 |
| 2015 | $326,170 | $70,800 | $0 | $396,970 | $396,970 |
| 2014 | $250,900 | $70,800 | $0 | $321,700 | $321,700 |
| 2013 | $250,900 | $70,800 | $0 | $321,700 | $321,700 |
| 2012 | $260,900 | $70,800 | $0 | $0 | $0 |
| 2011 | $260,900 | $70,800 | $0 | $0 | $0 |
| 2010 | $260,900 | $70,800 | $0 | $0 | $0 |
| 2009 | $297,700 | $70,800 | $0 | $0 | $0 |
| 2008 | $297,700 | $70,800 | $0 | $0 | $0 |
| 2007 | $199,100 | $43,900 | $0 | $0 | $0 |
Deed and Sales History
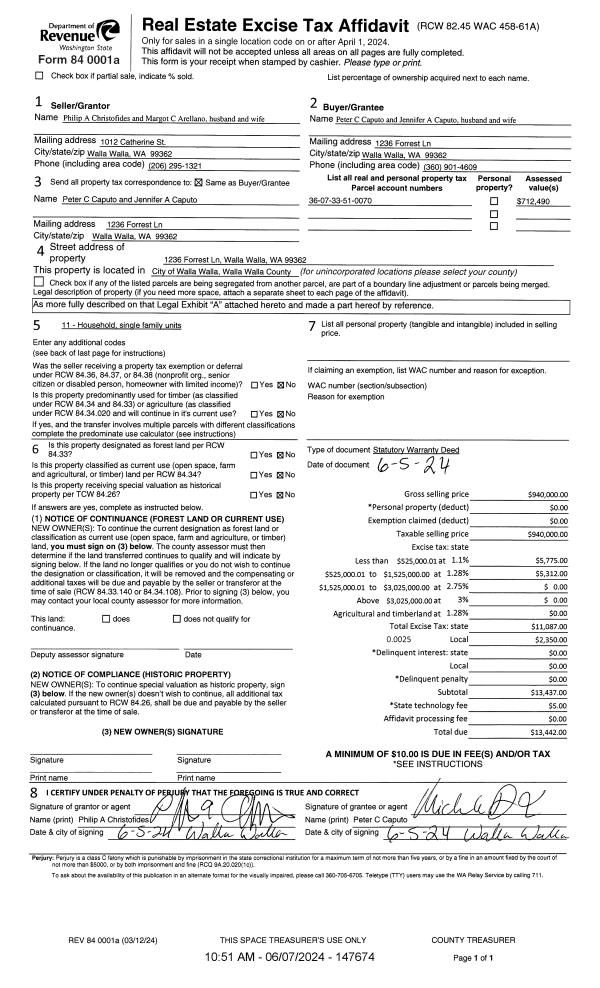
| 1 | 06/07/2024 | SWD | STATUTORY WARRANTY DEED | CHRISTOFIDES PHILIP A | CAPUTO PETER C & JENNIFER A | | | $940,000.00 | 147674 | 2024-03006 |
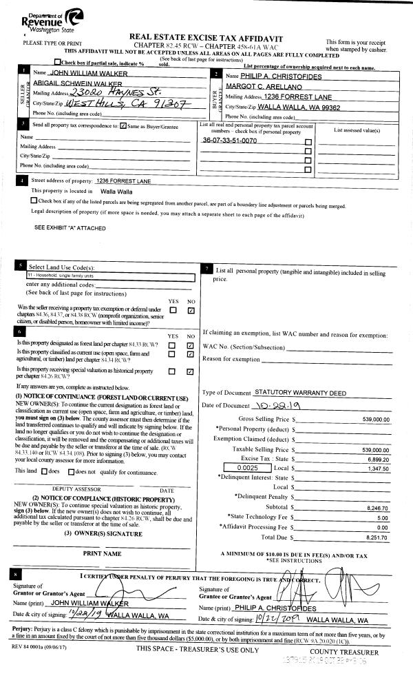
| 2 | 10/22/2019 | SWD | STATUTORY WARRANTY DEED | WALKER JOHN WILLIAM & ABIGAIL SCHWERIN | CHRISTOFIDES PHILIP A | | | $539,000.00 | 137915 | 2019-08472 |
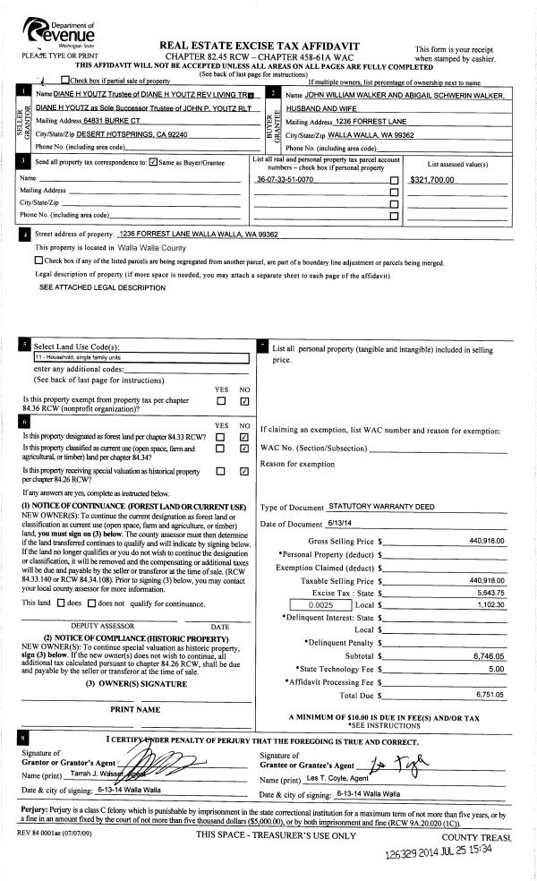
| 3 | 07/25/2014 | SWD | STATUTORY WARRANTY DEED | YOUTZ DIANE H REV LIVING TRUST | WALKER JOHN WILLIAM & ABIGAIL SCHWERIN | | | $440,918.00 | 126329 | 2014-05272 |
| 4 | 02/20/2014 | DEATH CERT | DEATH CERTIFICATE | YOUTZ JOHN P REV LIVING TRUST | YOUTZ DIANE H REV LIVING TRUST | | | | 0 | NONE |
| 5 | 10/05/2005 | WARRANTY D | WARRANTY DEED | FORREST, VIOLA C | YOUTZ, JOHN P REV LIVING TRUST | | | $367,000.00 | 108674 | 2005-12416 |
| 6 | 01/01/1956 | WARRANTY D | WARRANTY DEED | | | | | $0.00 | 0 | 3710-374451 |
Payout Agreement
| No payout information available.. |