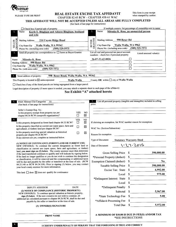
Property
Account |
| Property ID: | 12294 | Abbreviated Legal Description: | 33-7-36 TAX 41A LESS ROAD |
| Parcel Number: | 360733420026 | Agent Code: | |
| Type: | Real | | |
| Tax Area: | 101 - 140-4 | Land Use Code | 11 |
| Open Space: | N | DFL | N |
| Historic Property: | N | Remodel Property: | N |
| Multi-Family Redevelopment: | N | | |
| Township: | 7 | Section: | 33 |
| Range: | 36 |
Location |
| Address: | 998 RESER RD WA 99362 | Mapsco: | |
| Neighborhood: | VG Res Rural/City Inf | Map ID: | |
| Neighborhood CD: | 615012 |
Owner |
| Name: | ROSE MITSUKO K | Owner ID: | 49583 |
| Mailing Address: | 990 RESER RD WALLA WALLA, WA 99362 | % Ownership: | 100.0000000000% |
| | | Exemptions: | |
Taxes and Assessment Details
Values
| (+) Improvement Homesite Value: | + | $0 | |
| (+) Improvement Non-Homesite Value: | + | $507,170 | |
| (+) Land Homesite Value: | + | $0 | |
| (+) Land Non-Homesite Value: | + | $190,770 | |
| (+) Curr Use (HS): | + | $0 | $0 |
| (+) Curr Use (NHS): | + | $0 | $0 |
| | | -------------------------- | |
| (=) Market Value: | = | $697,940 | |
| (–) Productivity Loss: | – | $0 | |
| | | -------------------------- | |
| (=) Subtotal: | = | $697,940 | |
| (+) Senior Appraised Value: | + | $0 | |
| (+) Non-Senior Appraised Value: | + | $697,940 | |
| | | -------------------------- | |
| (=) Total Appraised Value: | = | $697,940 | |
| (–) Senior Exemption Loss: | – | $0 | |
| (–) Exemption Loss: | – | $0 | |
| | | -------------------------- | |
| (=) Taxable Value: | = | $697,940 | |
Taxing Jurisdiction
| Owner: | ROSE MITSUKO K | | |
| % Ownership: | 100.0000000000% | | |
| Total Value: | $697,940 | | |
| Tax Area: | 101 - 140-4 |
| CERFD | CURRENT EXPENSE REFUND 010 | 0.0000000000 | $697,940 | $697,940 | $0.00 | | |
| CURREXP | CURRENT EXPENSE 010 | 1.0175366760 | $697,940 | $697,940 | $710.18 | | |
| HUMNSERV | HUMAN SERVICES 119 | 0.0250000000 | $697,940 | $697,940 | $17.45 | | |
| SLDREL | SOLDIERS RELIEF 121 | 0.0155990005 | $697,940 | $697,940 | $10.89 | | |
| EMERGSER | EMS 147 | 0.3792580840 | $697,940 | $697,940 | $264.70 | | |
| EMSRFD | EMS REFUND 147 | 0.0000000000 | $697,940 | $697,940 | $0.00 | | |
| FD4EXP | FD #4 EXPENSE 686 | 0.8836993059 | $697,940 | $697,940 | $616.77 | | |
| RLBRFD | RURAL LIBRARY REFUND 623 | 0.0000000000 | $697,940 | $697,940 | $0.00 | | |
| RURALLIB | RURAL LIBRARY 623 | 0.3710609029 | $697,940 | $697,940 | $258.98 | | |
| PORTRFD | PORT REFUND 640 | 0.0000000000 | $697,940 | $697,940 | $0.00 | | |
| PORTWWGEN | PORT OF WW 640 | 0.2460186015 | $697,940 | $697,940 | $171.71 | | |
| SD140BOND | SD #140 BOND 764 | 0.8342371393 | $697,940 | $697,940 | $582.25 | | |
| SD140GEN | SD #140 GENERAL 760 | 2.0646500647 | $697,940 | $697,940 | $1,441.00 | | |
| ST2 | STATE SCHOOL PART 2 600 | 0.8131451643 | $697,940 | $697,940 | $567.53 | | |
| STATESCHL | STATE SCHOOL 600 | 1.5158548041 | $697,940 | $697,940 | $1,057.98 | | |
| STREFUND | STATE REFUND LEVY 603 | 0.0000000000 | $697,940 | $697,940 | $0.00 | | |
| COROAD | COUNTY ROAD 115 | 1.6549953990 | $697,940 | $697,940 | $1,155.09 | | |
| CRPRD | COUNTY ROAD REFUND 115 | 0.0000000000 | $697,940 | $697,940 | $0.00 | | |
| | Total Tax Rate: | 9.8210551422 | | | | | |
| | | | | Taxes w/Current Exemptions: | $6,854.53 | | |
| | | | | Taxes w/o Exemptions: | $6,854.53 | | |
Improvement / Building
| Improvement #1: | RESIDENTIAL | State Code: | 11 | 1975.0 sqft | Value: | $507,170 |
| Exterior Wall: | SIDING | Heating/Cooling: | WARM & COOLED AIR | | Number of Bathrooms: | 2 | Number of Bedrooms: | 2 | | Plumbing: | 13 | Roof Covering: | COMP SHINGLE |
|
| | Type | Description | Class CD | Sub Class CD | Year Built | Area |
| | MA | Main Area | 1 | 40 | 1950 | 1975.0 |
| | SI1 | SITE IMPROVEMENT | 1 | 40 | 1950 | 5.0 |
| | BASE | BASEMENT | 1 | 40 | 1950 | 1071.0 |
| | BPF | BASEMENT -PARTITIONED FINISH | 1 | 40 | 1950 | 999.0 |
| | ATG | Attached Garage | 1 | 40 | 1950 | 648.0 |
| | RPO | OPEN PORCH W/ROOF | 1 | 40 | 1950 | 54.0 |
| | D2F | Double 2 Story Fireplace | 1 | 40 | 1950 | 1.0 |
| | LNTD | LEAN TO DIRT FLOOR | 1 | 40 | 1950 | 432.0 |
| | LNTD | LEAN TO DIRT FLOOR | 1 | 40 | 1950 | 800.0 |
| | RPO | OPEN PORCH W/ROOF | 1 | 40 | 1950 | 91.0 |
Sketch
Property Image
Land
| 1 | RES 1 | Converted: Residential | 1.8400 | 0.00 | 0.00 | 0.00 | 1.00 | $190,770 | $0 |
Roll Value History
| 2026 | N/A | N/A | N/A | N/A | N/A |
| 2025 | $518,530 | $210,850 | $0 | $729,380 | $729,380 |
| 2024 | $507,170 | $190,770 | $0 | $697,940 | $697,940 |
| 2023 | $507,170 | $190,770 | $0 | $697,940 | $697,940 |
| 2022 | $507,170 | $163,160 | $0 | $670,330 | $670,330 |
| 2021 | $362,270 | $163,160 | $0 | $525,430 | $525,430 |
| 2020 | $241,510 | $163,160 | $0 | $404,670 | $404,670 |
| 2019 | $241,510 | $163,160 | $0 | $404,670 | $404,670 |
| 2018 | $315,030 | $81,700 | $0 | $396,730 | $396,730 |
| 2017 | $300,030 | $81,700 | $0 | $381,730 | $381,730 |
| 2016 | $285,740 | $81,700 | $0 | $367,440 | $367,440 |
| 2015 | $285,740 | $81,700 | $0 | $367,440 | $367,440 |
| 2014 | $219,800 | $81,700 | $0 | $301,500 | $301,500 |
| 2013 | $219,800 | $81,700 | $0 | $301,500 | $301,500 |
| 2012 | $217,500 | $81,700 | $0 | $0 | $0 |
| 2011 | $217,500 | $81,700 | $0 | $0 | $0 |
| 2010 | $217,500 | $81,700 | $0 | $0 | $0 |
| 2009 | $250,700 | $81,700 | $0 | $0 | $0 |
| 2008 | $250,700 | $81,700 | $0 | $0 | $0 |
| 2007 | $210,600 | $49,000 | $0 | $0 | $0 |
Deed and Sales History
| 1 | 01/27/2015 | SWD | STATUTORY WARRANTY DEED | BINGHAM KORTH E | ROSE MITSUKO K | | | $390,000.00 | 127329 | 2015-00680 |
| 2 | 09/02/1971 | WARRANTY D | WARRANTY DEED | | | | | $48,000.00 | 0 | 3420-516484 |
Payout Agreement
| No payout information available.. |