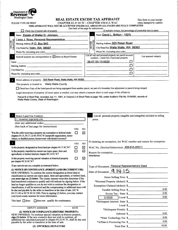
Property
Account |
| Property ID: | 12259 | Abbreviated Legal Description: | 33-7-36 SELY CORNER OF TAX 5 (WITHIN SW1/4SW1/4NE1/4) PARCEL B OFSHORTPLAT |
| Parcel Number: | 360733130020 | Agent Code: | |
| Type: | Real | | |
| Tax Area: | 105 - 140-F-4 | Land Use Code | 11 |
| Open Space: | N | DFL | N |
| Historic Property: | N | Remodel Property: | N |
| Multi-Family Redevelopment: | N | | |
| Township: | 7 | Section: | 33 |
| Range: | 36 |
Location |
| Address: | 925 RESER RD WA 99362 | Mapsco: | |
| Neighborhood: | G Res Rural/City Inf | Map ID: | |
| Neighborhood CD: | 614012 |
Owner |
| Name: | BRITTON DAVID L | Owner ID: | 57523 |
| Mailing Address: | 925 RESER RD WALLA WALLA, WA 99362 | % Ownership: | 100.0000000000% |
| | | Exemptions: | SNR/DSBL |
Taxes and Assessment Details
Property Tax Information as of
02/21/2026
Click on "Statement Details" to expand or collapse a tax statement.
* Please enter a valid date ** Please enter a valid date *
Statement Details |
| | TOTAL: | $0.00 | $0.00 | $0.00 | $0.00 | $0.00 | $0.00 |
|
| | $0.00 | $0.00 | $0.00 | $0.00 | $0.00 | $0.00 |
Values
| (+) Improvement Homesite Value: | + | $155,790 | |
| (+) Improvement Non-Homesite Value: | + | $0 | |
| (+) Land Homesite Value: | + | $120,640 | |
| (+) Land Non-Homesite Value: | + | $0 | |
| (+) Curr Use (HS): | + | $0 | $0 |
| (+) Curr Use (NHS): | + | $0 | $0 |
| | | -------------------------- | |
| (=) Market Value: | = | $276,430 | |
| (–) Productivity Loss: | – | $0 | |
| | | -------------------------- | |
| (=) Subtotal: | = | $276,430 | |
| (+) Senior Appraised Value: | + | $174,440 | |
| (+) Non-Senior Appraised Value: | + | $0 | |
| | | -------------------------- | |
| (=) Total Appraised Value: | = | $174,440 | |
| (–) Senior Exemption Loss: | – | $104,664 | |
| (–) Exemption Loss: | – | $0 | |
| | | -------------------------- | |
| (=) Taxable Value: | = | $69,776 | |
Taxing Jurisdiction
| Owner: | BRITTON DAVID L | | |
| % Ownership: | 100.0000000000% | | |
| Total Value: | $276,430 | | |
| Tax Area: | 105 - 140-F-4 |
| CERFD | CURRENT EXPENSE REFUND 010 | 0.0000000000 | $276,430 | $69,776 | $0.00 | | |
| CURREXP | CURRENT EXPENSE 010 | 1.0175366760 | $276,430 | $69,776 | $71.00 | | |
| HUMNSERV | HUMAN SERVICES 119 | 0.0250000000 | $276,430 | $69,776 | $1.74 | | |
| SLDREL | SOLDIERS RELIEF 121 | 0.0155990005 | $276,430 | $69,776 | $1.09 | | |
| EMERGSER | EMS 147 | 0.3792580840 | $276,430 | $69,776 | $26.46 | | |
| EMSRFD | EMS REFUND 147 | 0.0000000000 | $276,430 | $69,776 | $0.00 | | |
| FD4EXP | FD #4 EXPENSE 686 | 0.8836993059 | $276,430 | $69,776 | $61.66 | | |
| RLBRFD | RURAL LIBRARY REFUND 623 | 0.0000000000 | $276,430 | $69,776 | $0.00 | | |
| RURALLIB | RURAL LIBRARY 623 | 0.3710609029 | $276,430 | $69,776 | $25.89 | | |
| PORTRFD | PORT REFUND 640 | 0.0000000000 | $276,430 | $69,776 | $0.00 | | |
| PORTWWGEN | PORT OF WW 640 | 0.2460186015 | $276,430 | $69,776 | $17.17 | | |
| SD140BOND | SD #140 BOND 764 | 0.0000000000 | $276,430 | $0 | $0.00 | | |
| SD140GEN | SD #140 GENERAL 760 | 0.0000000000 | $276,430 | $0 | $0.00 | | |
| ST2 | STATE SCHOOL PART 2 600 | 0.0000000000 | $276,430 | $0 | $0.00 | | |
| STATESCHL | STATE SCHOOL 600 | 1.5158548041 | $276,430 | $69,776 | $105.77 | | |
| STREFUND | STATE REFUND LEVY 603 | 0.0000000000 | $276,430 | $69,776 | $0.00 | | |
| COROAD | COUNTY ROAD 115 | 1.6549953990 | $276,430 | $69,776 | $115.48 | | |
| CRPRD | COUNTY ROAD REFUND 115 | 0.0000000000 | $276,430 | $69,776 | $0.00 | | |
| | Total Tax Rate: | 6.1090227739 | | | | | |
| | | | | Taxes w/Current Exemptions: | $426.26 | | |
| | | | | Taxes w/o Exemptions: | $2,714.84 | | |
Improvement / Building
| Improvement #1: | RESIDENTIAL | State Code: | 11 | 1546.0 sqft | Value: | $155,790 |
| Exterior Wall: | SIDING | Heating/Cooling: | BASEBOARD HOT WATER | | Number of Bathrooms: | 1 | Number of Bedrooms: | 2 | | Plumbing: | 6 | Roof Covering: | CLAY TILE |
|
| | Type | Description | Class CD | Sub Class CD | Year Built | Area |
| | MA | Main Area | 1 | 30 | 1940 | 1546.0 |
| | SI1 | SITE IMPROVEMENT | 1 | 30 | 1940 | 2.5 |
| | BASE | BASEMENT | 1 | 30 | 1940 | 520.0 |
| | RPS | PORCH W/STEPS,ROOF | 1 | 30 | 1940 | 30.0 |
| | CPCD | CARPORT/DIRT FLOOR | 1 | 30 | 1940 | 240.0 |
| | CPCD | CARPORT/DIRT FLOOR | 1 | 30 | 1940 | 460.0 |
| | POL2 | POLE BUILDING-CONCRETE | 1 | 30 | 1940 | 864.0 |
Sketch
Property Image
Land
| 1 | RES 1 | Converted: Residential | 0.2900 | 12632.00 | 0.00 | 0.00 | 1.00 | $120,640 | $0 |
Roll Value History
| 2026 | N/A | N/A | N/A | N/A | N/A |
| 2025 | $160,140 | $144,510 | $0 | $304,650 | $69,776 |
| 2024 | $155,790 | $120,640 | $0 | $276,430 | $69,776 |
| 2023 | $155,790 | $120,640 | $0 | $276,430 | $69,776 |
| 2022 | $155,790 | $99,540 | $0 | $255,330 | $69,776 |
| 2021 | $119,840 | $99,540 | $0 | $219,380 | $69,776 |
| 2020 | $74,900 | $99,540 | $0 | $174,440 | $69,776 |
| 2019 | $74,900 | $99,540 | $0 | $174,440 | $69,776 |
| 2018 | $114,950 | $49,400 | $0 | $164,350 | $164,350 |
| 2017 | $109,480 | $49,400 | $0 | $158,880 | $158,880 |
| 2016 | $104,270 | $49,400 | $0 | $153,670 | $153,670 |
| 2015 | $104,270 | $49,400 | $0 | $153,670 | $153,670 |
| 2014 | $99,300 | $49,400 | $0 | $148,700 | $148,700 |
| 2013 | $99,300 | $49,400 | $0 | $148,700 | $148,700 |
| 2012 | $111,400 | $49,400 | $0 | $0 | $0 |
| 2011 | $84,600 | $49,400 | $0 | $0 | $0 |
| 2010 | $84,600 | $49,400 | $0 | $0 | $0 |
| 2009 | $125,800 | $49,400 | $0 | $0 | $0 |
| 2008 | $125,800 | $49,400 | $0 | $0 | $0 |
| 2007 | $50,700 | $26,900 | $0 | $0 | $0 |
Deed and Sales History
| 1 | 09/14/2015 | DPR | DEED OF PERSONAL REPRESENTATIVE | JOHNSON WALTER D ESTATE OF | BRITTON DAVID L | | | $0.00 | 128903 | 2015-08638 |
| 2 | 10/26/2000 | WARRANTY D | WARRANTY DEED | | | | | $75,000.00 | 96075 | 3040-010271 |
Payout Agreement
| No payout information available.. |