Property
Account |
| Property ID: | 12255 | Abbreviated Legal Description: | PARKWOOD CIRCLE CONDOS UNIT #36 |
| Parcel Number: | 360732780002 | Agent Code: | |
| Type: | Real | | |
| Tax Area: | 1 - OL-140-F | Land Use Code | 14 |
| Open Space: | N | DFL | N |
| Historic Property: | N | Remodel Property: | N |
| Multi-Family Redevelopment: | N | | |
| Township: | 7 | Section: | 32 |
| Range: | 36 |
Location |
| Address: | 36 PARKWOOD CIR WALLA WALLA, WA 99362 | Mapsco: | |
| Neighborhood: | G Res Condo | Map ID: | |
| Neighborhood CD: | 614041 |
Owner |
| Name: | MUNSEY RYAN B & ERICA C | Owner ID: | 67087 |
| Mailing Address: | 36 PARKWOOD CIRCLE WALLA WALLA, WA 99362 | % Ownership: | 100.0000000000% |
| | | Exemptions: | |
Taxes and Assessment Details
Values
| (+) Improvement Homesite Value: | + | $0 | |
| (+) Improvement Non-Homesite Value: | + | $292,250 | |
| (+) Land Homesite Value: | + | $0 | |
| (+) Land Non-Homesite Value: | + | $0 | |
| (+) Curr Use (HS): | + | $0 | $0 |
| (+) Curr Use (NHS): | + | $0 | $0 |
| | | -------------------------- | |
| (=) Market Value: | = | $292,250 | |
| (–) Productivity Loss: | – | $0 | |
| | | -------------------------- | |
| (=) Subtotal: | = | $292,250 | |
| (+) Senior Appraised Value: | + | $0 | |
| (+) Non-Senior Appraised Value: | + | $292,250 | |
| | | -------------------------- | |
| (=) Total Appraised Value: | = | $292,250 | |
| (–) Senior Exemption Loss: | – | $0 | |
| (–) Exemption Loss: | – | $0 | |
| | | -------------------------- | |
| (=) Taxable Value: | = | $292,250 | |
Taxing Jurisdiction
| Owner: | MUNSEY RYAN B & ERICA C | | |
| % Ownership: | 100.0000000000% | | |
| Total Value: | $292,250 | | |
| Tax Area: | 1 - OL-140-F |
| CERFD | CURRENT EXPENSE REFUND 010 | 0.0000000000 | $292,250 | $292,250 | $0.00 | | |
| CURREXP | CURRENT EXPENSE 010 | 1.0175366760 | $292,250 | $292,250 | $297.38 | | |
| HUMNSERV | HUMAN SERVICES 119 | 0.0250000000 | $292,250 | $292,250 | $7.31 | | |
| SLDREL | SOLDIERS RELIEF 121 | 0.0155990005 | $292,250 | $292,250 | $4.56 | | |
| EMERGSER | EMS 147 | 0.3792580840 | $292,250 | $292,250 | $110.84 | | |
| EMSRFD | EMS REFUND 147 | 0.0000000000 | $292,250 | $292,250 | $0.00 | | |
| PORTRFD | PORT REFUND 640 | 0.0000000000 | $292,250 | $292,250 | $0.00 | | |
| PORTWWGEN | PORT OF WW 640 | 0.2460186015 | $292,250 | $292,250 | $71.90 | | |
| SD140BOND | SD #140 BOND 764 | 0.8342371393 | $292,250 | $292,250 | $243.81 | | |
| SD140GEN | SD #140 GENERAL 760 | 2.0646500647 | $292,250 | $292,250 | $603.39 | | |
| ST2 | STATE SCHOOL PART 2 600 | 0.8131451643 | $292,250 | $292,250 | $237.64 | | |
| STATESCHL | STATE SCHOOL 600 | 1.5158548041 | $292,250 | $292,250 | $443.01 | | |
| STREFUND | STATE REFUND LEVY 603 | 0.0000000000 | $292,250 | $292,250 | $0.00 | | |
| CWWBOND | C OF WW BOND 643 | 0.2760494372 | $292,250 | $292,250 | $80.68 | | |
| CWWGEN | CITY OF WW 631 | 1.6100204973 | $292,250 | $292,250 | $470.53 | | |
| CWWRFD | CITY OF WALLA WALLA REFUND 631 | 0.0000000000 | $292,250 | $292,250 | $0.00 | | |
| | Total Tax Rate: | 8.7973694689 | | | | | |
| | | | | Taxes w/Current Exemptions: | $2,571.05 | | |
| | | | | Taxes w/o Exemptions: | $2,571.05 | | |
Improvement / Building
| Improvement #1: | RESIDENTIAL | State Code: | 14 | 1638.0 sqft | Value: | $292,250 |
| Exterior Wall: | PLYWOOD | Heating/Cooling: | WARM & COOLED AIR | | Number of Bathrooms: | 2 | Number of Bedrooms: | 3 | | Plumbing: | 9 | Roof Covering: | COMP SHINGLE |
|
| | Type | Description | Class CD | Sub Class CD | Year Built | Area |
| | MA | Main Area | 4 | 40 | 1998 | 1638.0 |
| | SI1 | SITE IMPROVEMENT | 4 | 40 | 1998 | 2.0 |
| | UPFL | Upper Floor (included in main area) | 4 | 40 | 1998 | 536.0 |
| | ATG | Attached Garage | 4 | 40 | 1998 | 424.0 |
| | S1F | Single One Story Fireplace | 4 | 40 | 1998 | 1.0 |
| | WOD | Wood Deck | 4 | 40 | 1998 | 160.0 |
| | RPO | OPEN PORCH W/ROOF | 4 | 40 | 1998 | 17.0 |
Sketch
Property Image
Land
No land segments exist for this property.
Roll Value History
| 2026 | N/A | N/A | N/A | N/A | N/A |
| 2025 | $294,990 | $0 | $0 | $294,990 | $294,990 |
| 2024 | $292,250 | $0 | $0 | $292,250 | $292,250 |
| 2023 | $292,250 | $0 | $0 | $292,250 | $292,250 |
| 2022 | $292,250 | $0 | $0 | $292,250 | $292,250 |
| 2021 | $265,680 | $0 | $0 | $265,680 | $265,680 |
| 2020 | $221,400 | $0 | $0 | $221,400 | $221,400 |
| 2019 | $221,400 | $0 | $0 | $221,400 | $221,400 |
| 2018 | $218,050 | $0 | $0 | $218,050 | $218,050 |
| 2017 | $207,670 | $0 | $0 | $207,670 | $207,670 |
| 2016 | $188,790 | $0 | $0 | $188,790 | $188,790 |
| 2015 | $188,790 | $0 | $0 | $188,790 | $188,790 |
| 2014 | $179,800 | $0 | $0 | $179,800 | $179,800 |
| 2013 | $179,800 | $0 | $0 | $179,800 | $179,800 |
| 2012 | $182,500 | $0 | $0 | $0 | $0 |
| 2011 | $173,800 | $0 | $0 | $0 | $0 |
| 2010 | $173,800 | $0 | $0 | $0 | $0 |
| 2009 | $193,100 | $0 | $0 | $0 | $0 |
| 2008 | $193,100 | $0 | $0 | $0 | $0 |
| 2007 | $110,700 | $30,000 | $0 | $0 | $0 |
Deed and Sales History
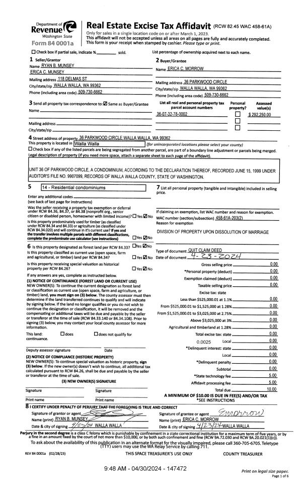
| 1 | 04/30/2024 | QCD | QUIT CLAIM DEED | MUNSEY RYAN B & ERICA C | MORROW ERICA C | | | | 147472 | 2024-02195 |
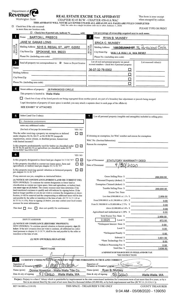
| 2 | 05/08/2020 | SWD | STATUTORY WARRANTY DEED | PREECS BARTON L | MUNSEY RYAN B & ERICA C | | | $269,000.00 | 139050 | 2020-03927 |
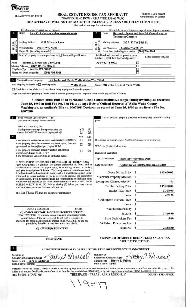
| 3 | 09/28/2010 | WARRANTY D | WARRANTY DEED | ANDERSON, SARA C | PREECS, BARTON L | | | $185,000.00 | 119077 | 2010-07687 |
| 4 | 06/27/2000 | WARRANTY D | WARRANTY DEED | | | | | $141,500.00 | 53642 | 2990-006117 |
Payout Agreement
| No payout information available.. |