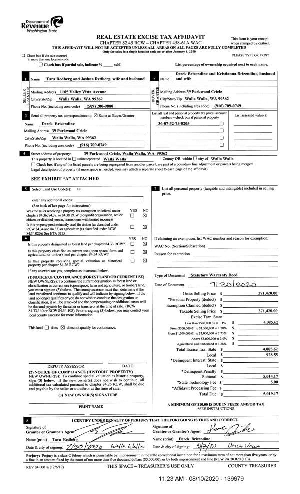
Property
Account |
| Property ID: | 12249 | Abbreviated Legal Description: | PARKWOOD HEIGHTS LOT 5 BLK 2 |
| Parcel Number: | 360732750205 | Agent Code: | |
| Type: | Real | | |
| Tax Area: | 1 - OL-140-F | Land Use Code | 11 |
| Open Space: | N | DFL | N |
| Historic Property: | N | Remodel Property: | N |
| Multi-Family Redevelopment: | N | | |
| Township: | 7 | Section: | 32 |
| Range: | 36 |
Location |
| Address: | 39 PARKWOOD CIR WALLA WALLA, WA 99362 | Mapsco: | |
| Neighborhood: | G Res | Map ID: | |
| Neighborhood CD: | 614011 |
Owner |
| Name: | BRIZENDINE DEREK & KRISTIANNA | Owner ID: | 67767 |
| Mailing Address: | 39 PARKWOOD CIRCLE WALLA WALLA, WA 99362 | % Ownership: | 100.0000000000% |
| | | Exemptions: | |
Taxes and Assessment Details
Values
| (+) Improvement Homesite Value: | + | $0 | |
| (+) Improvement Non-Homesite Value: | + | $380,320 | |
| (+) Land Homesite Value: | + | $0 | |
| (+) Land Non-Homesite Value: | + | $100,000 | |
| (+) Curr Use (HS): | + | $0 | $0 |
| (+) Curr Use (NHS): | + | $0 | $0 |
| | | -------------------------- | |
| (=) Market Value: | = | $480,320 | |
| (–) Productivity Loss: | – | $0 | |
| | | -------------------------- | |
| (=) Subtotal: | = | $480,320 | |
| (+) Senior Appraised Value: | + | $0 | |
| (+) Non-Senior Appraised Value: | + | $480,320 | |
| | | -------------------------- | |
| (=) Total Appraised Value: | = | $480,320 | |
| (–) Senior Exemption Loss: | – | $0 | |
| (–) Exemption Loss: | – | $0 | |
| | | -------------------------- | |
| (=) Taxable Value: | = | $480,320 | |
Taxing Jurisdiction
| Owner: | BRIZENDINE DEREK & KRISTIANNA | | |
| % Ownership: | 100.0000000000% | | |
| Total Value: | $480,320 | | |
| Tax Area: | 1 - OL-140-F |
| CERFD | CURRENT EXPENSE REFUND 010 | 0.0000000000 | $480,320 | $480,320 | $0.00 | | |
| CURREXP | CURRENT EXPENSE 010 | 1.0175366760 | $480,320 | $480,320 | $488.74 | | |
| HUMNSERV | HUMAN SERVICES 119 | 0.0250000000 | $480,320 | $480,320 | $12.01 | | |
| SLDREL | SOLDIERS RELIEF 121 | 0.0155990005 | $480,320 | $480,320 | $7.49 | | |
| EMERGSER | EMS 147 | 0.3792580840 | $480,320 | $480,320 | $182.17 | | |
| EMSRFD | EMS REFUND 147 | 0.0000000000 | $480,320 | $480,320 | $0.00 | | |
| PORTRFD | PORT REFUND 640 | 0.0000000000 | $480,320 | $480,320 | $0.00 | | |
| PORTWWGEN | PORT OF WW 640 | 0.2460186015 | $480,320 | $480,320 | $118.17 | | |
| SD140BOND | SD #140 BOND 764 | 0.8342371393 | $480,320 | $480,320 | $400.70 | | |
| SD140GEN | SD #140 GENERAL 760 | 2.0646500647 | $480,320 | $480,320 | $991.69 | | |
| ST2 | STATE SCHOOL PART 2 600 | 0.8131451643 | $480,320 | $480,320 | $390.57 | | |
| STATESCHL | STATE SCHOOL 600 | 1.5158548041 | $480,320 | $480,320 | $728.10 | | |
| STREFUND | STATE REFUND LEVY 603 | 0.0000000000 | $480,320 | $480,320 | $0.00 | | |
| CWWBOND | C OF WW BOND 643 | 0.2760494372 | $480,320 | $480,320 | $132.59 | | |
| CWWGEN | CITY OF WW 631 | 1.6100204973 | $480,320 | $480,320 | $773.33 | | |
| CWWRFD | CITY OF WALLA WALLA REFUND 631 | 0.0000000000 | $480,320 | $480,320 | $0.00 | | |
| | Total Tax Rate: | 8.7973694689 | | | | | |
| | | | | Taxes w/Current Exemptions: | $4,225.56 | | |
| | | | | Taxes w/o Exemptions: | $4,225.56 | | |
Improvement / Building
| Improvement #1: | RESIDENTIAL | State Code: | 11 | 2113.0 sqft | Value: | $380,320 |
| Exterior Wall: | PLYWOOD | Heating/Cooling: | WARM & COOLED AIR | | Number of Bathrooms: | 3 | Number of Bedrooms: | 4 | | Plumbing: | 13 | Roof Covering: | COMP SHINGLE |
|
| | Type | Description | Class CD | Sub Class CD | Year Built | Area |
| | MA | Main Area | 2 | 40 | 2002 | 2113.0 |
| | SI1 | SITE IMPROVEMENT | 2 | 40 | 2002 | 2.5 |
| | UPFL | Upper Floor (included in main area) | 2 | 40 | 2002 | 1054.0 |
| | ATG | Attached Garage | 2 | 40 | 2002 | 826.0 |
| | RPO | OPEN PORCH W/ROOF | 2 | 40 | 2002 | 154.0 |
| | RPO | OPEN PORCH W/ROOF | 2 | 40 | 2008 | 166.0 |
Sketch
Property Image
Land
| 1 | RES 1 | Converted: Residential | 0.1670 | 7273.00 | 0.00 | 0.00 | 1.00 | $100,000 | $0 |
Roll Value History
| 2026 | N/A | N/A | N/A | N/A | N/A |
| 2025 | $341,580 | $140,000 | $0 | $481,580 | $481,580 |
| 2024 | $380,320 | $100,000 | $0 | $480,320 | $480,320 |
| 2023 | $380,320 | $100,000 | $0 | $480,320 | $480,320 |
| 2022 | $380,320 | $85,000 | $0 | $465,320 | $465,320 |
| 2021 | $281,720 | $85,000 | $0 | $366,720 | $366,720 |
| 2020 | $268,300 | $85,000 | $0 | $353,300 | $353,300 |
| 2019 | $268,300 | $85,000 | $0 | $353,300 | $353,300 |
| 2018 | $217,140 | $50,000 | $0 | $267,140 | $267,140 |
| 2017 | $217,140 | $50,000 | $0 | $267,140 | $267,140 |
| 2016 | $217,140 | $50,000 | $0 | $267,140 | $267,140 |
| 2015 | $217,140 | $50,000 | $0 | $267,140 | $267,140 |
| 2014 | $206,800 | $50,000 | $0 | $256,800 | $256,800 |
| 2013 | $206,800 | $50,000 | $0 | $256,800 | $256,800 |
| 2012 | $190,900 | $50,000 | $0 | $0 | $0 |
| 2011 | $190,900 | $50,000 | $0 | $0 | $0 |
| 2010 | $190,900 | $50,000 | $0 | $0 | $0 |
| 2009 | $213,700 | $50,000 | $0 | $0 | $0 |
| 2008 | $213,700 | $50,000 | $0 | $0 | $0 |
| 2007 | $162,700 | $30,000 | $0 | $0 | $0 |
Deed and Sales History
| 1 | 08/10/2020 | SWD | STATUTORY WARRANTY DEED | REDBERG JOSHUA & TARA | BRIZENDINE DEREK & KRISTIANNA | | | $371,420.00 | 139679 | 2020-07822 |
| 2 | 09/30/2015 | SWD | STATUTORY WARRANTY DEED | NATIONSTAR MORTGAGE LLC | REDBERG JOSHUA & TARA | | | $210,000.00 | 128907 | 2015-08582 |
| 3 | 07/20/2015 | WARRANTY D | WARRANTY DEED | SHAW TOM & LIBBY | NATIONSTAR MORTGAGE LLC | | | $0.00 | 128432 | 2015-06206 |
| 4 | 03/05/2002 | WARRANTY D | WARRANTY DEED | | | | | $35,000.00 | 99042 | 3300-202741 |
Payout Agreement
| No payout information available.. |