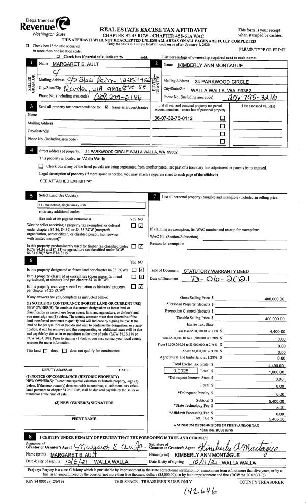
Property
Account |
| Property ID: | 12239 | Abbreviated Legal Description: | PARKWOOD HEIGHTS LOT 12 BLK 1 |
| Parcel Number: | 360732750112 | Agent Code: | |
| Type: | Real | | |
| Tax Area: | 1 - OL-140-F | Land Use Code | 11 |
| Open Space: | N | DFL | N |
| Historic Property: | N | Remodel Property: | N |
| Multi-Family Redevelopment: | N | | |
| Township: | 7 | Section: | 32 |
| Range: | 36 |
Location |
| Address: | 24 PARKWOOD CIR WALLA WALLA, WA 99362 | Mapsco: | |
| Neighborhood: | G Res | Map ID: | |
| Neighborhood CD: | 614011 |
Owner |
| Name: | MONTAGUE KIMBERLY ANN | Owner ID: | 70954 |
| Mailing Address: | 24 PARKWOOD CIRCLE WALLA WALLA, WA 99362 | % Ownership: | 100.0000000000% |
| | | Exemptions: | |
Taxes and Assessment Details
Values
| (+) Improvement Homesite Value: | + | $0 | |
| (+) Improvement Non-Homesite Value: | + | $298,610 | |
| (+) Land Homesite Value: | + | $0 | |
| (+) Land Non-Homesite Value: | + | $100,000 | |
| (+) Curr Use (HS): | + | $0 | $0 |
| (+) Curr Use (NHS): | + | $0 | $0 |
| | | -------------------------- | |
| (=) Market Value: | = | $398,610 | |
| (–) Productivity Loss: | – | $0 | |
| | | -------------------------- | |
| (=) Subtotal: | = | $398,610 | |
| (+) Senior Appraised Value: | + | $0 | |
| (+) Non-Senior Appraised Value: | + | $398,610 | |
| | | -------------------------- | |
| (=) Total Appraised Value: | = | $398,610 | |
| (–) Senior Exemption Loss: | – | $0 | |
| (–) Exemption Loss: | – | $0 | |
| | | -------------------------- | |
| (=) Taxable Value: | = | $398,610 | |
Taxing Jurisdiction
| Owner: | MONTAGUE KIMBERLY ANN | | |
| % Ownership: | 100.0000000000% | | |
| Total Value: | $398,610 | | |
| Tax Area: | 1 - OL-140-F |
| CERFD | CURRENT EXPENSE REFUND 010 | 0.0000000000 | $398,610 | $398,610 | $0.00 | | |
| CURREXP | CURRENT EXPENSE 010 | 1.0175366760 | $398,610 | $398,610 | $405.60 | | |
| HUMNSERV | HUMAN SERVICES 119 | 0.0250000000 | $398,610 | $398,610 | $9.97 | | |
| SLDREL | SOLDIERS RELIEF 121 | 0.0155990005 | $398,610 | $398,610 | $6.22 | | |
| EMERGSER | EMS 147 | 0.3792580840 | $398,610 | $398,610 | $151.18 | | |
| EMSRFD | EMS REFUND 147 | 0.0000000000 | $398,610 | $398,610 | $0.00 | | |
| PORTRFD | PORT REFUND 640 | 0.0000000000 | $398,610 | $398,610 | $0.00 | | |
| PORTWWGEN | PORT OF WW 640 | 0.2460186015 | $398,610 | $398,610 | $98.07 | | |
| SD140BOND | SD #140 BOND 764 | 0.8342371393 | $398,610 | $398,610 | $332.54 | | |
| SD140GEN | SD #140 GENERAL 760 | 2.0646500647 | $398,610 | $398,610 | $822.99 | | |
| ST2 | STATE SCHOOL PART 2 600 | 0.8131451643 | $398,610 | $398,610 | $324.13 | | |
| STATESCHL | STATE SCHOOL 600 | 1.5158548041 | $398,610 | $398,610 | $604.23 | | |
| STREFUND | STATE REFUND LEVY 603 | 0.0000000000 | $398,610 | $398,610 | $0.00 | | |
| CWWBOND | C OF WW BOND 643 | 0.2760494372 | $398,610 | $398,610 | $110.04 | | |
| CWWGEN | CITY OF WW 631 | 1.6100204973 | $398,610 | $398,610 | $641.77 | | |
| CWWRFD | CITY OF WALLA WALLA REFUND 631 | 0.0000000000 | $398,610 | $398,610 | $0.00 | | |
| | Total Tax Rate: | 8.7973694689 | | | | | |
| | | | | Taxes w/Current Exemptions: | $3,506.74 | | |
| | | | | Taxes w/o Exemptions: | $3,506.74 | | |
Improvement / Building
| Improvement #1: | RESIDENTIAL | State Code: | 11 | 1276.0 sqft | Value: | $298,610 |
| Exterior Wall: | HARDBOARD | Heating/Cooling: | WARM & COOLED AIR | | Number of Bathrooms: | 2 | Number of Bedrooms: | 3 | | Plumbing: | 10 | Roof Covering: | COMP SHINGLE |
|
| | Type | Description | Class CD | Sub Class CD | Year Built | Area |
| | MA | Main Area | 1 | 40 | 2001 | 1276.0 |
| | SI1 | SITE IMPROVEMENT | 1 | 40 | 2001 | 1.5 |
| | ATG | Attached Garage | 1 | 40 | 2001 | 400.0 |
| | RPO | OPEN PORCH W/ROOF | 1 | 40 | 2001 | 40.0 |
| | RPO | OPEN PORCH W/ROOF | 1 | 40 | 2001 | 128.0 |
Sketch
Property Image
Land
| 1 | RES 1 | Converted: Residential | 0.1665 | 7253.00 | 0.00 | 0.00 | 1.00 | $100,000 | $0 |
Roll Value History
| 2026 | N/A | N/A | N/A | N/A | N/A |
| 2025 | $259,130 | $140,000 | $0 | $399,130 | $399,130 |
| 2024 | $298,610 | $100,000 | $0 | $398,610 | $398,610 |
| 2023 | $298,610 | $100,000 | $0 | $398,610 | $398,610 |
| 2022 | $284,390 | $85,000 | $0 | $369,390 | $369,390 |
| 2021 | $196,130 | $85,000 | $0 | $281,130 | $281,130 |
| 2020 | $178,300 | $85,000 | $0 | $263,300 | $263,300 |
| 2019 | $178,300 | $85,000 | $0 | $263,300 | $263,300 |
| 2018 | $137,660 | $50,000 | $0 | $187,660 | $187,660 |
| 2017 | $131,100 | $50,000 | $0 | $181,100 | $181,100 |
| 2016 | $131,100 | $50,000 | $0 | $181,100 | $181,100 |
| 2015 | $131,100 | $50,000 | $0 | $181,100 | $181,100 |
| 2014 | $131,100 | $50,000 | $0 | $181,100 | $181,100 |
| 2013 | $131,100 | $50,000 | $0 | $181,100 | $181,100 |
| 2012 | $130,800 | $50,000 | $0 | $0 | $0 |
| 2011 | $130,800 | $50,000 | $0 | $0 | $0 |
| 2010 | $130,800 | $50,000 | $0 | $0 | $0 |
| 2009 | $146,500 | $50,000 | $0 | $0 | $0 |
| 2008 | $146,500 | $50,000 | $0 | $0 | $0 |
| 2007 | $98,600 | $30,000 | $0 | $0 | $0 |
Deed and Sales History
| 1 | 03/27/2023 | TODD | TRANSFER ON DEATH DEED | MONTAGUE KIMBERLY ANN | MONTAGUE ASHLEY | | | | 0 | 2023-01537 |
| 2 | 10/11/2021 | SWD | STATUTORY WARRANTY DEED | AULT MARGARET E | MONTAGUE KIMBERLY ANN | | | $400,000.00 | 142646 | 2021-12345 |
| 3 | 04/13/2001 | WARRANTY D | WARRANTY DEED | | | | | $26,500.00 | 96957 | 3110-103654 |
Payout Agreement
| No payout information available.. |