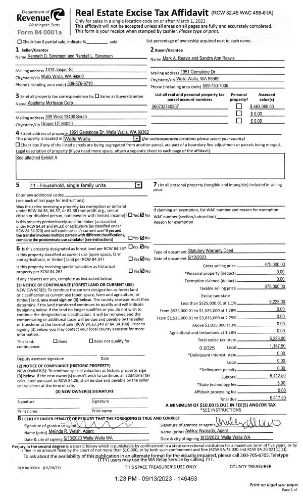
Property
Account |
| Property ID: | 12232 | Abbreviated Legal Description: | STONE CREEK PHASE 4 LOT 7 BLK 3 |
| Parcel Number: | 360732740307 | Agent Code: | |
| Type: | Real | | |
| Tax Area: | 1 - OL-140-F | Land Use Code | 11 |
| Open Space: | N | DFL | N |
| Historic Property: | N | Remodel Property: | N |
| Multi-Family Redevelopment: | N | | |
| Township: | 7 | Section: | 32 |
| Range: | 36 |
Location |
| Address: | 1951 GEMSTONE DR WA 99362 | Mapsco: | |
| Neighborhood: | G Res | Map ID: | |
| Neighborhood CD: | 614011 |
Owner |
| Name: | SORENSON KENNETH D & RANDALL L | Owner ID: | 58842 |
| Mailing Address: | 1951 GEMSTONE DR WALLA WALLA, WA 99362 | % Ownership: | 100.0000000000% |
| | | Exemptions: | |
Taxes and Assessment Details
Property Tax Information as of
02/21/2026
Click on "Statement Details" to expand or collapse a tax statement.
* Please enter a valid date ** Please enter a valid date *
Statement Details |
| | TOTAL: | $0.00 | $0.00 | $0.00 | $0.00 | $0.00 | $0.00 |
|
| | $0.00 | $0.00 | $0.00 | $0.00 | $0.00 | $0.00 |
Values
| (+) Improvement Homesite Value: | + | $0 | |
| (+) Improvement Non-Homesite Value: | + | $364,160 | |
| (+) Land Homesite Value: | + | $0 | |
| (+) Land Non-Homesite Value: | + | $98,900 | |
| (+) Curr Use (HS): | + | $0 | $0 |
| (+) Curr Use (NHS): | + | $0 | $0 |
| | | -------------------------- | |
| (=) Market Value: | = | $463,060 | |
| (–) Productivity Loss: | – | $0 | |
| | | -------------------------- | |
| (=) Subtotal: | = | $463,060 | |
| (+) Senior Appraised Value: | + | $0 | |
| (+) Non-Senior Appraised Value: | + | $463,060 | |
| | | -------------------------- | |
| (=) Total Appraised Value: | = | $463,060 | |
| (–) Senior Exemption Loss: | – | $0 | |
| (–) Exemption Loss: | – | $0 | |
| | | -------------------------- | |
| (=) Taxable Value: | = | $463,060 | |
Taxing Jurisdiction
| Owner: | SORENSON KENNETH D & RANDALL L | | |
| % Ownership: | 100.0000000000% | | |
| Total Value: | $463,060 | | |
| Tax Area: | 1 - OL-140-F |
| CERFD | CURRENT EXPENSE REFUND 010 | 0.0000000000 | $463,060 | $463,060 | $0.00 | | |
| CURREXP | CURRENT EXPENSE 010 | 1.0175366760 | $463,060 | $463,060 | $471.18 | | |
| HUMNSERV | HUMAN SERVICES 119 | 0.0250000000 | $463,060 | $463,060 | $11.58 | | |
| SLDREL | SOLDIERS RELIEF 121 | 0.0155990005 | $463,060 | $463,060 | $7.22 | | |
| EMERGSER | EMS 147 | 0.3792580840 | $463,060 | $463,060 | $175.62 | | |
| EMSRFD | EMS REFUND 147 | 0.0000000000 | $463,060 | $463,060 | $0.00 | | |
| PORTRFD | PORT REFUND 640 | 0.0000000000 | $463,060 | $463,060 | $0.00 | | |
| PORTWWGEN | PORT OF WW 640 | 0.2460186015 | $463,060 | $463,060 | $113.92 | | |
| SD140BOND | SD #140 BOND 764 | 0.8342371393 | $463,060 | $463,060 | $386.30 | | |
| SD140GEN | SD #140 GENERAL 760 | 2.0646500647 | $463,060 | $463,060 | $956.06 | | |
| ST2 | STATE SCHOOL PART 2 600 | 0.8131451643 | $463,060 | $463,060 | $376.54 | | |
| STATESCHL | STATE SCHOOL 600 | 1.5158548041 | $463,060 | $463,060 | $701.93 | | |
| STREFUND | STATE REFUND LEVY 603 | 0.0000000000 | $463,060 | $463,060 | $0.00 | | |
| CWWBOND | C OF WW BOND 643 | 0.2760494372 | $463,060 | $463,060 | $127.83 | | |
| CWWGEN | CITY OF WW 631 | 1.6100204973 | $463,060 | $463,060 | $745.54 | | |
| CWWRFD | CITY OF WALLA WALLA REFUND 631 | 0.0000000000 | $463,060 | $463,060 | $0.00 | | |
| | Total Tax Rate: | 8.7973694689 | | | | | |
| | | | | Taxes w/Current Exemptions: | $4,073.72 | | |
| | | | | Taxes w/o Exemptions: | $4,073.72 | | |
Improvement / Building
| Improvement #1: | RESIDENTIAL | State Code: | 11 | 1932.0 sqft | Value: | $364,160 |
| Exterior Wall: | SIDING | Heating/Cooling: | REV-HEAT-PUMP-W/DUCT | | Number of Bathrooms: | 2 | Number of Bedrooms: | 3 | | Plumbing: | 8 | Roof Covering: | COMP SHINGLE |
|
| | Type | Description | Class CD | Sub Class CD | Year Built | Area |
| | MA | Main Area | 1 | 35 | 2004 | 1932.0 |
| | SI1 | SITE IMPROVEMENT | 1 | 35 | 2004 | 2.5 |
| | ATG | Attached Garage | 1 | 35 | 2004 | 600.0 |
| | RPO | OPEN PORCH W/ROOF | 1 | 35 | 2004 | 148.0 |
| | CPC | COVERED CARPORT/PATIO | 1 | 35 | 2004 | 90.0 |
| | GFP | GAS FIREPLACE | 1 | 35 | 2004 | 1.0 |
Sketch
Property Image
Land
| 1 | RES 1 | Converted: Residential | 0.2270 | 9890.00 | 0.00 | 0.00 | 1.00 | $98,900 | $0 |
Roll Value History
| 2026 | N/A | N/A | N/A | N/A | N/A |
| 2025 | $321,830 | $125,000 | $0 | $446,830 | $446,830 |
| 2024 | $364,160 | $98,900 | $0 | $463,060 | $463,060 |
| 2023 | $364,160 | $98,900 | $0 | $463,060 | $463,060 |
| 2022 | $364,160 | $71,700 | $0 | $435,860 | $435,860 |
| 2021 | $269,750 | $71,700 | $0 | $341,450 | $341,450 |
| 2020 | $215,800 | $71,700 | $0 | $287,500 | $287,500 |
| 2019 | $215,800 | $71,700 | $0 | $287,500 | $287,500 |
| 2018 | $223,190 | $47,000 | $0 | $270,190 | $270,190 |
| 2017 | $212,560 | $47,000 | $0 | $259,560 | $259,560 |
| 2016 | $202,440 | $47,000 | $0 | $249,440 | $249,440 |
| 2015 | $202,440 | $47,000 | $0 | $249,440 | $249,440 |
| 2014 | $192,800 | $47,000 | $0 | $239,800 | $239,800 |
| 2013 | $192,800 | $47,000 | $0 | $239,800 | $239,800 |
| 2012 | $206,400 | $47,000 | $0 | $0 | $0 |
| 2011 | $206,400 | $47,000 | $0 | $0 | $0 |
| 2010 | $206,400 | $47,000 | $0 | $0 | $0 |
| 2009 | $231,600 | $50,000 | $0 | $0 | $0 |
| 2008 | $231,600 | $50,000 | $0 | $0 | $0 |
| 2007 | $177,500 | $30,000 | $0 | $0 | $0 |
Deed and Sales History
| 1 | 09/13/2023 | SWD | STATUTORY WARRANTY DEED | SORENSON KENNETH D & RANDALL L | REAVIS MARK A & SANDRA ANN | | | $475,000.00 | 146463 | 2023-05338 |
| 2 | 06/06/2016 | SWD | STATUTORY WARRANTY DEED | ANDERSON EDWARD W | SORENSON KENNETH D & RANDALL L | | | $272,750.00 | 130356 | 2016-04255 |
| 3 | 07/30/2003 | WARRANTY D | WARRANTY DEED | MOELLER CONSTRUCTION CO INC | ANDERSON, EDWARD W | | | $212,576.00 | 102674 | 2003-11335 |
Payout Agreement
| No payout information available.. |