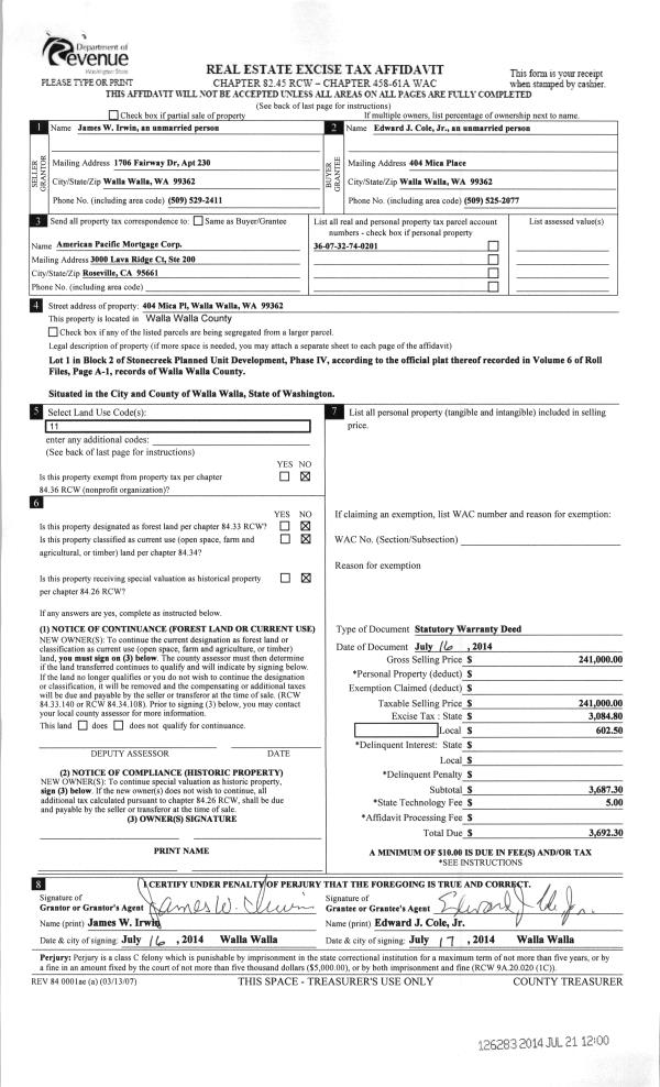
Property
Account |
| Property ID: | 12225 | Abbreviated Legal Description: | STONE CREEK PHASE 4 LOT 1 BLK 2 |
| Parcel Number: | 360732740201 | Agent Code: | |
| Type: | Real | | |
| Tax Area: | 1 - OL-140-F | Land Use Code | 11 |
| Open Space: | N | DFL | N |
| Historic Property: | N | Remodel Property: | N |
| Multi-Family Redevelopment: | N | | |
| Township: | 7 | Section: | 32 |
| Range: | 36 |
Location |
| Address: | 404 MICA PL WA 99362 | Mapsco: | |
| Neighborhood: | G Res | Map ID: | |
| Neighborhood CD: | 614011 |
Owner |
| Name: | COLE EDWARD J JR | Owner ID: | 55201 |
| Mailing Address: | 404 MICA PLACE WALLA WALLA, WA 99362 | % Ownership: | 100.0000000000% |
| | | Exemptions: | |
Taxes and Assessment Details
Values
| (+) Improvement Homesite Value: | + | $0 | |
| (+) Improvement Non-Homesite Value: | + | $391,940 | |
| (+) Land Homesite Value: | + | $0 | |
| (+) Land Non-Homesite Value: | + | $106,420 | |
| (+) Curr Use (HS): | + | $0 | $0 |
| (+) Curr Use (NHS): | + | $0 | $0 |
| | | -------------------------- | |
| (=) Market Value: | = | $498,360 | |
| (–) Productivity Loss: | – | $0 | |
| | | -------------------------- | |
| (=) Subtotal: | = | $498,360 | |
| (+) Senior Appraised Value: | + | $0 | |
| (+) Non-Senior Appraised Value: | + | $498,360 | |
| | | -------------------------- | |
| (=) Total Appraised Value: | = | $498,360 | |
| (–) Senior Exemption Loss: | – | $0 | |
| (–) Exemption Loss: | – | $0 | |
| | | -------------------------- | |
| (=) Taxable Value: | = | $498,360 | |
Taxing Jurisdiction
| Owner: | COLE EDWARD J JR | | |
| % Ownership: | 100.0000000000% | | |
| Total Value: | $498,360 | | |
| Tax Area: | 1 - OL-140-F |
| CERFD | CURRENT EXPENSE REFUND 010 | 0.0000000000 | $498,360 | $498,360 | $0.00 | | |
| CURREXP | CURRENT EXPENSE 010 | 1.0175366760 | $498,360 | $498,360 | $507.10 | | |
| HUMNSERV | HUMAN SERVICES 119 | 0.0250000000 | $498,360 | $498,360 | $12.46 | | |
| SLDREL | SOLDIERS RELIEF 121 | 0.0155990005 | $498,360 | $498,360 | $7.77 | | |
| EMERGSER | EMS 147 | 0.3792580840 | $498,360 | $498,360 | $189.01 | | |
| EMSRFD | EMS REFUND 147 | 0.0000000000 | $498,360 | $498,360 | $0.00 | | |
| PORTRFD | PORT REFUND 640 | 0.0000000000 | $498,360 | $498,360 | $0.00 | | |
| PORTWWGEN | PORT OF WW 640 | 0.2460186015 | $498,360 | $498,360 | $122.61 | | |
| SD140BOND | SD #140 BOND 764 | 0.8342371393 | $498,360 | $498,360 | $415.75 | | |
| SD140GEN | SD #140 GENERAL 760 | 2.0646500647 | $498,360 | $498,360 | $1,028.94 | | |
| ST2 | STATE SCHOOL PART 2 600 | 0.8131451643 | $498,360 | $498,360 | $405.24 | | |
| STATESCHL | STATE SCHOOL 600 | 1.5158548041 | $498,360 | $498,360 | $755.44 | | |
| STREFUND | STATE REFUND LEVY 603 | 0.0000000000 | $498,360 | $498,360 | $0.00 | | |
| CWWBOND | C OF WW BOND 643 | 0.2760494372 | $498,360 | $498,360 | $137.57 | | |
| CWWGEN | CITY OF WW 631 | 1.6100204973 | $498,360 | $498,360 | $802.37 | | |
| CWWRFD | CITY OF WALLA WALLA REFUND 631 | 0.0000000000 | $498,360 | $498,360 | $0.00 | | |
| | Total Tax Rate: | 8.7973694689 | | | | | |
| | | | | Taxes w/Current Exemptions: | $4,384.26 | | |
| | | | | Taxes w/o Exemptions: | $4,384.26 | | |
Improvement / Building
| Improvement #1: | RESIDENTIAL | State Code: | 11 | 1941.0 sqft | Value: | $391,940 |
| Exterior Wall: | SIDING | Heating/Cooling: | WARM & COOLED AIR | | Number of Bathrooms: | 2 | Number of Bedrooms: | 3 | | Plumbing: | 9 | Roof Covering: | COMP SHINGLE |
|
| | Type | Description | Class CD | Sub Class CD | Year Built | Area |
| | MA | Main Area | 1 | 35 | 1997 | 1941.0 |
| | SI1 | SITE IMPROVEMENT | 1 | 35 | 1997 | 2.5 |
| | ATG | Attached Garage | 1 | 35 | 1997 | 552.0 |
| | OPS | OPEN PORCH W/STEPS | 1 | 35 | 1997 | 80.0 |
| | OSP | Open | 1 | 35 | 1997 | 240.0 |
Sketch
Property Image
Land
| 1 | RES 1 | Converted: Residential | 0.2443 | 10642.00 | 0.00 | 0.00 | 1.00 | $106,420 | $0 |
Roll Value History
| 2026 | N/A | N/A | N/A | N/A | N/A |
| 2025 | $322,620 | $125,000 | $0 | $447,620 | $447,620 |
| 2024 | $391,940 | $106,420 | $0 | $498,360 | $498,360 |
| 2023 | $391,940 | $106,420 | $0 | $498,360 | $498,360 |
| 2022 | $340,810 | $72,900 | $0 | $413,710 | $413,710 |
| 2021 | $296,360 | $72,900 | $0 | $369,260 | $369,260 |
| 2020 | $191,200 | $72,900 | $0 | $264,100 | $264,100 |
| 2019 | $191,200 | $72,900 | $0 | $264,100 | $264,100 |
| 2018 | $196,300 | $47,700 | $0 | $244,000 | $244,000 |
| 2017 | $196,300 | $47,700 | $0 | $244,000 | $244,000 |
| 2016 | $196,300 | $47,700 | $0 | $244,000 | $244,000 |
| 2015 | $196,300 | $47,700 | $0 | $244,000 | $244,000 |
| 2014 | $196,300 | $47,700 | $0 | $244,000 | $244,000 |
| 2013 | $196,300 | $47,700 | $0 | $244,000 | $244,000 |
| 2012 | $218,900 | $47,700 | $0 | $0 | $0 |
| 2011 | $218,900 | $47,700 | $0 | $0 | $0 |
| 2010 | $218,900 | $47,700 | $0 | $0 | $0 |
| 2009 | $207,600 | $50,000 | $0 | $0 | $0 |
| 2008 | $207,600 | $50,000 | $0 | $0 | $0 |
| 2007 | $146,100 | $30,000 | $0 | $0 | $0 |
Deed and Sales History
| 1 | 07/21/2014 | SWD | STATUTORY WARRANTY DEED | IRWIN JAMES W | COLE EDWARD J JR | | | $241,000.00 | 126283 | 2014-05071 |
| 2 | 11/04/1997 | WARRANTY D | WARRANTY DEED | | | | | $168,500.00 | 89295 | 2599-710778 |
Payout Agreement
| No payout information available.. |