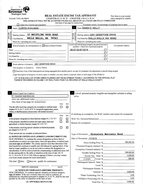
Property
Account |
| Property ID: | 12175 | Abbreviated Legal Description: | STONE CREEK #2 PARCEL #19 BLK 2 |
| Parcel Number: | 360732670219 | Agent Code: | |
| Type: | Real | | |
| Tax Area: | 1 - OL-140-F | Land Use Code | 11 |
| Open Space: | N | DFL | N |
| Historic Property: | N | Remodel Property: | N |
| Multi-Family Redevelopment: | N | | |
| Township: | 7 | Section: | 32 |
| Range: | 36 |
Location |
| Address: | 2051 GEMSTONE DR WA 99362 | Mapsco: | |
| Neighborhood: | G Res | Map ID: | |
| Neighborhood CD: | 614011 |
Owner |
| Name: | KELLY RANDI D | Owner ID: | 57784 |
| Mailing Address: | 2051 GEMSTONE DR WALLA WALLA, WA 99362 | % Ownership: | 100.0000000000% |
| | | Exemptions: | |
Taxes and Assessment Details
Values
| (+) Improvement Homesite Value: | + | $0 | |
| (+) Improvement Non-Homesite Value: | + | $420,500 | |
| (+) Land Homesite Value: | + | $0 | |
| (+) Land Non-Homesite Value: | + | $85,790 | |
| (+) Curr Use (HS): | + | $0 | $0 |
| (+) Curr Use (NHS): | + | $0 | $0 |
| | | -------------------------- | |
| (=) Market Value: | = | $506,290 | |
| (–) Productivity Loss: | – | $0 | |
| | | -------------------------- | |
| (=) Subtotal: | = | $506,290 | |
| (+) Senior Appraised Value: | + | $0 | |
| (+) Non-Senior Appraised Value: | + | $506,290 | |
| | | -------------------------- | |
| (=) Total Appraised Value: | = | $506,290 | |
| (–) Senior Exemption Loss: | – | $0 | |
| (–) Exemption Loss: | – | $0 | |
| | | -------------------------- | |
| (=) Taxable Value: | = | $506,290 | |
Taxing Jurisdiction
| Owner: | KELLY RANDI D | | |
| % Ownership: | 100.0000000000% | | |
| Total Value: | $506,290 | | |
| Tax Area: | 1 - OL-140-F |
| CERFD | CURRENT EXPENSE REFUND 010 | 0.0000000000 | $506,290 | $506,290 | $0.00 | | |
| CURREXP | CURRENT EXPENSE 010 | 1.0175366760 | $506,290 | $506,290 | $515.17 | | |
| HUMNSERV | HUMAN SERVICES 119 | 0.0250000000 | $506,290 | $506,290 | $12.66 | | |
| SLDREL | SOLDIERS RELIEF 121 | 0.0155990005 | $506,290 | $506,290 | $7.90 | | |
| EMERGSER | EMS 147 | 0.3792580840 | $506,290 | $506,290 | $192.01 | | |
| EMSRFD | EMS REFUND 147 | 0.0000000000 | $506,290 | $506,290 | $0.00 | | |
| PORTRFD | PORT REFUND 640 | 0.0000000000 | $506,290 | $506,290 | $0.00 | | |
| PORTWWGEN | PORT OF WW 640 | 0.2460186015 | $506,290 | $506,290 | $124.56 | | |
| SD140BOND | SD #140 BOND 764 | 0.8342371393 | $506,290 | $506,290 | $422.37 | | |
| SD140GEN | SD #140 GENERAL 760 | 2.0646500647 | $506,290 | $506,290 | $1,045.31 | | |
| ST2 | STATE SCHOOL PART 2 600 | 0.8131451643 | $506,290 | $506,290 | $411.69 | | |
| STATESCHL | STATE SCHOOL 600 | 1.5158548041 | $506,290 | $506,290 | $767.46 | | |
| STREFUND | STATE REFUND LEVY 603 | 0.0000000000 | $506,290 | $506,290 | $0.00 | | |
| CWWBOND | C OF WW BOND 643 | 0.2760494372 | $506,290 | $506,290 | $139.76 | | |
| CWWGEN | CITY OF WW 631 | 1.6100204973 | $506,290 | $506,290 | $815.14 | | |
| CWWRFD | CITY OF WALLA WALLA REFUND 631 | 0.0000000000 | $506,290 | $506,290 | $0.00 | | |
| | Total Tax Rate: | 8.7973694689 | | | | | |
| | | | | Taxes w/Current Exemptions: | $4,454.03 | | |
| | | | | Taxes w/o Exemptions: | $4,454.03 | | |
Improvement / Building
| Improvement #1: | RESIDENTIAL | State Code: | 11 | 2073.0 sqft | Value: | $420,500 |
| Exterior Wall: | PLYWOOD | Heating/Cooling: | WARM & COOLED AIR | | Number of Bathrooms: | 2 | Number of Bedrooms: | 4 | | Plumbing: | 9 | Roof Covering: | COMP SHINGLE |
|
| | Type | Description | Class CD | Sub Class CD | Year Built | Area |
| | MA | Main Area | 1 | 35 | 1992 | 2073.0 |
| | SI1 | SITE IMPROVEMENT | 1 | 35 | 1992 | 2.0 |
| | ATG | Attached Garage | 1 | 35 | 1992 | 529.0 |
| | RPS | PORCH W/STEPS,ROOF | 1 | 35 | 1992 | 20.0 |
| | CPC | COVERED CARPORT/PATIO | 1 | 35 | 1992 | 100.0 |
Sketch
Property Image
Land
| 1 | RES 1 | Converted: Residential | 0.1969 | 8579.00 | 0.00 | 0.00 | 1.00 | $85,790 | $0 |
Roll Value History
| 2026 | N/A | N/A | N/A | N/A | N/A |
| 2025 | $338,150 | $125,000 | $0 | $463,150 | $185,260 |
| 2024 | $420,500 | $85,790 | $0 | $506,290 | $506,290 |
| 2023 | $420,500 | $85,790 | $0 | $506,290 | $506,290 |
| 2022 | $382,270 | $62,200 | $0 | $444,470 | $444,470 |
| 2021 | $347,520 | $62,200 | $0 | $409,720 | $409,720 |
| 2020 | $217,200 | $62,200 | $0 | $279,400 | $279,400 |
| 2019 | $217,200 | $62,200 | $0 | $279,400 | $279,400 |
| 2018 | $217,590 | $45,900 | $0 | $263,490 | $263,490 |
| 2017 | $207,230 | $45,900 | $0 | $253,130 | $253,130 |
| 2016 | $207,230 | $45,900 | $0 | $253,130 | $253,130 |
| 2015 | $207,230 | $45,900 | $0 | $253,130 | $253,130 |
| 2014 | $180,200 | $45,900 | $0 | $226,100 | $226,100 |
| 2013 | $180,200 | $45,900 | $0 | $226,100 | $226,100 |
| 2012 | $174,400 | $45,900 | $0 | $0 | $0 |
| 2011 | $174,400 | $45,900 | $0 | $0 | $0 |
| 2010 | $174,400 | $45,900 | $0 | $0 | $0 |
| 2009 | $194,800 | $50,000 | $0 | $0 | $0 |
| 2008 | $194,800 | $50,000 | $0 | $0 | $0 |
| 2007 | $123,100 | $30,000 | $0 | $0 | $0 |
Deed and Sales History
| 1 | 11/12/2015 | SWD | STATUTORY WARRANTY DEED | KUHLMAN CURTIS & TERI | KELLY RANDI D | | | $250,000.00 | 129185 | 2015-09870 |
| 2 | 11/19/2015 | DEATH CERT | DEATH CERTIFICATE | KUHLMAN TERI | | | | | 0 | |
| 3 | 12/20/1996 | WARRANTY D | WARRANTY DEED | | | | | $152,000.00 | 87423 | 2479-612653 |
Payout Agreement
| No payout information available.. |