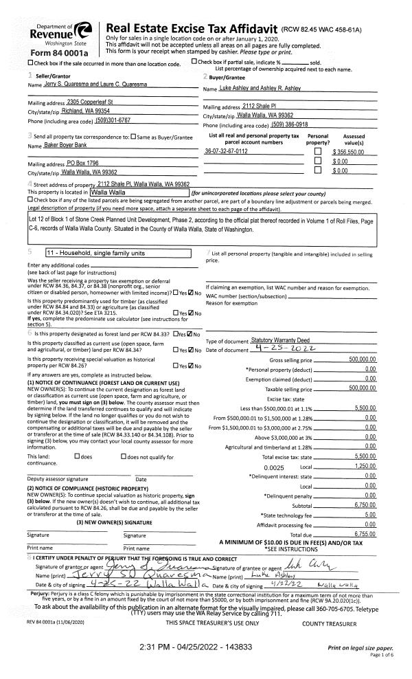
Property
Account |
| Property ID: | 12154 | Abbreviated Legal Description: | STONE CREEK #2 PARCEL #12 BLK 1 |
| Parcel Number: | 360732670112 | Agent Code: | |
| Type: | Real | | |
| Tax Area: | 1 - OL-140-F | Land Use Code | 11 |
| Open Space: | N | DFL | N |
| Historic Property: | N | Remodel Property: | N |
| Multi-Family Redevelopment: | N | | |
| Township: | 7 | Section: | 32 |
| Range: | 36 |
Location |
| Address: | 2112 SHALE PL WA 99362 | Mapsco: | |
| Neighborhood: | G Res | Map ID: | |
| Neighborhood CD: | 614011 |
Owner |
| Name: | ASHLEY LUKE & ASHLEY R | Owner ID: | 49275 |
| Mailing Address: | 2112 SHALE PL WALLA WALLA, WA 99362 | % Ownership: | 100.0000000000% |
| | | Exemptions: | |
Taxes and Assessment Details
Values
| (+) Improvement Homesite Value: | + | $0 | |
| (+) Improvement Non-Homesite Value: | + | $368,360 | |
| (+) Land Homesite Value: | + | $0 | |
| (+) Land Non-Homesite Value: | + | $111,000 | |
| (+) Curr Use (HS): | + | $0 | $0 |
| (+) Curr Use (NHS): | + | $0 | $0 |
| | | -------------------------- | |
| (=) Market Value: | = | $479,360 | |
| (–) Productivity Loss: | – | $0 | |
| | | -------------------------- | |
| (=) Subtotal: | = | $479,360 | |
| (+) Senior Appraised Value: | + | $0 | |
| (+) Non-Senior Appraised Value: | + | $479,360 | |
| | | -------------------------- | |
| (=) Total Appraised Value: | = | $479,360 | |
| (–) Senior Exemption Loss: | – | $0 | |
| (–) Exemption Loss: | – | $0 | |
| | | -------------------------- | |
| (=) Taxable Value: | = | $479,360 | |
Taxing Jurisdiction
| Owner: | ASHLEY LUKE & ASHLEY R | | |
| % Ownership: | 100.0000000000% | | |
| Total Value: | $479,360 | | |
| Tax Area: | 1 - OL-140-F |
| CERFD | CURRENT EXPENSE REFUND 010 | 0.0000000000 | $479,360 | $479,360 | $0.00 | | |
| CURREXP | CURRENT EXPENSE 010 | 1.0175366760 | $479,360 | $479,360 | $487.77 | | |
| HUMNSERV | HUMAN SERVICES 119 | 0.0250000000 | $479,360 | $479,360 | $11.98 | | |
| SLDREL | SOLDIERS RELIEF 121 | 0.0155990005 | $479,360 | $479,360 | $7.48 | | |
| EMERGSER | EMS 147 | 0.3792580840 | $479,360 | $479,360 | $181.80 | | |
| EMSRFD | EMS REFUND 147 | 0.0000000000 | $479,360 | $479,360 | $0.00 | | |
| PORTRFD | PORT REFUND 640 | 0.0000000000 | $479,360 | $479,360 | $0.00 | | |
| PORTWWGEN | PORT OF WW 640 | 0.2460186015 | $479,360 | $479,360 | $117.93 | | |
| SD140BOND | SD #140 BOND 764 | 0.8342371393 | $479,360 | $479,360 | $399.90 | | |
| SD140GEN | SD #140 GENERAL 760 | 2.0646500647 | $479,360 | $479,360 | $989.71 | | |
| ST2 | STATE SCHOOL PART 2 600 | 0.8131451643 | $479,360 | $479,360 | $389.79 | | |
| STATESCHL | STATE SCHOOL 600 | 1.5158548041 | $479,360 | $479,360 | $726.64 | | |
| STREFUND | STATE REFUND LEVY 603 | 0.0000000000 | $479,360 | $479,360 | $0.00 | | |
| CWWBOND | C OF WW BOND 643 | 0.2760494372 | $479,360 | $479,360 | $132.33 | | |
| CWWGEN | CITY OF WW 631 | 1.6100204973 | $479,360 | $479,360 | $771.78 | | |
| CWWRFD | CITY OF WALLA WALLA REFUND 631 | 0.0000000000 | $479,360 | $479,360 | $0.00 | | |
| | Total Tax Rate: | 8.7973694689 | | | | | |
| | | | | Taxes w/Current Exemptions: | $4,217.11 | | |
| | | | | Taxes w/o Exemptions: | $4,217.11 | | |
Improvement / Building
| Improvement #1: | RESIDENTIAL | State Code: | 11 | 2331.0 sqft | Value: | $368,360 |
| Exterior Wall: | PLYWOOD | Foundation: | SLAB FOUNDATION | | Heating/Cooling: | WARM & COOLED AIR | Number of Bathrooms: | 3 | | Number of Bedrooms: | 3 | Plumbing: | 12 | | Roof Covering: | COMP SHINGLE |   |   |
|
| | Type | Description | Class CD | Sub Class CD | Year Built | Area |
| | MA | Main Area | 3 | 30 | 1979 | 2331.0 |
| | SI1 | SITE IMPROVEMENT | 3 | 30 | 1979 | 2.0 |
| | UPFL | Upper Floor (included in main area) | 3 | 30 | 1979 | 648.0 |
| | ATG | Attached Garage | 3 | 30 | 1979 | 594.0 |
| | RPO | OPEN PORCH W/ROOF | 3 | 30 | 1979 | 36.0 |
| | WOD | Wood Deck | 3 | 30 | 1979 | 216.0 |
| | S1F | Single One Story Fireplace | 3 | 30 | 1979 | 1.0 |
| | SMP | SWIMMING POOL | 3 | 30 | 1979 | 1.0 |
Sketch
Property Image
Land
| 1 | RES 1 | Converted: Residential | 0.2548 | 11100.00 | 0.00 | 0.00 | 1.00 | $111,000 | $0 |
Roll Value History
| 2026 | N/A | N/A | N/A | N/A | N/A |
| 2025 | $374,320 | $125,000 | $0 | $499,320 | $499,320 |
| 2024 | $368,360 | $111,000 | $0 | $479,360 | $479,360 |
| 2023 | $368,360 | $111,000 | $0 | $479,360 | $479,360 |
| 2022 | $368,360 | $73,200 | $0 | $441,560 | $441,560 |
| 2021 | $283,350 | $73,200 | $0 | $356,550 | $356,550 |
| 2020 | $188,900 | $73,200 | $0 | $262,100 | $262,100 |
| 2019 | $188,900 | $73,200 | $0 | $262,100 | $262,100 |
| 2018 | $193,330 | $48,100 | $0 | $241,430 | $241,430 |
| 2017 | $184,130 | $48,100 | $0 | $232,230 | $232,230 |
| 2016 | $184,130 | $48,100 | $0 | $232,230 | $232,230 |
| 2015 | $184,130 | $48,100 | $0 | $232,230 | $232,230 |
| 2014 | $147,300 | $48,100 | $0 | $195,400 | $195,400 |
| 2013 | $147,300 | $48,100 | $0 | $195,400 | $195,400 |
| 2012 | $151,600 | $48,100 | $0 | $0 | $0 |
| 2011 | $151,600 | $48,100 | $0 | $0 | $0 |
| 2010 | $151,600 | $48,100 | $0 | $0 | $0 |
| 2009 | $171,900 | $50,000 | $0 | $0 | $0 |
| 2008 | $171,900 | $50,000 | $0 | $0 | $0 |
| 2007 | $131,100 | $30,000 | $0 | $0 | $0 |
Deed and Sales History
| 1 | 04/25/2022 | SWD | STATUTORY WARRANTY DEED | QUARESMA JERRY S & LAURE C | ASHLEY LUKE & ASHLEY R | | | $500,000.00 | 143833 | 2022-03530 |
| 2 | 06/05/1990 | WARRANTY D | WARRANTY DEED | | | | | $99,900.00 | 0 | 1839-003717 |
Payout Agreement
| No payout information available.. |