Property
Account |
| Property ID: | 12133 | Abbreviated Legal Description: | NIEMEYERS EASTVIEW LOT 14 BLK 1 |
| Parcel Number: | 360732660114 | Agent Code: | |
| Type: | Real | | |
| Tax Area: | 1 - OL-140-F | Land Use Code | 11 |
| Open Space: | N | DFL | N |
| Historic Property: | N | Remodel Property: | N |
| Multi-Family Redevelopment: | N | | |
| Township: | 7 | Section: | 32 |
| Range: | 36 |
Location |
| Address: | 1895 BEL AIR AVE WALLA WALLA, WA 99362 | Mapsco: | |
| Neighborhood: | A Res | Map ID: | |
| Neighborhood CD: | 613011 |
Owner |
| Name: | ERICKSON SHANE ALAN | Owner ID: | 61129 |
| Mailing Address: | 1895 BEL AIR AVE WALLA WALLA, WA 99362 | % Ownership: | 100.0000000000% |
| | | Exemptions: | |
Taxes and Assessment Details
Property Tax Information as of
04/19/2026
Click on "Statement Details" to expand or collapse a tax statement.
* Please enter a valid date ** Please enter a valid date *
Statement Details |
| | TOTAL: | $0.00 | $0.00 | $0.00 | $0.00 | $0.00 | $0.00 |
|
| | $0.00 | $0.00 | $0.00 | $0.00 | $0.00 | $0.00 |
Values
| (+) Improvement Homesite Value: | + | $0 | |
| (+) Improvement Non-Homesite Value: | + | $299,860 | |
| (+) Land Homesite Value: | + | $0 | |
| (+) Land Non-Homesite Value: | + | $90,200 | |
| (+) Curr Use (HS): | + | $0 | $0 |
| (+) Curr Use (NHS): | + | $0 | $0 |
| | | -------------------------- | |
| (=) Market Value: | = | $390,060 | |
| (–) Productivity Loss: | – | $0 | |
| | | -------------------------- | |
| (=) Subtotal: | = | $390,060 | |
| (+) Senior Appraised Value: | + | $0 | |
| (+) Non-Senior Appraised Value: | + | $390,060 | |
| | | -------------------------- | |
| (=) Total Appraised Value: | = | $390,060 | |
| (–) Senior Exemption Loss: | – | $0 | |
| (–) Exemption Loss: | – | $0 | |
| | | -------------------------- | |
| (=) Taxable Value: | = | $390,060 | |
Taxing Jurisdiction
| Owner: | ERICKSON SHANE ALAN | | |
| % Ownership: | 100.0000000000% | | |
| Total Value: | $390,060 | | |
| Tax Area: | 1 - OL-140-F |
| CERFD | CURRENT EXPENSE REFUND 010 | 0.0000000000 | $390,060 | $390,060 | $0.00 | | |
| CURREXP | CURRENT EXPENSE 010 | 1.0175366760 | $390,060 | $390,060 | $396.90 | | |
| HUMNSERV | HUMAN SERVICES 119 | 0.0250000000 | $390,060 | $390,060 | $9.75 | | |
| SLDREL | SOLDIERS RELIEF 121 | 0.0155990005 | $390,060 | $390,060 | $6.08 | | |
| EMERGSER | EMS 147 | 0.3792580840 | $390,060 | $390,060 | $147.93 | | |
| EMSRFD | EMS REFUND 147 | 0.0000000000 | $390,060 | $390,060 | $0.00 | | |
| PORTRFD | PORT REFUND 640 | 0.0000000000 | $390,060 | $390,060 | $0.00 | | |
| PORTWWGEN | PORT OF WW 640 | 0.2460186015 | $390,060 | $390,060 | $95.96 | | |
| SD140BOND | SD #140 BOND 764 | 0.8342371393 | $390,060 | $390,060 | $325.40 | | |
| SD140GEN | SD #140 GENERAL 760 | 2.0646500647 | $390,060 | $390,060 | $805.34 | | |
| ST2 | STATE SCHOOL PART 2 600 | 0.8131451643 | $390,060 | $390,060 | $317.18 | | |
| STATESCHL | STATE SCHOOL 600 | 1.5158548041 | $390,060 | $390,060 | $591.27 | | |
| STREFUND | STATE REFUND LEVY 603 | 0.0000000000 | $390,060 | $390,060 | $0.00 | | |
| CWWBOND | C OF WW BOND 643 | 0.2760494372 | $390,060 | $390,060 | $107.68 | | |
| CWWGEN | CITY OF WW 631 | 1.6100204973 | $390,060 | $390,060 | $628.00 | | |
| CWWRFD | CITY OF WALLA WALLA REFUND 631 | 0.0000000000 | $390,060 | $390,060 | $0.00 | | |
| | Total Tax Rate: | 8.7973694689 | | | | | |
| | | | | Taxes w/Current Exemptions: | $3,431.49 | | |
| | | | | Taxes w/o Exemptions: | $3,431.49 | | |
Improvement / Building
| Improvement #1: | RESIDENTIAL | State Code: | 11 | 1216.0 sqft | Value: | $299,860 |
| Exterior Wall: | SIDING | Heating/Cooling: | WARM & COOLED AIR | | Number of Bathrooms: | 3 | Number of Bedrooms: | 3 | | Plumbing: | 12 | Roof Covering: | COMP SHINGLE |
|
| | Type | Description | Class CD | Sub Class CD | Year Built | Area |
| | MA | Main Area | 11 | 30 | 1979 | 1216.0 |
| | SI1 | SITE IMPROVEMENT | 11 | 30 | 1979 | 2.0 |
| | BASE | BASEMENT | 11 | 30 | 1979 | 871.0 |
| | BPF | BASEMENT -PARTITIONED FINISH | 11 | 30 | 1979 | 871.0 |
| | BIG | Built In Garage | 11 | 30 | 1979 | 552.0 |
| | S1F | Single One Story Fireplace | 11 | 30 | 1979 | 1.0 |
| | WOD | Wood Deck | 11 | 30 | 1979 | 30.0 |
| | WOD | Wood Deck | 11 | 30 | 1979 | 278.0 |
Sketch
Property Image
Land
| 1 | RES 1 | Converted: Residential | 0.2340 | 10192.00 | 0.00 | 0.00 | 1.00 | $90,200 | $0 |
Roll Value History
| 2026 | N/A | N/A | N/A | N/A | N/A |
| 2025 | $280,480 | $110,280 | $0 | $390,760 | $390,760 |
| 2024 | $299,860 | $90,200 | $0 | $390,060 | $390,060 |
| 2023 | $299,860 | $90,200 | $0 | $390,060 | $390,060 |
| 2022 | $299,860 | $72,670 | $0 | $372,530 | $372,530 |
| 2021 | $230,660 | $72,670 | $0 | $303,330 | $303,330 |
| 2020 | $177,430 | $72,670 | $0 | $250,100 | $250,100 |
| 2019 | $177,430 | $72,670 | $0 | $250,100 | $250,100 |
| 2018 | $227,450 | $47,300 | $0 | $274,750 | $274,750 |
| 2017 | $206,770 | $47,300 | $0 | $254,070 | $254,070 |
| 2016 | $196,930 | $47,300 | $0 | $244,230 | $244,230 |
| 2015 | $187,550 | $47,300 | $0 | $234,850 | $234,850 |
| 2014 | $170,500 | $47,300 | $0 | $217,800 | $217,800 |
| 2013 | $170,500 | $47,300 | $0 | $217,800 | $217,800 |
| 2012 | $170,500 | $47,300 | $0 | $0 | $0 |
| 2011 | $170,500 | $47,300 | $0 | $0 | $0 |
| 2010 | $160,100 | $47,300 | $0 | $0 | $0 |
| 2009 | $183,100 | $47,300 | $0 | $0 | $0 |
| 2008 | $183,100 | $47,300 | $0 | $0 | $0 |
| 2007 | $117,300 | $24,800 | $0 | $0 | $0 |
Deed and Sales History
| 1 | 07/02/2025 | SWD | STATUTORY WARRANTY DEED | ERICKSON SHANE ALAN | BLANCO SASHA | | | $420,000.00 | 149619 | 2025-03771 |
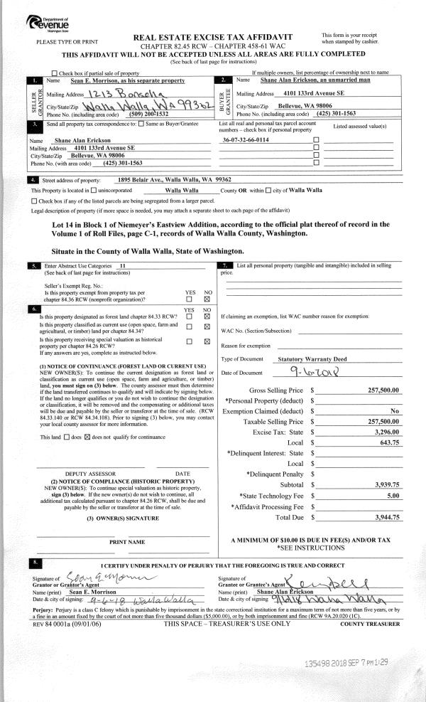
| 2 | 09/07/2018 | SWD | STATUTORY WARRANTY DEED | MORRISON SEAN E | ERICKSON SHANE ALAN | | | $257,500.00 | 135498 | 2018-07446 |
| 3 | 01/16/2015 | QCD | QUIT CLAIM DEED | MORRISON SEAN E & AMY K | MORRISON SEAN E | | | $0.00 | 128698 | 2015-07516 |
| 4 | 02/05/2015 | COURT CASE | COURT CASE | MORRISON SEAN E & AMY K | MORRISON SEAN E | | | | 0 | CC 14-3-00248-8 |
| 5 | 01/27/2010 | WARRANTY D | WARRANTY DEED | HURLBURT, KEVIN W & REBECCA A | MORRISON, SEAN E & AMY K | | | $220,000.00 | 118012 | 2010-00816 |
| 6 | 11/26/1997 | WARRANTY D | WARRANTY DEED | | | | | $140,000.00 | 89415 | 2599-711645 |
Payout Agreement
| No payout information available.. |