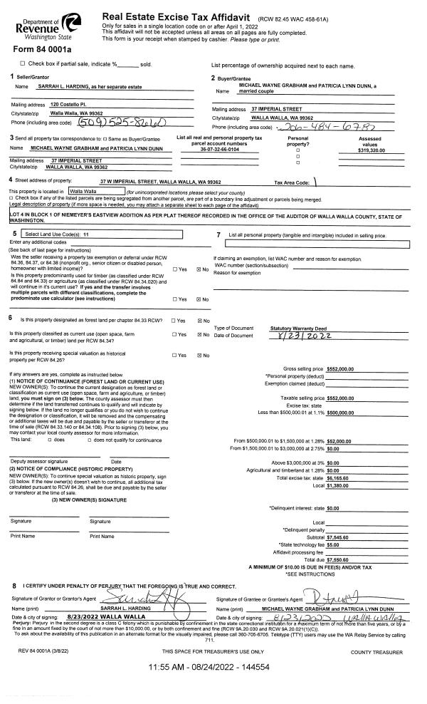
Property
Account |
| Property ID: | 12127 | Abbreviated Legal Description: | NIEMEYERS EASTVIEW LOT 4 BLK 1 |
| Parcel Number: | 360732660104 | Agent Code: | |
| Type: | Real | | |
| Tax Area: | 1 - OL-140-F | Land Use Code | 11 |
| Open Space: | N | DFL | N |
| Historic Property: | N | Remodel Property: | N |
| Multi-Family Redevelopment: | N | | |
| Township: | 7 | Section: | 32 |
| Range: | 36 |
Location |
| Address: | 37 IMPERIAL ST WA 99362 | Mapsco: | |
| Neighborhood: | A Res | Map ID: | |
| Neighborhood CD: | 613011 |
Owner |
| Name: | GRABHAM MICHAEL WAYNE & PATRICIA LYNN DUNN | Owner ID: | 72169 |
| Mailing Address: | 37 IMPERIAL ST WALLA WALLA, WA 99362 | % Ownership: | 100.0000000000% |
| | | Exemptions: | |
Taxes and Assessment Details
Property Tax Information as of
02/21/2026
Click on "Statement Details" to expand or collapse a tax statement.
* Please enter a valid date ** Please enter a valid date *
Statement Details |
| | TOTAL: | $0.00 | $0.00 | $0.00 | $0.00 | $0.00 | $0.00 |
|
| | $0.00 | $0.00 | $0.00 | $0.00 | $0.00 | $0.00 |
Values
| (+) Improvement Homesite Value: | + | $0 | |
| (+) Improvement Non-Homesite Value: | + | $398,700 | |
| (+) Land Homesite Value: | + | $0 | |
| (+) Land Non-Homesite Value: | + | $91,030 | |
| (+) Curr Use (HS): | + | $0 | $0 |
| (+) Curr Use (NHS): | + | $0 | $0 |
| | | -------------------------- | |
| (=) Market Value: | = | $489,730 | |
| (–) Productivity Loss: | – | $0 | |
| | | -------------------------- | |
| (=) Subtotal: | = | $489,730 | |
| (+) Senior Appraised Value: | + | $0 | |
| (+) Non-Senior Appraised Value: | + | $489,730 | |
| | | -------------------------- | |
| (=) Total Appraised Value: | = | $489,730 | |
| (–) Senior Exemption Loss: | – | $0 | |
| (–) Exemption Loss: | – | $0 | |
| | | -------------------------- | |
| (=) Taxable Value: | = | $489,730 | |
Taxing Jurisdiction
| Owner: | GRABHAM MICHAEL WAYNE & PATRICIA LYNN DUNN | | |
| % Ownership: | 100.0000000000% | | |
| Total Value: | $489,730 | | |
| Tax Area: | 1 - OL-140-F |
| CERFD | CURRENT EXPENSE REFUND 010 | 0.0000000000 | $489,730 | $489,730 | $0.00 | | |
| CURREXP | CURRENT EXPENSE 010 | 1.0175366760 | $489,730 | $489,730 | $498.32 | | |
| HUMNSERV | HUMAN SERVICES 119 | 0.0250000000 | $489,730 | $489,730 | $12.24 | | |
| SLDREL | SOLDIERS RELIEF 121 | 0.0155990005 | $489,730 | $489,730 | $7.64 | | |
| EMERGSER | EMS 147 | 0.3792580840 | $489,730 | $489,730 | $185.73 | | |
| EMSRFD | EMS REFUND 147 | 0.0000000000 | $489,730 | $489,730 | $0.00 | | |
| PORTRFD | PORT REFUND 640 | 0.0000000000 | $489,730 | $489,730 | $0.00 | | |
| PORTWWGEN | PORT OF WW 640 | 0.2460186015 | $489,730 | $489,730 | $120.48 | | |
| SD140BOND | SD #140 BOND 764 | 0.8342371393 | $489,730 | $489,730 | $408.55 | | |
| SD140GEN | SD #140 GENERAL 760 | 2.0646500647 | $489,730 | $489,730 | $1,011.12 | | |
| ST2 | STATE SCHOOL PART 2 600 | 0.8131451643 | $489,730 | $489,730 | $398.22 | | |
| STATESCHL | STATE SCHOOL 600 | 1.5158548041 | $489,730 | $489,730 | $742.36 | | |
| STREFUND | STATE REFUND LEVY 603 | 0.0000000000 | $489,730 | $489,730 | $0.00 | | |
| CWWBOND | C OF WW BOND 643 | 0.2760494372 | $489,730 | $489,730 | $135.19 | | |
| CWWGEN | CITY OF WW 631 | 1.6100204973 | $489,730 | $489,730 | $788.48 | | |
| CWWRFD | CITY OF WALLA WALLA REFUND 631 | 0.0000000000 | $489,730 | $489,730 | $0.00 | | |
| | Total Tax Rate: | 8.7973694689 | | | | | |
| | | | | Taxes w/Current Exemptions: | $4,308.33 | | |
| | | | | Taxes w/o Exemptions: | $4,308.33 | | |
Improvement / Building
| Improvement #1: | RESIDENTIAL | State Code: | 11 | 1626.0 sqft | Value: | $398,700 |
| Exterior Wall: | PLYWOOD | Heating/Cooling: | WARM & COOLED AIR | | Number of Bathrooms: | 2 | Number of Bedrooms: | 3 | | Plumbing: | 9 | Roof Covering: | COMP SHINGLE |
|
| | Type | Description | Class CD | Sub Class CD | Year Built | Area |
| | MA | Main Area | 1 | 30 | 1977 | 1626.0 |
| | SI1 | SITE IMPROVEMENT | 1 | 30 | 1977 | 2.0 |
| | BASE | BASEMENT | 1 | 30 | 1977 | 1242.0 |
| | BPF | BASEMENT -PARTITIONED FINISH | 1 | 30 | 1977 | 621.0 |
| | ATG | Attached Garage | 1 | 30 | 1977 | 462.0 |
| | RPO | OPEN PORCH W/ROOF | 1 | 30 | 1977 | 56.0 |
| | D2F | Double 2 Story Fireplace | 1 | 30 | 1977 | 1.0 |
| | CPC | COVERED CARPORT/PATIO | 1 | 30 | 1977 | 300.0 |
| | SMP | SWIMMING POOL | 1 | 30 | 1977 | 1.0 |
| | WOD | Wood Deck | 1 | 30 | 1977 | 192.0 |
Sketch
Property Image
Land
| 1 | RES 1 | Converted: Residential | 0.2590 | 11280.00 | 0.00 | 0.00 | 1.00 | $91,030 | $0 |
Roll Value History
| 2026 | N/A | N/A | N/A | N/A | N/A |
| 2025 | $401,670 | $111,220 | $0 | $512,890 | $512,890 |
| 2024 | $398,700 | $91,030 | $0 | $489,730 | $489,730 |
| 2023 | $398,700 | $91,030 | $0 | $489,730 | $489,730 |
| 2022 | $332,250 | $73,210 | $0 | $405,460 | $405,460 |
| 2021 | $246,110 | $73,210 | $0 | $319,320 | $319,320 |
| 2020 | $196,890 | $73,210 | $0 | $270,100 | $270,100 |
| 2019 | $196,890 | $73,210 | $0 | $270,100 | $270,100 |
| 2018 | $185,100 | $48,200 | $0 | $233,300 | $233,300 |
| 2017 | $185,100 | $48,200 | $0 | $233,300 | $233,300 |
| 2016 | $185,100 | $48,200 | $0 | $233,300 | $233,300 |
| 2015 | $185,100 | $48,200 | $0 | $233,300 | $233,300 |
| 2014 | $185,100 | $48,200 | $0 | $233,300 | $233,300 |
| 2013 | $185,100 | $48,200 | $0 | $233,300 | $233,300 |
| 2012 | $185,100 | $48,200 | $0 | $0 | $0 |
| 2011 | $185,100 | $48,200 | $0 | $0 | $0 |
| 2010 | $174,000 | $48,200 | $0 | $0 | $0 |
| 2009 | $198,700 | $48,200 | $0 | $0 | $0 |
| 2008 | $198,700 | $48,200 | $0 | $0 | $0 |
| 2007 | $157,600 | $25,700 | $0 | $0 | $0 |
Deed and Sales History
| 1 | 08/24/2022 | SWD | STATUTORY WARRANTY DEED | HARDING SARRAH L | GRABHAM MICHAEL WAYNE & PATRICIA LYNN DUNN | | | $552,000.00 | 144554 | 2022-07081 |
| 2 | 05/10/2017 | QCD | QUIT CLAIM DEED | CARLSON BRET C & SARRAH L | HARDING SARRAH L | | | $0.00 | 132364 | 2017-03551 |
| 3 | 04/05/2016 | SWD | STATUTORY WARRANTY DEED | CHASE HERMAN J ESTATE OF | CARLSON BRET C & SARRAH L | | | $239,000.00 | 129964 | 2016-02496 |
| 4 | 04/05/2016 | QCD | QUIT CLAIM DEED | CHASE CHRISTI LYN AKA CHRISTI LYN BRYAN | CHASE HERMAN J ESTATE OF | | | | 129963 | 2016-02495 |
| 5 | 05/13/1977 | WARRANTY D | WARRANTY DEED | | | | | $58,900.00 | 0 | 6005-64825 |
Payout Agreement
| No payout information available.. |