Property
Account |
| Property ID: | 1211 | Abbreviated Legal Description: | 36 07 29 TAX 103A |
| Parcel Number: | 360729140011 | Agent Code: | |
| Type: | Real | | |
| Tax Area: | 1 - OL-140-F | Land Use Code | 11 |
| Open Space: | N | DFL | N |
| Historic Property: | N | Remodel Property: | N |
| Multi-Family Redevelopment: | N | | |
| Township: | 7 | Section: | 29 |
| Range: | 36 |
Location |
| Address: | 1004 CATHERINE ST WA 99362 | Mapsco: | |
| Neighborhood: | G Res | Map ID: | |
| Neighborhood CD: | 614011 |
Owner |
| Name: | SCHMERER THOMAS & TYSON HARLOW | Owner ID: | 70284 |
| Mailing Address: | 1004 CATHERINE ST WALLA WALLA, WA 99362 | % Ownership: | 100.0000000000% |
| | | Exemptions: | |
Taxes and Assessment Details
Values
| (+) Improvement Homesite Value: | + | $0 | |
| (+) Improvement Non-Homesite Value: | + | $452,200 | |
| (+) Land Homesite Value: | + | $0 | |
| (+) Land Non-Homesite Value: | + | $89,550 | |
| (+) Curr Use (HS): | + | $0 | $0 |
| (+) Curr Use (NHS): | + | $0 | $0 |
| | | -------------------------- | |
| (=) Market Value: | = | $541,750 | |
| (–) Productivity Loss: | – | $0 | |
| | | -------------------------- | |
| (=) Subtotal: | = | $541,750 | |
| (+) Senior Appraised Value: | + | $0 | |
| (+) Non-Senior Appraised Value: | + | $541,750 | |
| | | -------------------------- | |
| (=) Total Appraised Value: | = | $541,750 | |
| (–) Senior Exemption Loss: | – | $0 | |
| (–) Exemption Loss: | – | $0 | |
| | | -------------------------- | |
| (=) Taxable Value: | = | $541,750 | |
Taxing Jurisdiction
| Owner: | SCHMERER THOMAS & TYSON HARLOW | | |
| % Ownership: | 100.0000000000% | | |
| Total Value: | $541,750 | | |
| Tax Area: | 1 - OL-140-F |
| CERFD | CURRENT EXPENSE REFUND 010 | 0.0000000000 | $541,750 | $541,750 | $0.00 | | |
| CURREXP | CURRENT EXPENSE 010 | 1.0175366760 | $541,750 | $541,750 | $551.25 | | |
| HUMNSERV | HUMAN SERVICES 119 | 0.0250000000 | $541,750 | $541,750 | $13.54 | | |
| SLDREL | SOLDIERS RELIEF 121 | 0.0155990005 | $541,750 | $541,750 | $8.45 | | |
| EMERGSER | EMS 147 | 0.3792580840 | $541,750 | $541,750 | $205.46 | | |
| EMSRFD | EMS REFUND 147 | 0.0000000000 | $541,750 | $541,750 | $0.00 | | |
| PORTRFD | PORT REFUND 640 | 0.0000000000 | $541,750 | $541,750 | $0.00 | | |
| PORTWWGEN | PORT OF WW 640 | 0.2460186015 | $541,750 | $541,750 | $133.28 | | |
| SD140BOND | SD #140 BOND 764 | 0.8342371393 | $541,750 | $541,750 | $451.95 | | |
| SD140GEN | SD #140 GENERAL 760 | 2.0646500647 | $541,750 | $541,750 | $1,118.52 | | |
| ST2 | STATE SCHOOL PART 2 600 | 0.8131451643 | $541,750 | $541,750 | $440.52 | | |
| STATESCHL | STATE SCHOOL 600 | 1.5158548041 | $541,750 | $541,750 | $821.21 | | |
| STREFUND | STATE REFUND LEVY 603 | 0.0000000000 | $541,750 | $541,750 | $0.00 | | |
| CWWBOND | C OF WW BOND 643 | 0.2760494372 | $541,750 | $541,750 | $149.55 | | |
| CWWGEN | CITY OF WW 631 | 1.6100204973 | $541,750 | $541,750 | $872.23 | | |
| CWWRFD | CITY OF WALLA WALLA REFUND 631 | 0.0000000000 | $541,750 | $541,750 | $0.00 | | |
| | Total Tax Rate: | 8.7973694689 | | | | | |
| | | | | Taxes w/Current Exemptions: | $4,765.96 | | |
| | | | | Taxes w/o Exemptions: | $4,765.96 | | |
Improvement / Building
| Improvement #1: | RESIDENTIAL | State Code: | 11 | 1966.0 sqft | Value: | $452,200 |
| Exterior Wall: | SIDING | Heating/Cooling: | WARM & COOLED AIR | | Number of Bathrooms: | 2 | Number of Bedrooms: | 3 | | Plumbing: | 9 | Roof Covering: | COMP SHINGLE |
|
| | Type | Description | Class CD | Sub Class CD | Year Built | Area |
| | MA | Main Area | 1 | 35 | 1950 | 1966.0 |
| | SI1 | SITE IMPROVEMENT | 1 | 35 | 1950 | 3.0 |
| | BASE | BASEMENT | 1 | 35 | 1950 | 806.0 |
| | BPF | BASEMENT -PARTITIONED FINISH | 1 | 35 | 1950 | 406.0 |
| | DTG | Detached Garage | 1 | 35 | 1950 | 437.0 |
| | RPS | PORCH W/STEPS,ROOF | 1 | 35 | 1950 | 23.0 |
| | S1F | Single One Story Fireplace | 1 | 35 | 1950 | 1.0 |
| | S1F | Single One Story Fireplace | 1 | 35 | 1950 | 1.0 |
| | CPC | COVERED CARPORT/PATIO | 1 | 35 | 1950 | 204.0 |
Sketch
Property Image
Land
| 1 | RES 1 | Converted: Residential | 0.2056 | 8955.00 | 0.00 | 0.00 | 1.00 | $89,550 | $0 |
Roll Value History
| 2026 | N/A | N/A | N/A | N/A | N/A |
| 2025 | $436,210 | $107,460 | $0 | $543,670 | $543,670 |
| 2024 | $452,200 | $89,550 | $0 | $541,750 | $541,750 |
| 2023 | $452,200 | $89,550 | $0 | $541,750 | $541,750 |
| 2022 | $452,200 | $73,880 | $0 | $526,080 | $526,080 |
| 2021 | $376,830 | $73,880 | $0 | $450,710 | $450,710 |
| 2020 | $251,220 | $73,880 | $0 | $325,100 | $325,100 |
| 2019 | $251,220 | $73,880 | $0 | $325,100 | $325,100 |
| 2018 | $210,540 | $46,200 | $0 | $256,740 | $256,740 |
| 2017 | $210,540 | $46,200 | $0 | $256,740 | $256,740 |
| 2016 | $191,400 | $46,200 | $0 | $237,600 | $237,600 |
| 2015 | $174,000 | $46,200 | $0 | $220,200 | $220,200 |
| 2014 | $174,000 | $46,200 | $0 | $220,200 | $220,200 |
| 2013 | $174,000 | $46,200 | $0 | $220,200 | $220,200 |
| 2012 | $174,000 | $46,200 | $0 | $0 | $0 |
| 2011 | $198,500 | $46,200 | $0 | $0 | $0 |
| 2010 | $186,800 | $46,200 | $0 | $0 | $0 |
| 2009 | $212,700 | $46,200 | $0 | $0 | $0 |
| 2008 | $212,700 | $46,200 | $0 | $0 | $0 |
| 2007 | $120,900 | $17,900 | $0 | $0 | $0 |
Deed and Sales History
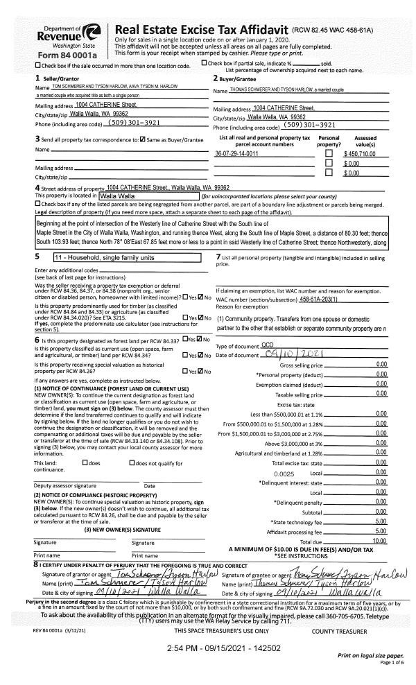
| 1 | 09/15/2021 | QCD | QUIT CLAIM DEED | SCHMERER TOM | SCHMERER THOMAS & TYSON HARLOW | | | $0.00 | 142502 | 2021-11398 |
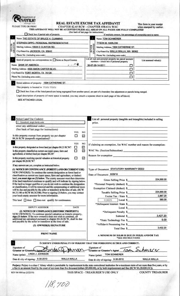
| 2 | 06/30/2010 | WARRANTY D | WARRANTY DEED | CUMMING, BRUCE H ESTATE OF | SCHMERER, TOM | | | $224,000.00 | 118700 | 2010-05097 |
| 3 | 05/26/1988 | WARRANTY D | WARRANTY DEED | | | | | $89,900.00 | 0 | 1708-803354 |
Payout Agreement
| No payout information available.. |