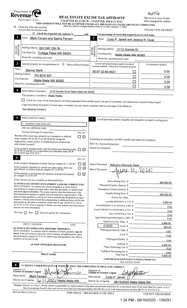
Property
Account |
| Property ID: | 12104 | Abbreviated Legal Description: | STONE CREEK #1 LOT 21 |
| Parcel Number: | 360732630021 | Agent Code: | |
| Type: | Real | | |
| Tax Area: | 1 - OL-140-F | Land Use Code | 11 |
| Open Space: | N | DFL | N |
| Historic Property: | N | Remodel Property: | N |
| Multi-Family Redevelopment: | N | | |
| Township: | 7 | Section: | 32 |
| Range: | 36 |
Location |
| Address: | 2112 GRANITE DR WA 99362 | Mapsco: | |
| Neighborhood: | G Res | Map ID: | |
| Neighborhood CD: | 614011 |
Owner |
| Name: | JANETT CODY P | Owner ID: | 67379 |
| Mailing Address: | JESSICA N GUAY 2112 GRANITE DR WALLA WALLA, WA 99362 | % Ownership: | 100.0000000000% |
| | | Exemptions: | |
Taxes and Assessment Details
Property Tax Information as of
02/21/2026
Click on "Statement Details" to expand or collapse a tax statement.
* Please enter a valid date ** Please enter a valid date *
Statement Details |
| | TOTAL: | $0.00 | $0.00 | $0.00 | $0.00 | $0.00 | $0.00 |
|
| | $0.00 | $0.00 | $0.00 | $0.00 | $0.00 | $0.00 |
Values
| (+) Improvement Homesite Value: | + | $0 | |
| (+) Improvement Non-Homesite Value: | + | $296,910 | |
| (+) Land Homesite Value: | + | $0 | |
| (+) Land Non-Homesite Value: | + | $92,700 | |
| (+) Curr Use (HS): | + | $0 | $0 |
| (+) Curr Use (NHS): | + | $0 | $0 |
| | | -------------------------- | |
| (=) Market Value: | = | $389,610 | |
| (–) Productivity Loss: | – | $0 | |
| | | -------------------------- | |
| (=) Subtotal: | = | $389,610 | |
| (+) Senior Appraised Value: | + | $0 | |
| (+) Non-Senior Appraised Value: | + | $389,610 | |
| | | -------------------------- | |
| (=) Total Appraised Value: | = | $389,610 | |
| (–) Senior Exemption Loss: | – | $0 | |
| (–) Exemption Loss: | – | $0 | |
| | | -------------------------- | |
| (=) Taxable Value: | = | $389,610 | |
Taxing Jurisdiction
| Owner: | JANETT CODY P | | |
| % Ownership: | 100.0000000000% | | |
| Total Value: | $389,610 | | |
| Tax Area: | 1 - OL-140-F |
| CERFD | CURRENT EXPENSE REFUND 010 | 0.0000000000 | $389,610 | $389,610 | $0.00 | | |
| CURREXP | CURRENT EXPENSE 010 | 1.0175366760 | $389,610 | $389,610 | $396.44 | | |
| HUMNSERV | HUMAN SERVICES 119 | 0.0250000000 | $389,610 | $389,610 | $9.74 | | |
| SLDREL | SOLDIERS RELIEF 121 | 0.0155990005 | $389,610 | $389,610 | $6.08 | | |
| EMERGSER | EMS 147 | 0.3792580840 | $389,610 | $389,610 | $147.76 | | |
| EMSRFD | EMS REFUND 147 | 0.0000000000 | $389,610 | $389,610 | $0.00 | | |
| PORTRFD | PORT REFUND 640 | 0.0000000000 | $389,610 | $389,610 | $0.00 | | |
| PORTWWGEN | PORT OF WW 640 | 0.2460186015 | $389,610 | $389,610 | $95.85 | | |
| SD140BOND | SD #140 BOND 764 | 0.8342371393 | $389,610 | $389,610 | $325.03 | | |
| SD140GEN | SD #140 GENERAL 760 | 2.0646500647 | $389,610 | $389,610 | $804.41 | | |
| ST2 | STATE SCHOOL PART 2 600 | 0.8131451643 | $389,610 | $389,610 | $316.81 | | |
| STATESCHL | STATE SCHOOL 600 | 1.5158548041 | $389,610 | $389,610 | $590.59 | | |
| STREFUND | STATE REFUND LEVY 603 | 0.0000000000 | $389,610 | $389,610 | $0.00 | | |
| CWWBOND | C OF WW BOND 643 | 0.2760494372 | $389,610 | $389,610 | $107.55 | | |
| CWWGEN | CITY OF WW 631 | 1.6100204973 | $389,610 | $389,610 | $627.28 | | |
| CWWRFD | CITY OF WALLA WALLA REFUND 631 | 0.0000000000 | $389,610 | $389,610 | $0.00 | | |
| | Total Tax Rate: | 8.7973694689 | | | | | |
| | | | | Taxes w/Current Exemptions: | $3,427.54 | | |
| | | | | Taxes w/o Exemptions: | $3,427.54 | | |
Improvement / Building
| Improvement #1: | RESIDENTIAL | State Code: | 11 | 1395.0 sqft | Value: | $296,910 |
| Exterior Wall: | PLYWOOD | Heating/Cooling: | WARM & COOLED AIR | | Number of Bathrooms: | 3 | Number of Bedrooms: | 4 | | Plumbing: | 13 | Roof Covering: | COMP SHINGLE |
|
| | Type | Description | Class CD | Sub Class CD | Year Built | Area |
| | MA | Main Area | 1 | 30 | 1976 | 1395.0 |
| | SI1 | SITE IMPROVEMENT | 1 | 30 | 1976 | 2.0 |
| | BASE | BASEMENT | 1 | 30 | 1976 | 1395.0 |
| | BPF | BASEMENT -PARTITIONED FINISH | 1 | 30 | 1976 | 1145.0 |
| | ATG | Attached Garage | 1 | 30 | 1976 | 576.0 |
| | RPO | OPEN PORCH W/ROOF | 1 | 30 | 1976 | 297.0 |
| | S1F | Single One Story Fireplace | 1 | 30 | 1976 | 1.0 |
| | CPC | COVERED CARPORT/PATIO | 1 | 30 | 1976 | 430.0 |
| | SMP | SWIMMING POOL | 1 | 30 | 1976 | 1.0 |
Sketch
Property Image
Land
| 1 | RES 1 | Converted: Residential | 0.2128 | 9270.00 | 0.00 | 0.00 | 1.00 | $92,700 | $0 |
Roll Value History
| 2026 | N/A | N/A | N/A | N/A | N/A |
| 2025 | $291,760 | $125,000 | $0 | $416,760 | $416,760 |
| 2024 | $296,910 | $92,700 | $0 | $389,610 | $389,610 |
| 2023 | $296,910 | $92,700 | $0 | $389,610 | $389,610 |
| 2022 | $269,920 | $67,200 | $0 | $337,120 | $337,120 |
| 2021 | $269,920 | $67,200 | $0 | $337,120 | $337,120 |
| 2020 | $168,700 | $67,200 | $0 | $235,900 | $235,900 |
| 2019 | $168,700 | $67,200 | $0 | $235,900 | $235,900 |
| 2018 | $178,220 | $46,500 | $0 | $224,720 | $224,720 |
| 2017 | $169,730 | $46,500 | $0 | $216,230 | $216,230 |
| 2016 | $169,730 | $46,500 | $0 | $216,230 | $216,230 |
| 2015 | $169,730 | $46,500 | $0 | $216,230 | $216,230 |
| 2014 | $154,300 | $46,500 | $0 | $200,800 | $200,800 |
| 2013 | $154,300 | $46,500 | $0 | $200,800 | $200,800 |
| 2012 | $156,500 | $46,500 | $0 | $0 | $0 |
| 2011 | $156,500 | $46,500 | $0 | $0 | $0 |
| 2010 | $156,500 | $46,500 | $0 | $0 | $0 |
| 2009 | $175,600 | $50,000 | $0 | $0 | $0 |
| 2008 | $175,600 | $50,000 | $0 | $0 | $0 |
| 2007 | $146,700 | $30,000 | $0 | $0 | $0 |
Deed and Sales History
| 1 | 06/16/2020 | SWD | STATUTORY WARRANTY DEED | FERRARO MARK | JANETT CODY P | | | $360,000.00 | 139291 | 2020-05472 |
| 2 | 11/03/2005 | WARRANTY D | WARRANTY DEED | HESCOCK, GLENN D & LORI A | FERRARO, MARK | | | $225,000.00 | 108939 | 2005-13862 |
| 3 | 11/03/2005 | QCD | QUIT CLAIM DEED | FERRARO, CAROL | FERRARO, MARK | | | | 108938 | 2005-13863 |
| 4 | 03/22/2002 | WARRANTY D | WARRANTY DEED | | | | | $173,000.00 | 99142 | 3310-203526 |
Payout Agreement
| No payout information available.. |