Property
Account |
| Property ID: | 12062 | Abbreviated Legal Description: | WESTBOURNE ACRES LOT 3, LESS ELY PTN FOR HWY BLOCK 1 |
| Parcel Number: | 310817540114 | Agent Code: | |
| Type: | Real | | |
| Tax Area: | 328 - 400-M-5 | Land Use Code | 11 |
| Open Space: | N | DFL | N |
| Historic Property: | N | Remodel Property: | N |
| Multi-Family Redevelopment: | N | | |
| Township: | 8 | Section: | 17 |
| Range: | 31 |
Location |
| Address: | 91 WESTBOURNE LOOP WA 99323 | Mapsco: | |
| Neighborhood: | G BURBANK SFR | Map ID: | |
| Neighborhood CD: | 214711 |
Owner |
| Name: | NEWMAN KEVIN & JULIA | Owner ID: | 70074 |
| Mailing Address: | 91 WESTBOURNE LOOP BURBANK, WA 99323 | % Ownership: | 100.0000000000% |
| | | Exemptions: | |
Taxes and Assessment Details
Property Tax Information as of
02/21/2026
Click on "Statement Details" to expand or collapse a tax statement.
* Please enter a valid date ** Please enter a valid date *
Statement Details |
| | TOTAL: | $0.00 | $0.00 | $0.00 | $0.00 | $0.00 | $0.00 |
|
| | $0.00 | $0.00 | $0.00 | $0.00 | $0.00 | $0.00 |
Values
| (+) Improvement Homesite Value: | + | $0 | |
| (+) Improvement Non-Homesite Value: | + | $325,230 | |
| (+) Land Homesite Value: | + | $0 | |
| (+) Land Non-Homesite Value: | + | $75,590 | |
| (+) Curr Use (HS): | + | $0 | $0 |
| (+) Curr Use (NHS): | + | $0 | $0 |
| | | -------------------------- | |
| (=) Market Value: | = | $400,820 | |
| (–) Productivity Loss: | – | $0 | |
| | | -------------------------- | |
| (=) Subtotal: | = | $400,820 | |
| (+) Senior Appraised Value: | + | $0 | |
| (+) Non-Senior Appraised Value: | + | $400,820 | |
| | | -------------------------- | |
| (=) Total Appraised Value: | = | $400,820 | |
| (–) Senior Exemption Loss: | – | $0 | |
| (–) Exemption Loss: | – | $0 | |
| | | -------------------------- | |
| (=) Taxable Value: | = | $400,820 | |
Taxing Jurisdiction
| Owner: | NEWMAN KEVIN & JULIA | | |
| % Ownership: | 100.0000000000% | | |
| Total Value: | $400,820 | | |
| Tax Area: | 328 - 400-M-5 |
| CERFD | CURRENT EXPENSE REFUND 010 | 0.0000000000 | $400,820 | $400,820 | $0.00 | | |
| CURREXP | CURRENT EXPENSE 010 | 1.0175366760 | $400,820 | $400,820 | $407.85 | | |
| HUMNSERV | HUMAN SERVICES 119 | 0.0250000000 | $400,820 | $400,820 | $10.02 | | |
| SLDREL | SOLDIERS RELIEF 121 | 0.0155990005 | $400,820 | $400,820 | $6.25 | | |
| EMERGSER | EMS 147 | 0.3792580840 | $400,820 | $400,820 | $152.01 | | |
| EMSRFD | EMS REFUND 147 | 0.0000000000 | $400,820 | $400,820 | $0.00 | | |
| FD5EXP | FD #5 EXPENSE 689 | 1.2045331840 | $400,820 | $400,820 | $482.80 | | |
| RLBRFD | RURAL LIBRARY REFUND 623 | 0.0000000000 | $400,820 | $400,820 | $0.00 | | |
| RURALLIB | RURAL LIBRARY 623 | 0.3710609029 | $400,820 | $400,820 | $148.73 | | |
| PORTRFD | PORT REFUND 640 | 0.0000000000 | $400,820 | $400,820 | $0.00 | | |
| PORTWWGEN | PORT OF WW 640 | 0.2460186015 | $400,820 | $400,820 | $98.61 | | |
| SD400BOND | SD #400 BOND 793 | 0.0000000000 | $400,820 | $400,820 | $0.00 | | |
| SD400CAP | SD #400 CP 792 | 0.3443722657 | $400,820 | $400,820 | $138.03 | | |
| SD400GEN | SD #400 GENERAL 790 | 1.9278469916 | $400,820 | $400,820 | $772.72 | | |
| ST2 | STATE SCHOOL PART 2 600 | 0.8131451643 | $400,820 | $400,820 | $325.92 | | |
| STATESCHL | STATE SCHOOL 600 | 1.5158548041 | $400,820 | $400,820 | $607.58 | | |
| STREFUND | STATE REFUND LEVY 603 | 0.0000000000 | $400,820 | $400,820 | $0.00 | | |
| COROAD | COUNTY ROAD 115 | 1.6549953990 | $400,820 | $400,820 | $663.36 | | |
| CRPRD | COUNTY ROAD REFUND 115 | 0.0000000000 | $400,820 | $400,820 | $0.00 | | |
| | Total Tax Rate: | 9.5152210736 | | | | | |
| | | | | Taxes w/Current Exemptions: | $3,813.88 | | |
| | | | | Taxes w/o Exemptions: | $3,813.88 | | |
Improvement / Building
| Improvement #1: | RESIDENTIAL | State Code: | 11 | 1782.0 sqft | Value: | $325,230 |
| Exterior Wall: | VINYL | Heating/Cooling: | HEAT PUMP | | Number of Bathrooms: | 2 | Number of Bedrooms: | 3 | | Plumbing: | 8 | Roof Covering: | COMP SHINGLE |
|
| | Type | Description | Class CD | Sub Class CD | Year Built | Area |
| | MA | Main Area | 1 | 30 | 1978 | 1782.0 |
| | SI1 | SITE IMPROVEMENT | 1 | 30 | 1978 | 1.5 |
| | OSP | Open | 1 | 30 | 1978 | 30.0 |
| | POL3 | POLE BUILDING-CON,ELEC,INSU | 1 | 30 | 1978 | 1296.0 |
Sketch
Property Image
Land
| 1 | RES 1 | Converted: Residential | 0.7200 | 31363.00 | 0.00 | 0.00 | 1.00 | $75,590 | $0 |
Roll Value History
| 2026 | N/A | N/A | N/A | N/A | N/A |
| 2025 | $357,750 | $75,590 | $0 | $433,340 | $433,340 |
| 2024 | $325,230 | $75,590 | $0 | $400,820 | $400,820 |
| 2023 | $325,230 | $75,590 | $0 | $400,820 | $400,820 |
| 2022 | $309,740 | $75,590 | $0 | $385,330 | $385,330 |
| 2021 | $193,590 | $75,590 | $0 | $269,180 | $269,180 |
| 2020 | $192,400 | $43,600 | $0 | $236,000 | $236,000 |
| 2019 | $192,400 | $43,600 | $0 | $236,000 | $236,000 |
| 2018 | $183,240 | $43,600 | $0 | $226,840 | $226,840 |
| 2017 | $174,520 | $43,600 | $0 | $218,120 | $218,120 |
| 2016 | $166,210 | $43,600 | $0 | $209,810 | $209,810 |
| 2015 | $158,290 | $43,600 | $0 | $201,890 | $201,890 |
| 2014 | $143,900 | $43,600 | $0 | $187,500 | $187,500 |
| 2013 | $143,900 | $43,600 | $0 | $187,500 | $187,500 |
| 2012 | $143,900 | $43,600 | $0 | $0 | $0 |
| 2011 | $143,900 | $43,600 | $0 | $0 | $0 |
| 2010 | $143,900 | $43,600 | $0 | $0 | $0 |
| 2009 | $161,000 | $33,900 | $0 | $0 | $0 |
| 2008 | $105,300 | $33,900 | $0 | $0 | $0 |
| 2007 | $105,300 | $33,900 | $0 | $0 | $0 |
Deed and Sales History
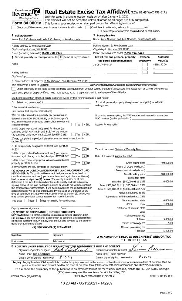
| 1 | 08/13/2021 | SWD | STATUTORY WARRANTY DEED | COCHRANE ROB J & LINDA J | NEWMAN KEVIN & JULIA | | | $400,000.00 | 142269 | 2021-09863 |
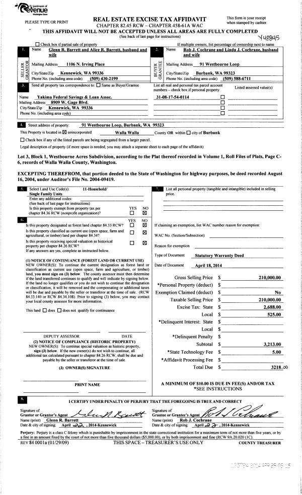
| 2 | 04/29/2014 | SWD | STATUTORY WARRANTY DEED | BARRETT GLENN R | COCHRANE ROB J & LINDA J | | | $210,000.00 | 125784 | 2014-02865 |
Payout Agreement
| No payout information available.. |