Property
Account |
| Property ID: | 12028 | Abbreviated Legal Description: | PROSPECT HEIGHTS LOT 14 & S 50' LOT 7 LESS E 6' ALSO E 52' LOT 13 &E 52' OF S 50' LOT 8 BLK 2 |
| Parcel Number: | 360732570224 | Agent Code: | |
| Type: | Real | | |
| Tax Area: | 105 - 140-F-4 | Land Use Code | 11 |
| Open Space: | N | DFL | N |
| Historic Property: | N | Remodel Property: | N |
| Multi-Family Redevelopment: | N | | |
| Township: | 7 | Section: | 32 |
| Range: | 36 |
Location |
| Address: | 466 PROSPECT AVE WA 99362 | Mapsco: | |
| Neighborhood: | G Res Rural/City Inf | Map ID: | |
| Neighborhood CD: | 614012 |
Owner |
| Name: | MC CLUNG WILLIAM C & PEGGY A | Owner ID: | 39770 |
| Mailing Address: | 466 PROSPECT AVE WALLA WALLA, WA 99362 | % Ownership: | 100.0000000000% |
| | | Exemptions: | |
Taxes and Assessment Details
Property Tax Information as of
02/21/2026
Click on "Statement Details" to expand or collapse a tax statement.
* Please enter a valid date ** Please enter a valid date *
Statement Details |
| | TOTAL: | $0.00 | $0.00 | $0.00 | $0.00 | $0.00 | $0.00 |
|
| | $0.00 | $0.00 | $0.00 | $0.00 | $0.00 | $0.00 |
Values
| (+) Improvement Homesite Value: | + | $0 | |
| (+) Improvement Non-Homesite Value: | + | $597,070 | |
| (+) Land Homesite Value: | + | $0 | |
| (+) Land Non-Homesite Value: | + | $132,840 | |
| (+) Curr Use (HS): | + | $0 | $0 |
| (+) Curr Use (NHS): | + | $0 | $0 |
| | | -------------------------- | |
| (=) Market Value: | = | $729,910 | |
| (–) Productivity Loss: | – | $0 | |
| | | -------------------------- | |
| (=) Subtotal: | = | $729,910 | |
| (+) Senior Appraised Value: | + | $0 | |
| (+) Non-Senior Appraised Value: | + | $729,910 | |
| | | -------------------------- | |
| (=) Total Appraised Value: | = | $729,910 | |
| (–) Senior Exemption Loss: | – | $0 | |
| (–) Exemption Loss: | – | $0 | |
| | | -------------------------- | |
| (=) Taxable Value: | = | $729,910 | |
Taxing Jurisdiction
| Owner: | MC CLUNG WILLIAM C & PEGGY A | | |
| % Ownership: | 100.0000000000% | | |
| Total Value: | $729,910 | | |
| Tax Area: | 105 - 140-F-4 |
| CERFD | CURRENT EXPENSE REFUND 010 | 0.0000000000 | $729,910 | $729,910 | $0.00 | | |
| CURREXP | CURRENT EXPENSE 010 | 1.0175366760 | $729,910 | $729,910 | $742.71 | | |
| HUMNSERV | HUMAN SERVICES 119 | 0.0250000000 | $729,910 | $729,910 | $18.25 | | |
| SLDREL | SOLDIERS RELIEF 121 | 0.0155990005 | $729,910 | $729,910 | $11.39 | | |
| EMERGSER | EMS 147 | 0.3792580840 | $729,910 | $729,910 | $276.82 | | |
| EMSRFD | EMS REFUND 147 | 0.0000000000 | $729,910 | $729,910 | $0.00 | | |
| FD4EXP | FD #4 EXPENSE 686 | 0.8836993059 | $729,910 | $729,910 | $645.02 | | |
| RLBRFD | RURAL LIBRARY REFUND 623 | 0.0000000000 | $729,910 | $729,910 | $0.00 | | |
| RURALLIB | RURAL LIBRARY 623 | 0.3710609029 | $729,910 | $729,910 | $270.84 | | |
| PORTRFD | PORT REFUND 640 | 0.0000000000 | $729,910 | $729,910 | $0.00 | | |
| PORTWWGEN | PORT OF WW 640 | 0.2460186015 | $729,910 | $729,910 | $179.57 | | |
| SD140BOND | SD #140 BOND 764 | 0.8342371393 | $729,910 | $729,910 | $608.92 | | |
| SD140GEN | SD #140 GENERAL 760 | 2.0646500647 | $729,910 | $729,910 | $1,507.01 | | |
| ST2 | STATE SCHOOL PART 2 600 | 0.8131451643 | $729,910 | $729,910 | $593.52 | | |
| STATESCHL | STATE SCHOOL 600 | 1.5158548041 | $729,910 | $729,910 | $1,106.44 | | |
| STREFUND | STATE REFUND LEVY 603 | 0.0000000000 | $729,910 | $729,910 | $0.00 | | |
| COROAD | COUNTY ROAD 115 | 1.6549953990 | $729,910 | $729,910 | $1,208.00 | | |
| CRPRD | COUNTY ROAD REFUND 115 | 0.0000000000 | $729,910 | $729,910 | $0.00 | | |
| | Total Tax Rate: | 9.8210551422 | | | | | |
| | | | | Taxes w/Current Exemptions: | $7,168.49 | | |
| | | | | Taxes w/o Exemptions: | $7,168.49 | | |
Improvement / Building
| Improvement #1: | RESIDENTIAL | State Code: | 11 | 2617.0 sqft | Value: | $597,070 |
| Exterior Wall: | SIDING | Heating/Cooling: | REV-HEAT-PUMP-W/DUCT | | Number of Bathrooms: | 2 | Number of Bedrooms: | 3 | | Plumbing: | 9 | Roof Covering: | COMP SHINGLE |
|
| | Type | Description | Class CD | Sub Class CD | Year Built | Area |
| | MA | Main Area | 1 | 35 | 1978 | 2617.0 |
| | SI1 | SITE IMPROVEMENT | 1 | 35 | 1978 | 3.0 |
| | ATG | Attached Garage | 1 | 35 | 1978 | 810.0 |
| | WOD | Wood Deck | 1 | 35 | 1978 | 400.0 |
| | S1F | Single One Story Fireplace | 1 | 35 | 1978 | 1.0 |
| | S1F | Single One Story Fireplace | 1 | 35 | 1978 | 1.0 |
| | POL2 | POLE BUILDING-CONCRETE | 1 | 30 | 1978 | 864.0 |
| | LEAN TO | LEAN TO | 1 | 30 | 2006 | 432.0 |
Sketch
Property Image
Land
| 1 | RES 1 | Converted: Residential | 1.1800 | 0.00 | 0.00 | 0.00 | 1.00 | $132,840 | $0 |
Roll Value History
| 2026 | N/A | N/A | N/A | N/A | N/A |
| 2025 | $596,950 | $173,410 | $0 | $770,360 | $770,360 |
| 2024 | $597,070 | $132,840 | $0 | $729,910 | $729,910 |
| 2023 | $597,070 | $132,840 | $0 | $729,910 | $729,910 |
| 2022 | $597,070 | $90,900 | $0 | $687,970 | $687,970 |
| 2021 | $398,050 | $90,900 | $0 | $488,950 | $488,950 |
| 2020 | $294,850 | $90,900 | $0 | $385,750 | $385,750 |
| 2019 | $294,850 | $90,900 | $0 | $385,750 | $385,750 |
| 2018 | $234,500 | $76,400 | $0 | $310,900 | $310,900 |
| 2017 | $223,340 | $76,400 | $0 | $299,740 | $299,740 |
| 2016 | $212,700 | $76,400 | $0 | $289,100 | $289,100 |
| 2015 | $212,700 | $76,400 | $0 | $289,100 | $289,100 |
| 2014 | $212,700 | $76,400 | $0 | $289,100 | $289,100 |
| 2013 | $212,700 | $76,400 | $0 | $289,100 | $289,100 |
| 2012 | $212,000 | $76,400 | $0 | $0 | $0 |
| 2011 | $212,000 | $76,400 | $0 | $0 | $0 |
| 2010 | $212,000 | $76,400 | $0 | $0 | $0 |
| 2009 | $244,000 | $76,400 | $0 | $0 | $0 |
| 2008 | $244,000 | $76,400 | $0 | $0 | $0 |
| 2007 | $179,100 | $45,100 | $0 | $0 | $0 |
Deed and Sales History
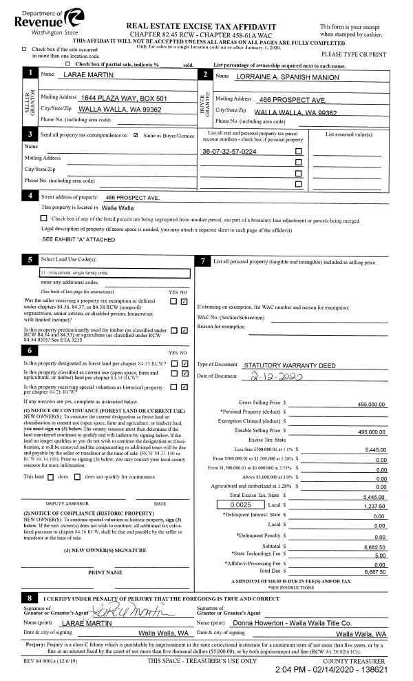
| 1 | 10/21/2021 | SWD | STATUTORY WARRANTY DEED | MANION LORRAINE A SPANISH | MC CLUNG WILLIAM C & PEGGY A | | | $718,000.00 | 142717 | 2021-12755 |
| 2 | 02/14/2020 | SWD | STATUTORY WARRANTY DEED | MARTIN LARAE | MANION LORRAINE A SPANISH | | | $495,000.00 | 138621 | 2020-01419 |
| 3 | 06/15/2004 | WARRANTY D | WARRANTY DEED | MARTIN, DAN E ESTATE | MARTIN, LA RAE | | | | 105023 | 2004-06623 |
| 4 | 11/01/1989 | WARRANTY D | WARRANTY DEED | | | | | $112,000.00 | 0 | 1798-907123 |
Payout Agreement
| No payout information available.. |