Property
Account |
| Property ID: | 12027 | Abbreviated Legal Description: | PROSPECT HEIGHTS TAX #1, 2, 3, & 4 BLK 2 LESS TAX 2A |
| Parcel Number: | 360732570217 | Agent Code: | |
| Type: | Real | | |
| Tax Area: | 105 - 140-F-4 | Land Use Code | 91 |
| Open Space: | N | DFL | N |
| Historic Property: | N | Remodel Property: | N |
| Multi-Family Redevelopment: | N | | |
| Township: | 7 | Section: | 32 |
| Range: | 36 |
Location |
| Address: | 348 PROSPECT AVE WA 99362 | Mapsco: | |
| Neighborhood: | G Res Land Contig | Map ID: | |
| Neighborhood CD: | 614097 |
Owner |
| Name: | DRIVER NANCY L | Owner ID: | 69397 |
| Mailing Address: | 348 PROSPECT AVE WALLA WALLA, WA 99362 | % Ownership: | 100.0000000000% |
| | | Exemptions: | |
Taxes and Assessment Details
Values
| (+) Improvement Homesite Value: | + | $0 | |
| (+) Improvement Non-Homesite Value: | + | $0 | |
| (+) Land Homesite Value: | + | $0 | |
| (+) Land Non-Homesite Value: | + | $21,460 | |
| (+) Curr Use (HS): | + | $0 | $0 |
| (+) Curr Use (NHS): | + | $0 | $0 |
| | | -------------------------- | |
| (=) Market Value: | = | $21,460 | |
| (–) Productivity Loss: | – | $0 | |
| | | -------------------------- | |
| (=) Subtotal: | = | $21,460 | |
| (+) Senior Appraised Value: | + | $0 | |
| (+) Non-Senior Appraised Value: | + | $21,460 | |
| | | -------------------------- | |
| (=) Total Appraised Value: | = | $21,460 | |
| (–) Senior Exemption Loss: | – | $0 | |
| (–) Exemption Loss: | – | $0 | |
| | | -------------------------- | |
| (=) Taxable Value: | = | $21,460 | |
Taxing Jurisdiction
| Owner: | DRIVER NANCY L | | |
| % Ownership: | 100.0000000000% | | |
| Total Value: | $21,460 | | |
| Tax Area: | 105 - 140-F-4 |
| CERFD | CURRENT EXPENSE REFUND 010 | 0.0000000000 | $21,460 | $21,460 | $0.00 | | |
| CURREXP | CURRENT EXPENSE 010 | 0.9851088983 | $21,460 | $21,460 | $21.14 | | |
| HUMNSERV | HUMAN SERVICES 119 | 0.0250000000 | $21,460 | $21,460 | $0.54 | | |
| SLDREL | SOLDIERS RELIEF 121 | 0.0155990000 | $21,460 | $21,460 | $0.33 | | |
| EMERGSER | EMS 147 | 0.3676811629 | $21,460 | $21,460 | $7.89 | | |
| EMSRFD | EMS REFUND 147 | 0.0000000000 | $21,460 | $21,460 | $0.00 | | |
| FD4EXP | FD #4 EXPENSE 686 | 1.2367913128 | $21,460 | $21,460 | $26.54 | | |
| RLBRFD | RURAL LIBRARY REFUND 623 | 0.0000000000 | $21,460 | $21,460 | $0.00 | | |
| RURALLIB | RURAL LIBRARY 623 | 0.3601547782 | $21,460 | $21,460 | $7.73 | | |
| PORTRFD | PORT REFUND 640 | 0.0000000000 | $21,460 | $21,460 | $0.00 | | |
| PORTWWGEN | PORT OF WW 640 | 0.2344301070 | $21,460 | $21,460 | $5.03 | | |
| SD140BOND | SD #140 BOND 764 | 0.8032434458 | $21,460 | $21,460 | $17.24 | | |
| SD140CAP | SD #140 CAP 762 | 0.3840034221 | $21,460 | $21,460 | $8.24 | | |
| SD140GEN | SD #140 GENERAL 760 | 2.4999999996 | $21,460 | $21,460 | $53.65 | | |
| ST2 | STATE SCHOOL PART 2 600 | 0.8853714103 | $21,460 | $21,460 | $19.00 | | |
| STATESCHL | STATE SCHOOL 600 | 1.6424571473 | $21,460 | $21,460 | $35.25 | | |
| STREFUND | STATE REFUND LEVY 603 | 0.0000000000 | $21,460 | $21,460 | $0.00 | | |
| COROAD | COUNTY ROAD 115 | 1.6137667997 | $21,460 | $21,460 | $34.63 | | |
| CRPRD | COUNTY ROAD REFUND 115 | 0.0000000000 | $21,460 | $21,460 | $0.00 | | |
| | Total Tax Rate: | 11.0536074840 | | | | | |
| | | | | Taxes w/Current Exemptions: | $237.21 | | |
| | | | | Taxes w/o Exemptions: | $237.21 | | |
Improvement / Building
Sketch
| No sketches available for this property. |
Property Image
Land
| 1 | RES 1 | Converted: Residential | 1.6200 | 70567.20 | 0.00 | 0.00 | 1.00 | $21,460 | $0 |
Roll Value History
| 2026 | N/A | N/A | N/A | N/A | N/A |
| 2025 | $0 | $21,460 | $0 | $21,460 | $21,460 |
| 2024 | $0 | $13,580 | $0 | $13,580 | $13,580 |
| 2023 | $0 | $13,580 | $0 | $13,580 | $13,580 |
| 2022 | $0 | $25,100 | $0 | $25,100 | $25,100 |
| 2021 | $0 | $25,100 | $0 | $25,100 | $25,100 |
| 2020 | $0 | $25,100 | $0 | $25,100 | $25,100 |
| 2019 | $0 | $25,100 | $0 | $25,100 | $25,100 |
| 2018 | $0 | $26,400 | $0 | $26,400 | $26,400 |
| 2017 | $0 | $26,400 | $0 | $26,400 | $26,400 |
| 2016 | $0 | $26,400 | $0 | $26,400 | $26,400 |
| 2015 | $0 | $26,400 | $0 | $26,400 | $26,400 |
| 2014 | $0 | $26,400 | $0 | $26,400 | $26,400 |
| 2013 | $0 | $26,400 | $0 | $26,400 | $26,400 |
| 2012 | $0 | $26,400 | $0 | $0 | $0 |
| 2011 | $0 | $26,400 | $0 | $0 | $0 |
| 2010 | $0 | $26,400 | $0 | $0 | $0 |
| 2009 | $0 | $26,400 | $0 | $0 | $0 |
| 2008 | $0 | $26,400 | $0 | $0 | $0 |
| 2007 | $0 | $13,000 | $0 | $0 | $0 |
Deed and Sales History
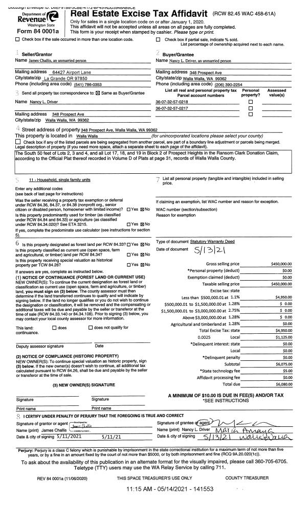
| 1 | 05/14/2021 | SWD | STATUTORY WARRANTY DEED | CHALLIS JAMES | DRIVER NANCY L | | 2-PARCELS | $450,000.00 | 141553 | 2021-05806 |
|   | |
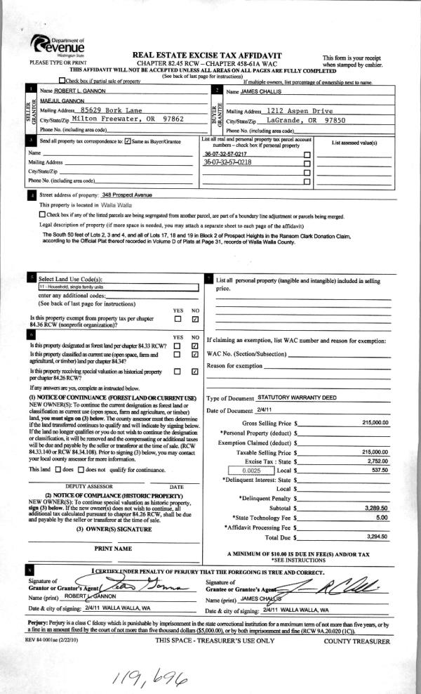
| 2 | 02/04/2011 | WARRANTY D | WARRANTY DEED | "GANNON, ROBERT L & MAEJUL" | | | | | 119696 | 2011-01133 |
| 3 | 07/15/1976 | WARRANTY D | WARRANTY DEED | | | | | $47,500.00 | 0 | 4405-55977 |
|   | |
Payout Agreement
| No payout information available.. |