Property
Account |
| Property ID: | 1201 | Abbreviated Legal Description: | GARDEN CRK CONDO UNIT # 222 |
| Parcel Number: | 360722600009 | Agent Code: | |
| Type: | Real | | |
| Tax Area: | 1 - OL-140-F | Land Use Code | 14 |
| Open Space: | N | DFL | N |
| Historic Property: | N | Remodel Property: | N |
| Multi-Family Redevelopment: | N | | |
| Township: | 7 | Section: | 22 |
| Range: | 36 |
Location |
| Address: | 222 GARDEN DR WA 99362 | Mapsco: | |
| Neighborhood: | CONDO | Map ID: | |
| Neighborhood CD: | 413041 |
Owner |
| Name: | BRUMMET CURTIS & JENNIFER RIGGS | Owner ID: | 66337 |
| Mailing Address: | 222 GARDEN DR WALLA WALLA, WA 99362 | % Ownership: | 100.0000000000% |
| | | Exemptions: | |
Taxes and Assessment Details
Property Tax Information as of
02/21/2026
Click on "Statement Details" to expand or collapse a tax statement.
* Please enter a valid date ** Please enter a valid date *
Statement Details |
| | TOTAL: | $0.00 | $0.00 | $0.00 | $0.00 | $0.00 | $0.00 |
|
| | $0.00 | $0.00 | $0.00 | $0.00 | $0.00 | $0.00 |
Values
| (+) Improvement Homesite Value: | + | $0 | |
| (+) Improvement Non-Homesite Value: | + | $135,520 | |
| (+) Land Homesite Value: | + | $0 | |
| (+) Land Non-Homesite Value: | + | $0 | |
| (+) Curr Use (HS): | + | $0 | $0 |
| (+) Curr Use (NHS): | + | $0 | $0 |
| | | -------------------------- | |
| (=) Market Value: | = | $135,520 | |
| (–) Productivity Loss: | – | $0 | |
| | | -------------------------- | |
| (=) Subtotal: | = | $135,520 | |
| (+) Senior Appraised Value: | + | $0 | |
| (+) Non-Senior Appraised Value: | + | $135,520 | |
| | | -------------------------- | |
| (=) Total Appraised Value: | = | $135,520 | |
| (–) Senior Exemption Loss: | – | $0 | |
| (–) Exemption Loss: | – | $0 | |
| | | -------------------------- | |
| (=) Taxable Value: | = | $135,520 | |
Taxing Jurisdiction
| Owner: | BRUMMET CURTIS & JENNIFER RIGGS | | |
| % Ownership: | 100.0000000000% | | |
| Total Value: | $135,520 | | |
| Tax Area: | 1 - OL-140-F |
| CERFD | CURRENT EXPENSE REFUND 010 | 0.0000000000 | $135,520 | $135,520 | $0.00 | | |
| CURREXP | CURRENT EXPENSE 010 | 1.0175366760 | $135,520 | $135,520 | $137.90 | | |
| HUMNSERV | HUMAN SERVICES 119 | 0.0250000000 | $135,520 | $135,520 | $3.39 | | |
| SLDREL | SOLDIERS RELIEF 121 | 0.0155990005 | $135,520 | $135,520 | $2.11 | | |
| EMERGSER | EMS 147 | 0.3792580840 | $135,520 | $135,520 | $51.40 | | |
| EMSRFD | EMS REFUND 147 | 0.0000000000 | $135,520 | $135,520 | $0.00 | | |
| PORTRFD | PORT REFUND 640 | 0.0000000000 | $135,520 | $135,520 | $0.00 | | |
| PORTWWGEN | PORT OF WW 640 | 0.2460186015 | $135,520 | $135,520 | $33.34 | | |
| SD140BOND | SD #140 BOND 764 | 0.8342371393 | $135,520 | $135,520 | $113.06 | | |
| SD140GEN | SD #140 GENERAL 760 | 2.0646500647 | $135,520 | $135,520 | $279.80 | | |
| ST2 | STATE SCHOOL PART 2 600 | 0.8131451643 | $135,520 | $135,520 | $110.20 | | |
| STATESCHL | STATE SCHOOL 600 | 1.5158548041 | $135,520 | $135,520 | $205.43 | | |
| STREFUND | STATE REFUND LEVY 603 | 0.0000000000 | $135,520 | $135,520 | $0.00 | | |
| CWWBOND | C OF WW BOND 643 | 0.2760494372 | $135,520 | $135,520 | $37.41 | | |
| CWWGEN | CITY OF WW 631 | 1.6100204973 | $135,520 | $135,520 | $218.19 | | |
| CWWRFD | CITY OF WALLA WALLA REFUND 631 | 0.0000000000 | $135,520 | $135,520 | $0.00 | | |
| | Total Tax Rate: | 8.7973694689 | | | | | |
| | | | | Taxes w/Current Exemptions: | $1,192.23 | | |
| | | | | Taxes w/o Exemptions: | $1,192.23 | | |
Improvement / Building
| Improvement #1: | RESIDENTIAL | State Code: | 14 | 845.0 sqft | Value: | $135,520 |
| Exterior Wall: | PLYWOOD | Heating/Cooling: | WARM & COOLED AIR | | Number of Bathrooms: | 1 | Number of Bedrooms: | 2 | | Plumbing: | 6 | Roof Covering: | COMP SHINGLE |
|
| | Type | Description | Class CD | Sub Class CD | Year Built | Area |
| | MA | Main Area | 1 | 30 | 1975 | 845.0 |
| | SI1 | SITE IMPROVEMENT | 1 | 30 | 0 | 1.0 |
| | ATG | Attached Garage | 1 | 30 | 1975 | 273.0 |
Sketch
Property Image
Land
No land segments exist for this property.
Roll Value History
| 2026 | N/A | N/A | N/A | N/A | N/A |
| 2025 | $135,520 | $0 | $0 | $135,520 | $135,520 |
| 2024 | $135,520 | $0 | $0 | $135,520 | $135,520 |
| 2023 | $135,520 | $0 | $0 | $135,520 | $135,520 |
| 2022 | $117,580 | $0 | $0 | $117,580 | $117,580 |
| 2021 | $90,440 | $0 | $0 | $90,440 | $90,440 |
| 2020 | $90,440 | $0 | $0 | $90,440 | $90,440 |
| 2019 | $90,440 | $0 | $0 | $90,440 | $90,440 |
| 2018 | $78,650 | $0 | $0 | $78,650 | $78,650 |
| 2017 | $78,650 | $0 | $0 | $78,650 | $78,650 |
| 2016 | $78,650 | $0 | $0 | $78,650 | $78,650 |
| 2015 | $78,650 | $0 | $0 | $78,650 | $78,650 |
| 2014 | $74,900 | $0 | $0 | $74,900 | $74,900 |
| 2013 | $74,900 | $0 | $0 | $74,900 | $74,900 |
| 2012 | $74,900 | $0 | $0 | $0 | $0 |
| 2011 | $82,000 | $0 | $0 | $0 | $0 |
| 2010 | $82,000 | $0 | $0 | $0 | $0 |
| 2009 | $82,000 | $0 | $0 | $0 | $0 |
| 2008 | $82,000 | $0 | $0 | $0 | $0 |
| 2007 | $82,000 | $0 | $0 | $0 | $0 |
Deed and Sales History
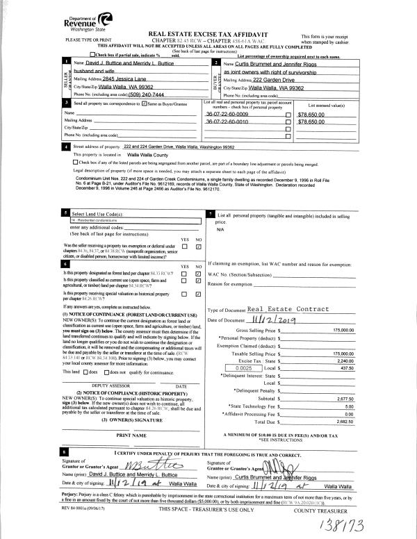
| 1 | 11/27/2019 | REAL ESTAT | REAL ESTATE CONTRACT | BUTTICE DAVID J & MERRIDY L | BRUMMET CURTIS & JENNIFER RIGGS | | 2-PARCELS | $175,000.00 | 138173 | 2019-09891 |
|   | |
| 2 | 08/22/2002 | WARRANTY D | WARRANTY DEED | MILSTEIN BERT | BUTTICE DAVID J & MERRIDY L | | | | 100206 | 2002-09442 |
Payout Agreement
| No payout information available.. |