Property
Account |
| Property ID: | 12009 | Abbreviated Legal Description: | KNAPP ADDN LT 31 BLK 1 |
| Parcel Number: | 350736620131 | Agent Code: | |
| Type: | Real | | |
| Tax Area: | 77 - CP-250-F | Land Use Code | 11 |
| Open Space: | N | DFL | N |
| Historic Property: | N | Remodel Property: | N |
| Multi-Family Redevelopment: | N | | |
| Township: | 7 | Section: | 36 |
| Range: | 35 |
Location |
| Address: | 1289 SE INDEPENDENCE DR WA 99324 | Mapsco: | |
| Neighborhood: | A SFR Rural/City Inf | Map ID: | |
| Neighborhood CD: | 113012 |
Owner |
| Name: | BRASWELL DONNA L | Owner ID: | 71108 |
| Mailing Address: | 1289 SE INDEPENDENCE DR COLLEGE PLACE, WA 99324-1817 | % Ownership: | 100.0000000000% |
| | | Exemptions: | |
Taxes and Assessment Details
Property Tax Information as of
02/21/2026
Click on "Statement Details" to expand or collapse a tax statement.
* Please enter a valid date ** Please enter a valid date *
Statement Details |
| | TOTAL: | $0.00 | $0.00 | $0.00 | $0.00 | $0.00 | $0.00 |
|
| | $0.00 | $0.00 | $0.00 | $0.00 | $0.00 | $0.00 |
Values
| (+) Improvement Homesite Value: | + | $0 | |
| (+) Improvement Non-Homesite Value: | + | $360,260 | |
| (+) Land Homesite Value: | + | $0 | |
| (+) Land Non-Homesite Value: | + | $70,000 | |
| (+) Curr Use (HS): | + | $0 | $0 |
| (+) Curr Use (NHS): | + | $0 | $0 |
| | | -------------------------- | |
| (=) Market Value: | = | $430,260 | |
| (–) Productivity Loss: | – | $0 | |
| | | -------------------------- | |
| (=) Subtotal: | = | $430,260 | |
| (+) Senior Appraised Value: | + | $0 | |
| (+) Non-Senior Appraised Value: | + | $430,260 | |
| | | -------------------------- | |
| (=) Total Appraised Value: | = | $430,260 | |
| (–) Senior Exemption Loss: | – | $0 | |
| (–) Exemption Loss: | – | $0 | |
| | | -------------------------- | |
| (=) Taxable Value: | = | $430,260 | |
Taxing Jurisdiction
| Owner: | BRASWELL DONNA L | | |
| % Ownership: | 100.0000000000% | | |
| Total Value: | $430,260 | | |
| Tax Area: | 77 - CP-250-F |
| CERFD | CURRENT EXPENSE REFUND 010 | 0.0000000000 | $430,260 | $430,260 | $0.00 | | |
| CURREXP | CURRENT EXPENSE 010 | 1.0175366760 | $430,260 | $430,260 | $437.81 | | |
| HUMNSERV | HUMAN SERVICES 119 | 0.0250000000 | $430,260 | $430,260 | $10.76 | | |
| SLDREL | SOLDIERS RELIEF 121 | 0.0155990005 | $430,260 | $430,260 | $6.71 | | |
| COLLPLBOND | C OF CP BOND 644 | 0.4374241808 | $430,260 | $430,260 | $188.21 | | |
| COLLPLGEN | CITY OF CP 632 | 1.4453819216 | $430,260 | $430,260 | $621.89 | | |
| EMERGSER | EMS 147 | 0.3792580840 | $430,260 | $430,260 | $163.18 | | |
| EMSRFD | EMS REFUND 147 | 0.0000000000 | $430,260 | $430,260 | $0.00 | | |
| RURALLIB | RURAL LIBRARY 623 | 0.3710609029 | $430,260 | $430,260 | $159.65 | | |
| PORTRFD | PORT REFUND 640 | 0.0000000000 | $430,260 | $430,260 | $0.00 | | |
| PORTWWGEN | PORT OF WW 640 | 0.2460186015 | $430,260 | $430,260 | $105.85 | | |
| SD250BOND | SD #250 BOND 773 | 1.4560608159 | $430,260 | $430,260 | $626.48 | | |
| SD250GEN | SD #250 GENERAL 770 | 2.3880724087 | $430,260 | $430,260 | $1,027.49 | | |
| ST2 | STATE SCHOOL PART 2 600 | 0.8131451643 | $430,260 | $430,260 | $349.86 | | |
| STATESCHL | STATE SCHOOL 600 | 1.5158548041 | $430,260 | $430,260 | $652.21 | | |
| STREFUND | STATE REFUND LEVY 603 | 0.0000000000 | $430,260 | $430,260 | $0.00 | | |
| | Total Tax Rate: | 10.1104125603 | | | | | |
| | | | | Taxes w/Current Exemptions: | $4,350.10 | | |
| | | | | Taxes w/o Exemptions: | $4,350.10 | | |
Improvement / Building
| Improvement #1: | RESIDENTIAL | State Code: | 11 | 1814.0 sqft | Value: | $360,260 |
| Exterior Wall: | HARDBOARD | Foundation: | SLAB FOUNDATION | | Heating/Cooling: | WARM & COOLED AIR | Number of Bathrooms: | 3 | | Number of Bedrooms: | 3 | Plumbing: | 11 | | Roof Covering: | COMP SHINGLE |   |   |
|
| | Type | Description | Class CD | Sub Class CD | Year Built | Area |
| | MA | Main Area | 3 | 35 | 1994 | 1814.0 |
| | SI1 | SITE IMPROVEMENT | 3 | 35 | 1994 | 2.5 |
| | UPFL | Upper Floor (included in main area) | 3 | 35 | 1994 | 792.0 |
| | BIG | Built In Garage | 3 | 35 | 1994 | 552.0 |
| | S2F | Single 2S Fireplace | 3 | 35 | 1994 | 1.0 |
| | CPC | COVERED CARPORT/PATIO | 3 | 35 | 1994 | 140.0 |
| | WOD | Wood Deck | 3 | 35 | 1994 | 108.0 |
| | PRC | PORCH W STEPS, ROOF,CEILED | 3 | 35 | 1994 | 24.0 |
| | ATG | Attached Garage | 3 | 35 | 1994 | 264.0 |
Sketch
Property Image
Land
| 1 | RES 1 | Converted: Residential | 0.1722 | 7500.00 | 0.00 | 0.00 | 1.00 | $70,000 | $0 |
Roll Value History
| 2026 | N/A | N/A | N/A | N/A | N/A |
| 2025 | $306,220 | $130,000 | $0 | $436,220 | $436,220 |
| 2024 | $360,260 | $70,000 | $0 | $430,260 | $430,260 |
| 2023 | $360,260 | $70,000 | $0 | $430,260 | $430,260 |
| 2022 | $313,270 | $70,000 | $0 | $383,270 | $383,270 |
| 2021 | $261,060 | $70,000 | $0 | $331,060 | $331,060 |
| 2020 | $180,040 | $70,000 | $0 | $250,040 | $250,040 |
| 2019 | $195,040 | $55,000 | $0 | $250,040 | $250,040 |
| 2018 | $169,600 | $55,000 | $0 | $224,600 | $224,600 |
| 2017 | $169,600 | $55,000 | $0 | $224,600 | $224,600 |
| 2016 | $169,600 | $55,000 | $0 | $224,600 | $224,600 |
| 2015 | $169,600 | $55,000 | $0 | $224,600 | $224,600 |
| 2014 | $169,600 | $55,000 | $0 | $224,600 | $224,600 |
| 2013 | $169,600 | $55,000 | $0 | $224,600 | $224,600 |
| 2012 | $169,600 | $55,000 | $0 | $0 | $0 |
| 2011 | $181,400 | $55,000 | $0 | $0 | $0 |
| 2010 | $181,400 | $55,000 | $0 | $0 | $0 |
| 2009 | $193,800 | $55,000 | $0 | $0 | $0 |
| 2008 | $148,400 | $30,000 | $0 | $0 | $0 |
| 2007 | $148,400 | $30,000 | $0 | $0 | $0 |
Deed and Sales History
| 1 | 05/29/2025 | OCN | ORDER CHGING NAME | SKURSKI AMANDA FELICITY | PONTAROLO FELICITY THERESE | | | | 0 | 2025-03012 |
| 2 | 06/12/2024 | SWD | STATUTORY WARRANTY DEED | BRASWELL DONNA L | SKURSKI AMANDA FELICITY | | | $448,000.00 | 147687 | 2024-03095 |
| 3 | 02/11/2022 | SWD | STATUTORY WARRANTY DEED | RODRIGUEZ RUBEN A | BRASWELL DONNA L | | | $435,000.00 | 143373 | 2022-01276 |
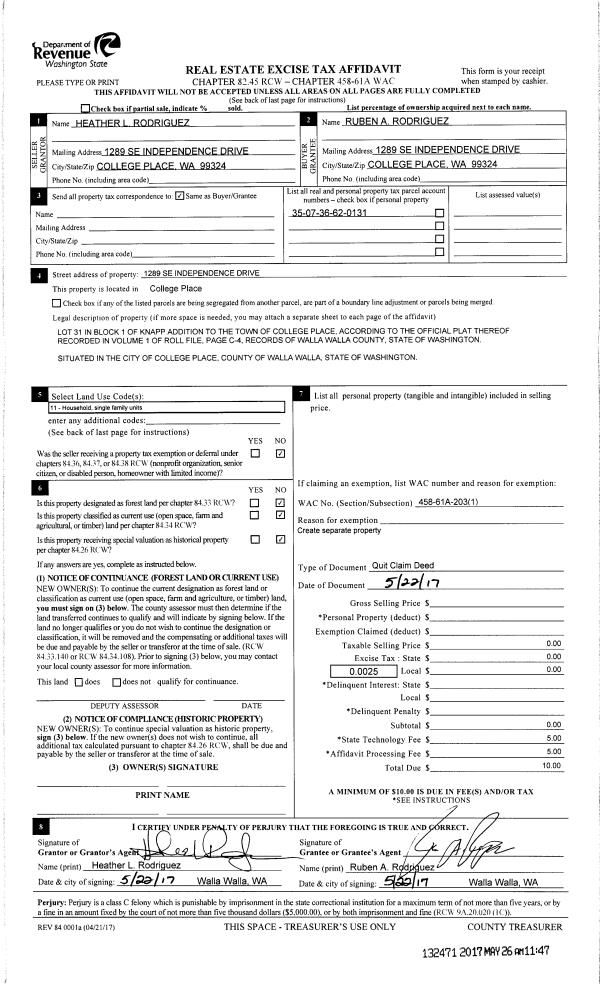
| 4 | 05/22/2017 | QCD | QUIT CLAIM DEED | RODRIGUEZ RUEBEN A & HEATHER L | RODRIGUEZ RUBEN A | | | $0.00 | 132471 | 2017-03998 |
| 5 | 07/29/2004 | WARRANTY D | WARRANTY DEED | HICKS, WILLIAM H & BONNIE J | RODRIGUEZ, RUEBEN A & HEATHER | | | $199,900.00 | 105373 | 2004-08643 |
| 6 | 06/25/2003 | WARRANTY D | WARRANTY DEED | WARNOCK, TANIS J | HICKS, WILLIAM H & BONNIE J | | | $182,500.00 | 102415 | 2003-09507 |
| 7 | 03/20/1996 | WARRANTY D | WARRANTY DEED | | | | | $147,000.00 | 85789 | 2399-602752 |
Payout Agreement
| No payout information available.. |