Property
Account |
| Property ID: | 12006 | Abbreviated Legal Description: | SOUTH PARK LOT 10 BLK 1 W 25' OF LOT 18 BLK 1 |
| Parcel Number: | 360729760110 | Agent Code: | |
| Type: | Real | | |
| Tax Area: | 1 - OL-140-F | Land Use Code | 11 |
| Open Space: | N | DFL | N |
| Historic Property: | N | Remodel Property: | N |
| Multi-Family Redevelopment: | N | | |
| Township: | 7 | Section: | 29 |
| Range: | 36 |
Location |
| Address: | 445 S 8TH AVE WA 99362 | Mapsco: | |
| Neighborhood: | Fair Inferior Res | Map ID: | |
| Neighborhood CD: | 512111 |
Owner |
| Name: | ESPARZA JUAN | Owner ID: | 55271 |
| Mailing Address: | 445 S 8TH AVE WALLA WALLA, WA 99362 | % Ownership: | 100.0000000000% |
| | | Exemptions: | |
Taxes and Assessment Details
Values
| (+) Improvement Homesite Value: | + | $0 | |
| (+) Improvement Non-Homesite Value: | + | $101,130 | |
| (+) Land Homesite Value: | + | $0 | |
| (+) Land Non-Homesite Value: | + | $27,760 | |
| (+) Curr Use (HS): | + | $0 | $0 |
| (+) Curr Use (NHS): | + | $0 | $0 |
| | | -------------------------- | |
| (=) Market Value: | = | $128,890 | |
| (–) Productivity Loss: | – | $0 | |
| | | -------------------------- | |
| (=) Subtotal: | = | $128,890 | |
| (+) Senior Appraised Value: | + | $0 | |
| (+) Non-Senior Appraised Value: | + | $128,890 | |
| | | -------------------------- | |
| (=) Total Appraised Value: | = | $128,890 | |
| (–) Senior Exemption Loss: | – | $0 | |
| (–) Exemption Loss: | – | $0 | |
| | | -------------------------- | |
| (=) Taxable Value: | = | $128,890 | |
Taxing Jurisdiction
| Owner: | ESPARZA JUAN | | |
| % Ownership: | 100.0000000000% | | |
| Total Value: | $128,890 | | |
| Tax Area: | 1 - OL-140-F |
| CERFD | CURRENT EXPENSE REFUND 010 | 0.0000000000 | $128,890 | $128,890 | $0.00 | | |
| CURREXP | CURRENT EXPENSE 010 | 1.0175366760 | $128,890 | $128,890 | $131.15 | | |
| HUMNSERV | HUMAN SERVICES 119 | 0.0250000000 | $128,890 | $128,890 | $3.22 | | |
| SLDREL | SOLDIERS RELIEF 121 | 0.0155990005 | $128,890 | $128,890 | $2.01 | | |
| EMERGSER | EMS 147 | 0.3792580840 | $128,890 | $128,890 | $48.88 | | |
| EMSRFD | EMS REFUND 147 | 0.0000000000 | $128,890 | $128,890 | $0.00 | | |
| PORTRFD | PORT REFUND 640 | 0.0000000000 | $128,890 | $128,890 | $0.00 | | |
| PORTWWGEN | PORT OF WW 640 | 0.2460186015 | $128,890 | $128,890 | $31.71 | | |
| SD140BOND | SD #140 BOND 764 | 0.8342371393 | $128,890 | $128,890 | $107.52 | | |
| SD140GEN | SD #140 GENERAL 760 | 2.0646500647 | $128,890 | $128,890 | $266.11 | | |
| ST2 | STATE SCHOOL PART 2 600 | 0.8131451643 | $128,890 | $128,890 | $104.81 | | |
| STATESCHL | STATE SCHOOL 600 | 1.5158548041 | $128,890 | $128,890 | $195.38 | | |
| STREFUND | STATE REFUND LEVY 603 | 0.0000000000 | $128,890 | $128,890 | $0.00 | | |
| CWWBOND | C OF WW BOND 643 | 0.2760494372 | $128,890 | $128,890 | $35.58 | | |
| CWWGEN | CITY OF WW 631 | 1.6100204973 | $128,890 | $128,890 | $207.52 | | |
| CWWRFD | CITY OF WALLA WALLA REFUND 631 | 0.0000000000 | $128,890 | $128,890 | $0.00 | | |
| | Total Tax Rate: | 8.7973694689 | | | | | |
| | | | | Taxes w/Current Exemptions: | $1,133.89 | | |
| | | | | Taxes w/o Exemptions: | $1,133.89 | | |
Improvement / Building
| Improvement #1: | RESIDENTIAL | State Code: | 11 | 708.0 sqft | Value: | $101,130 |
| Exterior Wall: | STUCCO | Heating/Cooling: | BASEBOARD ELECTRIC | | Number of Bathrooms: | 2 | Number of Bedrooms: | 2 | | Plumbing: | 9 | Roof Covering: | COMP SHINGLE |
|
| | Type | Description | Class CD | Sub Class CD | Year Built | Area |
| | MA | Main Area | 1 | 25 | 1906 | 708.0 |
| | SI1 | SITE IMPROVEMENT | 1 | 25 | 1906 | 1.0 |
| | RCD | WOOD DECK W/ROOF, CEILED | 1 | 25 | 1906 | 114.0 |
| | WDR | WOOD DECK W/ROOF | 1 | 25 | 1906 | 150.0 |
Sketch
Property Image
Land
| 1 | RES 1 | Converted: Residential | 0.1214 | 5287.00 | 0.00 | 0.00 | 1.00 | $27,760 | $0 |
Roll Value History
| 2026 | N/A | N/A | N/A | N/A | N/A |
| 2025 | $172,600 | $47,580 | $0 | $220,180 | $220,180 |
| 2024 | $172,600 | $47,580 | $0 | $220,180 | $220,180 |
| 2023 | $101,130 | $27,760 | $0 | $128,890 | $128,890 |
| 2022 | $87,940 | $27,760 | $0 | $115,700 | $115,700 |
| 2021 | $79,940 | $27,760 | $0 | $107,700 | $107,700 |
| 2020 | $66,620 | $27,760 | $0 | $94,380 | $94,380 |
| 2019 | $66,620 | $27,760 | $0 | $94,380 | $94,380 |
| 2018 | $66,620 | $27,760 | $0 | $94,380 | $94,380 |
| 2017 | $46,870 | $31,700 | $0 | $78,570 | $78,570 |
| 2016 | $44,640 | $31,700 | $0 | $76,340 | $76,340 |
| 2015 | $37,200 | $31,700 | $0 | $68,900 | $68,900 |
| 2014 | $54,700 | $31,700 | $0 | $86,400 | $86,400 |
| 2013 | $54,700 | $31,700 | $0 | $86,400 | $86,400 |
| 2012 | $54,700 | $31,700 | $0 | $0 | $0 |
| 2011 | $54,700 | $31,700 | $0 | $0 | $0 |
| 2010 | $40,300 | $31,700 | $0 | $0 | $0 |
| 2009 | $53,000 | $31,700 | $0 | $0 | $0 |
| 2008 | $53,000 | $31,700 | $0 | $0 | $0 |
| 2007 | $23,000 | $10,600 | $0 | $0 | $0 |
Deed and Sales History
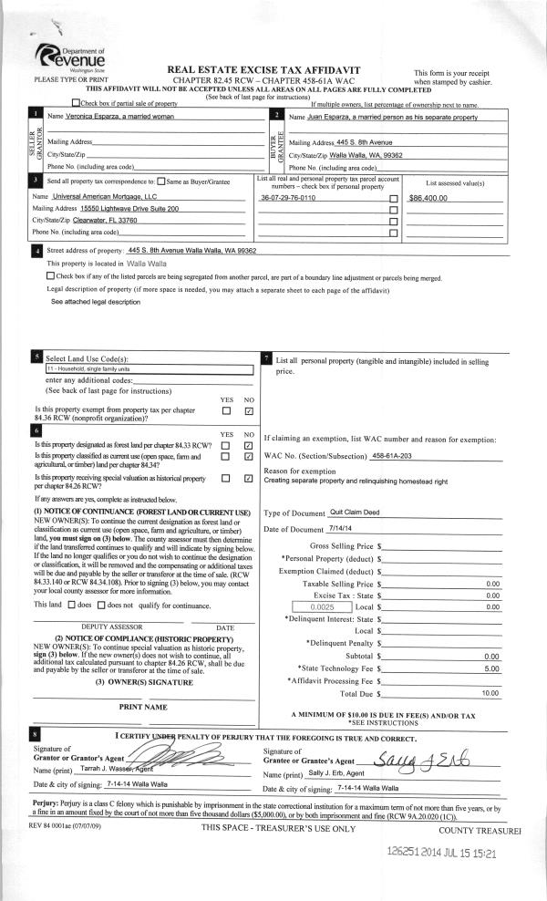
| 1 | 07/15/2014 | QCD | QUIT CLAIM DEED | ESPARZA JUAN | | | | | 126251 | 2014-04931 |
| 2 | 07/15/2014 | SWD | STATUTORY WARRANTY DEED | PARKINS LINNET M ESTATE OF | ESPARZA JUAN | | | $79,000.00 | 126250 | 2014-04930 |
| 3 | 11/20/2009 | QCD | QUIT CLAIM DEED | PARKINS, KIETH W | PARKINS, LINNET M | | | | 117705 | 2009-11415 |
| 4 | 10/30/2009 | WARRANTY D | WARRANTY DEED | PARKINS KIETH & LINNET M | PARKINS LINNET M ESTATE OF | | | | 0 | CC #09-3-000250 |
| 5 | 07/28/2004 | WARRANTY D | WARRANTY DEED | LOID, CHRISTOPHER L | PARKINS, KIETH & LINNET M | | | $20,500.00 | 105360 | 2004-08570 |
| 6 | 05/14/2004 | WARRANTY D | WARRANTY DEED | BERRONES, ISIDRO C JR & ROSITA | LOID, CHRISTOPHER L | | | | 104760 | 2004-05218 |
| 7 | 04/06/2000 | WARRANTY D | WARRANTY DEED | | | | | $20,000.00 | 94852 | 2970-003307 |
Payout Agreement
| No payout information available.. |