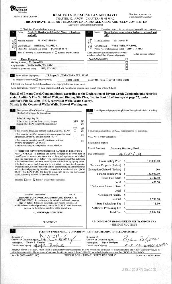
Property
Account |
| Property ID: | 11992 | Abbreviated Legal Description: | MEADOW VIEW LOT 14 BLK 5 |
| Parcel Number: | 360732550514 | Agent Code: | |
| Type: | Real | | |
| Tax Area: | 1 - OL-140-F | Land Use Code | 11 |
| Open Space: | N | DFL | N |
| Historic Property: | N | Remodel Property: | N |
| Multi-Family Redevelopment: | N | | |
| Township: | 7 | Section: | 32 |
| Range: | 36 |
Location |
| Address: | 2113 LEONARD DR WA 99362 | Mapsco: | |
| Neighborhood: | A Res | Map ID: | |
| Neighborhood CD: | 613011 |
Owner |
| Name: | EGGERS SCOTT W & JENNIFER L | Owner ID: | 14487 |
| Mailing Address: | 2113 LEONARD DR WALLA WALLA, WA 99362 | % Ownership: | 100.0000000000% |
| | | Exemptions: | |
Taxes and Assessment Details
Values
| (+) Improvement Homesite Value: | + | $0 | |
| (+) Improvement Non-Homesite Value: | + | $315,370 | |
| (+) Land Homesite Value: | + | $0 | |
| (+) Land Non-Homesite Value: | + | $70,560 | |
| (+) Curr Use (HS): | + | $0 | $0 |
| (+) Curr Use (NHS): | + | $0 | $0 |
| | | -------------------------- | |
| (=) Market Value: | = | $385,930 | |
| (–) Productivity Loss: | – | $0 | |
| | | -------------------------- | |
| (=) Subtotal: | = | $385,930 | |
| (+) Senior Appraised Value: | + | $0 | |
| (+) Non-Senior Appraised Value: | + | $385,930 | |
| | | -------------------------- | |
| (=) Total Appraised Value: | = | $385,930 | |
| (–) Senior Exemption Loss: | – | $0 | |
| (–) Exemption Loss: | – | $0 | |
| | | -------------------------- | |
| (=) Taxable Value: | = | $385,930 | |
Taxing Jurisdiction
| Owner: | EGGERS SCOTT W & JENNIFER L | | |
| % Ownership: | 100.0000000000% | | |
| Total Value: | $385,930 | | |
| Tax Area: | 1 - OL-140-F |
| CERFD | CURRENT EXPENSE REFUND 010 | 0.0000000000 | $385,930 | $385,930 | $0.00 | | |
| CURREXP | CURRENT EXPENSE 010 | 1.0175366760 | $385,930 | $385,930 | $392.70 | | |
| HUMNSERV | HUMAN SERVICES 119 | 0.0250000000 | $385,930 | $385,930 | $9.65 | | |
| SLDREL | SOLDIERS RELIEF 121 | 0.0155990005 | $385,930 | $385,930 | $6.02 | | |
| EMERGSER | EMS 147 | 0.3792580840 | $385,930 | $385,930 | $146.37 | | |
| EMSRFD | EMS REFUND 147 | 0.0000000000 | $385,930 | $385,930 | $0.00 | | |
| PORTRFD | PORT REFUND 640 | 0.0000000000 | $385,930 | $385,930 | $0.00 | | |
| PORTWWGEN | PORT OF WW 640 | 0.2460186015 | $385,930 | $385,930 | $94.95 | | |
| SD140BOND | SD #140 BOND 764 | 0.8342371393 | $385,930 | $385,930 | $321.96 | | |
| SD140GEN | SD #140 GENERAL 760 | 2.0646500647 | $385,930 | $385,930 | $796.81 | | |
| ST2 | STATE SCHOOL PART 2 600 | 0.8131451643 | $385,930 | $385,930 | $313.82 | | |
| STATESCHL | STATE SCHOOL 600 | 1.5158548041 | $385,930 | $385,930 | $585.01 | | |
| STREFUND | STATE REFUND LEVY 603 | 0.0000000000 | $385,930 | $385,930 | $0.00 | | |
| CWWBOND | C OF WW BOND 643 | 0.2760494372 | $385,930 | $385,930 | $106.54 | | |
| CWWGEN | CITY OF WW 631 | 1.6100204973 | $385,930 | $385,930 | $621.36 | | |
| CWWRFD | CITY OF WALLA WALLA REFUND 631 | 0.0000000000 | $385,930 | $385,930 | $0.00 | | |
| | Total Tax Rate: | 8.7973694689 | | | | | |
| | | | | Taxes w/Current Exemptions: | $3,395.19 | | |
| | | | | Taxes w/o Exemptions: | $3,395.19 | | |
Improvement / Building
| Improvement #1: | RESIDENTIAL | State Code: | 11 | 1120.0 sqft | Value: | $315,370 |
| Exterior Wall: | PLYWOOD | Heating/Cooling: | WARM & COOLED AIR | | Number of Bathrooms: | 2 | Number of Bedrooms: | 3 | | Plumbing: | 10 | Roof Covering: | COMP SHINGLE |
|
| | Type | Description | Class CD | Sub Class CD | Year Built | Area |
| | MA | Main Area | 1 | 30 | 1976 | 1120.0 |
| | SI1 | SITE IMPROVEMENT | 1 | 30 | 1976 | 1.5 |
| | BASE | BASEMENT | 1 | 30 | 1976 | 1120.0 |
| | BRF | BASEMENT - REC FINISH | 1 | 30 | 1976 | 1120.0 |
| | ATG | Attached Garage | 1 | 30 | 1976 | 440.0 |
| | RPO | OPEN PORCH W/ROOF | 1 | 30 | 1976 | 68.0 |
| | S1F | Single One Story Fireplace | 1 | 30 | 1976 | 1.0 |
| | CPC | COVERED CARPORT/PATIO | 1 | 30 | 1976 | 200.0 |
Sketch
Property Image
Land
| 1 | RES 1 | Converted: Residential | 0.1800 | 7840.00 | 0.00 | 0.00 | 1.00 | $70,560 | $0 |
Roll Value History
| 2026 | N/A | N/A | N/A | N/A | N/A |
| 2025 | $292,870 | $86,240 | $0 | $379,110 | $379,110 |
| 2024 | $315,370 | $70,560 | $0 | $385,930 | $385,930 |
| 2023 | $315,370 | $70,560 | $0 | $385,930 | $385,930 |
| 2022 | $252,300 | $56,840 | $0 | $309,140 | $309,140 |
| 2021 | $219,390 | $56,840 | $0 | $276,230 | $276,230 |
| 2020 | $168,760 | $56,840 | $0 | $225,600 | $225,600 |
| 2019 | $168,760 | $56,840 | $0 | $225,600 | $225,600 |
| 2018 | $172,690 | $45,300 | $0 | $217,990 | $217,990 |
| 2017 | $156,990 | $45,300 | $0 | $202,290 | $202,290 |
| 2016 | $136,510 | $45,300 | $0 | $181,810 | $181,810 |
| 2015 | $136,510 | $45,300 | $0 | $181,810 | $181,810 |
| 2014 | $124,100 | $45,300 | $0 | $169,400 | $169,400 |
| 2013 | $124,100 | $45,300 | $0 | $169,400 | $169,400 |
| 2012 | $123,900 | $45,300 | $0 | $0 | $0 |
| 2011 | $123,900 | $45,300 | $0 | $0 | $0 |
| 2010 | $115,800 | $45,300 | $0 | $0 | $0 |
| 2009 | $133,700 | $45,300 | $0 | $0 | $0 |
| 2008 | $133,700 | $45,300 | $0 | $0 | $0 |
| 2007 | $96,500 | $22,800 | $0 | $0 | $0 |
Deed and Sales History
| 1 | 04/15/2016 | QCD | QUIT CLAIM DEED | EGGERS JENNIFER | EGGERS SCOTT W & JENNIFER L | | | | 130051 | 2016-02874 |
| 2 | 08/16/1994 | WARRANTY D | WARRANTY DEED | | | | | $102,000.00 | 82361 | 2229-409648 |
Payout Agreement
| No payout information available.. |