Property
Account |
| Property ID: | 11981 | Abbreviated Legal Description: | MEADOW VIEW LOT 5 BLK 4 |
| Parcel Number: | 360732550405 | Agent Code: | |
| Type: | Real | | |
| Tax Area: | 1 - OL-140-F | Land Use Code | 11 |
| Open Space: | N | DFL | N |
| Historic Property: | N | Remodel Property: | N |
| Multi-Family Redevelopment: | N | | |
| Township: | 7 | Section: | 32 |
| Range: | 36 |
Location |
| Address: | 105 MEADOW ST WA 99362 | Mapsco: | |
| Neighborhood: | A Res | Map ID: | |
| Neighborhood CD: | 613011 |
Owner |
| Name: | GARCIA EDGAR QUINTANAR | Owner ID: | 57994 |
| Mailing Address: | CLAUDIA GARCIA DE QUINTANAR 105 MEADOW ST WALLA WALLA, WA 99362 | % Ownership: | 100.0000000000% |
| | | Exemptions: | |
Taxes and Assessment Details
Values
| (+) Improvement Homesite Value: | + | $0 | |
| (+) Improvement Non-Homesite Value: | + | $385,220 | |
| (+) Land Homesite Value: | + | $0 | |
| (+) Land Non-Homesite Value: | + | $57,170 | |
| (+) Curr Use (HS): | + | $0 | $0 |
| (+) Curr Use (NHS): | + | $0 | $0 |
| | | -------------------------- | |
| (=) Market Value: | = | $442,390 | |
| (–) Productivity Loss: | – | $0 | |
| | | -------------------------- | |
| (=) Subtotal: | = | $442,390 | |
| (+) Senior Appraised Value: | + | $0 | |
| (+) Non-Senior Appraised Value: | + | $442,390 | |
| | | -------------------------- | |
| (=) Total Appraised Value: | = | $442,390 | |
| (–) Senior Exemption Loss: | – | $0 | |
| (–) Exemption Loss: | – | $0 | |
| | | -------------------------- | |
| (=) Taxable Value: | = | $442,390 | |
Taxing Jurisdiction
| Owner: | GARCIA EDGAR QUINTANAR | | |
| % Ownership: | 100.0000000000% | | |
| Total Value: | $442,390 | | |
| Tax Area: | 1 - OL-140-F |
| CERFD | CURRENT EXPENSE REFUND 010 | 0.0000000000 | $442,390 | $442,390 | $0.00 | | |
| CURREXP | CURRENT EXPENSE 010 | 1.0175366760 | $442,390 | $442,390 | $450.15 | | |
| HUMNSERV | HUMAN SERVICES 119 | 0.0250000000 | $442,390 | $442,390 | $11.06 | | |
| SLDREL | SOLDIERS RELIEF 121 | 0.0155990005 | $442,390 | $442,390 | $6.90 | | |
| EMERGSER | EMS 147 | 0.3792580840 | $442,390 | $442,390 | $167.78 | | |
| EMSRFD | EMS REFUND 147 | 0.0000000000 | $442,390 | $442,390 | $0.00 | | |
| PORTRFD | PORT REFUND 640 | 0.0000000000 | $442,390 | $442,390 | $0.00 | | |
| PORTWWGEN | PORT OF WW 640 | 0.2460186015 | $442,390 | $442,390 | $108.84 | | |
| SD140BOND | SD #140 BOND 764 | 0.8342371393 | $442,390 | $442,390 | $369.06 | | |
| SD140GEN | SD #140 GENERAL 760 | 2.0646500647 | $442,390 | $442,390 | $913.38 | | |
| ST2 | STATE SCHOOL PART 2 600 | 0.8131451643 | $442,390 | $442,390 | $359.73 | | |
| STATESCHL | STATE SCHOOL 600 | 1.5158548041 | $442,390 | $442,390 | $670.60 | | |
| STREFUND | STATE REFUND LEVY 603 | 0.0000000000 | $442,390 | $442,390 | $0.00 | | |
| CWWBOND | C OF WW BOND 643 | 0.2760494372 | $442,390 | $442,390 | $122.12 | | |
| CWWGEN | CITY OF WW 631 | 1.6100204973 | $442,390 | $442,390 | $712.26 | | |
| CWWRFD | CITY OF WALLA WALLA REFUND 631 | 0.0000000000 | $442,390 | $442,390 | $0.00 | | |
| | Total Tax Rate: | 8.7973694689 | | | | | |
| | | | | Taxes w/Current Exemptions: | $3,891.88 | | |
| | | | | Taxes w/o Exemptions: | $3,891.88 | | |
Improvement / Building
| Improvement #1: | RESIDENTIAL | State Code: | 11 | 1396.0 sqft | Value: | $385,220 |
| Exterior Wall: | PLYWOOD | Heating/Cooling: | WARM & COOLED AIR | | Number of Bathrooms: | 1 | Number of Bedrooms: | 3 | | Plumbing: | 9 | Roof Covering: | COMP SHINGLE |
|
| | Type | Description | Class CD | Sub Class CD | Year Built | Area |
| | MA | Main Area | 1 | 30 | 1967 | 1396.0 |
| | SI1 | SITE IMPROVEMENT | 1 | 30 | 1967 | 2.0 |
| | BASE | BASEMENT | 1 | 30 | 1967 | 1200.0 |
| | BMF | BASEMENT - MIN FINISH | 1 | 30 | 1967 | 600.0 |
| | ATG | Attached Garage | 1 | 30 | 1967 | 616.0 |
| | RPO | OPEN PORCH W/ROOF | 1 | 30 | 1967 | 35.0 |
| | S1F | Single One Story Fireplace | 1 | 30 | 1967 | 1.0 |
Sketch
Property Image
Land
| 1 | RES 1 | Converted: Residential | 0.1458 | 6352.00 | 0.00 | 0.00 | 1.00 | $57,170 | $0 |
Roll Value History
| 2026 | N/A | N/A | N/A | N/A | N/A |
| 2025 | $332,440 | $69,870 | $0 | $402,310 | $402,310 |
| 2024 | $385,220 | $57,170 | $0 | $442,390 | $442,390 |
| 2023 | $385,220 | $57,170 | $0 | $442,390 | $442,390 |
| 2022 | $321,020 | $46,050 | $0 | $367,070 | $367,070 |
| 2021 | $256,820 | $46,050 | $0 | $302,870 | $302,870 |
| 2020 | $197,550 | $46,050 | $0 | $243,600 | $243,600 |
| 2019 | $197,550 | $46,050 | $0 | $243,600 | $243,600 |
| 2018 | $163,420 | $38,100 | $0 | $201,520 | $201,520 |
| 2017 | $155,640 | $38,100 | $0 | $193,740 | $193,740 |
| 2016 | $129,700 | $38,100 | $0 | $167,800 | $167,800 |
| 2015 | $129,700 | $38,100 | $0 | $167,800 | $167,800 |
| 2014 | $129,700 | $38,100 | $0 | $167,800 | $167,800 |
| 2013 | $129,700 | $38,100 | $0 | $167,800 | $167,800 |
| 2012 | $129,700 | $38,100 | $0 | $0 | $0 |
| 2011 | $129,700 | $38,100 | $0 | $0 | $0 |
| 2010 | $121,700 | $38,100 | $0 | $0 | $0 |
| 2009 | $139,500 | $38,100 | $0 | $0 | $0 |
| 2008 | $139,500 | $38,100 | $0 | $0 | $0 |
| 2007 | $116,500 | $19,100 | $0 | $0 | $0 |
Deed and Sales History
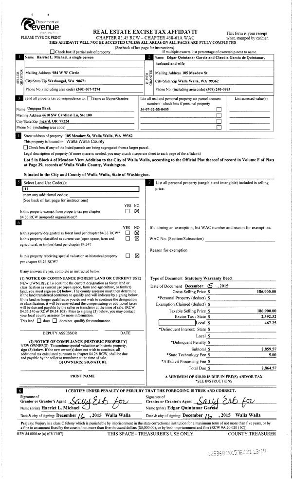
| 1 | 12/21/2015 | SWD | STATUTORY WARRANTY DEED | MICHAEL HARRIET FAMILY TRUST | GARCIA EDGAR QUINTANAR | | | $186,900.00 | 129368 | 2015-10851 |
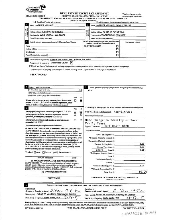
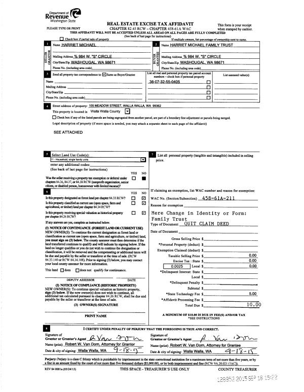
| 2 | 09/18/2015 | QCD | QUIT CLAIM DEED | MICHAEL HARRIET L | MICHAEL HARRIET FAMILY TRUST | | | $0.00 | 128852 | 2015-08201 |
| 3 | 11/30/1976 | WARRANTY D | WARRANTY DEED | | | | | $38,900.00 | 0 | 5105-59864 |
Payout Agreement
| No payout information available.. |