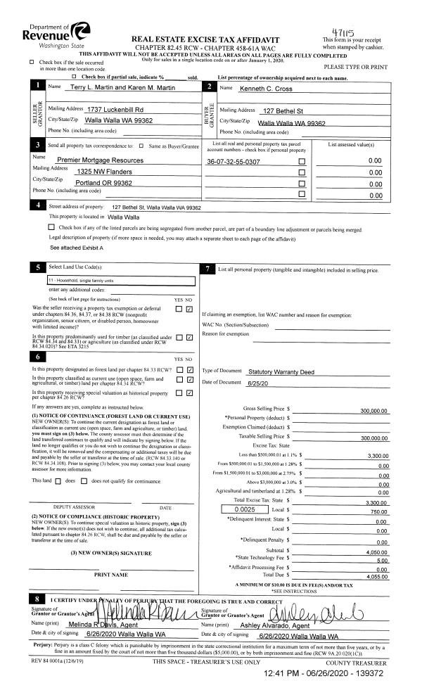
Property
Account |
| Property ID: | 11973 | Abbreviated Legal Description: | MEADOW VIEW LOT 7 BLK 3 |
| Parcel Number: | 360732550307 | Agent Code: | |
| Type: | Real | | |
| Tax Area: | 1 - OL-140-F | Land Use Code | 11 |
| Open Space: | N | DFL | N |
| Historic Property: | N | Remodel Property: | N |
| Multi-Family Redevelopment: | N | | |
| Township: | 7 | Section: | 32 |
| Range: | 36 |
Location |
| Address: | 127 BETHEL ST WA 99362 | Mapsco: | |
| Neighborhood: | A Res | Map ID: | |
| Neighborhood CD: | 613011 |
Owner |
| Name: | CROSS KENNETH C | Owner ID: | 67464 |
| Mailing Address: | 127 BETHEL ST WALLA WALLA, WA 99362 | % Ownership: | 100.0000000000% |
| | | Exemptions: | |
Taxes and Assessment Details
Values
| (+) Improvement Homesite Value: | + | $0 | |
| (+) Improvement Non-Homesite Value: | + | $332,020 | |
| (+) Land Homesite Value: | + | $0 | |
| (+) Land Non-Homesite Value: | + | $69,300 | |
| (+) Curr Use (HS): | + | $0 | $0 |
| (+) Curr Use (NHS): | + | $0 | $0 |
| | | -------------------------- | |
| (=) Market Value: | = | $401,320 | |
| (–) Productivity Loss: | – | $0 | |
| | | -------------------------- | |
| (=) Subtotal: | = | $401,320 | |
| (+) Senior Appraised Value: | + | $0 | |
| (+) Non-Senior Appraised Value: | + | $401,320 | |
| | | -------------------------- | |
| (=) Total Appraised Value: | = | $401,320 | |
| (–) Senior Exemption Loss: | – | $0 | |
| (–) Exemption Loss: | – | $0 | |
| | | -------------------------- | |
| (=) Taxable Value: | = | $401,320 | |
Taxing Jurisdiction
| Owner: | CROSS KENNETH C | | |
| % Ownership: | 100.0000000000% | | |
| Total Value: | $401,320 | | |
| Tax Area: | 1 - OL-140-F |
| CERFD | CURRENT EXPENSE REFUND 010 | 0.0000000000 | $401,320 | $401,320 | $0.00 | | |
| CURREXP | CURRENT EXPENSE 010 | 1.0175366760 | $401,320 | $401,320 | $408.36 | | |
| HUMNSERV | HUMAN SERVICES 119 | 0.0250000000 | $401,320 | $401,320 | $10.03 | | |
| SLDREL | SOLDIERS RELIEF 121 | 0.0155990005 | $401,320 | $401,320 | $6.26 | | |
| EMERGSER | EMS 147 | 0.3792580840 | $401,320 | $401,320 | $152.20 | | |
| EMSRFD | EMS REFUND 147 | 0.0000000000 | $401,320 | $401,320 | $0.00 | | |
| PORTRFD | PORT REFUND 640 | 0.0000000000 | $401,320 | $401,320 | $0.00 | | |
| PORTWWGEN | PORT OF WW 640 | 0.2460186015 | $401,320 | $401,320 | $98.73 | | |
| SD140BOND | SD #140 BOND 764 | 0.8342371393 | $401,320 | $401,320 | $334.80 | | |
| SD140GEN | SD #140 GENERAL 760 | 2.0646500647 | $401,320 | $401,320 | $828.59 | | |
| ST2 | STATE SCHOOL PART 2 600 | 0.8131451643 | $401,320 | $401,320 | $326.33 | | |
| STATESCHL | STATE SCHOOL 600 | 1.5158548041 | $401,320 | $401,320 | $608.34 | | |
| STREFUND | STATE REFUND LEVY 603 | 0.0000000000 | $401,320 | $401,320 | $0.00 | | |
| CWWBOND | C OF WW BOND 643 | 0.2760494372 | $401,320 | $401,320 | $110.78 | | |
| CWWGEN | CITY OF WW 631 | 1.6100204973 | $401,320 | $401,320 | $646.13 | | |
| CWWRFD | CITY OF WALLA WALLA REFUND 631 | 0.0000000000 | $401,320 | $401,320 | $0.00 | | |
| | Total Tax Rate: | 8.7973694689 | | | | | |
| | | | | Taxes w/Current Exemptions: | $3,530.55 | | |
| | | | | Taxes w/o Exemptions: | $3,530.55 | | |
Improvement / Building
| Improvement #1: | RESIDENTIAL | State Code: | 11 | 894.0 sqft | Value: | $332,020 |
| Exterior Wall: | PLYWOOD | Heating/Cooling: | WARM & COOLED AIR | | Number of Bathrooms: | 2 | Number of Bedrooms: | 4 | | Plumbing: | 9 | Roof Covering: | COMP SHINGLE |
|
| | Type | Description | Class CD | Sub Class CD | Year Built | Area |
| | MA | Main Area | 11 | 30 | 1970 | 894.0 |
| | SI1 | SITE IMPROVEMENT | 11 | 30 | 1970 | 2.0 |
| | BASE | BASEMENT | 11 | 30 | 1970 | 864.0 |
| | BPF | BASEMENT -PARTITIONED FINISH | 11 | 30 | 1970 | 864.0 |
| | DTG | Detached Garage | 11 | 30 | 1970 | 672.0 |
| | WOD | Wood Deck | 11 | 30 | 1970 | 144.0 |
Sketch
Property Image
Land
| 1 | RES 1 | Converted: Residential | 0.1768 | 7700.00 | 0.00 | 0.00 | 1.00 | $69,300 | $0 |
Roll Value History
| 2026 | N/A | N/A | N/A | N/A | N/A |
| 2025 | $317,610 | $84,700 | $0 | $402,310 | $402,310 |
| 2024 | $332,020 | $69,300 | $0 | $401,320 | $401,320 |
| 2023 | $332,020 | $69,300 | $0 | $401,320 | $401,320 |
| 2022 | $332,020 | $55,830 | $0 | $387,850 | $387,850 |
| 2021 | $237,160 | $55,830 | $0 | $292,990 | $292,990 |
| 2020 | $175,670 | $55,830 | $0 | $231,500 | $231,500 |
| 2019 | $175,670 | $55,830 | $0 | $231,500 | $231,500 |
| 2018 | $160,550 | $45,200 | $0 | $205,750 | $205,750 |
| 2017 | $145,950 | $45,200 | $0 | $191,150 | $191,150 |
| 2016 | $139,000 | $45,200 | $0 | $184,200 | $184,200 |
| 2015 | $139,000 | $45,200 | $0 | $184,200 | $184,200 |
| 2014 | $139,000 | $45,200 | $0 | $184,200 | $184,200 |
| 2013 | $139,000 | $45,200 | $0 | $184,200 | $184,200 |
| 2012 | $139,000 | $45,200 | $0 | $0 | $0 |
| 2011 | $130,200 | $45,200 | $0 | $0 | $0 |
| 2010 | $121,800 | $45,200 | $0 | $0 | $0 |
| 2009 | $140,400 | $45,200 | $0 | $0 | $0 |
| 2008 | $140,400 | $45,200 | $0 | $0 | $0 |
| 2007 | $103,800 | $22,700 | $0 | $0 | $0 |
Deed and Sales History
| 1 | 06/26/2020 | SWD | STATUTORY WARRANTY DEED | MARTIN TERRY L & KAREN M | CROSS KENNETH C | | | $300,000.00 | 139372 | 2020-05895 |
| 2 | 08/29/2014 | SWD | STATUTORY WARRANTY DEED | LOUDERMILK DAVID C & THERESA | MARTIN TERRY L & KAREN M | | | $185,500.00 | 126593 | 2014-06543 |
| 3 | 01/30/1989 | WARRANTY D | WARRANTY DEED | | | | | $45,500.00 | 0 | 1748-900647 |
Payout Agreement
| No payout information available.. |