Property
Account |
| Property ID: | 11944 | Abbreviated Legal Description: | MEADOW VIEW LESS W 5' OF LOT 10 BLK 1 |
| Parcel Number: | 360732550110 | Agent Code: | |
| Type: | Real | | |
| Tax Area: | 1 - OL-140-F | Land Use Code | 11 |
| Open Space: | N | DFL | N |
| Historic Property: | N | Remodel Property: | N |
| Multi-Family Redevelopment: | N | | |
| Township: | 7 | Section: | 32 |
| Range: | 36 |
Location |
| Address: | 1806 LEONARD DR WA 99362 | Mapsco: | |
| Neighborhood: | A Res | Map ID: | |
| Neighborhood CD: | 613011 |
Owner |
| Name: | ELLIS CARA | Owner ID: | 66354 |
| Mailing Address: | 18550 MCCALL CT GLADSTONE, OR 97027 | % Ownership: | 100.0000000000% |
| | | Exemptions: | |
Taxes and Assessment Details
Values
| (+) Improvement Homesite Value: | + | $0 | |
| (+) Improvement Non-Homesite Value: | + | $225,340 | |
| (+) Land Homesite Value: | + | $0 | |
| (+) Land Non-Homesite Value: | + | $90,030 | |
| (+) Curr Use (HS): | + | $0 | $0 |
| (+) Curr Use (NHS): | + | $0 | $0 |
| | | -------------------------- | |
| (=) Market Value: | = | $315,370 | |
| (–) Productivity Loss: | – | $0 | |
| | | -------------------------- | |
| (=) Subtotal: | = | $315,370 | |
| (+) Senior Appraised Value: | + | $0 | |
| (+) Non-Senior Appraised Value: | + | $315,370 | |
| | | -------------------------- | |
| (=) Total Appraised Value: | = | $315,370 | |
| (–) Senior Exemption Loss: | – | $0 | |
| (–) Exemption Loss: | – | $0 | |
| | | -------------------------- | |
| (=) Taxable Value: | = | $315,370 | |
Taxing Jurisdiction
| Owner: | ELLIS CARA | | |
| % Ownership: | 100.0000000000% | | |
| Total Value: | $315,370 | | |
| Tax Area: | 1 - OL-140-F |
| CERFD | CURRENT EXPENSE REFUND 010 | 0.0000000000 | $315,370 | $315,370 | $0.00 | | |
| CURREXP | CURRENT EXPENSE 010 | 1.0175366760 | $315,370 | $315,370 | $320.90 | | |
| HUMNSERV | HUMAN SERVICES 119 | 0.0250000000 | $315,370 | $315,370 | $7.88 | | |
| SLDREL | SOLDIERS RELIEF 121 | 0.0155990005 | $315,370 | $315,370 | $4.92 | | |
| EMERGSER | EMS 147 | 0.3792580840 | $315,370 | $315,370 | $119.61 | | |
| EMSRFD | EMS REFUND 147 | 0.0000000000 | $315,370 | $315,370 | $0.00 | | |
| PORTRFD | PORT REFUND 640 | 0.0000000000 | $315,370 | $315,370 | $0.00 | | |
| PORTWWGEN | PORT OF WW 640 | 0.2460186015 | $315,370 | $315,370 | $77.59 | | |
| SD140BOND | SD #140 BOND 764 | 0.8342371393 | $315,370 | $315,370 | $263.09 | | |
| SD140GEN | SD #140 GENERAL 760 | 2.0646500647 | $315,370 | $315,370 | $651.13 | | |
| ST2 | STATE SCHOOL PART 2 600 | 0.8131451643 | $315,370 | $315,370 | $256.44 | | |
| STATESCHL | STATE SCHOOL 600 | 1.5158548041 | $315,370 | $315,370 | $478.06 | | |
| STREFUND | STATE REFUND LEVY 603 | 0.0000000000 | $315,370 | $315,370 | $0.00 | | |
| CWWBOND | C OF WW BOND 643 | 0.2760494372 | $315,370 | $315,370 | $87.06 | | |
| CWWGEN | CITY OF WW 631 | 1.6100204973 | $315,370 | $315,370 | $507.75 | | |
| CWWRFD | CITY OF WALLA WALLA REFUND 631 | 0.0000000000 | $315,370 | $315,370 | $0.00 | | |
| | Total Tax Rate: | 8.7973694689 | | | | | |
| | | | | Taxes w/Current Exemptions: | $2,774.43 | | |
| | | | | Taxes w/o Exemptions: | $2,774.43 | | |
Improvement / Building
| Improvement #1: | RESIDENTIAL | State Code: | 11 | 1334.0 sqft | Value: | $225,340 |
| Exterior Wall: | SIDING | Heating/Cooling: | WARM & COOLED AIR | | Number of Bathrooms: | 2 | Number of Bedrooms: | 3 | | Plumbing: | 8 | Roof Covering: | COMP SHINGLE |
|
| | Type | Description | Class CD | Sub Class CD | Year Built | Area |
| | MA | Main Area | 1 | 30 | 1959 | 1334.0 |
| | SI1 | SITE IMPROVEMENT | 1 | 30 | 1959 | 1.5 |
| | ATG | Attached Garage | 1 | 30 | 1959 | 416.0 |
| | S1F | Single One Story Fireplace | 1 | 30 | 1959 | 1.0 |
| | CPC | COVERED CARPORT/PATIO | 1 | 30 | 1959 | 264.0 |
Sketch
Property Image
Land
| 1 | RES 1 | Converted: Residential | 0.2299 | 10014.00 | 0.00 | 0.00 | 1.00 | $90,030 | $0 |
Roll Value History
| 2026 | N/A | N/A | N/A | N/A | N/A |
| 2025 | $241,080 | $110,050 | $0 | $351,130 | $351,130 |
| 2024 | $236,610 | $90,030 | $0 | $326,640 | $326,640 |
| 2023 | $225,340 | $90,030 | $0 | $315,370 | $315,370 |
| 2022 | $214,610 | $72,500 | $0 | $287,110 | $287,110 |
| 2021 | $186,620 | $72,500 | $0 | $259,120 | $259,120 |
| 2020 | $133,300 | $72,500 | $0 | $205,800 | $205,800 |
| 2019 | $133,300 | $72,500 | $0 | $205,800 | $205,800 |
| 2018 | $129,540 | $47,100 | $0 | $176,640 | $176,640 |
| 2017 | $117,760 | $47,100 | $0 | $164,860 | $164,860 |
| 2016 | $102,400 | $47,100 | $0 | $149,500 | $149,500 |
| 2015 | $102,400 | $47,100 | $0 | $149,500 | $149,500 |
| 2014 | $102,400 | $47,100 | $0 | $149,500 | $149,500 |
| 2013 | $102,400 | $47,100 | $0 | $149,500 | $149,500 |
| 2012 | $95,300 | $47,100 | $0 | $0 | $0 |
| 2011 | $95,300 | $47,100 | $0 | $0 | $0 |
| 2010 | $95,300 | $47,100 | $0 | $0 | $0 |
| 2009 | $111,100 | $47,100 | $0 | $0 | $0 |
| 2008 | $111,100 | $47,100 | $0 | $0 | $0 |
| 2007 | $81,300 | $24,600 | $0 | $0 | $0 |
Deed and Sales History
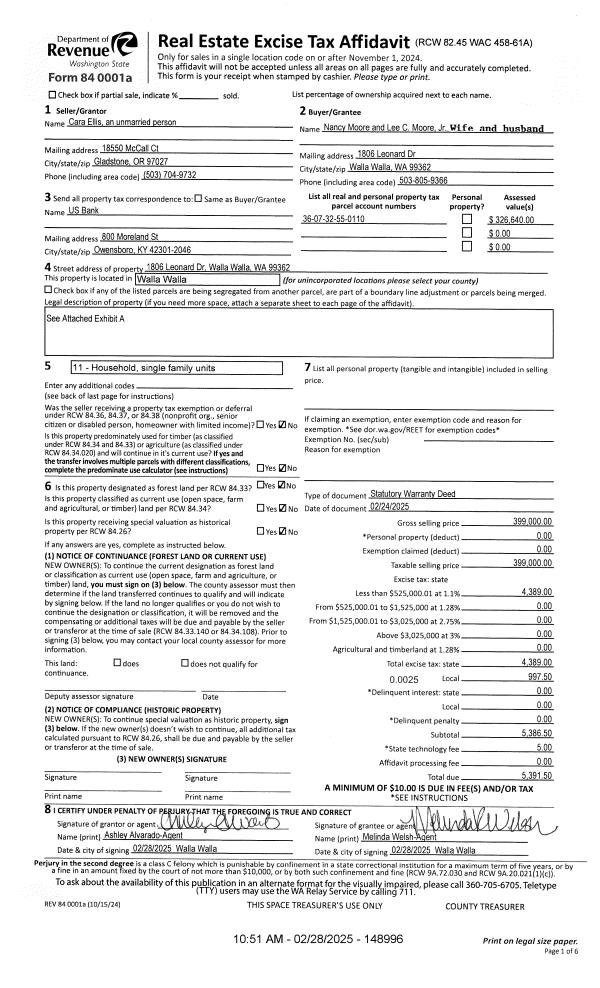
| 1 | 02/28/2025 | SWD | STATUTORY WARRANTY DEED | ELLIS CARA | MOORE NANCY & LEE C JR | | | $399,000.00 | 148996 | 2025-01028 |
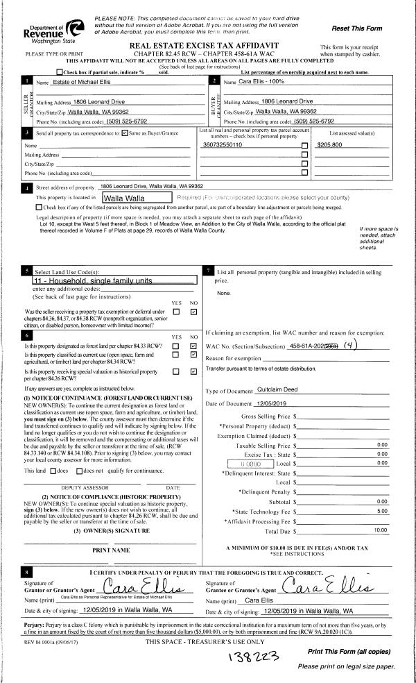
| 2 | 12/05/2019 | QCD | QUIT CLAIM DEED | ELLIS MICHAEL D | ELLIS CARA | | | $0.00 | 138223 | 2019-10206 |
| 3 | 03/30/1988 | WARRANTY D | WARRANTY DEED | | | | | $53,850.00 | 0 | 1698-801922 |
Payout Agreement
| No payout information available.. |