Property
Account |
| Property ID: | 11865 | Abbreviated Legal Description: | CRESTVIEW LOT 15 BLK 3 |
| Parcel Number: | 360732500315 | Agent Code: | |
| Type: | Real | | |
| Tax Area: | 1 - OL-140-F | Land Use Code | 11 |
| Open Space: | N | DFL | N |
| Historic Property: | N | Remodel Property: | N |
| Multi-Family Redevelopment: | N | | |
| Township: | 7 | Section: | 32 |
| Range: | 36 |
Location |
| Address: | 1944 HOWARD ST WA 99362 | Mapsco: | |
| Neighborhood: | A Res | Map ID: | |
| Neighborhood CD: | 613011 |
Owner |
| Name: | DEVISON PETER | Owner ID: | 62221 |
| Mailing Address: | KELSEY MALM 1944 HOWARD ST WALLA WALLA, WA 99362 | % Ownership: | 100.0000000000% |
| | | Exemptions: | |
Taxes and Assessment Details
Property Tax Information as of
02/21/2026
Click on "Statement Details" to expand or collapse a tax statement.
* Please enter a valid date ** Please enter a valid date *
Statement Details |
| | TOTAL: | $0.00 | $0.00 | $0.00 | $0.00 | $0.00 | $0.00 |
|
| | $0.00 | $0.00 | $0.00 | $0.00 | $0.00 | $0.00 |
Values
| (+) Improvement Homesite Value: | + | $0 | |
| (+) Improvement Non-Homesite Value: | + | $590,000 | |
| (+) Land Homesite Value: | + | $0 | |
| (+) Land Non-Homesite Value: | + | $86,020 | |
| (+) Curr Use (HS): | + | $0 | $0 |
| (+) Curr Use (NHS): | + | $0 | $0 |
| | | -------------------------- | |
| (=) Market Value: | = | $676,020 | |
| (–) Productivity Loss: | – | $0 | |
| | | -------------------------- | |
| (=) Subtotal: | = | $676,020 | |
| (+) Senior Appraised Value: | + | $0 | |
| (+) Non-Senior Appraised Value: | + | $676,020 | |
| | | -------------------------- | |
| (=) Total Appraised Value: | = | $676,020 | |
| (–) Senior Exemption Loss: | – | $0 | |
| (–) Exemption Loss: | – | $0 | |
| | | -------------------------- | |
| (=) Taxable Value: | = | $676,020 | |
Taxing Jurisdiction
| Owner: | DEVISON PETER | | |
| % Ownership: | 100.0000000000% | | |
| Total Value: | $676,020 | | |
| Tax Area: | 1 - OL-140-F |
| CERFD | CURRENT EXPENSE REFUND 010 | 0.0000000000 | $676,020 | $676,020 | $0.00 | | |
| CURREXP | CURRENT EXPENSE 010 | 1.0175366760 | $676,020 | $676,020 | $687.88 | | |
| HUMNSERV | HUMAN SERVICES 119 | 0.0250000000 | $676,020 | $676,020 | $16.90 | | |
| SLDREL | SOLDIERS RELIEF 121 | 0.0155990005 | $676,020 | $676,020 | $10.55 | | |
| EMERGSER | EMS 147 | 0.3792580840 | $676,020 | $676,020 | $256.39 | | |
| EMSRFD | EMS REFUND 147 | 0.0000000000 | $676,020 | $676,020 | $0.00 | | |
| PORTRFD | PORT REFUND 640 | 0.0000000000 | $676,020 | $676,020 | $0.00 | | |
| PORTWWGEN | PORT OF WW 640 | 0.2460186015 | $676,020 | $676,020 | $166.31 | | |
| SD140BOND | SD #140 BOND 764 | 0.8342371393 | $676,020 | $676,020 | $563.96 | | |
| SD140GEN | SD #140 GENERAL 760 | 2.0646500647 | $676,020 | $676,020 | $1,395.74 | | |
| ST2 | STATE SCHOOL PART 2 600 | 0.8131451643 | $676,020 | $676,020 | $549.70 | | |
| STATESCHL | STATE SCHOOL 600 | 1.5158548041 | $676,020 | $676,020 | $1,024.75 | | |
| STREFUND | STATE REFUND LEVY 603 | 0.0000000000 | $676,020 | $676,020 | $0.00 | | |
| CWWBOND | C OF WW BOND 643 | 0.2760494372 | $676,020 | $676,020 | $186.61 | | |
| CWWGEN | CITY OF WW 631 | 1.6100204973 | $676,020 | $676,020 | $1,088.41 | | |
| CWWRFD | CITY OF WALLA WALLA REFUND 631 | 0.0000000000 | $676,020 | $676,020 | $0.00 | | |
| | Total Tax Rate: | 8.7973694689 | | | | | |
| | | | | Taxes w/Current Exemptions: | $5,947.20 | | |
| | | | | Taxes w/o Exemptions: | $5,947.20 | | |
Improvement / Building
| Improvement #1: | RESIDENTIAL | State Code: | 11 | 2374.0 sqft | Value: | $590,000 |
| Exterior Wall: | SIDING | Heating/Cooling: | WARM & COOLED AIR | | Number of Bathrooms: | 3 | Number of Bedrooms: | 2.5 | | Plumbing: | 12 | Roof Covering: | COMP SHINGLE |
|
| | Type | Description | Class CD | Sub Class CD | Year Built | Area |
| | MA | Main Area | 4 | 45 | 1955 | 2374.0 |
| | SI1 | SITE IMPROVEMENT | 4 | 45 | 1955 | 4.0 |
| | UPFL | Upper Floor (included in main area) | 4 | 45 | 1955 | 432.0 |
| | ATG | Attached Garage | 4 | 45 | 1955 | 360.0 |
| | S1F | Single One Story Fireplace | 4 | 45 | 1955 | 1.0 |
| | RPC | OPEN PORCH W/ROOF , CEILED | 4 | 45 | 1955 | 280.0 |
| | RPO | OPEN PORCH W/ROOF | 4 | 45 | 1955 | 28.0 |
Sketch
Property Image
Land
| 1 | RES 1 | Converted: Residential | 0.2194 | 9558.00 | 0.00 | 0.00 | 1.00 | $86,020 | $0 |
Roll Value History
| 2026 | N/A | N/A | N/A | N/A | N/A |
| 2025 | $568,800 | $105,140 | $0 | $673,940 | $673,940 |
| 2024 | $590,000 | $86,020 | $0 | $676,020 | $676,020 |
| 2023 | $590,000 | $86,020 | $0 | $676,020 | $676,020 |
| 2022 | $491,660 | $69,300 | $0 | $560,960 | $560,960 |
| 2021 | $468,250 | $69,300 | $0 | $537,550 | $537,550 |
| 2020 | $374,600 | $69,300 | $0 | $443,900 | $443,900 |
| 2019 | $374,600 | $69,300 | $0 | $443,900 | $443,900 |
| 2018 | $366,900 | $46,700 | $0 | $413,600 | $413,600 |
| 2017 | $244,600 | $46,700 | $0 | $291,300 | $291,300 |
| 2016 | $244,600 | $46,700 | $0 | $291,300 | $291,300 |
| 2015 | $244,600 | $46,700 | $0 | $291,300 | $291,300 |
| 2014 | $244,600 | $46,700 | $0 | $291,300 | $291,300 |
| 2013 | $244,600 | $46,700 | $0 | $291,300 | $291,300 |
| 2012 | $259,200 | $46,700 | $0 | $0 | $0 |
| 2011 | $259,200 | $46,700 | $0 | $0 | $0 |
| 2010 | $259,200 | $46,700 | $0 | $0 | $0 |
| 2009 | $293,200 | $46,700 | $0 | $0 | $0 |
| 2008 | $293,200 | $46,700 | $0 | $0 | $0 |
| 2007 | $144,700 | $24,200 | $0 | $0 | $0 |
Deed and Sales History
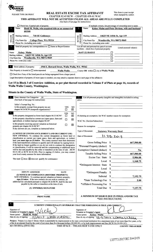
| 1 | 12/12/2017 | SWD | STATUTORY WARRANTY DEED | WELLS HEIDI M | DEVISON PETER | | | | 133773 | 2017-10032 |
| 2 | 12/08/2017 | SWD | STATUTORY WARRANTY DEED | WELLS HEIDI M | DEVISON PETER | | | $467,500.00 | 133733 | 2017-09878 |
| 3 | 10/24/2014 | SWD | STATUTORY WARRANTY DEED | MORASCH EDITH A | WELLS HEIDI M | | | $234,000.00 | 126834 | 2014-07812 |
| 4 | 09/13/2013 | WARRANTY D | WARRANTY DEED | KING, PETER N & PATRICIA L | MORASCH, EDITH A | | | $310,000.00 | 124653 | 2013-09426 |
| 5 | 11/07/2001 | WARRANTY D | WARRANTY DEED | | | | | $127,500.00 | 98299 | 3220-112104 |
Payout Agreement
| No payout information available.. |