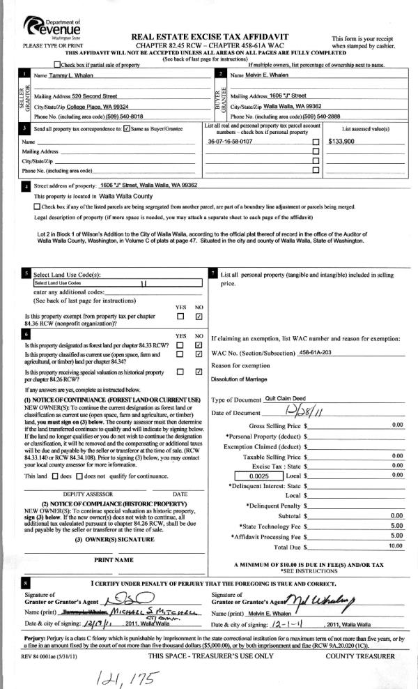
Property
Account |
| Property ID: | 1182 | Abbreviated Legal Description: | WILSONS LT 2 BLK 1 |
| Parcel Number: | 360716580107 | Agent Code: | |
| Type: | Real | | |
| Tax Area: | 5 - OL-140 | Land Use Code | 11 |
| Open Space: | N | DFL | N |
| Historic Property: | N | Remodel Property: | N |
| Multi-Family Redevelopment: | N | | |
| Township: | 7 | Section: | 16 |
| Range: | 36 |
Location |
| Address: | 1606 J ST WA 99362 | Mapsco: | |
| Neighborhood: | A-SFR | Map ID: | |
| Neighborhood CD: | 513011 |
Owner |
| Name: | SHARP NICOLE AMITY | Owner ID: | 55444 |
| Mailing Address: | ERIKA LIBBY ROOTVIK 1606 J ST WALLA WALLA, WA 99362 | % Ownership: | 100.0000000000% |
| | | Exemptions: | |
Taxes and Assessment Details
Property Tax Information as of
02/21/2026
Click on "Statement Details" to expand or collapse a tax statement.
* Please enter a valid date ** Please enter a valid date *
Statement Details |
| | TOTAL: | $0.00 | $0.00 | $0.00 | $0.00 | $0.00 | $0.00 |
|
| | $0.00 | $0.00 | $0.00 | $0.00 | $0.00 | $0.00 |
Values
| (+) Improvement Homesite Value: | + | $0 | |
| (+) Improvement Non-Homesite Value: | + | $251,100 | |
| (+) Land Homesite Value: | + | $0 | |
| (+) Land Non-Homesite Value: | + | $37,500 | |
| (+) Curr Use (HS): | + | $0 | $0 |
| (+) Curr Use (NHS): | + | $0 | $0 |
| | | -------------------------- | |
| (=) Market Value: | = | $288,600 | |
| (–) Productivity Loss: | – | $0 | |
| | | -------------------------- | |
| (=) Subtotal: | = | $288,600 | |
| (+) Senior Appraised Value: | + | $0 | |
| (+) Non-Senior Appraised Value: | + | $288,600 | |
| | | -------------------------- | |
| (=) Total Appraised Value: | = | $288,600 | |
| (–) Senior Exemption Loss: | – | $0 | |
| (–) Exemption Loss: | – | $0 | |
| | | -------------------------- | |
| (=) Taxable Value: | = | $288,600 | |
Taxing Jurisdiction
| Owner: | SHARP NICOLE AMITY | | |
| % Ownership: | 100.0000000000% | | |
| Total Value: | $288,600 | | |
| Tax Area: | 5 - OL-140 |
| CERFD | CURRENT EXPENSE REFUND 010 | 0.0000000000 | $288,600 | $288,600 | $0.00 | | |
| CURREXP | CURRENT EXPENSE 010 | 1.0175366760 | $288,600 | $288,600 | $293.66 | | |
| HUMNSERV | HUMAN SERVICES 119 | 0.0250000000 | $288,600 | $288,600 | $7.22 | | |
| SLDREL | SOLDIERS RELIEF 121 | 0.0155990005 | $288,600 | $288,600 | $4.50 | | |
| EMERGSER | EMS 147 | 0.3792580840 | $288,600 | $288,600 | $109.45 | | |
| EMSRFD | EMS REFUND 147 | 0.0000000000 | $288,600 | $288,600 | $0.00 | | |
| PORTRFD | PORT REFUND 640 | 0.0000000000 | $288,600 | $288,600 | $0.00 | | |
| PORTWWGEN | PORT OF WW 640 | 0.2460186015 | $288,600 | $288,600 | $71.00 | | |
| SD140BOND | SD #140 BOND 764 | 0.8342371393 | $288,600 | $288,600 | $240.76 | | |
| SD140GEN | SD #140 GENERAL 760 | 2.0646500647 | $288,600 | $288,600 | $595.86 | | |
| ST2 | STATE SCHOOL PART 2 600 | 0.8131451643 | $288,600 | $288,600 | $234.67 | | |
| STATESCHL | STATE SCHOOL 600 | 1.5158548041 | $288,600 | $288,600 | $437.48 | | |
| STREFUND | STATE REFUND LEVY 603 | 0.0000000000 | $288,600 | $288,600 | $0.00 | | |
| CWWBOND | C OF WW BOND 643 | 0.2760494372 | $288,600 | $288,600 | $79.67 | | |
| CWWGEN | CITY OF WW 631 | 1.6100204973 | $288,600 | $288,600 | $464.65 | | |
| CWWRFD | CITY OF WALLA WALLA REFUND 631 | 0.0000000000 | $288,600 | $288,600 | $0.00 | | |
| | Total Tax Rate: | 8.7973694689 | | | | | |
| | | | | Taxes w/Current Exemptions: | $2,538.92 | | |
| | | | | Taxes w/o Exemptions: | $2,538.92 | | |
Improvement / Building
| Improvement #1: | RESIDENTIAL | State Code: | 11 | 858.0 sqft | Value: | $251,100 |
| Exterior Wall: | VINYL | Heating/Cooling: | WARM & COOLED AIR | | Number of Bathrooms: | 2 | Number of Bedrooms: | 2 | | Plumbing: | 9 | Roof Covering: | COMP SHINGLE |
|
| | Type | Description | Class CD | Sub Class CD | Year Built | Area |
| | MA | Main Area | 1 | 30 | 1916 | 858.0 |
| | POL3 | POLE BUILDING-CON,ELEC,INSU | 1 | 30 | 0 | 864.0 |
| | SI1 | SITE IMPROVEMENT | 1 | 30 | 0 | 1.5 |
| | BASE | BASEMENT | 1 | 30 | 1916 | 572.0 |
| | WOD | Wood Deck | 1 | 30 | 1916 | 52.0 |
| | BPF | BASEMENT -PARTITIONED FINISH | 1 | 30 | 1916 | 572.0 |
Sketch
Property Image
Land
| 1 | RES 1 | Converted: Residential | 0.1377 | 6000.00 | 0.00 | 0.00 | 1.00 | $37,500 | $0 |
Roll Value History
| 2026 | N/A | N/A | N/A | N/A | N/A |
| 2025 | $235,860 | $60,000 | $0 | $295,860 | $295,860 |
| 2024 | $235,860 | $60,000 | $0 | $295,860 | $295,860 |
| 2023 | $251,100 | $37,500 | $0 | $288,600 | $288,600 |
| 2022 | $218,340 | $37,500 | $0 | $255,840 | $255,840 |
| 2021 | $155,960 | $37,500 | $0 | $193,460 | $193,460 |
| 2020 | $111,400 | $37,500 | $0 | $148,900 | $148,900 |
| 2019 | $111,400 | $37,500 | $0 | $148,900 | $148,900 |
| 2018 | $111,400 | $37,500 | $0 | $148,900 | $148,900 |
| 2017 | $118,080 | $24,000 | $0 | $142,080 | $142,080 |
| 2016 | $112,460 | $24,000 | $0 | $136,460 | $136,460 |
| 2015 | $112,460 | $24,000 | $0 | $136,460 | $136,460 |
| 2014 | $105,100 | $24,000 | $0 | $129,100 | $129,100 |
| 2013 | $105,100 | $24,000 | $0 | $129,100 | $129,100 |
| 2012 | $109,900 | $24,000 | $0 | $0 | $0 |
| 2011 | $109,900 | $24,000 | $0 | $0 | $0 |
| 2010 | $103,500 | $24,000 | $0 | $0 | $0 |
| 2009 | $117,700 | $24,000 | $0 | $0 | $0 |
| 2008 | $117,700 | $24,000 | $0 | $0 | $0 |
| 2007 | $117,700 | $24,000 | $0 | $0 | $0 |
Deed and Sales History
| 1 | 08/04/2014 | BARGAIN & | BARGAIN & SALE DEED | FEDERAL NATIONAL MORTGAGE ASSOCIATION | SHARP NICOLE AMITY | | | $107,000.00 | 126544 | 2014-06321 |
| 2 | 11/07/2013 | WARRANTY D | WARRANTY DEED | NORTHWEST TRUSTEE SERVICES INC | FEDERAL NATIONAL MORTGAGE~ASSO | | | $144,015.00 | 124926 | 2013-11073 |
| 3 | 12/28/2011 | QCD | QUIT CLAIM DEED | WHALEN, TAMMY L | WHALEN, MELVIN E | | | | 121175 | 2011-10191 |
| 4 | 11/30/2011 | WARRANTY D | WARRANTY DEED | WHALEN, TAMMY J | WHALEN, MELVIN E | | | $0.00 | 0 | CC #11-3-00115-1 |
| 5 | 10/27/2004 | WARRANTY D | WARRANTY DEED | WHALEN, TAMMY L | WHALEN, MELVIN E | | | | 106055 | 2004-12393 |
| 6 | 11/27/2002 | QCD | QUIT CLAIM DEED | WHALEN, TAMMY L | WHALEN, MELVIN E | | | | 100911 | 2002-13602 |
| 7 | 11/19/1999 | WARRANTY D | WARRANTY DEED | | | | | $84,900.00 | 94056 | 2929-913213 |
Payout Agreement
| No payout information available.. |