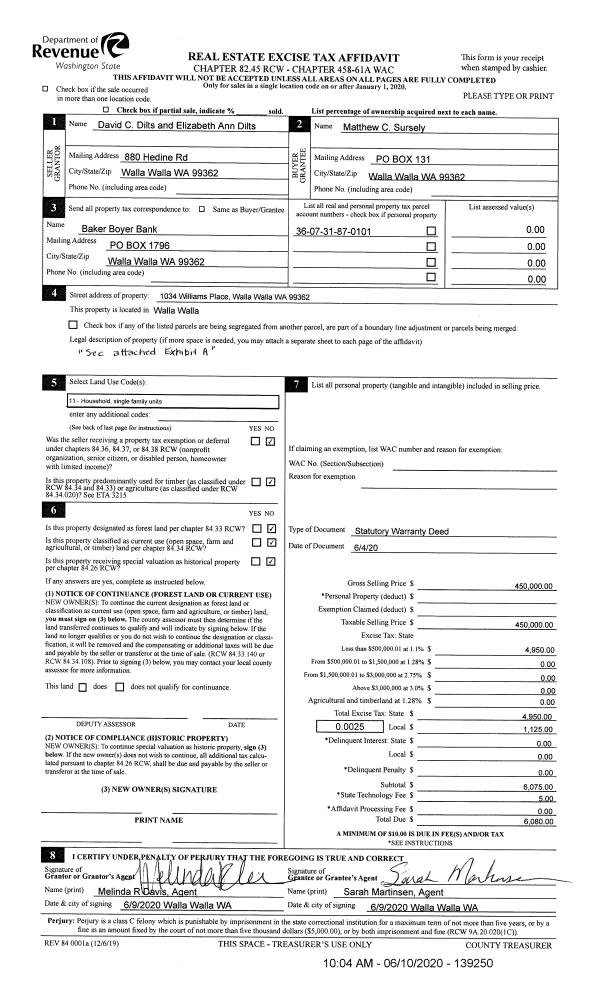
Property
Account |
| Property ID: | 11787 | Abbreviated Legal Description: | (WILLIAMS REPLAT) REPLAT OF LOTS 6-14 OF BLK 1 OF COUNTRY GLENESTATES LOT 6 BLK 1 |
| Parcel Number: | 360731870101 | Agent Code: | |
| Type: | Real | | |
| Tax Area: | 5 - OL-140 | Land Use Code | 11 |
| Open Space: | N | DFL | N |
| Historic Property: | N | Remodel Property: | N |
| Multi-Family Redevelopment: | N | | |
| Township: | 7 | Section: | 31 |
| Range: | 36 |
Location |
| Address: | 1034 WILLIAMS PL WA 99362 | Mapsco: | |
| Neighborhood: | E SRF | Map ID: | |
| Neighborhood CD: | 116011 |
Owner |
| Name: | SURSELY MATTHEW C | Owner ID: | 67287 |
| Mailing Address: | 1034 WILLIAMS PL WALLA WALLA, WA 99362-8224 | % Ownership: | 100.0000000000% |
| | | Exemptions: | |
Taxes and Assessment Details
Values
| (+) Improvement Homesite Value: | + | $0 | |
| (+) Improvement Non-Homesite Value: | + | $471,890 | |
| (+) Land Homesite Value: | + | $0 | |
| (+) Land Non-Homesite Value: | + | $100,000 | |
| (+) Curr Use (HS): | + | $0 | $0 |
| (+) Curr Use (NHS): | + | $0 | $0 |
| | | -------------------------- | |
| (=) Market Value: | = | $571,890 | |
| (–) Productivity Loss: | – | $0 | |
| | | -------------------------- | |
| (=) Subtotal: | = | $571,890 | |
| (+) Senior Appraised Value: | + | $0 | |
| (+) Non-Senior Appraised Value: | + | $571,890 | |
| | | -------------------------- | |
| (=) Total Appraised Value: | = | $571,890 | |
| (–) Senior Exemption Loss: | – | $0 | |
| (–) Exemption Loss: | – | $0 | |
| | | -------------------------- | |
| (=) Taxable Value: | = | $571,890 | |
Taxing Jurisdiction
| Owner: | SURSELY MATTHEW C | | |
| % Ownership: | 100.0000000000% | | |
| Total Value: | $571,890 | | |
| Tax Area: | 5 - OL-140 |
| CERFD | CURRENT EXPENSE REFUND 010 | 0.0000000000 | $571,890 | $571,890 | $0.00 | | |
| CURREXP | CURRENT EXPENSE 010 | 1.0175366760 | $571,890 | $571,890 | $581.92 | | |
| HUMNSERV | HUMAN SERVICES 119 | 0.0250000000 | $571,890 | $571,890 | $14.30 | | |
| SLDREL | SOLDIERS RELIEF 121 | 0.0155990005 | $571,890 | $571,890 | $8.92 | | |
| EMERGSER | EMS 147 | 0.3792580840 | $571,890 | $571,890 | $216.89 | | |
| EMSRFD | EMS REFUND 147 | 0.0000000000 | $571,890 | $571,890 | $0.00 | | |
| PORTRFD | PORT REFUND 640 | 0.0000000000 | $571,890 | $571,890 | $0.00 | | |
| PORTWWGEN | PORT OF WW 640 | 0.2460186015 | $571,890 | $571,890 | $140.70 | | |
| SD140BOND | SD #140 BOND 764 | 0.8342371393 | $571,890 | $571,890 | $477.09 | | |
| SD140GEN | SD #140 GENERAL 760 | 2.0646500647 | $571,890 | $571,890 | $1,180.75 | | |
| ST2 | STATE SCHOOL PART 2 600 | 0.8131451643 | $571,890 | $571,890 | $465.03 | | |
| STATESCHL | STATE SCHOOL 600 | 1.5158548041 | $571,890 | $571,890 | $866.90 | | |
| STREFUND | STATE REFUND LEVY 603 | 0.0000000000 | $571,890 | $571,890 | $0.00 | | |
| CWWBOND | C OF WW BOND 643 | 0.2760494372 | $571,890 | $571,890 | $157.87 | | |
| CWWGEN | CITY OF WW 631 | 1.6100204973 | $571,890 | $571,890 | $920.75 | | |
| CWWRFD | CITY OF WALLA WALLA REFUND 631 | 0.0000000000 | $571,890 | $571,890 | $0.00 | | |
| | Total Tax Rate: | 8.7973694689 | | | | | |
| | | | | Taxes w/Current Exemptions: | $5,031.12 | | |
| | | | | Taxes w/o Exemptions: | $5,031.12 | | |
Improvement / Building
| Improvement #1: | RESIDENTIAL | State Code: | 11 | 2946.0 sqft | Value: | $471,890 |
| Exterior Wall: | SIDING | Heating/Cooling: | WARM & COOLED AIR | | Number of Bathrooms: | 3 | Number of Bedrooms: | 3 | | Plumbing: | 16 | Roof Covering: | COMP SHINGLE |
|
| | Type | Description | Class CD | Sub Class CD | Year Built | Area |
| | MA | Main Area | 1 | 50 | 1999 | 2946.0 |
| | ATG | Attached Garage | 1 | 50 | 1999 | 970.0 |
| | GFP | GAS FIREPLACE | 1 | 50 | 1999 | 1.0 |
| | RPC | OPEN PORCH W/ROOF , CEILED | 1 | 50 | 1999 | 50.0 |
| | SI1 | SITE IMPROVEMENT | 1 | 50 | 1999 | 4.0 |
| | BASE | BASEMENT | 1 | 50 | 1999 | 1098.0 |
| | BPF | BASEMENT -PARTITIONED FINISH | 1 | 50 | 1999 | 637.0 |
| | CPC | COVERED CARPORT/PATIO | 1 | 50 | 1999 | 200.0 |
Sketch
Property Image
Land
| 1 | RES 1 | Converted: Residential | 0.3071 | 13376.00 | 0.00 | 0.00 | 1.00 | $100,000 | $0 |
Roll Value History
| 2026 | N/A | N/A | N/A | N/A | N/A |
| 2025 | $660,640 | $150,000 | $0 | $810,640 | $810,640 |
| 2024 | $660,640 | $100,000 | $0 | $760,640 | $760,640 |
| 2023 | $471,890 | $100,000 | $0 | $571,890 | $571,890 |
| 2022 | $428,990 | $100,000 | $0 | $528,990 | $528,990 |
| 2021 | $408,560 | $100,000 | $0 | $508,560 | $508,560 |
| 2020 | $408,560 | $100,000 | $0 | $508,560 | $508,560 |
| 2019 | $418,560 | $90,000 | $0 | $508,560 | $508,560 |
| 2018 | $348,800 | $90,000 | $0 | $438,800 | $438,800 |
| 2017 | $348,800 | $90,000 | $0 | $438,800 | $438,800 |
| 2016 | $348,800 | $90,000 | $0 | $438,800 | $438,800 |
| 2015 | $348,800 | $90,000 | $0 | $438,800 | $438,800 |
| 2014 | $348,800 | $90,000 | $0 | $438,800 | $438,800 |
| 2013 | $348,800 | $90,000 | $0 | $438,800 | $438,800 |
| 2012 | $348,800 | $90,000 | $0 | $0 | $0 |
| 2011 | $348,800 | $90,000 | $0 | $0 | $0 |
| 2010 | $348,800 | $90,000 | $0 | $0 | $0 |
| 2009 | $374,300 | $90,000 | $0 | $0 | $0 |
| 2008 | $314,200 | $55,000 | $0 | $0 | $0 |
| 2007 | $314,200 | $55,000 | $0 | $0 | $0 |
Deed and Sales History
| 1 | 06/10/2020 | SWD | STATUTORY WARRANTY DEED | DILTS DAVID C & ELIZABETH | SURSELY MATTHEW C | | | $450,000.00 | 139250 | 2020-05193 |
| 2 | 07/19/1999 | WARRANTY D | WARRANTY DEED | | | | | $72,500.00 | 93203 | 2869-908411 |
Payout Agreement
| No payout information available.. |