Property
Account |
| Property ID: | 11764 | Abbreviated Legal Description: | CROSSHAVEN PUD LOT 12 |
| Parcel Number: | 360731740012 | Agent Code: | |
| Type: | Real | | |
| Tax Area: | 5 - OL-140 | Land Use Code | 11 |
| Open Space: | N | DFL | N |
| Historic Property: | N | Remodel Property: | N |
| Multi-Family Redevelopment: | N | | |
| Township: | 7 | Section: | 31 |
| Range: | 36 |
Location |
| Address: | 2200 CROSSHAVEN DR WA 99362 | Mapsco: | |
| Neighborhood: | E Crosshaven SFR | Map ID: | |
| Neighborhood CD: | 116211 |
Owner |
| Name: | CLINTON LARRY D & SHARON M | Owner ID: | 60098 |
| Mailing Address: | 1250 LANCER DR WALLA WALLA, WA 99362 | % Ownership: | 100.0000000000% |
| | | Exemptions: | |
Taxes and Assessment Details
Property Tax Information as of
02/21/2026
Click on "Statement Details" to expand or collapse a tax statement.
* Please enter a valid date ** Please enter a valid date *
Statement Details |
| | TOTAL: | $0.00 | $0.00 | $0.00 | $0.00 | $0.00 | $0.00 |
|
| | $0.00 | $0.00 | $0.00 | $0.00 | $0.00 | $0.00 |
Values
| (+) Improvement Homesite Value: | + | $0 | |
| (+) Improvement Non-Homesite Value: | + | $816,980 | |
| (+) Land Homesite Value: | + | $0 | |
| (+) Land Non-Homesite Value: | + | $200,000 | |
| (+) Curr Use (HS): | + | $0 | $0 |
| (+) Curr Use (NHS): | + | $0 | $0 |
| | | -------------------------- | |
| (=) Market Value: | = | $1,016,980 | |
| (–) Productivity Loss: | – | $0 | |
| | | -------------------------- | |
| (=) Subtotal: | = | $1,016,980 | |
| (+) Senior Appraised Value: | + | $0 | |
| (+) Non-Senior Appraised Value: | + | $1,016,980 | |
| | | -------------------------- | |
| (=) Total Appraised Value: | = | $1,016,980 | |
| (–) Senior Exemption Loss: | – | $0 | |
| (–) Exemption Loss: | – | $0 | |
| | | -------------------------- | |
| (=) Taxable Value: | = | $1,016,980 | |
Taxing Jurisdiction
| Owner: | CLINTON LARRY D & SHARON M | | |
| % Ownership: | 100.0000000000% | | |
| Total Value: | $1,016,980 | | |
| Tax Area: | 5 - OL-140 |
| CERFD | CURRENT EXPENSE REFUND 010 | 0.0000000000 | $1,016,980 | $1,016,980 | $0.00 | | |
| CURREXP | CURRENT EXPENSE 010 | 1.0175366760 | $1,016,980 | $1,016,980 | $1,034.81 | | |
| HUMNSERV | HUMAN SERVICES 119 | 0.0250000000 | $1,016,980 | $1,016,980 | $25.42 | | |
| SLDREL | SOLDIERS RELIEF 121 | 0.0155990005 | $1,016,980 | $1,016,980 | $15.86 | | |
| EMERGSER | EMS 147 | 0.3792580840 | $1,016,980 | $1,016,980 | $385.70 | | |
| EMSRFD | EMS REFUND 147 | 0.0000000000 | $1,016,980 | $1,016,980 | $0.00 | | |
| PORTRFD | PORT REFUND 640 | 0.0000000000 | $1,016,980 | $1,016,980 | $0.00 | | |
| PORTWWGEN | PORT OF WW 640 | 0.2460186015 | $1,016,980 | $1,016,980 | $250.20 | | |
| SD140BOND | SD #140 BOND 764 | 0.8342371393 | $1,016,980 | $1,016,980 | $848.40 | | |
| SD140GEN | SD #140 GENERAL 760 | 2.0646500647 | $1,016,980 | $1,016,980 | $2,099.71 | | |
| ST2 | STATE SCHOOL PART 2 600 | 0.8131451643 | $1,016,980 | $1,016,980 | $826.95 | | |
| STATESCHL | STATE SCHOOL 600 | 1.5158548041 | $1,016,980 | $1,016,980 | $1,541.59 | | |
| STREFUND | STATE REFUND LEVY 603 | 0.0000000000 | $1,016,980 | $1,016,980 | $0.00 | | |
| CWWBOND | C OF WW BOND 643 | 0.2760494372 | $1,016,980 | $1,016,980 | $280.74 | | |
| CWWGEN | CITY OF WW 631 | 1.6100204973 | $1,016,980 | $1,016,980 | $1,637.36 | | |
| CWWRFD | CITY OF WALLA WALLA REFUND 631 | 0.0000000000 | $1,016,980 | $1,016,980 | $0.00 | | |
| | Total Tax Rate: | 8.7973694689 | | | | | |
| | | | | Taxes w/Current Exemptions: | $8,946.74 | | |
| | | | | Taxes w/o Exemptions: | $8,946.74 | | |
Improvement / Building
| Improvement #1: | RESIDENTIAL | State Code: | 11 | 4206.0 sqft | Value: | $816,980 |
| Exterior Wall: | STUCCO | Heating/Cooling: | MINI-SPLIT HP SYSTEM | | Number of Bathrooms: | 4 | Number of Bedrooms: | 4 | | Plumbing: | 17 | Roof Covering: | CONCRETE TILE |
|
| | Type | Description | Class CD | Sub Class CD | Year Built | Area |
| | MA | Main Area | 4 | 55 | 2006 | 4206.0 |
| | UPFL | Upper Floor (included in main area) | 4 | 55 | 2006 | 1402.0 |
| | BIG | Built In Garage | 4 | 55 | 2006 | 1048.0 |
| | GFP | GAS FIREPLACE | 4 | 55 | 2006 | 3.0 |
| | SI1 | SITE IMPROVEMENT | 4 | 55 | 2006 | 7.0 |
| | RPC | OPEN PORCH W/ROOF , CEILED | 4 | 55 | 2006 | 326.0 |
| | RPC | OPEN PORCH W/ROOF , CEILED | 4 | 55 | 2006 | 117.0 |
Sketch
Property Image
Land
| 1 | RES 1 | Converted: Residential | 0.3111 | 13550.00 | 0.00 | 0.00 | 1.00 | $200,000 | $0 |
Roll Value History
| 2026 | N/A | N/A | N/A | N/A | N/A |
| 2025 | $814,940 | $265,000 | $0 | $1,079,940 | $1,079,940 |
| 2024 | $857,830 | $200,000 | $0 | $1,057,830 | $1,057,830 |
| 2023 | $816,980 | $200,000 | $0 | $1,016,980 | $1,016,980 |
| 2022 | $680,820 | $200,000 | $0 | $880,820 | $880,820 |
| 2021 | $680,820 | $200,000 | $0 | $880,820 | $880,820 |
| 2020 | $486,300 | $200,000 | $0 | $686,300 | $686,300 |
| 2019 | $476,300 | $210,000 | $0 | $686,300 | $686,300 |
| 2018 | $476,300 | $210,000 | $0 | $686,300 | $686,300 |
| 2017 | $476,300 | $210,000 | $0 | $686,300 | $686,300 |
| 2016 | $476,300 | $210,000 | $0 | $686,300 | $686,300 |
| 2015 | $476,300 | $210,000 | $0 | $686,300 | $686,300 |
| 2014 | $476,300 | $210,000 | $0 | $686,300 | $686,300 |
| 2013 | $486,300 | $200,000 | $0 | $686,300 | $686,300 |
| 2012 | $497,400 | $225,000 | $0 | $0 | $0 |
| 2011 | $497,400 | $225,000 | $0 | $0 | $0 |
| 2010 | $497,400 | $225,000 | $0 | $0 | $0 |
| 2009 | $588,200 | $225,000 | $0 | $0 | $0 |
| 2008 | $459,800 | $71,100 | $0 | $0 | $0 |
| 2007 | $0 | $71,100 | $0 | $0 | $0 |
Deed and Sales History
| 1 | 05/10/2024 | QCD | QUIT CLAIM DEED | 12TH TEE LLC | GUIZAR JENNIFER R & ROSENDO | | | | 147549 | 2024-02511 |
| 2 | 05/10/2024 | SURVEY | SURVEY | | | | | | 0 | 2024-02512 |
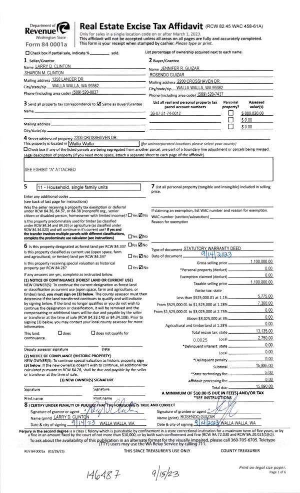
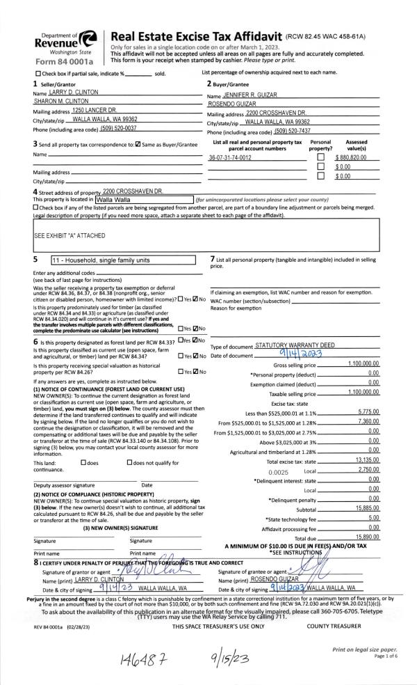
| 3 | 09/15/2023 | SWD | STATUTORY WARRANTY DEED | CLINTON LARRY D & SHARON M | GUIZAR JENNIFER R & ROSENDO | | | $1,100,000.00 | 146487 | 2023-05414 |
| 4 | 12/01/2016 | SWD | STATUTORY WARRANTY DEED | BLACKBURN BRAD M & SUSAN E | CLINTON LARRY D & SHARON M | | | $695,000.00 | 131509 | 2016-09834 |
| 5 | 03/24/1999 | WARRANTY D | WARRANTY DEED | | | | | $65,000.00 | 92414 | 2819-903686 |
Payout Agreement
| No payout information available.. |