Property
Account |
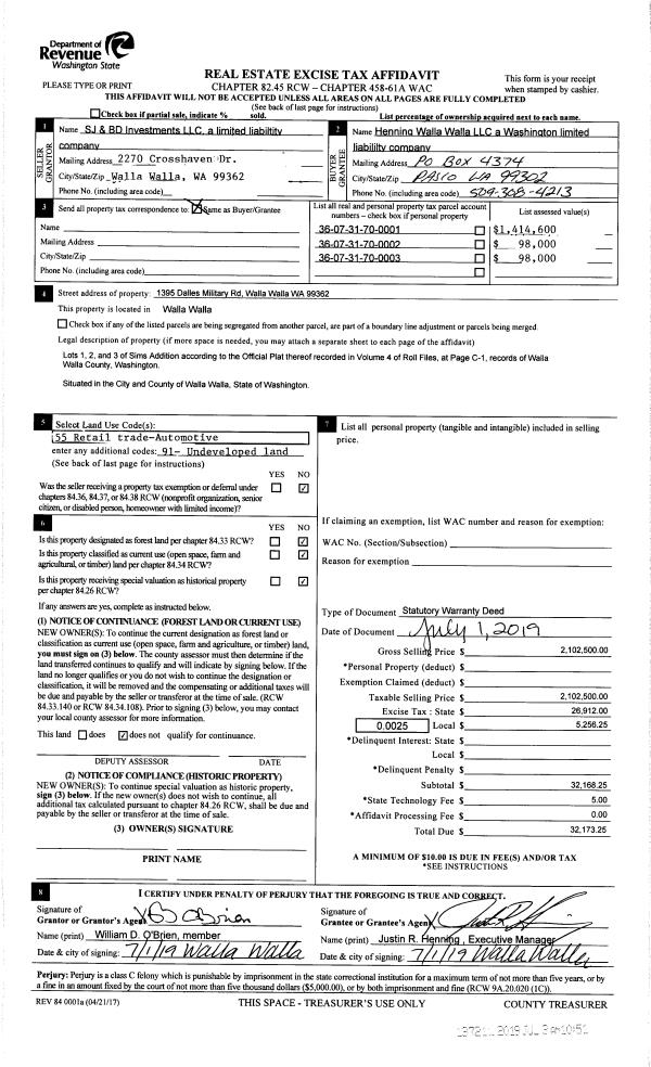
| Property ID: | 11744 | Abbreviated Legal Description: | SIMS ADDN LOT 1 |
| Parcel Number: | 360731700001 | Agent Code: | |
| Type: | Real | | |
| Tax Area: | 1 - OL-140-F | Land Use Code | 55 |
| Open Space: | N | DFL | N |
| Historic Property: | N | Remodel Property: | N |
| Multi-Family Redevelopment: | N | | |
| Township: | 7 | Section: | 31 |
| Range: | 36 |
Location |
| Address: | 1395 DALLES MILITARY RD WA 99362 | Mapsco: | |
| Neighborhood: | COLLEGE PLACE 1 | Map ID: | |
| Neighborhood CD: | 1341 |
Owner |
| Name: | HENNING WALLA WALLA LLC | Owner ID: | 65483 |
| Mailing Address: | 1395 DALLES MILITARY RD WALLA WALLA, WA 99362 | % Ownership: | 100.0000000000% |
| | | Exemptions: | |
Taxes and Assessment Details
Property Tax Information as of
02/21/2026
Click on "Statement Details" to expand or collapse a tax statement.
* Please enter a valid date ** Please enter a valid date *
Statement Details |
| | TOTAL: | $0.00 | $0.00 | $0.00 | $0.00 | $0.00 | $0.00 |
|
| | $0.00 | $0.00 | $0.00 | $0.00 | $0.00 | $0.00 |
Values
| (+) Improvement Homesite Value: | + | $0 | |
| (+) Improvement Non-Homesite Value: | + | $1,286,400 | |
| (+) Land Homesite Value: | + | $0 | |
| (+) Land Non-Homesite Value: | + | $365,400 | |
| (+) Curr Use (HS): | + | $0 | $0 |
| (+) Curr Use (NHS): | + | $0 | $0 |
| | | -------------------------- | |
| (=) Market Value: | = | $1,651,800 | |
| (–) Productivity Loss: | – | $0 | |
| | | -------------------------- | |
| (=) Subtotal: | = | $1,651,800 | |
| (+) Senior Appraised Value: | + | $0 | |
| (+) Non-Senior Appraised Value: | + | $1,651,800 | |
| | | -------------------------- | |
| (=) Total Appraised Value: | = | $1,651,800 | |
| (–) Senior Exemption Loss: | – | $0 | |
| (–) Exemption Loss: | – | $0 | |
| | | -------------------------- | |
| (=) Taxable Value: | = | $1,651,800 | |
Taxing Jurisdiction
| Owner: | HENNING WALLA WALLA LLC | | |
| % Ownership: | 100.0000000000% | | |
| Total Value: | $1,651,800 | | |
| Tax Area: | 1 - OL-140-F |
| CERFD | CURRENT EXPENSE REFUND 010 | 0.0000000000 | $1,651,800 | $1,651,800 | $0.00 | | |
| CURREXP | CURRENT EXPENSE 010 | 0.9851088983 | $1,651,800 | $1,651,800 | $1,627.20 | | |
| HUMNSERV | HUMAN SERVICES 119 | 0.0250000000 | $1,651,800 | $1,651,800 | $41.30 | | |
| SLDREL | SOLDIERS RELIEF 121 | 0.0155990000 | $1,651,800 | $1,651,800 | $25.77 | | |
| EMERGSER | EMS 147 | 0.3676811629 | $1,651,800 | $1,651,800 | $607.34 | | |
| EMSRFD | EMS REFUND 147 | 0.0000000000 | $1,651,800 | $1,651,800 | $0.00 | | |
| PORTRFD | PORT REFUND 640 | 0.0000000000 | $1,651,800 | $1,651,800 | $0.00 | | |
| PORTWWGEN | PORT OF WW 640 | 0.2344301070 | $1,651,800 | $1,651,800 | $387.23 | | |
| SD140BOND | SD #140 BOND 764 | 0.8032434458 | $1,651,800 | $1,651,800 | $1,326.80 | | |
| SD140CAP | SD #140 CAP 762 | 0.3840034221 | $1,651,800 | $1,651,800 | $634.30 | | |
| SD140GEN | SD #140 GENERAL 760 | 2.4999999996 | $1,651,800 | $1,651,800 | $4,129.50 | | |
| ST2 | STATE SCHOOL PART 2 600 | 0.8853714103 | $1,651,800 | $1,651,800 | $1,462.46 | | |
| STATESCHL | STATE SCHOOL 600 | 1.6424571473 | $1,651,800 | $1,651,800 | $2,713.01 | | |
| STREFUND | STATE REFUND LEVY 603 | 0.0000000000 | $1,651,800 | $1,651,800 | $0.00 | | |
| CWWBOND | C OF WW BOND 643 | 0.2642134255 | $1,651,800 | $1,651,800 | $436.43 | | |
| CWWGEN | CITY OF WW 631 | 1.6110494978 | $1,651,800 | $1,651,800 | $2,661.13 | | |
| CWWRFD | CITY OF WALLA WALLA REFUND 631 | 0.0000000000 | $1,651,800 | $1,651,800 | $0.00 | | |
| | Total Tax Rate: | 9.7181575166 | | | | | |
| | | | | Taxes w/Current Exemptions: | $16,052.47 | | |
| | | | | Taxes w/o Exemptions: | $16,052.47 | | |
Improvement / Building
| Improvement #1: | COMMERCIAL | State Code: | 55 | 10855.0 sqft | Value: | $1,286,400 |
| | Type | Description | Class CD | Sub Class CD | Year Built | Area |
| | MA | Main Area | D | 35 | 1995 | 10855.0 |
| | SI1 | SITE IMPROVEMENT | D | 35 | 1995 | 20.0 |
| | CPC | COVERED CARPORT/PATIO | D | 35 | 1995 | 3340.0 |
| | PRKSTLA | PARK STALL AVERAGE | D | 35 | 1995 | 75.0 |
Sketch
Property Image
Land
| 1 | COM 1 | Converted: Commercial | 1.0500 | 45738.00 | 0.00 | 0.00 | 1.00 | $365,400 | $0 |
Roll Value History
| 2026 | N/A | N/A | N/A | N/A | N/A |
| 2025 | $1,286,400 | $365,400 | $0 | $1,651,800 | $1,651,800 |
| 2024 | $1,086,800 | $361,300 | $0 | $1,448,100 | $1,448,100 |
| 2023 | $1,086,800 | $361,300 | $0 | $1,448,100 | $1,448,100 |
| 2022 | $1,086,800 | $361,300 | $0 | $1,448,100 | $1,448,100 |
| 2021 | $1,086,800 | $361,300 | $0 | $1,448,100 | $1,448,100 |
| 2020 | $1,086,800 | $361,300 | $0 | $1,448,100 | $1,448,100 |
| 2019 | $1,051,200 | $396,900 | $0 | $1,448,100 | $1,448,100 |
| 2018 | $1,017,700 | $396,900 | $0 | $1,414,600 | $1,414,600 |
| 2017 | $1,017,700 | $396,900 | $0 | $1,414,600 | $1,414,600 |
| 2016 | $1,017,700 | $396,900 | $0 | $1,414,600 | $1,414,600 |
| 2015 | $1,017,700 | $396,900 | $0 | $1,414,600 | $1,414,600 |
| 2014 | $1,017,700 | $396,900 | $0 | $1,414,600 | $1,414,600 |
| 2013 | $1,017,700 | $396,900 | $0 | $1,414,600 | $1,414,600 |
| 2012 | $1,017,700 | $396,900 | $0 | $0 | $0 |
| 2011 | $1,017,700 | $396,900 | $0 | $0 | $0 |
| 2010 | $1,017,700 | $396,900 | $0 | $0 | $0 |
| 2009 | $1,017,700 | $396,900 | $0 | $0 | $0 |
| 2008 | $983,500 | $152,300 | $0 | $0 | $0 |
| 2007 | $983,500 | $152,300 | $0 | $0 | $0 |
Deed and Sales History
| 1 | 07/03/2019 | SWD | STATUTORY WARRANTY DEED | SJ & BD INVESTMENTS LLC | HENNING WALLA WALLA LLC | | 3-PARCELS | $2,102,500.00 | 137211 | 2019-04764 |
|   | |
| 2 | 01/21/2000 | WARRANTY D | WARRANTY DEED | | | | | $1,575,000.00 | 94404 | 2940-000645 |
|   | |
Payout Agreement
| No payout information available.. |