Property
Account |
| Property ID: | 11723 | Abbreviated Legal Description: | DOGWOOD CORNER CONDO UNIT 690 |
| Parcel Number: | 360731630009 | Agent Code: | |
| Type: | Real | | |
| Tax Area: | 1 - OL-140-F | Land Use Code | 14 |
| Open Space: | N | DFL | N |
| Historic Property: | N | Remodel Property: | N |
| Multi-Family Redevelopment: | N | | |
| Township: | 7 | Section: | 31 |
| Range: | 36 |
Location |
| Address: | 690 COUNTRY CLUB RD WA 99362 | Mapsco: | |
| Neighborhood: | VG Condo | Map ID: | |
| Neighborhood CD: | 115041 |
Owner |
| Name: | BYERLEY MARSHALL V & JACIE L MC DANIELS | Owner ID: | 68348 |
| Mailing Address: | 690 COUNTRY CLUB RD WALLA WALLA, WA 99362 | % Ownership: | 100.0000000000% |
| | | Exemptions: | |
Taxes and Assessment Details
Values
| (+) Improvement Homesite Value: | + | $0 | |
| (+) Improvement Non-Homesite Value: | + | $330,600 | |
| (+) Land Homesite Value: | + | $0 | |
| (+) Land Non-Homesite Value: | + | $0 | |
| (+) Curr Use (HS): | + | $0 | $0 |
| (+) Curr Use (NHS): | + | $0 | $0 |
| | | -------------------------- | |
| (=) Market Value: | = | $330,600 | |
| (–) Productivity Loss: | – | $0 | |
| | | -------------------------- | |
| (=) Subtotal: | = | $330,600 | |
| (+) Senior Appraised Value: | + | $0 | |
| (+) Non-Senior Appraised Value: | + | $330,600 | |
| | | -------------------------- | |
| (=) Total Appraised Value: | = | $330,600 | |
| (–) Senior Exemption Loss: | – | $0 | |
| (–) Exemption Loss: | – | $0 | |
| | | -------------------------- | |
| (=) Taxable Value: | = | $330,600 | |
Taxing Jurisdiction
| Owner: | BYERLEY MARSHALL V & JACIE L MC DANIELS | | |
| % Ownership: | 100.0000000000% | | |
| Total Value: | $330,600 | | |
| Tax Area: | 1 - OL-140-F |
| CERFD | CURRENT EXPENSE REFUND 010 | 0.0000000000 | $330,600 | $330,600 | $0.00 | | |
| CURREXP | CURRENT EXPENSE 010 | 1.0175366760 | $330,600 | $330,600 | $336.40 | | |
| HUMNSERV | HUMAN SERVICES 119 | 0.0250000000 | $330,600 | $330,600 | $8.27 | | |
| SLDREL | SOLDIERS RELIEF 121 | 0.0155990005 | $330,600 | $330,600 | $5.16 | | |
| EMERGSER | EMS 147 | 0.3792580840 | $330,600 | $330,600 | $125.38 | | |
| EMSRFD | EMS REFUND 147 | 0.0000000000 | $330,600 | $330,600 | $0.00 | | |
| PORTRFD | PORT REFUND 640 | 0.0000000000 | $330,600 | $330,600 | $0.00 | | |
| PORTWWGEN | PORT OF WW 640 | 0.2460186015 | $330,600 | $330,600 | $81.33 | | |
| SD140BOND | SD #140 BOND 764 | 0.8342371393 | $330,600 | $330,600 | $275.80 | | |
| SD140GEN | SD #140 GENERAL 760 | 2.0646500647 | $330,600 | $330,600 | $682.57 | | |
| ST2 | STATE SCHOOL PART 2 600 | 0.8131451643 | $330,600 | $330,600 | $268.83 | | |
| STATESCHL | STATE SCHOOL 600 | 1.5158548041 | $330,600 | $330,600 | $501.14 | | |
| STREFUND | STATE REFUND LEVY 603 | 0.0000000000 | $330,600 | $330,600 | $0.00 | | |
| CWWBOND | C OF WW BOND 643 | 0.2760494372 | $330,600 | $330,600 | $91.26 | | |
| CWWGEN | CITY OF WW 631 | 1.6100204973 | $330,600 | $330,600 | $532.27 | | |
| CWWRFD | CITY OF WALLA WALLA REFUND 631 | 0.0000000000 | $330,600 | $330,600 | $0.00 | | |
| | Total Tax Rate: | 8.7973694689 | | | | | |
| | | | | Taxes w/Current Exemptions: | $2,908.41 | | |
| | | | | Taxes w/o Exemptions: | $2,908.41 | | |
Improvement / Building
| Improvement #1: | RESIDENTIAL | State Code: | 14 | 1203.0 sqft | Value: | $330,600 |
| Exterior Wall: | PLYWOOD | Heating/Cooling: | WARM & COOLED AIR | | Number of Bathrooms: | 3 | Number of Bedrooms: | 3 | | Plumbing: | 12 | Roof Covering: | BUILT-UP ROCK |
|
| | Type | Description | Class CD | Sub Class CD | Year Built | Area |
| | MA | Main Area | 1 | 40 | 1968 | 1203.0 |
| | SI1 | SITE IMPROVEMENT | 1 | 40 | 1968 | 5.5 |
| | BASE | BASEMENT | 1 | 40 | 1968 | 1356.0 |
| | BPF | BASEMENT -PARTITIONED FINISH | 1 | 40 | 1968 | 778.0 |
| | STG2 | Sub Terrain Garage Double | 1 | 40 | 1968 | 1.0 |
| | WOD | Wood Deck | 1 | 40 | 1968 | 420.0 |
| | S1F | Single One Story Fireplace | 1 | 40 | 1968 | 1.0 |
| | PRC | PORCH W STEPS, ROOF,CEILED | 1 | 40 | 1968 | 81.0 |
Sketch
Property Image
Land
No land segments exist for this property.
Roll Value History
| 2026 | N/A | N/A | N/A | N/A | N/A |
| 2025 | $429,780 | $0 | $0 | $429,780 | $429,780 |
| 2024 | $330,600 | $0 | $0 | $330,600 | $330,600 |
| 2023 | $330,600 | $0 | $0 | $330,600 | $330,600 |
| 2022 | $314,850 | $0 | $0 | $314,850 | $314,850 |
| 2021 | $286,230 | $0 | $0 | $286,230 | $286,230 |
| 2020 | $197,400 | $0 | $0 | $197,400 | $197,400 |
| 2019 | $197,400 | $0 | $0 | $197,400 | $197,400 |
| 2018 | $188,000 | $0 | $0 | $188,000 | $188,000 |
| 2017 | $188,000 | $0 | $0 | $188,000 | $188,000 |
| 2016 | $188,000 | $0 | $0 | $188,000 | $188,000 |
| 2015 | $188,000 | $0 | $0 | $188,000 | $188,000 |
| 2014 | $188,000 | $0 | $0 | $188,000 | $188,000 |
| 2013 | $188,000 | $0 | $0 | $188,000 | $188,000 |
| 2012 | $188,000 | $0 | $0 | $0 | $0 |
| 2011 | $188,000 | $0 | $0 | $0 | $0 |
| 2010 | $188,000 | $0 | $0 | $0 | $0 |
| 2009 | $188,000 | $0 | $0 | $0 | $0 |
| 2008 | $138,000 | $0 | $0 | $0 | $0 |
| 2007 | $138,000 | $0 | $0 | $0 | $0 |
Deed and Sales History
| 1 | 06/02/2025 | SWD | STATUTORY WARRANTY DEED | MILNE CHARLES RICHARD & MARY LOU | MARTIN SHARON E | | | $425,000.00 | 149471 | 2025-03069 |
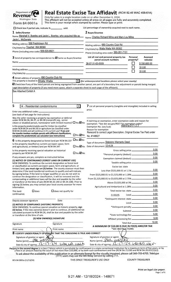
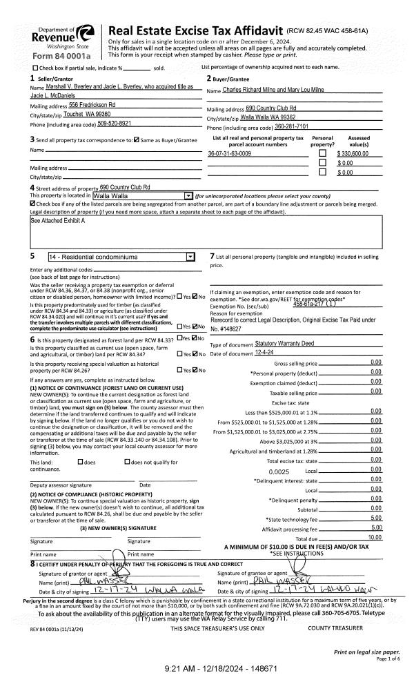
| 2 | 12/18/2024 | WARRANTY D | WARRANTY DEED | BYERLEY MARSHALL V & JACIE L MC DANIELS | MILNE CHARLES RICHARD & MARY LOU | | | | 148671 | 2024-07270 |
| 3 | 12/09/2024 | SWD | STATUTORY WARRANTY DEED | BYERLEY MARSHALL V & JACIE L MC DANIELS | MILNE CHARLES RICHARD & MARY LOU | | | $446,000.00 | 148627 | 2024-07076 |
| 4 | 12/04/2020 | QCD | QUIT CLAIM DEED | BYERLEY MARSHALL | BYERLEY MARSHALL V & JACIE L MC DANIELS | | | | 140492 | 2020-12856 |
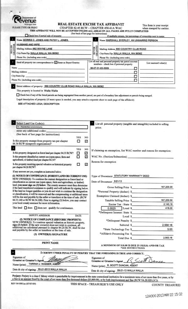
| 5 | 05/22/2013 | WARRANTY D | WARRANTY DEED | JONES, MORRIS C & PATSY L | BYERLEY, MARSHALL | | | $167,200.00 | 124000 | 2013-05140 |
| 6 | 11/15/2000 | WARRANTY D | WARRANTY DEED | | | | | $112,500.00 | 96176 | 3050-010933 |
Payout Agreement
| No payout information available.. |