Property
Account |
| Property ID: | 11711 | Abbreviated Legal Description: | SOUTHVIEW ESTATES W1/2 LOT 7 BLK 1 |
| Parcel Number: | 360731610115 | Agent Code: | |
| Type: | Real | | |
| Tax Area: | 5 - OL-140 | Land Use Code | 11 |
| Open Space: | N | DFL | N |
| Historic Property: | N | Remodel Property: | N |
| Multi-Family Redevelopment: | N | | |
| Township: | 7 | Section: | 31 |
| Range: | 36 |
Location |
| Address: | 1239 SOUTHVIEW DR WA 99362 | Mapsco: | |
| Neighborhood: | VG Res Land Contig | Map ID: | |
| Neighborhood CD: | 115197 |
Owner |
| Name: | BARROW JAMES MARKAM | Owner ID: | 72507 |
| Mailing Address: | CHARISSA ELLEN HODGES 1239 SOUTHVIEW DR WALLA WALLA, WA 99362 | % Ownership: | 100.0000000000% |
| | | Exemptions: | |
Taxes and Assessment Details
Property Tax Information as of
02/21/2026
Click on "Statement Details" to expand or collapse a tax statement.
* Please enter a valid date ** Please enter a valid date *
Statement Details |
| | TOTAL: | $0.00 | $0.00 | $0.00 | $0.00 | $0.00 | $0.00 |
|
| | $0.00 | $0.00 | $0.00 | $0.00 | $0.00 | $0.00 |
Values
| (+) Improvement Homesite Value: | + | $0 | |
| (+) Improvement Non-Homesite Value: | + | $10,500 | |
| (+) Land Homesite Value: | + | $0 | |
| (+) Land Non-Homesite Value: | + | $75,000 | |
| (+) Curr Use (HS): | + | $0 | $0 |
| (+) Curr Use (NHS): | + | $0 | $0 |
| | | -------------------------- | |
| (=) Market Value: | = | $85,500 | |
| (–) Productivity Loss: | – | $0 | |
| | | -------------------------- | |
| (=) Subtotal: | = | $85,500 | |
| (+) Senior Appraised Value: | + | $0 | |
| (+) Non-Senior Appraised Value: | + | $85,500 | |
| | | -------------------------- | |
| (=) Total Appraised Value: | = | $85,500 | |
| (–) Senior Exemption Loss: | – | $0 | |
| (–) Exemption Loss: | – | $0 | |
| | | -------------------------- | |
| (=) Taxable Value: | = | $85,500 | |
Taxing Jurisdiction
| Owner: | BARROW JAMES MARKAM | | |
| % Ownership: | 100.0000000000% | | |
| Total Value: | $85,500 | | |
| Tax Area: | 5 - OL-140 |
| CERFD | CURRENT EXPENSE REFUND 010 | 0.0000000000 | $85,500 | $85,500 | $0.00 | | |
| CURREXP | CURRENT EXPENSE 010 | 0.9851088983 | $85,500 | $85,500 | $84.23 | | |
| HUMNSERV | HUMAN SERVICES 119 | 0.0250000000 | $85,500 | $85,500 | $2.14 | | |
| SLDREL | SOLDIERS RELIEF 121 | 0.0155990000 | $85,500 | $85,500 | $1.33 | | |
| EMERGSER | EMS 147 | 0.3676811629 | $85,500 | $85,500 | $31.44 | | |
| EMSRFD | EMS REFUND 147 | 0.0000000000 | $85,500 | $85,500 | $0.00 | | |
| PORTRFD | PORT REFUND 640 | 0.0000000000 | $85,500 | $85,500 | $0.00 | | |
| PORTWWGEN | PORT OF WW 640 | 0.2344301070 | $85,500 | $85,500 | $20.04 | | |
| SD140BOND | SD #140 BOND 764 | 0.8032434458 | $85,500 | $85,500 | $68.68 | | |
| SD140CAP | SD #140 CAP 762 | 0.3840034221 | $85,500 | $85,500 | $32.83 | | |
| SD140GEN | SD #140 GENERAL 760 | 2.4999999996 | $85,500 | $85,500 | $213.75 | | |
| ST2 | STATE SCHOOL PART 2 600 | 0.8853714103 | $85,500 | $85,500 | $75.70 | | |
| STATESCHL | STATE SCHOOL 600 | 1.6424571473 | $85,500 | $85,500 | $140.43 | | |
| STREFUND | STATE REFUND LEVY 603 | 0.0000000000 | $85,500 | $85,500 | $0.00 | | |
| CWWBOND | C OF WW BOND 643 | 0.2642134255 | $85,500 | $85,500 | $22.59 | | |
| CWWGEN | CITY OF WW 631 | 1.6110494978 | $85,500 | $85,500 | $137.74 | | |
| CWWRFD | CITY OF WALLA WALLA REFUND 631 | 0.0000000000 | $85,500 | $85,500 | $0.00 | | |
| | Total Tax Rate: | 9.7181575166 | | | | | |
| | | | | Taxes w/Current Exemptions: | $830.90 | | |
| | | | | Taxes w/o Exemptions: | $830.90 | | |
Improvement / Building
| Improvement #1: | RESIDENTIAL | State Code: | 11 | 0.0 sqft | Value: | $10,500 |
Sketch
Property Image
Land
| 1 | RES 1 | Converted: Residential | 0.1193 | 5196.00 | 0.00 | 0.00 | 1.00 | $75,000 | $0 |
Roll Value History
| 2026 | N/A | N/A | N/A | N/A | N/A |
| 2025 | $10,500 | $75,000 | $0 | $85,500 | $85,500 |
| 2024 | $10,500 | $22,500 | $0 | $33,000 | $33,000 |
| 2023 | $10,500 | $22,500 | $0 | $33,000 | $33,000 |
| 2022 | $10,500 | $22,500 | $0 | $33,000 | $33,000 |
| 2021 | $10,500 | $22,500 | $0 | $33,000 | $33,000 |
| 2020 | $10,500 | $22,500 | $0 | $33,000 | $33,000 |
| 2019 | $11,640 | $5,000 | $0 | $16,640 | $16,640 |
| 2018 | $11,640 | $5,000 | $0 | $16,640 | $16,640 |
| 2017 | $11,640 | $5,000 | $0 | $16,640 | $16,640 |
| 2016 | $9,700 | $5,000 | $0 | $14,700 | $14,700 |
| 2015 | $9,700 | $5,000 | $0 | $14,700 | $14,700 |
| 2014 | $9,700 | $5,000 | $0 | $14,700 | $14,700 |
| 2013 | $9,700 | $5,000 | $0 | $14,700 | $14,700 |
| 2012 | $9,700 | $5,000 | $0 | $0 | $0 |
| 2011 | $9,700 | $5,000 | $0 | $0 | $0 |
| 2010 | $9,700 | $5,000 | $0 | $0 | $0 |
| 2009 | $9,700 | $5,000 | $0 | $0 | $0 |
| 2008 | $8,000 | $5,000 | $0 | $0 | $0 |
| 2007 | $8,000 | $5,000 | $0 | $0 | $0 |
Deed and Sales History
| 1 | 09/12/2022 | SWD | STATUTORY WARRANTY DEED | NELSON DOUGLAS J & KAREN A | BARROW JAMES MARKAM | | 3-PARCELS | $660,846.00 | 144724 | 2022-07864 |
|   | |
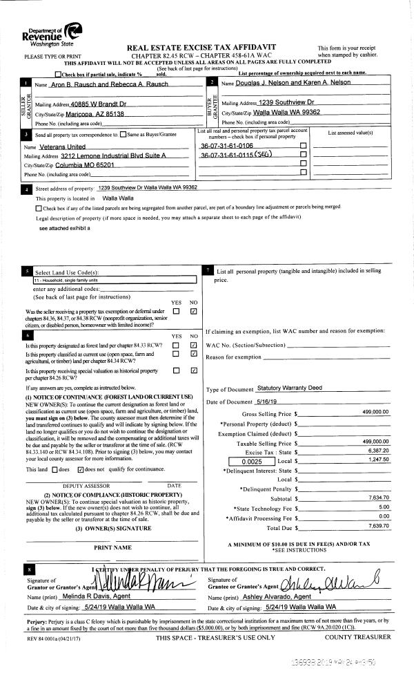
| 2 | 05/24/2019 | SWD | STATUTORY WARRANTY DEED | RAUSCH ARON B & REBECCA A | NELSON DOUGLAS J & KAREN A | | 2-PARCLES | $499,000.00 | 136938 | 2019-03533 |
|   | |
| 3 | 04/26/1994 | WARRANTY D | WARRANTY DEED | | | | | $17,500.00 | 81495 | 2189-404933 |
Payout Agreement
| No payout information available.. |