Property
Account |
| Property ID: | 11709 | Abbreviated Legal Description: | SOUTHVIEW ESTATES LOT 4 BLK 1 PLUS SM PTN LOT 5 LESS SLY PTN LOT 4 |
| Parcel Number: | 360731610112 | Agent Code: | |
| Type: | Real | | |
| Tax Area: | 5 - OL-140 | Land Use Code | 11 |
| Open Space: | N | DFL | N |
| Historic Property: | N | Remodel Property: | N |
| Multi-Family Redevelopment: | N | | |
| Township: | 7 | Section: | 31 |
| Range: | 36 |
Location |
| Address: | 1255 SOUTHVIEW DR WA 99362 | Mapsco: | |
| Neighborhood: | VG- Res Rural/City Inf | Map ID: | |
| Neighborhood CD: | 115112 |
Owner |
| Name: | HULETT CHAD | Owner ID: | 33337 |
| Mailing Address: | KATRINA E VAN CLEVE 1255 SOUTHVIEW DR WALLA WALLA, WA 99362 | % Ownership: | 100.0000000000% |
| | | Exemptions: | |
Taxes and Assessment Details
Property Tax Information as of
02/21/2026
Click on "Statement Details" to expand or collapse a tax statement.
* Please enter a valid date ** Please enter a valid date *
Statement Details |
| | TOTAL: | $0.00 | $0.00 | $0.00 | $0.00 | $0.00 | $0.00 |
|
| | $0.00 | $0.00 | $0.00 | $0.00 | $0.00 | $0.00 |
Values
| (+) Improvement Homesite Value: | + | $0 | |
| (+) Improvement Non-Homesite Value: | + | $518,150 | |
| (+) Land Homesite Value: | + | $0 | |
| (+) Land Non-Homesite Value: | + | $90,000 | |
| (+) Curr Use (HS): | + | $0 | $0 |
| (+) Curr Use (NHS): | + | $0 | $0 |
| | | -------------------------- | |
| (=) Market Value: | = | $608,150 | |
| (–) Productivity Loss: | – | $0 | |
| | | -------------------------- | |
| (=) Subtotal: | = | $608,150 | |
| (+) Senior Appraised Value: | + | $0 | |
| (+) Non-Senior Appraised Value: | + | $608,150 | |
| | | -------------------------- | |
| (=) Total Appraised Value: | = | $608,150 | |
| (–) Senior Exemption Loss: | – | $0 | |
| (–) Exemption Loss: | – | $0 | |
| | | -------------------------- | |
| (=) Taxable Value: | = | $608,150 | |
Taxing Jurisdiction
| Owner: | HULETT CHAD | | |
| % Ownership: | 100.0000000000% | | |
| Total Value: | $608,150 | | |
| Tax Area: | 5 - OL-140 |
| CERFD | CURRENT EXPENSE REFUND 010 | 0.0000000000 | $608,150 | $608,150 | $0.00 | | |
| CURREXP | CURRENT EXPENSE 010 | 1.0175366760 | $608,150 | $608,150 | $618.81 | | |
| HUMNSERV | HUMAN SERVICES 119 | 0.0250000000 | $608,150 | $608,150 | $15.20 | | |
| SLDREL | SOLDIERS RELIEF 121 | 0.0155990005 | $608,150 | $608,150 | $9.49 | | |
| EMERGSER | EMS 147 | 0.3792580840 | $608,150 | $608,150 | $230.65 | | |
| EMSRFD | EMS REFUND 147 | 0.0000000000 | $608,150 | $608,150 | $0.00 | | |
| PORTRFD | PORT REFUND 640 | 0.0000000000 | $608,150 | $608,150 | $0.00 | | |
| PORTWWGEN | PORT OF WW 640 | 0.2460186015 | $608,150 | $608,150 | $149.62 | | |
| SD140BOND | SD #140 BOND 764 | 0.8342371393 | $608,150 | $608,150 | $507.34 | | |
| SD140GEN | SD #140 GENERAL 760 | 2.0646500647 | $608,150 | $608,150 | $1,255.62 | | |
| ST2 | STATE SCHOOL PART 2 600 | 0.8131451643 | $608,150 | $608,150 | $494.51 | | |
| STATESCHL | STATE SCHOOL 600 | 1.5158548041 | $608,150 | $608,150 | $921.87 | | |
| STREFUND | STATE REFUND LEVY 603 | 0.0000000000 | $608,150 | $608,150 | $0.00 | | |
| CWWBOND | C OF WW BOND 643 | 0.2760494372 | $608,150 | $608,150 | $167.88 | | |
| CWWGEN | CITY OF WW 631 | 1.6100204973 | $608,150 | $608,150 | $979.13 | | |
| CWWRFD | CITY OF WALLA WALLA REFUND 631 | 0.0000000000 | $608,150 | $608,150 | $0.00 | | |
| | Total Tax Rate: | 8.7973694689 | | | | | |
| | | | | Taxes w/Current Exemptions: | $5,350.12 | | |
| | | | | Taxes w/o Exemptions: | $5,350.12 | | |
Improvement / Building
| Improvement #1: | RESIDENTIAL | State Code: | 11 | 2754.0 sqft | Value: | $518,150 |
| Exterior Wall: | PLYWOOD | Heating/Cooling: | WARM & COOLED AIR | | Number of Bathrooms: | 2.5 | Number of Bedrooms: | 3 | | Plumbing: | 12 | Roof Covering: | COMP SHINGLE |
|
| | Type | Description | Class CD | Sub Class CD | Year Built | Area |
| | MA | Main Area | 4 | 40 | 1994 | 2754.0 |
| | ATG | Attached Garage | 4 | 40 | 0 | 462.0 |
| | SI1 | SITE IMPROVEMENT | 4 | 40 | 0 | 3.0 |
| | WOD | Wood Deck | 4 | 40 | 1994 | 264.0 |
| | PRC | PORCH W STEPS, ROOF,CEILED | 4 | 40 | 0 | 35.0 |
| | UPFL | Upper Floor (included in main area) | 4 | 40 | 0 | 1092.0 |
Sketch
Property Image
Land
| 1 | RES 1 | Converted: Residential | 0.2961 | 12900.00 | 0.00 | 0.00 | 1.00 | $90,000 | $0 |
Roll Value History
| 2026 | N/A | N/A | N/A | N/A | N/A |
| 2025 | $440,430 | $150,000 | $0 | $590,430 | $590,430 |
| 2024 | $518,150 | $90,000 | $0 | $608,150 | $608,150 |
| 2023 | $518,150 | $90,000 | $0 | $608,150 | $608,150 |
| 2022 | $414,520 | $90,000 | $0 | $504,520 | $504,520 |
| 2021 | $394,780 | $90,000 | $0 | $484,780 | $484,780 |
| 2020 | $303,680 | $90,000 | $0 | $393,680 | $393,680 |
| 2019 | $318,680 | $75,000 | $0 | $393,680 | $393,680 |
| 2018 | $236,060 | $75,000 | $0 | $311,060 | $311,060 |
| 2017 | $224,820 | $75,000 | $0 | $299,820 | $299,820 |
| 2016 | $204,380 | $75,000 | $0 | $279,380 | $279,380 |
| 2015 | $185,800 | $75,000 | $0 | $260,800 | $260,800 |
| 2014 | $185,800 | $75,000 | $0 | $260,800 | $260,800 |
| 2013 | $185,800 | $75,000 | $0 | $260,800 | $260,800 |
| 2012 | $214,800 | $75,000 | $0 | $0 | $0 |
| 2011 | $226,900 | $75,000 | $0 | $0 | $0 |
| 2010 | $242,800 | $75,000 | $0 | $0 | $0 |
| 2009 | $242,800 | $75,000 | $0 | $0 | $0 |
| 2008 | $192,900 | $40,000 | $0 | $0 | $0 |
| 2007 | $192,900 | $40,000 | $0 | $0 | $0 |
Deed and Sales History
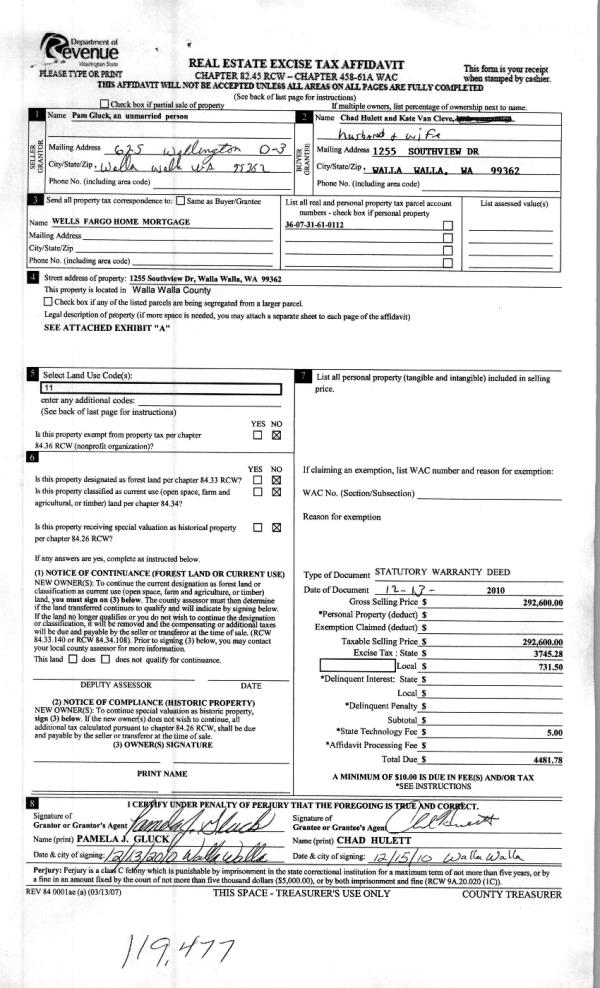
| 1 | 12/17/2010 | WARRANTY D | WARRANTY DEED | GLUCK, PAMELA J | HULETT, CHAD | | | $292,600.00 | 119477 | 2010-10456 |
| 2 | 09/17/1993 | WARRANTY D | WARRANTY DEED | | | | | $222,000.00 | 80002 | 2109-309607 |
Payout Agreement
| No payout information available.. |