Property
Account |
| Property ID: | 1169 | Abbreviated Legal Description: | SCENIC VIEW ADDN LT 19 & E2 OF LT 18 BLK 3 |
| Parcel Number: | 350736580319 | Agent Code: | |
| Type: | Real | | |
| Tax Area: | 75 - CP 250 | Land Use Code | 11 |
| Open Space: | N | DFL | N |
| Historic Property: | N | Remodel Property: | N |
| Multi-Family Redevelopment: | N | | |
| Township: | 7 | Section: | 36 |
| Range: | 35 |
Location |
| Address: | 1304 SE CENTRAL AVE WA 99324 | Mapsco: | |
| Neighborhood: | A SFR | Map ID: | |
| Neighborhood CD: | 113011 |
Owner |
| Name: | IBARRA SUSANNA GARCIA | Owner ID: | 67748 |
| Mailing Address: | 1304 SE CENTRAL AVE COLLEGE PLACE, WA 99324 | % Ownership: | 100.0000000000% |
| | | Exemptions: | |
Taxes and Assessment Details
Property Tax Information as of
02/21/2026
Click on "Statement Details" to expand or collapse a tax statement.
* Please enter a valid date ** Please enter a valid date *
Statement Details |
| | TOTAL: | $0.00 | $0.00 | $0.00 | $0.00 | $0.00 | $0.00 |
|
| | $0.00 | $0.00 | $0.00 | $0.00 | $0.00 | $0.00 |
Values
| (+) Improvement Homesite Value: | + | $0 | |
| (+) Improvement Non-Homesite Value: | + | $145,490 | |
| (+) Land Homesite Value: | + | $0 | |
| (+) Land Non-Homesite Value: | + | $60,750 | |
| (+) Curr Use (HS): | + | $0 | $0 |
| (+) Curr Use (NHS): | + | $0 | $0 |
| | | -------------------------- | |
| (=) Market Value: | = | $206,240 | |
| (–) Productivity Loss: | – | $0 | |
| | | -------------------------- | |
| (=) Subtotal: | = | $206,240 | |
| (+) Senior Appraised Value: | + | $0 | |
| (+) Non-Senior Appraised Value: | + | $206,240 | |
| | | -------------------------- | |
| (=) Total Appraised Value: | = | $206,240 | |
| (–) Senior Exemption Loss: | – | $0 | |
| (–) Exemption Loss: | – | $0 | |
| | | -------------------------- | |
| (=) Taxable Value: | = | $206,240 | |
Taxing Jurisdiction
| Owner: | IBARRA SUSANNA GARCIA | | |
| % Ownership: | 100.0000000000% | | |
| Total Value: | $206,240 | | |
| Tax Area: | 75 - CP 250 |
| CERFD | CURRENT EXPENSE REFUND 010 | 0.0000000000 | $206,240 | $206,240 | $0.00 | | |
| CURREXP | CURRENT EXPENSE 010 | 1.0175366760 | $206,240 | $206,240 | $209.86 | | |
| HUMNSERV | HUMAN SERVICES 119 | 0.0250000000 | $206,240 | $206,240 | $5.16 | | |
| SLDREL | SOLDIERS RELIEF 121 | 0.0155990005 | $206,240 | $206,240 | $3.22 | | |
| COLLPLBOND | C OF CP BOND 644 | 0.4374241808 | $206,240 | $206,240 | $90.21 | | |
| COLLPLGEN | CITY OF CP 632 | 1.4453819216 | $206,240 | $206,240 | $298.10 | | |
| EMERGSER | EMS 147 | 0.3792580840 | $206,240 | $206,240 | $78.22 | | |
| EMSRFD | EMS REFUND 147 | 0.0000000000 | $206,240 | $206,240 | $0.00 | | |
| RURALLIB | RURAL LIBRARY 623 | 0.3710609029 | $206,240 | $206,240 | $76.53 | | |
| PORTRFD | PORT REFUND 640 | 0.0000000000 | $206,240 | $206,240 | $0.00 | | |
| PORTWWGEN | PORT OF WW 640 | 0.2460186015 | $206,240 | $206,240 | $50.74 | | |
| SD250BOND | SD #250 BOND 773 | 1.4560608159 | $206,240 | $206,240 | $300.30 | | |
| SD250GEN | SD #250 GENERAL 770 | 2.3880724087 | $206,240 | $206,240 | $492.52 | | |
| ST2 | STATE SCHOOL PART 2 600 | 0.8131451643 | $206,240 | $206,240 | $167.70 | | |
| STATESCHL | STATE SCHOOL 600 | 1.5158548041 | $206,240 | $206,240 | $312.63 | | |
| STREFUND | STATE REFUND LEVY 603 | 0.0000000000 | $206,240 | $206,240 | $0.00 | | |
| | Total Tax Rate: | 10.1104125603 | | | | | |
| | | | | Taxes w/Current Exemptions: | $2,085.19 | | |
| | | | | Taxes w/o Exemptions: | $2,085.19 | | |
Improvement / Building
| Improvement #1: | RESIDENTIAL | State Code: | 11 | 1140.0 sqft | Value: | $145,490 |
| Exterior Wall: | SIDING | Heating/Cooling: | WARM & COOLED AIR | | Number of Bathrooms: | 1 | Number of Bedrooms: | 3 | | Plumbing: | 6 | Roof Covering: | COMP SHINGLE |
|
| | Type | Description | Class CD | Sub Class CD | Year Built | Area |
| | MA | Main Area | 1 | 30 | 1957 | 1140.0 |
| | SI1 | SITE IMPROVEMENT | 1 | 30 | 1957 | 1.5 |
| | ATG | Attached Garage | 1 | 30 | 1957 | 280.0 |
| | OPS | OPEN PORCH W/STEPS | 1 | 30 | 1957 | 25.0 |
| | S1F | Single One Story Fireplace | 1 | 30 | 1957 | 1.0 |
| | CPCS | CARPORT/SHED OR FLAT ROOF | 1 | 30 | 1957 | 280.0 |
| | RPO | OPEN PORCH W/ROOF | 1 | 30 | 1957 | 200.0 |
Sketch
Property Image
Land
| 1 | RES 1 | Converted: Residential | 0.2066 | 9000.00 | 0.00 | 0.00 | 1.00 | $60,750 | $0 |
Roll Value History
| 2026 | N/A | N/A | N/A | N/A | N/A |
| 2025 | $145,490 | $90,000 | $0 | $235,490 | $235,490 |
| 2024 | $145,490 | $60,750 | $0 | $206,240 | $206,240 |
| 2023 | $145,490 | $60,750 | $0 | $206,240 | $206,240 |
| 2022 | $132,260 | $60,750 | $0 | $193,010 | $193,010 |
| 2021 | $132,260 | $60,750 | $0 | $193,010 | $193,010 |
| 2020 | $132,260 | $60,750 | $0 | $193,010 | $193,010 |
| 2019 | $146,710 | $46,300 | $0 | $193,010 | $193,010 |
| 2018 | $122,260 | $46,300 | $0 | $168,560 | $168,560 |
| 2017 | $118,700 | $46,300 | $0 | $165,000 | $165,000 |
| 2016 | $103,210 | $46,300 | $0 | $149,510 | $149,510 |
| 2015 | $93,830 | $46,300 | $0 | $140,130 | $140,130 |
| 2014 | $85,300 | $46,300 | $0 | $131,600 | $131,600 |
| 2013 | $85,300 | $46,300 | $0 | $131,600 | $131,600 |
| 2012 | $89,400 | $46,300 | $0 | $0 | $0 |
| 2011 | $104,500 | $46,300 | $0 | $0 | $0 |
| 2010 | $97,300 | $46,300 | $0 | $0 | $0 |
| 2009 | $113,300 | $46,300 | $0 | $0 | $0 |
| 2008 | $64,800 | $23,800 | $0 | $0 | $0 |
| 2007 | $64,800 | $23,800 | $0 | $0 | $0 |
Deed and Sales History
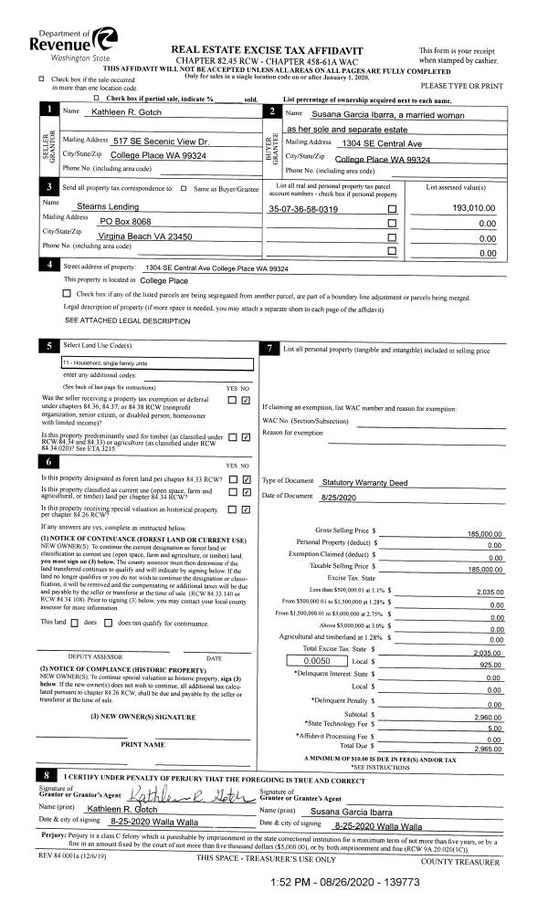
| 1 | 08/26/2020 | SWD | STATUTORY WARRANTY DEED | GOTCH KATHLEEN R | IBARRA SUSANNA GARCIA | | | $185,000.00 | 139773 | 2020-08561 |
| 2 | 08/26/2020 | QCD | QUIT CLAIM DEED | DIAZ PEDRO MADRIGAL | IBARRA SUSANNA GARCIA | | | | 139774 | 2020-08562 |
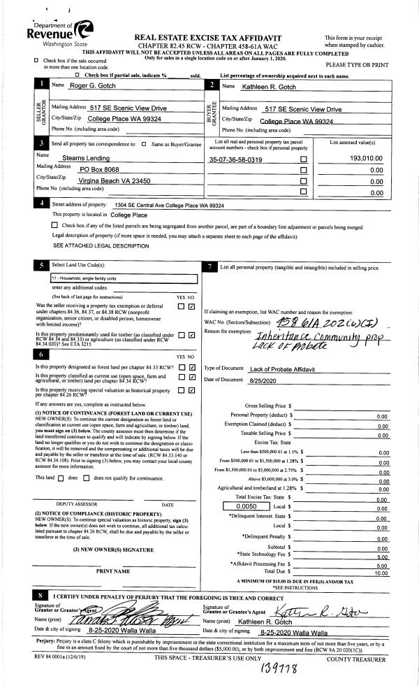
| 3 | 08/27/2020 | AFFIDAVIT | AFFIDAVIT | GOTCH ROGER G & KATHLEEN R | GOTCH KATHLEEN R | | | | 139778 | 2020-08572 |
| 4 | 08/27/2002 | WARRANTY D | WARRANTY DEED | CHADWICK, TED R & MARIE T | GOTCH, ROGER G & KATHLEEN R | | | $89,700.00 | 100237 | 2002-09575 |
| 5 | 08/09/1999 | WARRANTY D | WARRANTY DEED | | | | | $85,000.00 | 93358 | 2879-909347 |
Payout Agreement
| No payout information available.. |