Property
Account |
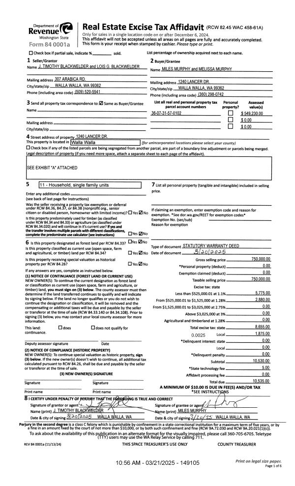
| Property ID: | 11688 | Abbreviated Legal Description: | STODDARDS 2ND ADDITION PARCEL #2 BLK 1 |
| Parcel Number: | 360731570102 | Agent Code: | |
| Type: | Real | | |
| Tax Area: | 5 - OL-140 | Land Use Code | 11 |
| Open Space: | N | DFL | N |
| Historic Property: | N | Remodel Property: | N |
| Multi-Family Redevelopment: | N | | |
| Township: | 7 | Section: | 31 |
| Range: | 36 |
Location |
| Address: | 1240 LANCER DR WA 99362 | Mapsco: | |
| Neighborhood: | VG SFR | Map ID: | |
| Neighborhood CD: | 115011 |
Owner |
| Name: | BLACKWELDER J TIMOTHY & LOIS G | Owner ID: | 13462 |
| Mailing Address: | 1240 LANCER DR WALLA WALLA, WA 99362 | % Ownership: | 100.0000000000% |
| | | Exemptions: | |
Taxes and Assessment Details
Property Tax Information as of
02/21/2026
Click on "Statement Details" to expand or collapse a tax statement.
* Please enter a valid date ** Please enter a valid date *
Statement Details |
| | TOTAL: | $0.00 | $0.00 | $0.00 | $0.00 | $0.00 | $0.00 |
|
| | $0.00 | $0.00 | $0.00 | $0.00 | $0.00 | $0.00 |
Values
| (+) Improvement Homesite Value: | + | $0 | |
| (+) Improvement Non-Homesite Value: | + | $449,230 | |
| (+) Land Homesite Value: | + | $0 | |
| (+) Land Non-Homesite Value: | + | $100,000 | |
| (+) Curr Use (HS): | + | $0 | $0 |
| (+) Curr Use (NHS): | + | $0 | $0 |
| | | -------------------------- | |
| (=) Market Value: | = | $549,230 | |
| (–) Productivity Loss: | – | $0 | |
| | | -------------------------- | |
| (=) Subtotal: | = | $549,230 | |
| (+) Senior Appraised Value: | + | $0 | |
| (+) Non-Senior Appraised Value: | + | $549,230 | |
| | | -------------------------- | |
| (=) Total Appraised Value: | = | $549,230 | |
| (–) Senior Exemption Loss: | – | $0 | |
| (–) Exemption Loss: | – | $0 | |
| | | -------------------------- | |
| (=) Taxable Value: | = | $549,230 | |
Taxing Jurisdiction
| Owner: | BLACKWELDER J TIMOTHY & LOIS G | | |
| % Ownership: | 100.0000000000% | | |
| Total Value: | $549,230 | | |
| Tax Area: | 5 - OL-140 |
| CERFD | CURRENT EXPENSE REFUND 010 | 0.0000000000 | $549,230 | $549,230 | $0.00 | | |
| CURREXP | CURRENT EXPENSE 010 | 1.0175366760 | $549,230 | $549,230 | $558.86 | | |
| HUMNSERV | HUMAN SERVICES 119 | 0.0250000000 | $549,230 | $549,230 | $13.73 | | |
| SLDREL | SOLDIERS RELIEF 121 | 0.0155990005 | $549,230 | $549,230 | $8.57 | | |
| EMERGSER | EMS 147 | 0.3792580840 | $549,230 | $549,230 | $208.30 | | |
| EMSRFD | EMS REFUND 147 | 0.0000000000 | $549,230 | $549,230 | $0.00 | | |
| PORTRFD | PORT REFUND 640 | 0.0000000000 | $549,230 | $549,230 | $0.00 | | |
| PORTWWGEN | PORT OF WW 640 | 0.2460186015 | $549,230 | $549,230 | $135.12 | | |
| SD140BOND | SD #140 BOND 764 | 0.8342371393 | $549,230 | $549,230 | $458.19 | | |
| SD140GEN | SD #140 GENERAL 760 | 2.0646500647 | $549,230 | $549,230 | $1,133.97 | | |
| ST2 | STATE SCHOOL PART 2 600 | 0.8131451643 | $549,230 | $549,230 | $446.60 | | |
| STATESCHL | STATE SCHOOL 600 | 1.5158548041 | $549,230 | $549,230 | $832.55 | | |
| STREFUND | STATE REFUND LEVY 603 | 0.0000000000 | $549,230 | $549,230 | $0.00 | | |
| CWWBOND | C OF WW BOND 643 | 0.2760494372 | $549,230 | $549,230 | $151.61 | | |
| CWWGEN | CITY OF WW 631 | 1.6100204973 | $549,230 | $549,230 | $884.27 | | |
| CWWRFD | CITY OF WALLA WALLA REFUND 631 | 0.0000000000 | $549,230 | $549,230 | $0.00 | | |
| | Total Tax Rate: | 8.7973694689 | | | | | |
| | | | | Taxes w/Current Exemptions: | $4,831.77 | | |
| | | | | Taxes w/o Exemptions: | $4,831.77 | | |
Improvement / Building
| Improvement #1: | RESIDENTIAL | State Code: | 11 | 3132.0 sqft | Value: | $449,230 |
| Exterior Wall: | SIDING | Foundation: | SLAB FOUNDATION | | Heating/Cooling: | HEAT PUMP | Number of Bathrooms: | 4 | | Number of Bedrooms: | 3 | Plumbing: | 15 | | Roof Covering: | COMP SHINGLE |   |   |
|
| | Type | Description | Class CD | Sub Class CD | Year Built | Area |
| | MA | Main Area | 3 | 50 | 1985 | 3132.0 |
| | UPFL | Upper Floor (included in main area) | 3 | 50 | 1985 | 628.0 |
| | SI1 | SITE IMPROVEMENT | 3 | 50 | 1985 | 4.5 |
| | BASE | BASEMENT | 3 | 50 | 1985 | 1172.0 |
| | BPF | BASEMENT -PARTITIONED FINISH | 3 | 50 | 1985 | 527.0 |
| | ATG | Attached Garage | 3 | 50 | 1985 | 792.0 |
| | RPO | OPEN PORCH W/ROOF | 3 | 50 | 1985 | 48.0 |
| | BLW | WOOD BALCONIES | 3 | 50 | 1985 | 44.0 |
| | D2F | Double 2 Story Fireplace | 3 | 50 | 1985 | 1.0 |
| | CPC | COVERED CARPORT/PATIO | 3 | 50 | 1985 | 340.0 |
Sketch
Property Image
Land
| 1 | RES 1 | Converted: Residential | 0.4700 | 20473.00 | 0.00 | 0.00 | 1.00 | $100,000 | $0 |
Roll Value History
| 2026 | N/A | N/A | N/A | N/A | N/A |
| 2025 | $583,990 | $150,000 | $0 | $733,990 | $733,990 |
| 2024 | $449,230 | $100,000 | $0 | $549,230 | $549,230 |
| 2023 | $449,230 | $100,000 | $0 | $549,230 | $549,230 |
| 2022 | $449,230 | $100,000 | $0 | $549,230 | $549,230 |
| 2021 | $408,390 | $100,000 | $0 | $508,390 | $508,390 |
| 2020 | $371,260 | $100,000 | $0 | $471,260 | $471,260 |
| 2019 | $381,260 | $90,000 | $0 | $471,260 | $471,260 |
| 2018 | $381,260 | $90,000 | $0 | $471,260 | $471,260 |
| 2017 | $381,260 | $90,000 | $0 | $471,260 | $471,260 |
| 2016 | $346,600 | $90,000 | $0 | $436,600 | $436,600 |
| 2015 | $346,600 | $90,000 | $0 | $436,600 | $436,600 |
| 2014 | $346,600 | $90,000 | $0 | $436,600 | $436,600 |
| 2013 | $346,600 | $90,000 | $0 | $436,600 | $436,600 |
| 2012 | $346,600 | $90,000 | $0 | $0 | $0 |
| 2011 | $346,600 | $90,000 | $0 | $0 | $0 |
| 2010 | $346,600 | $90,000 | $0 | $0 | $0 |
| 2009 | $369,600 | $90,000 | $0 | $0 | $0 |
| 2008 | $295,300 | $55,000 | $0 | $0 | $0 |
| 2007 | $295,300 | $55,000 | $0 | $0 | $0 |
Deed and Sales History
| 1 | 03/21/2025 | SWD | STATUTORY WARRANTY DEED | BLACKWELDER J TIMOTHY & LOIS G | MURPHY MILES & MELISSA | | | $750,000.00 | 149105 | 2025-01490 |
| 2 | 03/11/1991 | WARRANTY D | WARRANTY DEED | | | | | $215,000.00 | 0 | 1879-101416 |
Payout Agreement
| No payout information available.. |