Property
Account |
| Property ID: | 11655 | Abbreviated Legal Description: | THE VILLAGE LOT 40 |
| Parcel Number: | 360731540040 | Agent Code: | |
| Type: | Real | | |
| Tax Area: | 1 - OL-140-F | Land Use Code | 11 |
| Open Space: | N | DFL | N |
| Historic Property: | N | Remodel Property: | N |
| Multi-Family Redevelopment: | N | | |
| Township: | 7 | Section: | 31 |
| Range: | 36 |
Location |
| Address: | 1860 FAIRWAY DR WA 99362 | Mapsco: | |
| Neighborhood: | VG SFR | Map ID: | |
| Neighborhood CD: | 115011 |
Owner |
| Name: | URGESSA ELFENESH | Owner ID: | 56910 |
| Mailing Address: | 1860 FAIRWAY DR WALLA WALLA, WA 99362 | % Ownership: | 100.0000000000% |
| | | Exemptions: | SNR/DSBL |
Taxes and Assessment Details
Property Tax Information as of
02/21/2026
Click on "Statement Details" to expand or collapse a tax statement.
* Please enter a valid date ** Please enter a valid date *
Statement Details |
| | TOTAL: | $0.00 | $0.00 | $0.00 | $0.00 | $0.00 | $0.00 |
|
| | $0.00 | $0.00 | $0.00 | $0.00 | $0.00 | $0.00 |
Values
| (+) Improvement Homesite Value: | + | $296,250 | |
| (+) Improvement Non-Homesite Value: | + | $0 | |
| (+) Land Homesite Value: | + | $100,000 | |
| (+) Land Non-Homesite Value: | + | $0 | |
| (+) Curr Use (HS): | + | $0 | $0 |
| (+) Curr Use (NHS): | + | $0 | $0 |
| | | -------------------------- | |
| (=) Market Value: | = | $396,250 | |
| (–) Productivity Loss: | – | $0 | |
| | | -------------------------- | |
| (=) Subtotal: | = | $396,250 | |
| (+) Senior Appraised Value: | + | $396,250 | |
| (+) Non-Senior Appraised Value: | + | $0 | |
| | | -------------------------- | |
| (=) Total Appraised Value: | = | $396,250 | |
| (–) Senior Exemption Loss: | – | $0 | |
| (–) Exemption Loss: | – | $0 | |
| | | -------------------------- | |
| (=) Taxable Value: | = | $396,250 | |
Taxing Jurisdiction
| Owner: | URGESSA ELFENESH | | |
| % Ownership: | 100.0000000000% | | |
| Total Value: | $396,250 | | |
| Tax Area: | 1 - OL-140-F |
| CERFD | CURRENT EXPENSE REFUND 010 | 0.0000000000 | $396,250 | $396,250 | $0.00 | | |
| CURREXP | CURRENT EXPENSE 010 | 1.0175366760 | $396,250 | $396,250 | $403.20 | | |
| HUMNSERV | HUMAN SERVICES 119 | 0.0250000000 | $396,250 | $396,250 | $9.91 | | |
| SLDREL | SOLDIERS RELIEF 121 | 0.0155990005 | $396,250 | $396,250 | $6.18 | | |
| EMERGSER | EMS 147 | 0.3792580840 | $396,250 | $396,250 | $150.28 | | |
| EMSRFD | EMS REFUND 147 | 0.0000000000 | $396,250 | $396,250 | $0.00 | | |
| PORTRFD | PORT REFUND 640 | 0.0000000000 | $396,250 | $396,250 | $0.00 | | |
| PORTWWGEN | PORT OF WW 640 | 0.2460186015 | $396,250 | $396,250 | $97.48 | | |
| SD140BOND | SD #140 BOND 764 | 0.0000000000 | $396,250 | $0 | $0.00 | | |
| SD140GEN | SD #140 GENERAL 760 | 0.0000000000 | $396,250 | $0 | $0.00 | | |
| ST2 | STATE SCHOOL PART 2 600 | 0.0000000000 | $396,250 | $0 | $0.00 | | |
| STATESCHL | STATE SCHOOL 600 | 1.5158548041 | $396,250 | $396,250 | $600.66 | | |
| STREFUND | STATE REFUND LEVY 603 | 0.0000000000 | $396,250 | $396,250 | $0.00 | | |
| CWWBOND | C OF WW BOND 643 | 0.0000000000 | $396,250 | $0 | $0.00 | | |
| CWWGEN | CITY OF WW 631 | 1.6100204973 | $396,250 | $396,250 | $637.97 | | |
| CWWRFD | CITY OF WALLA WALLA REFUND 631 | 0.0000000000 | $396,250 | $396,250 | $0.00 | | |
| | Total Tax Rate: | 4.8092876634 | | | | | |
| | | | | Taxes w/Current Exemptions: | $1,905.68 | | |
| | | | | Taxes w/o Exemptions: | $3,485.96 | | |
Improvement / Building
| Improvement #1: | RESIDENTIAL | State Code: | 11 | 1372.0 sqft | Value: | $296,250 |
| Exterior Wall: | SIDING | Heating/Cooling: | WARM & COOLED AIR | | Number of Bathrooms: | 3 | Number of Bedrooms: | 5 | | Plumbing: | 11 | Roof Covering: | COMP SHINGLE |
|
| | Type | Description | Class CD | Sub Class CD | Year Built | Area |
| | MA | Main Area | 1 | 40 | 1979 | 1372.0 |
| | SI1 | SITE IMPROVEMENT | 1 | 40 | 1979 | 3.0 |
| | BASE | BASEMENT | 1 | 40 | 1979 | 1344.0 |
| | BPF | BASEMENT -PARTITIONED FINISH | 1 | 40 | 1979 | 1344.0 |
| | ATG | Attached Garage | 1 | 40 | 1979 | 528.0 |
| | OPS | OPEN PORCH W/STEPS | 1 | 40 | 1979 | 30.0 |
| | WOD | Wood Deck | 1 | 40 | 1979 | 156.0 |
| | D2F | Double 2 Story Fireplace | 1 | 40 | 1979 | 1.0 |
| | CPC | COVERED CARPORT/PATIO | 1 | 40 | 1979 | 348.0 |
Sketch
Property Image
Land
| 1 | RES 1 | Converted: Residential | 0.2175 | 9475.00 | 0.00 | 0.00 | 1.00 | $100,000 | $0 |
Roll Value History
| 2026 | N/A | N/A | N/A | N/A | N/A |
| 2025 | $237,000 | $170,000 | $0 | $407,000 | $396,250 |
| 2024 | $296,250 | $100,000 | $0 | $396,250 | $396,250 |
| 2023 | $296,250 | $100,000 | $0 | $396,250 | $396,250 |
| 2022 | $296,250 | $100,000 | $0 | $396,250 | $396,250 |
| 2021 | $246,880 | $100,000 | $0 | $346,880 | $346,880 |
| 2020 | $197,500 | $100,000 | $0 | $297,500 | $297,500 |
| 2019 | $207,500 | $90,000 | $0 | $297,500 | $297,500 |
| 2018 | $172,920 | $90,000 | $0 | $262,920 | $262,920 |
| 2017 | $172,920 | $90,000 | $0 | $262,920 | $262,920 |
| 2016 | $157,200 | $90,000 | $0 | $247,200 | $247,200 |
| 2015 | $131,000 | $90,000 | $0 | $221,000 | $221,000 |
| 2014 | $131,000 | $90,000 | $0 | $221,000 | $221,000 |
| 2013 | $131,000 | $90,000 | $0 | $221,000 | $221,000 |
| 2012 | $161,100 | $90,000 | $0 | $0 | $0 |
| 2011 | $161,100 | $90,000 | $0 | $0 | $0 |
| 2010 | $161,100 | $90,000 | $0 | $0 | $0 |
| 2009 | $174,300 | $90,000 | $0 | $0 | $0 |
| 2008 | $184,700 | $45,000 | $0 | $0 | $0 |
| 2007 | $184,700 | $45,000 | $0 | $0 | $0 |
Deed and Sales History
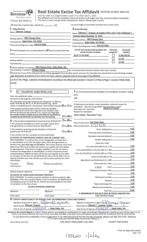
| 1 | 01/02/2026 | QCD | QUIT CLAIM DEED | URGESSA ELFENESH | URGESSA ELFENESH T LIVING TRUST | | | | 150610 | 2026-00006 |
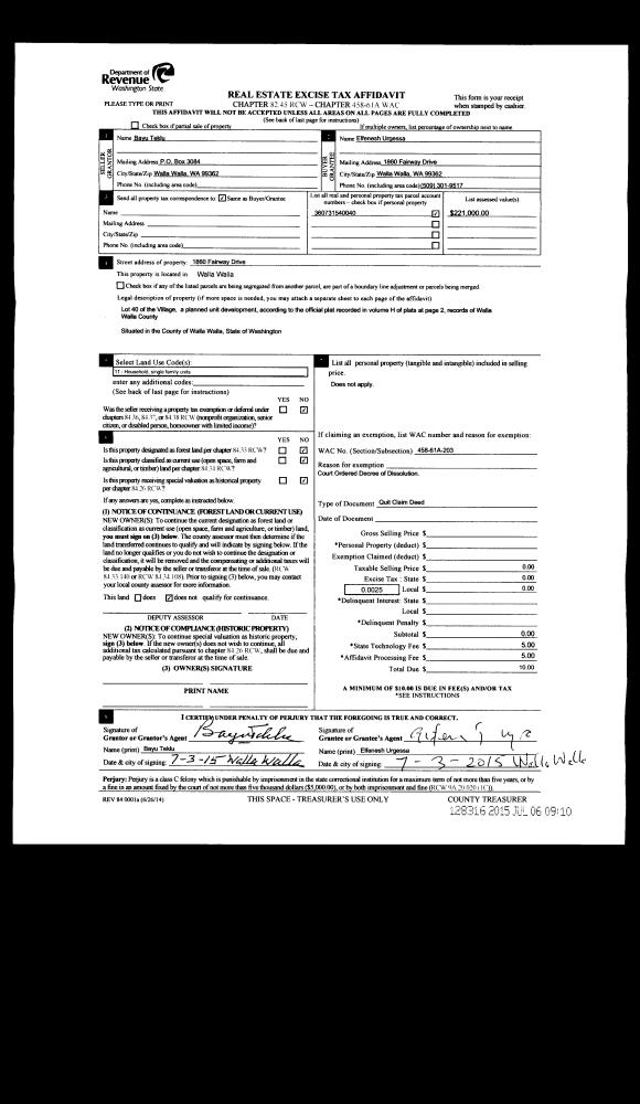
| 2 | 07/03/2015 | QCD | QUIT CLAIM DEED | URGESSA ELFENESH T | URGESSA ELFENESH | | | | 128316 | 2015-05699 |
| 3 | 07/02/1999 | WARRANTY D | WARRANTY DEED | | | | | $179,900.00 | 93094 | 2869-907818 |
Payout Agreement
| No payout information available.. |