Property
Account |
| Property ID: | 11653 | Abbreviated Legal Description: | THE VILLAGE LOT 36 |
| Parcel Number: | 360731540036 | Agent Code: | |
| Type: | Real | | |
| Tax Area: | 1 - OL-140-F | Land Use Code | 11 |
| Open Space: | N | DFL | N |
| Historic Property: | N | Remodel Property: | N |
| Multi-Family Redevelopment: | N | | |
| Township: | 7 | Section: | 31 |
| Range: | 36 |
Location |
| Address: | 743 VILLAGE WAY WA 99362 | Mapsco: | |
| Neighborhood: | VG SFR | Map ID: | |
| Neighborhood CD: | 115011 |
Owner |
| Name: | WYRICK KATHERINE L | Owner ID: | 70609 |
| Mailing Address: | NOAH ALEXANDER FENTON 743 VILLAGE WAY WALLA WALLA, WA 99362 | % Ownership: | 100.0000000000% |
| | | Exemptions: | |
Taxes and Assessment Details
Values
| (+) Improvement Homesite Value: | + | $0 | |
| (+) Improvement Non-Homesite Value: | + | $469,030 | |
| (+) Land Homesite Value: | + | $0 | |
| (+) Land Non-Homesite Value: | + | $100,000 | |
| (+) Curr Use (HS): | + | $0 | $0 |
| (+) Curr Use (NHS): | + | $0 | $0 |
| | | -------------------------- | |
| (=) Market Value: | = | $569,030 | |
| (–) Productivity Loss: | – | $0 | |
| | | -------------------------- | |
| (=) Subtotal: | = | $569,030 | |
| (+) Senior Appraised Value: | + | $0 | |
| (+) Non-Senior Appraised Value: | + | $569,030 | |
| | | -------------------------- | |
| (=) Total Appraised Value: | = | $569,030 | |
| (–) Senior Exemption Loss: | – | $0 | |
| (–) Exemption Loss: | – | $0 | |
| | | -------------------------- | |
| (=) Taxable Value: | = | $569,030 | |
Taxing Jurisdiction
| Owner: | WYRICK KATHERINE L | | |
| % Ownership: | 100.0000000000% | | |
| Total Value: | $569,030 | | |
| Tax Area: | 1 - OL-140-F |
| CERFD | CURRENT EXPENSE REFUND 010 | 0.0000000000 | $569,030 | $569,030 | $0.00 | | |
| CURREXP | CURRENT EXPENSE 010 | 1.0175366760 | $569,030 | $569,030 | $579.01 | | |
| HUMNSERV | HUMAN SERVICES 119 | 0.0250000000 | $569,030 | $569,030 | $14.23 | | |
| SLDREL | SOLDIERS RELIEF 121 | 0.0155990005 | $569,030 | $569,030 | $8.88 | | |
| EMERGSER | EMS 147 | 0.3792580840 | $569,030 | $569,030 | $215.81 | | |
| EMSRFD | EMS REFUND 147 | 0.0000000000 | $569,030 | $569,030 | $0.00 | | |
| PORTRFD | PORT REFUND 640 | 0.0000000000 | $569,030 | $569,030 | $0.00 | | |
| PORTWWGEN | PORT OF WW 640 | 0.2460186015 | $569,030 | $569,030 | $139.99 | | |
| SD140BOND | SD #140 BOND 764 | 0.8342371393 | $569,030 | $569,030 | $474.71 | | |
| SD140GEN | SD #140 GENERAL 760 | 2.0646500647 | $569,030 | $569,030 | $1,174.85 | | |
| ST2 | STATE SCHOOL PART 2 600 | 0.8131451643 | $569,030 | $569,030 | $462.70 | | |
| STATESCHL | STATE SCHOOL 600 | 1.5158548041 | $569,030 | $569,030 | $862.57 | | |
| STREFUND | STATE REFUND LEVY 603 | 0.0000000000 | $569,030 | $569,030 | $0.00 | | |
| CWWBOND | C OF WW BOND 643 | 0.2760494372 | $569,030 | $569,030 | $157.08 | | |
| CWWGEN | CITY OF WW 631 | 1.6100204973 | $569,030 | $569,030 | $916.15 | | |
| CWWRFD | CITY OF WALLA WALLA REFUND 631 | 0.0000000000 | $569,030 | $569,030 | $0.00 | | |
| | Total Tax Rate: | 8.7973694689 | | | | | |
| | | | | Taxes w/Current Exemptions: | $5,005.98 | | |
| | | | | Taxes w/o Exemptions: | $5,005.98 | | |
Improvement / Building
| Improvement #1: | RESIDENTIAL | State Code: | 11 | 1732.0 sqft | Value: | $469,030 |
| Exterior Wall: | SIDING | Heating/Cooling: | WARM & COOLED AIR | | Number of Bathrooms: | 3 | Number of Bedrooms: | 3 | | Plumbing: | 12 | Roof Covering: | COMP SHINGLE |
|
| | Type | Description | Class CD | Sub Class CD | Year Built | Area |
| | MA | Main Area | 1 | 35 | 1976 | 1732.0 |
| | SI1 | SITE IMPROVEMENT | 1 | 35 | 1976 | 2.5 |
| | BASE | BASEMENT | 1 | 35 | 1976 | 1683.0 |
| | BPF | BASEMENT -PARTITIONED FINISH | 1 | 35 | 1976 | 1016.0 |
| | ATG | Attached Garage | 1 | 35 | 1976 | 528.0 |
| | WOD | Wood Deck | 1 | 35 | 1976 | 334.0 |
| | S2F | Single 2S Fireplace | 1 | 35 | 1976 | 1.0 |
| | PRC | PORCH W STEPS, ROOF,CEILED | 1 | 35 | 1976 | 33.0 |
Sketch
Property Image
Land
| 1 | RES 1 | Converted: Residential | 0.2008 | 8745.00 | 0.00 | 0.00 | 1.00 | $100,000 | $0 |
Roll Value History
| 2026 | N/A | N/A | N/A | N/A | N/A |
| 2025 | $375,230 | $170,000 | $0 | $545,230 | $545,230 |
| 2024 | $469,030 | $100,000 | $0 | $569,030 | $569,030 |
| 2023 | $469,030 | $100,000 | $0 | $569,030 | $569,030 |
| 2022 | $469,030 | $100,000 | $0 | $569,030 | $569,030 |
| 2021 | $312,690 | $100,000 | $0 | $412,690 | $412,690 |
| 2020 | $240,530 | $100,000 | $0 | $340,530 | $340,530 |
| 2019 | $250,530 | $90,000 | $0 | $340,530 | $340,530 |
| 2018 | $238,600 | $90,000 | $0 | $328,600 | $328,600 |
| 2017 | $238,600 | $90,000 | $0 | $328,600 | $328,600 |
| 2016 | $140,350 | $90,000 | $0 | $230,350 | $230,350 |
| 2015 | $116,960 | $90,000 | $0 | $206,960 | $206,960 |
| 2014 | $137,600 | $90,000 | $0 | $227,600 | $227,600 |
| 2013 | $137,600 | $90,000 | $0 | $227,600 | $227,600 |
| 2012 | $137,600 | $90,000 | $0 | $0 | $0 |
| 2011 | $137,600 | $90,000 | $0 | $0 | $0 |
| 2010 | $137,600 | $90,000 | $0 | $0 | $0 |
| 2009 | $149,600 | $90,000 | $0 | $0 | $0 |
| 2008 | $190,800 | $45,000 | $0 | $0 | $0 |
| 2007 | $190,800 | $45,000 | $0 | $0 | $0 |
Deed and Sales History
| 1 | 10/01/2025 | SWD | STATUTORY WARRANTY DEED | WYRICK KATHERINE L | LENAHAN ROBERT RAYMOND & AMY KRISTEN | | | $648,000.00 | 150111 | 2025-06011 |
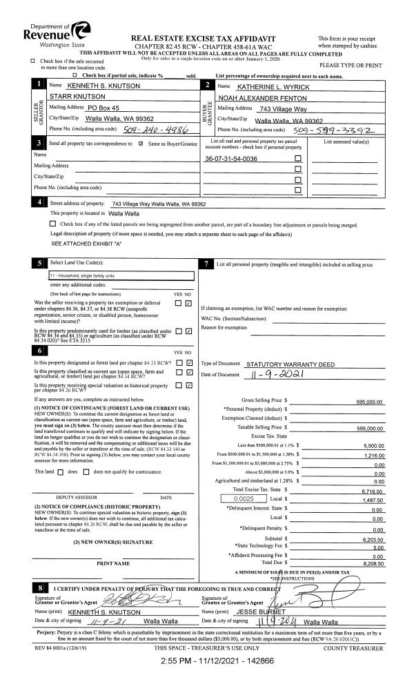
| 2 | 11/12/2021 | SWD | STATUTORY WARRANTY DEED | KNUTSON KENNETH S & STARR | WYRICK KATHERINE L | | | $595,000.00 | 142866 | 2021-13557 |
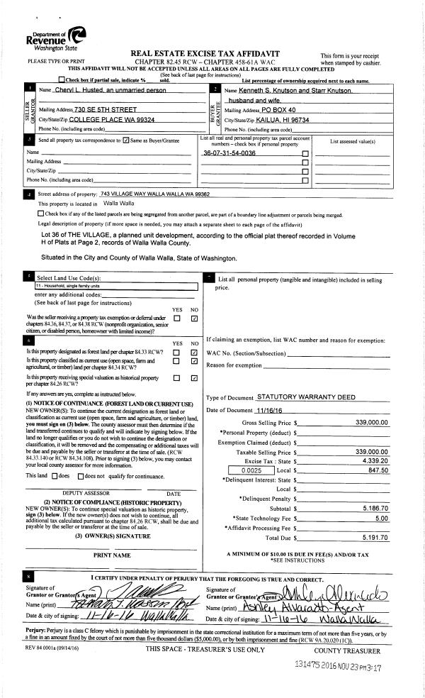
| 3 | 11/23/2016 | SWD | STATUTORY WARRANTY DEED | HUSTED CHERYL L | KNUTSON KENNETH S & STARR | | | $339,000.00 | 131475 | 2016-09649 |
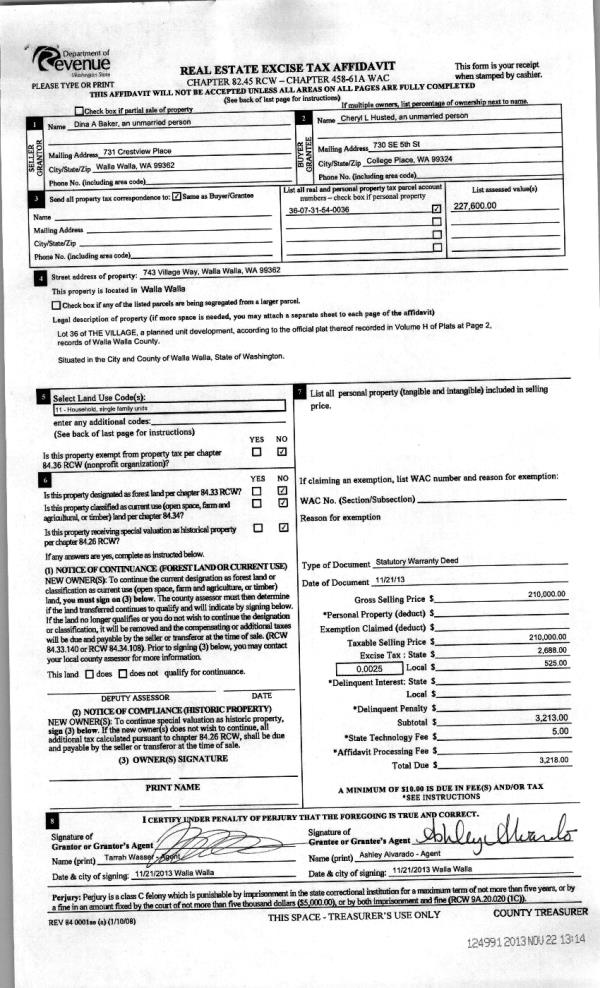
| 4 | 11/22/2013 | WARRANTY D | WARRANTY DEED | BAKER DINA A | HUSTED CHERYL L | | | $210,000.00 | 124991 | 2013-11441 |
| 5 | 01/31/1975 | WARRANTY D | WARRANTY DEED | | | | | $8,500.00 | 0 | 2305-42295 |
Payout Agreement
| No payout information available.. |