Property
Account |
| Property ID: | 11641 | Abbreviated Legal Description: | THE VILLAGE LOT 12 |
| Parcel Number: | 360731540012 | Agent Code: | |
| Type: | Real | | |
| Tax Area: | 1 - OL-140-F | Land Use Code | 11 |
| Open Space: | N | DFL | N |
| Historic Property: | N | Remodel Property: | N |
| Multi-Family Redevelopment: | N | | |
| Township: | 7 | Section: | 31 |
| Range: | 36 |
Location |
| Address: | 732 VILLAGE WAY WA 99362 | Mapsco: | |
| Neighborhood: | VG SFR | Map ID: | |
| Neighborhood CD: | 115011 |
Owner |
| Name: | WEED KARI & WILLIAM III | Owner ID: | 70139 |
| Mailing Address: | 732 VILLAGE WAY WALLA WALLA, WA 99362 | % Ownership: | 100.0000000000% |
| | | Exemptions: | |
Taxes and Assessment Details
Values
| (+) Improvement Homesite Value: | + | $0 | |
| (+) Improvement Non-Homesite Value: | + | $463,980 | |
| (+) Land Homesite Value: | + | $0 | |
| (+) Land Non-Homesite Value: | + | $100,000 | |
| (+) Curr Use (HS): | + | $0 | $0 |
| (+) Curr Use (NHS): | + | $0 | $0 |
| | | -------------------------- | |
| (=) Market Value: | = | $563,980 | |
| (–) Productivity Loss: | – | $0 | |
| | | -------------------------- | |
| (=) Subtotal: | = | $563,980 | |
| (+) Senior Appraised Value: | + | $0 | |
| (+) Non-Senior Appraised Value: | + | $563,980 | |
| | | -------------------------- | |
| (=) Total Appraised Value: | = | $563,980 | |
| (–) Senior Exemption Loss: | – | $0 | |
| (–) Exemption Loss: | – | $0 | |
| | | -------------------------- | |
| (=) Taxable Value: | = | $563,980 | |
Taxing Jurisdiction
| Owner: | WEED KARI & WILLIAM III | | |
| % Ownership: | 100.0000000000% | | |
| Total Value: | $563,980 | | |
| Tax Area: | 1 - OL-140-F |
| CERFD | CURRENT EXPENSE REFUND 010 | 0.0000000000 | $563,980 | $563,980 | $0.00 | | |
| CURREXP | CURRENT EXPENSE 010 | 1.0175366760 | $563,980 | $563,980 | $573.87 | | |
| HUMNSERV | HUMAN SERVICES 119 | 0.0250000000 | $563,980 | $563,980 | $14.10 | | |
| SLDREL | SOLDIERS RELIEF 121 | 0.0155990005 | $563,980 | $563,980 | $8.80 | | |
| EMERGSER | EMS 147 | 0.3792580840 | $563,980 | $563,980 | $213.89 | | |
| EMSRFD | EMS REFUND 147 | 0.0000000000 | $563,980 | $563,980 | $0.00 | | |
| PORTRFD | PORT REFUND 640 | 0.0000000000 | $563,980 | $563,980 | $0.00 | | |
| PORTWWGEN | PORT OF WW 640 | 0.2460186015 | $563,980 | $563,980 | $138.75 | | |
| SD140BOND | SD #140 BOND 764 | 0.8342371393 | $563,980 | $563,980 | $470.49 | | |
| SD140GEN | SD #140 GENERAL 760 | 2.0646500647 | $563,980 | $563,980 | $1,164.42 | | |
| ST2 | STATE SCHOOL PART 2 600 | 0.8131451643 | $563,980 | $563,980 | $458.60 | | |
| STATESCHL | STATE SCHOOL 600 | 1.5158548041 | $563,980 | $563,980 | $854.91 | | |
| STREFUND | STATE REFUND LEVY 603 | 0.0000000000 | $563,980 | $563,980 | $0.00 | | |
| CWWBOND | C OF WW BOND 643 | 0.2760494372 | $563,980 | $563,980 | $155.69 | | |
| CWWGEN | CITY OF WW 631 | 1.6100204973 | $563,980 | $563,980 | $908.02 | | |
| CWWRFD | CITY OF WALLA WALLA REFUND 631 | 0.0000000000 | $563,980 | $563,980 | $0.00 | | |
| | Total Tax Rate: | 8.7973694689 | | | | | |
| | | | | Taxes w/Current Exemptions: | $4,961.54 | | |
| | | | | Taxes w/o Exemptions: | $4,961.54 | | |
Improvement / Building
| Improvement #1: | RESIDENTIAL | State Code: | 11 | 1644.0 sqft | Value: | $463,980 |
| Exterior Wall: | HARDBOARD | Heating/Cooling: | WARM & COOLED AIR | | Number of Bathrooms: | 3 | Number of Bedrooms: | 4 | | Plumbing: | 12 | Roof Covering: | WOOD SHAKE |
|
| | Type | Description | Class CD | Sub Class CD | Year Built | Area |
| | MA | Main Area | 2 | 40 | 1992 | 1644.0 |
| | ATG | Attached Garage | 2 | 40 | 1992 | 432.0 |
| | SI1 | SITE IMPROVEMENT | 2 | 40 | 1992 | 3.0 |
| | BASE | BASEMENT | 2 | 40 | 1992 | 1125.0 |
| | BPF | BASEMENT -PARTITIONED FINISH | 2 | 40 | 1992 | 1125.0 |
| | S1F | Single One Story Fireplace | 2 | 40 | 1992 | 1.0 |
| | CPC | COVERED CARPORT/PATIO | 2 | 40 | 1992 | 236.0 |
| | UPFL | Upper Floor (included in main area) | 2 | 40 | 1992 | 779.5 |
Sketch
Property Image
Land
| 1 | RES 1 | Converted: Residential | 0.2097 | 9134.00 | 0.00 | 0.00 | 1.00 | $100,000 | $0 |
Roll Value History
| 2026 | N/A | N/A | N/A | N/A | N/A |
| 2025 | $371,180 | $170,000 | $0 | $541,180 | $541,180 |
| 2024 | $463,980 | $100,000 | $0 | $563,980 | $563,980 |
| 2023 | $463,980 | $100,000 | $0 | $563,980 | $563,980 |
| 2022 | $463,980 | $100,000 | $0 | $563,980 | $563,980 |
| 2021 | $257,760 | $100,000 | $0 | $357,760 | $357,760 |
| 2020 | $198,280 | $100,000 | $0 | $298,280 | $298,280 |
| 2019 | $208,280 | $90,000 | $0 | $298,280 | $298,280 |
| 2018 | $202,220 | $90,000 | $0 | $292,220 | $292,220 |
| 2017 | $192,590 | $90,000 | $0 | $282,590 | $282,590 |
| 2016 | $175,080 | $90,000 | $0 | $265,080 | $265,080 |
| 2015 | $145,900 | $90,000 | $0 | $235,900 | $235,900 |
| 2014 | $145,900 | $90,000 | $0 | $235,900 | $235,900 |
| 2013 | $145,900 | $90,000 | $0 | $235,900 | $235,900 |
| 2012 | $145,900 | $90,000 | $0 | $0 | $0 |
| 2011 | $145,900 | $90,000 | $0 | $0 | $0 |
| 2010 | $158,300 | $90,000 | $0 | $0 | $0 |
| 2009 | $171,400 | $90,000 | $0 | $0 | $0 |
| 2008 | $180,700 | $45,000 | $0 | $0 | $0 |
| 2007 | $180,700 | $45,000 | $0 | $0 | $0 |
Deed and Sales History
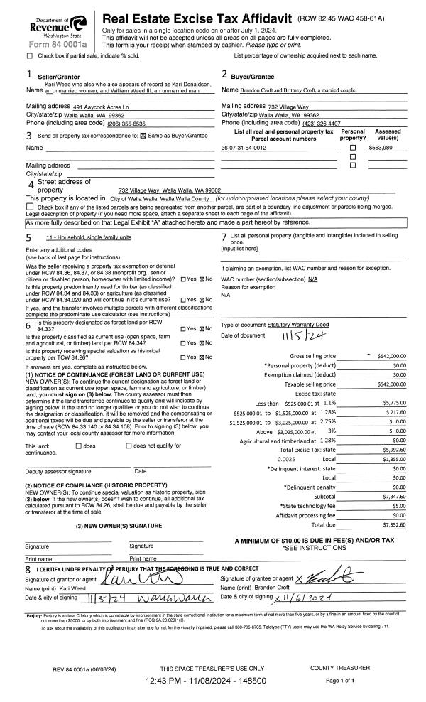
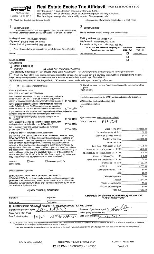
| 1 | 11/08/2024 | SWD | STATUTORY WARRANTY DEED | WEED KARI & WILLIAM III | CROFT BRANDON & BRITTNEY | | | $542,000.00 | 148500 | 2024-06543 |
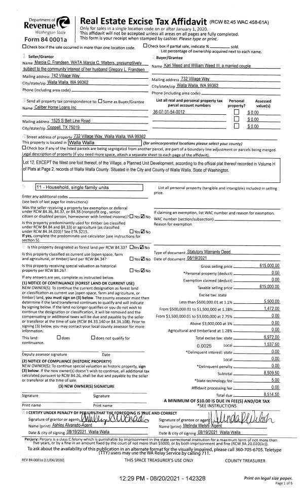
| 2 | 08/20/2021 | SWD | STATUTORY WARRANTY DEED | WALTERS MARCIA C | WEED KARI & WILLIAM III | | | $615,000.00 | 142328 | 2021-10265 |
| 3 | 07/16/2009 | WARRANTY D | WARRANTY DEED | JONES, MARK & DANA | WALTERS, MARCIA C | | | $237,000.00 | 117015 | 2009-07228 |
| 4 | 07/29/2004 | WARRANTY D | WARRANTY DEED | FIREHAMMER, JOHN B & LISA | JONES, MARK & DANA | | | $222,000.00 | 105372 | 2004-08646 |
| 5 | 07/10/1998 | WARRANTY D | WARRANTY DEED | | | | | $158,000.00 | 98032 | 2699-807777 |
Payout Agreement
| No payout information available.. |