Property
Account |
| Property ID: | 1164 | Abbreviated Legal Description: | HARVEST MEADOWS LT 11 BLK 2 |
| Parcel Number: | 350601520211 | Agent Code: | |
| Type: | Real | | |
| Tax Area: | 75 - CP 250 | Land Use Code | 11 |
| Open Space: | N | DFL | N |
| Historic Property: | N | Remodel Property: | N |
| Multi-Family Redevelopment: | N | | |
| Township: | 6 | Section: | 1 |
| Range: | 35 |
Location |
| Address: | 1915 SE CLOVER CT WA 99324 | Mapsco: | |
| Neighborhood: | G SFR Rural/City Inf | Map ID: | |
| Neighborhood CD: | 114012 |
Owner |
| Name: | EVANS DANA MARIE A & CRYSTAL MARIE | Owner ID: | 57383 |
| Mailing Address: | 1915 SE CLOVER CT COLLEGE PLACE, WA 99324 | % Ownership: | 100.0000000000% |
| | | Exemptions: | |
Taxes and Assessment Details
Values
| (+) Improvement Homesite Value: | + | $0 | |
| (+) Improvement Non-Homesite Value: | + | $327,500 | |
| (+) Land Homesite Value: | + | $0 | |
| (+) Land Non-Homesite Value: | + | $85,000 | |
| (+) Curr Use (HS): | + | $0 | $0 |
| (+) Curr Use (NHS): | + | $0 | $0 |
| | | -------------------------- | |
| (=) Market Value: | = | $412,500 | |
| (–) Productivity Loss: | – | $0 | |
| | | -------------------------- | |
| (=) Subtotal: | = | $412,500 | |
| (+) Senior Appraised Value: | + | $0 | |
| (+) Non-Senior Appraised Value: | + | $412,500 | |
| | | -------------------------- | |
| (=) Total Appraised Value: | = | $412,500 | |
| (–) Senior Exemption Loss: | – | $0 | |
| (–) Exemption Loss: | – | $0 | |
| | | -------------------------- | |
| (=) Taxable Value: | = | $412,500 | |
Taxing Jurisdiction
| Owner: | EVANS DANA MARIE A & CRYSTAL MARIE | | |
| % Ownership: | 100.0000000000% | | |
| Total Value: | $412,500 | | |
| Tax Area: | 75 - CP 250 |
| CERFD | CURRENT EXPENSE REFUND 010 | 0.0000000000 | $412,500 | $412,500 | $0.00 | | |
| CURREXP | CURRENT EXPENSE 010 | 1.0175366760 | $412,500 | $412,500 | $419.73 | | |
| HUMNSERV | HUMAN SERVICES 119 | 0.0250000000 | $412,500 | $412,500 | $10.31 | | |
| SLDREL | SOLDIERS RELIEF 121 | 0.0155990005 | $412,500 | $412,500 | $6.43 | | |
| COLLPLBOND | C OF CP BOND 644 | 0.4374241808 | $412,500 | $412,500 | $180.44 | | |
| COLLPLGEN | CITY OF CP 632 | 1.4453819216 | $412,500 | $412,500 | $596.22 | | |
| EMERGSER | EMS 147 | 0.3792580840 | $412,500 | $412,500 | $156.44 | | |
| EMSRFD | EMS REFUND 147 | 0.0000000000 | $412,500 | $412,500 | $0.00 | | |
| RURALLIB | RURAL LIBRARY 623 | 0.3710609029 | $412,500 | $412,500 | $153.06 | | |
| PORTRFD | PORT REFUND 640 | 0.0000000000 | $412,500 | $412,500 | $0.00 | | |
| PORTWWGEN | PORT OF WW 640 | 0.2460186015 | $412,500 | $412,500 | $101.48 | | |
| SD250BOND | SD #250 BOND 773 | 1.4560608159 | $412,500 | $412,500 | $600.63 | | |
| SD250GEN | SD #250 GENERAL 770 | 2.3880724087 | $412,500 | $412,500 | $985.08 | | |
| ST2 | STATE SCHOOL PART 2 600 | 0.8131451643 | $412,500 | $412,500 | $335.42 | | |
| STATESCHL | STATE SCHOOL 600 | 1.5158548041 | $412,500 | $412,500 | $625.29 | | |
| STREFUND | STATE REFUND LEVY 603 | 0.0000000000 | $412,500 | $412,500 | $0.00 | | |
| | Total Tax Rate: | 10.1104125603 | | | | | |
| | | | | Taxes w/Current Exemptions: | $4,170.53 | | |
| | | | | Taxes w/o Exemptions: | $4,170.53 | | |
Improvement / Building
| Improvement #1: | RESIDENTIAL | State Code: | 11 | 1626.0 sqft | Value: | $327,500 |
| Exterior Wall: | HARDBOARD | Heating/Cooling: | WARM & COOLED AIR | | Number of Bathrooms: | 3 | Number of Bedrooms: | 4 | | Plumbing: | 12 | Roof Covering: | COMP SHINGLE |
|
| | Type | Description | Class CD | Sub Class CD | Year Built | Area |
| | MA | Main Area | 4 | 45 | 1996 | 1626.0 |
| | UPFL | Upper Floor (included in main area) | 4 | 45 | 1996 | 640.0 |
| | SI1 | SITE IMPROVEMENT | 4 | 45 | 1996 | 2.5 |
| | BASE | BASEMENT | 4 | 45 | 1996 | 832.0 |
| | BPF | BASEMENT -PARTITIONED FINISH | 4 | 45 | 1996 | 832.0 |
| | ATG | Attached Garage | 4 | 45 | 1996 | 552.0 |
| | WOD | Wood Deck | 4 | 45 | 1996 | 294.0 |
Sketch
Property Image
Land
| 1 | RES 1 | Converted: Residential | 0.3092 | 13470.00 | 0.00 | 0.00 | 1.00 | $85,000 | $0 |
Roll Value History
| 2026 | N/A | N/A | N/A | N/A | N/A |
| 2025 | $262,000 | $135,000 | $0 | $397,000 | $397,000 |
| 2024 | $327,500 | $85,000 | $0 | $412,500 | $412,500 |
| 2023 | $327,500 | $85,000 | $0 | $412,500 | $412,500 |
| 2022 | $272,920 | $85,000 | $0 | $357,920 | $357,920 |
| 2021 | $272,920 | $85,000 | $0 | $357,920 | $357,920 |
| 2020 | $188,220 | $85,000 | $0 | $273,220 | $273,220 |
| 2019 | $208,220 | $65,000 | $0 | $273,220 | $273,220 |
| 2018 | $189,290 | $65,000 | $0 | $254,290 | $254,290 |
| 2017 | $189,290 | $65,000 | $0 | $254,290 | $254,290 |
| 2016 | $189,290 | $65,000 | $0 | $254,290 | $254,290 |
| 2015 | $210,320 | $65,000 | $0 | $275,320 | $275,320 |
| 2014 | $191,200 | $65,000 | $0 | $256,200 | $256,200 |
| 2013 | $191,200 | $65,000 | $0 | $256,200 | $256,200 |
| 2012 | $210,200 | $65,000 | $0 | $0 | $0 |
| 2011 | $210,200 | $65,000 | $0 | $0 | $0 |
| 2010 | $210,200 | $65,000 | $0 | $0 | $0 |
| 2009 | $240,800 | $65,000 | $0 | $0 | $0 |
| 2008 | $149,800 | $35,000 | $0 | $0 | $0 |
| 2007 | $149,800 | $35,000 | $0 | $0 | $0 |
Deed and Sales History
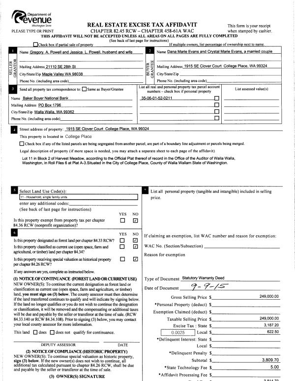
| 1 | 09/11/2015 | SWD | STATUTORY WARRANTY DEED | POWELL GREGORY A & JESSICA L | EVANS DANA MARIE A & CRYSTAL MARIE | | | $249,000.00 | 128797 | 2015-07947 |
| 2 | 10/06/2005 | WARRANTY D | WARRANTY DEED | GARDEA, CHRISTOPHER R & ANGELA | POWELL, GREGORY A & JESSICA L | | | $266,500.00 | 108695 | 2005-12502 |
| 3 | 10/14/2002 | WARRANTY D | WARRANTY DEED | BARTON, CINDY | GARDEA, CHRISTOPHER R & ANGELA | | | $185,000.00 | 100588 | 2002-11538 |
| 4 | 08/23/1999 | WARRANTY D | WARRANTY DEED | | | | | $119,500.00 | 93452 | 2889-909856 |
Payout Agreement
| No payout information available.. |